시간이 빚어내 사람이 모이는 집
대전 하기동 온실(On Sill)
박제된 듯 늘 똑같은 집보다, 살면서 변화를 담는 집을 지었다. 건축가가 그리고, 건축주가 빚어내고, 시간이 구워내는 그릇 같은 집은 사람들을 모으고 삶을 버무리며 오늘도 동네를 밝힌다.

안과 밖의 경계를 허물어 모임과 나눔이 자유로운 집
대전 교외에 녹지 사이로 폭 안긴 듯한 마을. 그곳에 자연스럽게 자리를 잡은 독특한 주택이 한 채 서 있다. ‘온실’이라 이름 붙여진 네 식구의 집이다. 2층 규모에 폴리카보네이트와 은빛 목재 마감이 인상적인 온실은 집의 이름이면서 좁게는 이 집의 일부인 중앙 공간을 가리키는데, 크게 두 가지 의미를 내포하고 있다. 하나는 우리가 흔히 인식하듯 햇빛이 비치는 따뜻한 공간으로서의 온실(溫室)이고, 다른 하나는 문턱을 의미하는 영어에서 온 ‘On-Sill’이다. 문턱을 넘나들 듯 안과 밖의 경계가 자유롭고 그로 인해 자연스럽게 사람이 모이고 그러면서도 서로의 일상을 배려하는 이 집의 정체성을 가리키는 이름이다.



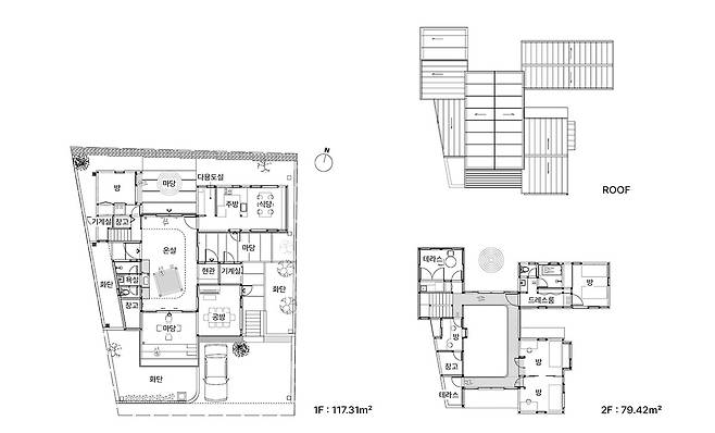
공간으로서의 온실은 폴리카보네이트 벽체와 지붕으로 덮인 실내면서도, 신발을 신고 다니는 공간이다. 온실은 가족이 모이는 공간이면서도 가족들 개인 공간을 분리한다. 집은 중앙의 온실을 중심으로 1층에는 주방과 식당, 게스트룸과 공방이, 2층에는 안방과 아이 방이 놓였다. 그렇다고 집은 온실을 향해서만 열린 폐쇄적인 중정 주택과는 다르다. 온실을 통해서 각 채에 접근할 수 있으나, 외부에서도 각각의 채로 접근할 수 있는 다양한 출입구를 가졌다.
HOUSE PLAN
대지위치 : 대전광역시 유성구
대지면적 : 351㎡(106.17평)
건물규모 : 지상 2층
거주인원 : 4명(부부 + 자녀2)
건축면적 : 123㎡(37.20평)
연면적 : 197㎡(59.59평)
건폐율 : 34.16%
용적률 : 56.05%
주차대수 : 1대
최고높이 : 6.6m
구조 : 기초 - 철근콘크리트 매트 + 줄기초 / 지상 –중목구조(지붕 : 중목 보 + 2×10 구조목)
단열재 : 연질우레탄폼 + 경질우레탄폼(가등급)
외부마감재 : 외벽 – 유절 삼나무 사이딩 위 규화제 도장, 복층 폴리카보네이트, 노출콘크리트 위 발수제 처리 / 지붕 –컬러강판, 복층 폴리카보네이트(두인폴리캠)
담장재 : 디자인 블록(타공형)
창호재 : 이건 85㎜ PVC 삼중창호(기밀성 1등급)
철물하드웨어 : 심슨스트롱타이
에너지원 : 기름보일러
전기·기계·설비 : 지엠 엔지니어링
구조설계(내진) : ㈜채우림 + 마루구조엔지니어링
시공 : ㈜채우림 031-821-1662
설계 및 디자인감리 : a0100z (아백제) space design





PLAN & SECTION




MOMENT








준공 직후 붉은 기운을 가지고 있던 집 외부의 삼나무 마감은 3년 정도 시간이 흐르며 시나브로 은빛으로 변했다. 건축주는 과거 사진을 보고서야 변했음을 깨달을 정도로 집에 익숙해져 있었다. 그럼에도 이 집에서 느낄 것도, 해야할 것도, 즐길 것도 많이 남았다는 건축주의 이야기에서 온실의 ‘완성’은 현재진행형이다.
건축가 성상우, 오혜정 : a0100z(아:백제)

기획 신기영 | 사진 변종석
ⓒ 월간 전원속의 내집 2024년 12월호 / Vol.310 www.uujj.co.kr