스틸하우스 학전 學田
드넓은 들판을 배경으로 한 스틸하우스가 지어졌다. 치열한 삶을 뒤로하고 가족과 함께 오롯이 보내며 밭에서, 들에서 새로이 배우겠다는 의지가 담긴 집이다.


도심에서 벗어난 들판 한가운데. 요철을 최소화한 매스에 화이트 & 그레이 톤으로 단정한 인상을 가진 주택이 서 있다. 건축주 부부가 부모님을 모시고 사는 집이다. 그는 집짓기에 있어서 많은 것을 맡기는 스타일이었다. 해당 분야의 일은 전문가가 가장 잘 알기에 일일이 간섭하기보다는 믿고 맡기는 것이 탈이 없다는 게 그의 지론이었다. 그 때문에 집짓기 첫 시도는 아쉬움 속에 설계로 그치고 말았지만, 두 번째에도 그는 믿고 맡겼다. 다만, 더 신중히 시공사와 건축가를 알아봤고, 그렇게 해서 그린홈예진과 스타일랩 건축사사무소의 안응준 소장을 만나 집을 완성해 나갔다.



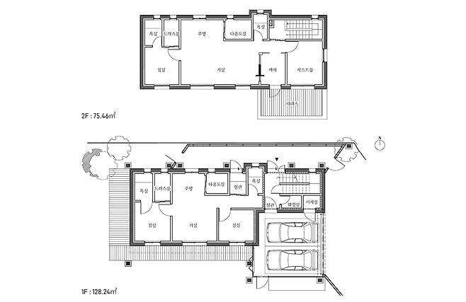
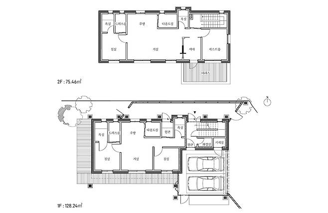
House Plan
대지위치 : 경기도 양주시
대지면적 : 694㎡(209.93평)
건축면적 : 128.14㎡(38.76평)
연면적 : 199.914㎡(60.47평)
건폐율 : 18.46%
용적률 : 23.24%
주차대수 : 2대
최고높이 : 8.98m
구조 : 기초 – 철근콘크리트 매트기초 / 지상 –스틸하우스조 + H빔 구조재(1층)
단열재 : 외벽 – 비드법보온판 2종1호 230㎜ / 지붕 –비드법보온판 2종1호 230㎜ / 기초 – 압출법보온판 250㎜
외부마감재 :세라스킨
담장재 :철근콘크리트 + 철재 난간
창호재 : 디크닉 43㎜ 3중유리 PVC 시스템창호(에너지효율 1등급)
열회수환기장치 :컴포벤트 도멕트 R300 V
환풍기 : 힘펠 휴젠뜨 2
에너지원 : 경동 나비엔 콘덴싱 가스보일러
조경 : 청송조경
전기 : 오성전기
설비 : 바른건축설비
건축디자인 : 스타일랩건축사사무소 010-9098-9088 https://ansaem.com
시공 : ㈜그린홈예진 1833-4956 www.yejinhouse.com
주택은 두 개 층으로, 1층은 연로하신 부모님 세대로, 2층은 건축주 세대로 구성했다. 각 세대는 공용 공간으로 연결하기보다는 출입문을 따로 두는 등 뚜렷하게 세대를 분리해 각각의 프라이버시를 확보할 수 있게끔 했다.
건축주 세대는 서측으로 안방이 자리하고, 주방-거실-서재-게스트룸 순서로 실이 놓였다. 주방과 거실, 식당, 서재는 가구나 아치로 공간을 구분하되 벽으로 나누지는 않았다. 덕분에 넓은 개방감을 가졌다. 2층은 처마가 돌출되어 마치 눈썹처럼 보인다. 이는 디자인 요소도 있지만, 계절별 일조량을 조율하기 위한 것으로, 해가 높이 뜨는 여름에는 빛을 줄이고, 낮게 뜨는 겨울에는 안까지 따뜻한 빛이 들게 된다.
Interior Source
욕실 및 주방타일 : 그리스 리소 매트(무광)
수전 : 아메리칸스탠다드
붙박이장·주방가구 : 한샘
계단재·난간 : 화이트오크, 강화유리 난간
현관문 : 커널시스텍
중문 : 영림임업
방문 : 영림 ABS도어



Plan & Section







주택은 경기 북부에 위치한 만큼 에너지 효율에도 신경을 썼다. 독일식 시스템창호와 열회수환기장치는 기본이고, 중부1지역 단열재 기준보다 30% 이상 단열 성능을 강화해 벽체는 무려 300㎜에 달한다. 단열재도 단순히 두께만 늘리기보다는 중단열과 외단열을 조합하고, 단열재 교차 시공으로 숨은 열교까지 잡았다.
House Point

- A. 열회수환기장치 : 단열과 기밀성능이 높아지는 현대 주택에서 에너지 효율과 공기질을 동시에 잡기 위해서는 열회수환기장치가 필수다.
- B. 다기능 욕실 환기장치 : 환기는 기본에 바디&헤어드라이, 음악 등 다양한 기능을 갖춘 환기장치는 욕실에서의 시간을 즐겁게 한다.
- C. 출입구 화장실 : 주 생활공간이 2층임을 감안해 1층 출입구에 화장실을 두었다. 바깥일이 잦을 때 유용하다.
Tech Detail


건축주는 집 이름을 학전(學田)이라 소개했다. 유명 가수면서 연출가였던 故 김민기의 극단 이름인 ‘학전’에서 따왔다는 그는 “제2의 인생을 살게 된 이곳에서 땅에서 배우는 삶을 살고 싶다는 의미”라고 전했다. 아직 여러모로 어색하지만, 밭과 정원을 오가며 이것저것 준비한다는 그의 모습에서 새로운 출발의 설렘을 느낄 수 있었다.
기획 신기영 | 사진 변종석
ⓒ 월간 전원속의 내집 2025년 1월호 / Vol.311 www.uujj.co.kr