
한 건축가가 “집은 사람과 같다. 각 분야 전문의가 인체를 다루듯 집도 공정별 전문가가 정성을 다해 지어야 건강한 주택을 유지한다"라고 한다. 그가 말하는 건강한 집이 창원에 있다기에 찾았다.
글 사진 백홍기 기자
취재협조 에스에프시스템(주)
HOUSE NOTE
DATA
위 치 경남 창원시 마산합포구 진전면
대지면적 473.00㎜(143.33평)
건축면적 110.16㎜(33.38평)
연 면 적 110.16㎜(33.38평)
1층 110.16㎜(33.38평)
건 폐 율 23.28%
용 적 률 23.28%
건축구조 경량철골조(스틸하우스)
용 도 농림지역, 농업진흥구역
설계기간 2016년 3월 ~ 2016년 3월
공사기간 2016년 4월 ~ 2016년 8월
공사비용 1억 5천만 원(3.3㎡당 450만 원)
MATERIAL
외부마감
지붕 - 테릴 점토기와
외벽 - 스타코(테라코트)
현관 - 스틸도어
실내 주요 마감재 LG 지인 실크벽지, LG 지인 강화마루
거실 천장 우물천장, 간접 등박스, 실크 도배
침실 천장 실크 도배
바닥 LG 지인 강화마루
창호 LG 지인 이중창
주방 주요 마감재 하이그로시, 인조석
욕실 주요 마감재 대림바스플랙 네오센스
단열재
지붕 - 글라스울 R30
외단열 - THK8 스카이텍
내단열 - 글라스울 R19
주방기구 하이그로시, 인조석
위생기구 대림바스
난방기구 기름보일러(경동 콘덴싱)
설계 및 시공
에스에프시스템(주) 1800-7677 www.goldhomes.co.kr

건축주 부부는 진주와 마산을 잇는 2번 국도변 평야에 기존 주택을 허물고 야트막한 집 한 채를 지었다. 동남쪽을 향해 앉힌 집은 농촌의 사계절 평야를 거실에 온전히 담아냈다. 집터는 이면 도로와 인접해 있어 일터와 집을 오가기도 쉽다.

평범함에 재미와 멋을 담아
박공지붕에 가벼워 보이는 단층집은 조경석으로 집터 경계를 쌓고 아기자기한 마당을 갖췄다. 집에 다가서자 부부가 키우는 소들의 선한 시선이 처음 보는 방문객을 따라 이동한다.
건축주는 튀지 않으면서 멋스러움을 곁들인 집을 바랐다. 군더더기는 최대한 덜어 시골 마을에서 흔히 보이는 기와집을 바탕으로 설계한 뒤 점토 기와와 스타코로 지중해풍 스타일을 가미했다. 그렇게 한국과 유럽 스타일을 적절하게 섞은 퓨전 주택을 완성했다.



입면은 평범한 사각형이다. 언뜻 보면 심심해 보이지만 여유를 갖고 천천히 보면 재미난 요소를 발견한다. 빗물이 흐르지 않게 설치한 눈썹지붕, 포치 위에 얹힌 아기자기한 박공, 삼각형 박공에 멋을 낸 무늬, 포치 모서리를 부드럽게 처리한 곡선 등 재미와 멋을 담아냈다.
건축의 3요소 구조·기능·미. 구조는 거주자의 라이프스타일을 고려해 공간을 구성하고, 기능은 거주자와 환경에 맞춰 건축물이 제 역할을 할 수 있도록 설계한다. 구조와 기능은 명확하지만, 미의 경계는 모호하다. 현란하고 독특한 구성, 궁금증을 유발하는 형태로 눈을 현혹시켜 경이롭게 바라보게 하는 미도 있지만, 별거 아닌 단순한 점·선·면 하나로 잔잔한 감동을 주는 미도 있다.

그런 의미에서 고급스러운 샹들리에만 아름다운 건 아니다. 이 집의 거실 천장은 주변에 아무것도 없이 중앙에 사각형으로 간접조명을 비추고 그 안에 다시 단순한 사각형 메인 조명으로 끝을 맺는다. 깔끔한 멋. 단순미가 살아있다. 만약 조명이 부족하다고 벽 여기저기에 조명을 추가했다면 시선이 분산되고 혼란스러웠을 것이다.
이처럼 아름다움으로 집 안을 채우면 좋지만, 가장 우선해야 할 것은 거주자의 사용 목적과 환경에 맞아야 한다. 건축가 관점의 아름다움만 강조한 주거 공간은 불편하고 거추장스러운 공간일 뿐이다.


견고한 집에서 편안한 삶 키워
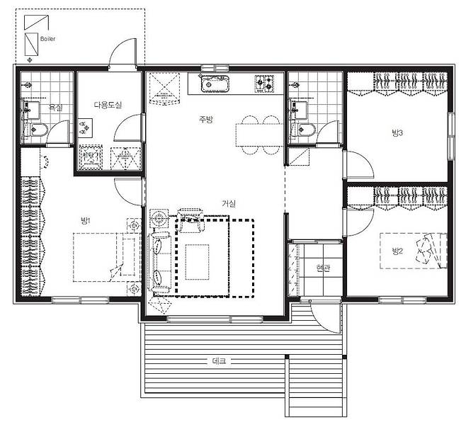
이 집은 건축주 부부의 시골 생활에 맞게 실용적이어야 했다. 그래서 불필요한 건 최대한 걷어냈다. 거실과 주방은 이웃과 왕래가 잦고 마을 사람들이 자주 모여 넓어야 했다. 그래서 가사 일을 하면서도 거실에 모인 이들과 함께 어울릴 수 있도록 거실과 주방을 한 공간으로 계획했다. 침실은 고단한 일과를 마치고 편안하게 쉴 수 있도록 파스텔 톤의 부드러운 느낌을 채웠다.
지은 지 30년 이상 된 집들의 공통점은 춥고 수명이 다했다는 것이다. 당시 집 짓는 건 공간을 구성하는 게 전부였다. 부실시공도 만연했었다. 이 집의 설계를 맡은 시공사 원완연 이사는 집을 대하는 생각부터 달라져야 한다고 한다.
“집은 우리 몸과 같이 매우 복잡한 구조로 되어 있습니다. 생명체와 같아 아무나 만들어서는 안 됩니다. 의사와 같이 전문 엔지니어가 만들고 유지해야 합니다. 그래야 생명력이 있는 건강한 주택을 유지할 수 있습니다.”

그가 말하는 건강한 주택이란 곧 거주자의 건강을 말한다. 집이 건강해야 그 안에 사는 사람도 건강해지기 때문이다. 그리고 집은 다음 세대까지 물려줄 유형의 재산이라 견고해야 한다고 강조한다.
“우리 조상들이 물려준 고건축물처럼 현세대에 적합한 건축을 후손에 물려줘야 하니 튼튼한 것은 기본이죠.”
그가 보이지 않는 구조재의 중요성을 강조하는 이유다.

최근 경주에 우려할만한 지진이 일어나면서 어느 때보다 안전한 주거 공간에 대한 사람들의 관심이 높아졌다. 경량철골조가 최근 관심받는 이유도 자연재해에 잘 견디기 때문이다. 시공사는 언제 일어날지 모르는 지진에 대비해 기본 경량철골조에 프레임을 추가해서 내진성능을 갖췄다.
이렇게 부부의 라이프스타일에 최적화하고, 지진에 강한 경량철골조로 외유내강을 갖춘 집을 완성했다.
생활패턴을 고려한 구성과 튼튼한 구조로 안전한 거주 공간을 얻은 부부는 바쁜 일상에서 새로운 여유를 찾았다. 편안하고 안전한 이 공간이 오래갈 거라는 믿음에서 나온 여유다.

