
안타깝지만 대한민국 도심 단독주택단지의 개별 필지는 분양 유인을 위한 부지 크기 조정으로 넓지 않다. 지구단위계획 지침에 의한 담장의 높이 제한으로 프라이버시 확보도 쉽지 않은 것이 현실이다. 결국 넉넉지 않은 대지를 효율적으로 사용해 그들만을 위한 아늑한 공간을 만들어낼 수 있는, 건축적으로 깊 이 있는 고민과 디테일한 솔루션이 필요하다. 비슷한 상황의 용인 기흥 동백지구 홀츠하임 2차 단지에 자리 잡은 ‘하늘 열린 집’도 설계 초기에 많은 논의가 있었고, ‘주변 상황, 대지, 옥외 공간, 매스의 입체적 맞춤을 통한 최적화’라는 과정이 필요함을 인지하는 것으 로부터 설계가 시작됐다.
진행 이화정 기자 | 글 자료 제이앤피플 건축사사무소 | 사진 장원준 작가, 장세환
DATA
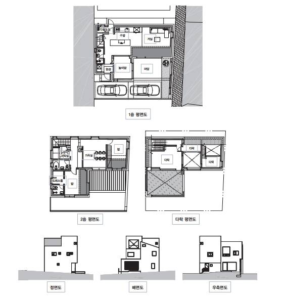
위치 용인 기흥구
지역/지구 일반주거지역
건축 구조 철근콘크리트조
대지면적 151㎡(45.67평)
건축면적 74.96㎡(56.09평)
연면적 126.61㎡(37.15평)
1층 65.75㎡(19.92평)
2층 60.86㎡(18.44평)
다락 29.23㎡(8.85평)
건폐율 49.64%
설계기간 2021년 3월~8월
시공기간 2021년 12월~202 2년 9월
설계 제이앤피플 건축사사무소
031-526-6495
www.jnpeople.co.kr
MATERIAL
외부마감 지붕 - 0.5t강판 불소 도장 돌 출이음
외벽 - 점토타일
데크 - 50T 화 강석 버너
내부마감 천장 - 지정 벽지
내벽 - 지정 벽지
바닥 - 강마루
단열재 외벽 - 9 0T 경질 우레탄 보드
지붕 - 150T 경질 우레탄 보드
캐노피 루버 방부목
난간 12 T 강화유리



내외부 경계를 허물다
‘내부 vs 외부 공간’이 아닌 대지 내 모든 공간을 내부 공간화하는 것이 가 능하다는 생각으로 시작했다. 처음부터 내외부 공간을 구분 짓지 않는 것이 공간의 효율성을 극대화하고, 프라이버시 가 확보된 외부공간을 구성할 수 있는 방법이기 때문이었다. 그 후 법적인 내용, 프라이버시 등 주변의 관계, 내외부 공간의 관계 등 을 고려해 필요한 부 분 을 조금씩 비우고 열어 나갔다.





아이의 안전한 실내외 놀이터
아장아장 여기저기 기어 올라가고 뛰어
내리는 천방지축. 보통 활동량이 많은
아이는 여기저기 돌아다니며 엄마의 시
야를 벗어나려 한다. 주방에 있는 엄마 는 늘 아이를 시야에 놓고 싶어 한다. 그 래서 1층 주방의 맞은편에 아이의 놀이 방을 놓고 시야를 열었다. 벽면 하부는 지저분할 수 있는 놀이기구를 가려주는 역할을 한다.
아이 방과 마당, 주방과 거실을 돌아다니는 아이는 언제나 엄마와 눈을 마주치며 교감할 수 있다. 주차장과 마당은 연결돼 필요에 따라 하나로 넓게 활용할 수 있다. 목재 루버가 뜨거운 햇볕을 막아주고 사이사이로 하늘을 볼 수 있다. 바람이 통하는 마당에서는 가족의 작은 이벤트가 이루어진다. 1층 놀이방에서 놀던 딸아이는 어느덧 마당에 나와 모래놀이를 한다. 놀이방, 마당, 거실, 주방은 아 이를 위한 안전하고 커다란 놀이터이다.




함께하는 곳에서 프라이버시와 소통이 공존하는 공간으로
언제나 어릴 것만 같았던 그 아이는 어느덧 성장한다. 부모와 늘 한 공간에 있을 것만 같았던 아 이는 잠자리 독립을 하고, 혼자 하고 싶은 것들이 생겨 자기만의 공간을 소유하고자 한다. ‘함께’ 보다는 ‘프라이버시’라는 키워드가 점점 중요해진다. 프라이버시는 다른 집과의 관계뿐만 아니라 가족 간에도 필요하게 된다. 그래서 동시에 가족이 서로 바라보고 소통할 수 있는 구조 가 필요하게 되는 것이다.
추후 1층 아이 방은 손님 방으로 이용될 것이다. 전체적으로 1층 은 공 용 공간, 2층 은 가족공간으로 구분된다. 2층의 가족실, 부부 방, 아이 방, 다락에서 자연스럽게 서로 시선이 공유되며 소통
하게 된다. 결국 집은, 특히 어린 자녀가 있는 집은 어느 정도는 시간과 생활 패턴의 변화에 대응할 수 있어야 한다.



기성복 그리고 맞춤 …
집에서 ‘맞춤’은 기본적으로 가족 구성원 개개인의 취향에 부합하는 내부 공간구성, 즉 ‘취향맞춤’을 의미하지만 그에 앞서 대지와 건물과의 관계에도 존재한다. 도심 내 작은 땅에 기성품 형태 의 집을 넣기란 어렵다. 넣는다 하더라도 공간의 효율성이 떨어진다. 효율적인 내외부 공간 확보와 주변 및 내외부 공간 간의 세심한 관계 설정이 필요하다. 이런 상황 에서 공간은 입체적으 로 해석되고 구성될 수밖에 없다. 이는 ‘대지와 건물의 입체적 최적화’를 의미한다.
제이앤피플이 설계하는 집들의 계획 과정에는 큰 공 통점이 있다. 집이 크던 작던 간에 기능에 부합하는 최적의 크기를 찾기 위해 노력한다는 것이다. 어정쩡하게 이유 없이 큰 공간은 없다. 크다면 커야 하는 당위성이 충분히 있어야 한다. 중이적 공간은 그 자체도 하나의 기능이며 필요한 곳에 넣는다. 자 투리 공간들을 모으면 새로운 가능성이 있는 공간을 만들어낼 수 있다. ‘하늘 열린 집’, 대한민국에서 오늘을 살아가는 한 아이가 있는 가족이 살아갈 곳. 그 아이에게 어릴 적 따 뜻한 감성의 공간으 로 기억되기를 진심으 로 바란다.





