복잡함을 덜어내고 가볍게 내려 앉은 이층집에서 단순함의 미학이 느껴진다.
집에서 가장 중요한 단열과 결로에 힘을 줘 보이는 것 만큼 튼튼한 집이 완성되었다.
높고 널찍한 공간감과 자연의 고즈넉함을 가득 담은 집으로 초대한다.





HOUSE PLAN
대지위치 : 경기도 남양주시
대지면적 : 608㎡(183.92평)
건물규모 : 지상 2층
건축면적 : 221.96㎡(183.92평)
연면적 : 279.59㎡(84.58평)
건폐율 : 36.51%
용적률 : 45.99%
주차대수 : 2대
최고높이 : 8m
구조 : 기초 – 철근콘크리트 매트기초 / 지상·지붕 –철근콘크리트
단열재 : 비드법보온판 2종1호(가등급) 190㎜(외벽), 220㎜(지붕), 145㎜(기초바닥)
외부마감재 : 외벽 – 롱와이드벽돌, 스터코 / 지붕 – 칼징크, 편백나무 루버, 스터코
담장재 :큐블록 190x190x190mm
창호재 : 47㎜ 삼중유리, 고단열 알루미늄 시스템창호(열관류율 1.0 이하)
에너지원 : LPG
구조설계(내진) : 미담구조엔지니어링(Ⅶ-0.199g)
감리 :엔코텍종합건축사사무소
설계 : 엔코텍종합건축사사무소 + THEHARI하우징
시공 : THEHARI하우징
가로로 길게 이어지는 시선 속, 단순하지만 개방감이 느껴지는 집




건축주가 원한 키워드는 두 가지였다. ‘모던’과 ‘심플’. 가로로 길게 이어지는 축을 중심으로 완성된 집은 간결한 구조로 균형미와 도회적인 분위기를 물씬 풍긴다. 1층의 두 면에는 큰 창으로 파노라마 뷰를 만들어 이국적인 주택의 인상을 보여 준다. 주변의 주택과 어우러지면서도 포인트 컬러와 자재에서 개성을 드러내고 있는 집이다.
세컨드 하우스를 계획 중이던 건축주는 좋은 부지를 둘러보기 위해 남양주를 찾았다. 그곳에서 ‘THEHARI하우징’ 이봉수 대표를 만났다. 이 대표는 설계부터 시공, 분양까지 한 채널에서 진행하는 주택신축판매업을 운영하고 있어 이번 프로젝트도 준공 후 분양하는 프로세스로 진행했다. 건축주는 이미 몇 차례 신축주택에서 거주한 경험이 있었기에 누수, 결로, 단열이 주택 생활에 얼마나 중요한지 체감하고 있었다. 이 대표는 매 공정마다 건축주와 긴밀한 소통을 이어가며 완성도 높은 집을 지을 수 있었다고 전했다.
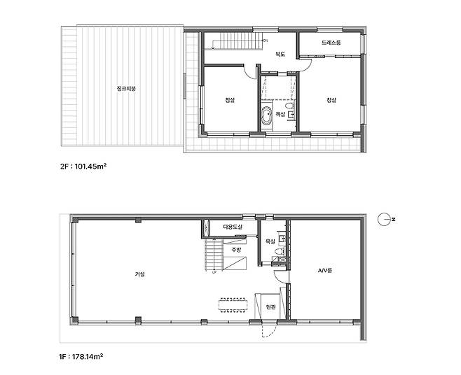
집은 두 차례에 걸쳐 공사가 진행되었다. 건축법상 60평(200㎡) 미만의 공사만 건축주 직영공사가 가능하기에 1차 건축을 60평 미만으로 실시한 후 수평 증축을 통해 1층 거실부를 2차로 시공했다.




INTERIOR SOURCE
내부마감재 : 벽·천장 – 벤자민무어 친환경 도장 / 바닥 – 수입 타일
욕실 및 주방 타일 : 수입 타일
수전 등 욕실기기 :아메리칸스탠다드
주방 가구 : 제작가구
조명 : T5, 3인치 매립등, LED 라인등
계단재·난간 : 멀바우
현관문 : 47㎜ 삼중유리, 고단열 알루미늄 시스템도어(열관류율 1.0 이하)
방문 : 목재 제작도어



내부 역시 최대한 심플한 구성으로 자연의 풍광을 시원스럽게 담을 수 있도록 계획했다. 거실은 약 3.4m의 높은 층고와 벽 구분 없이 하나로 열린 공간이 웅장한 개방감을 형성한다. 건축주는 창호 프레임과 거실 벽면에 블루 컬러를 적용해 포인트를 주고자 했다. 흔하지 않은 컬러의 사용으로 집의 특별함을 더했다.
1층의 또 다른 포인트는 바로 A/V룸. 건축주는 세컨드 하우스에 대한 계획이 A/V룸에서 시작했다고 말한다. 그만큼 집에서 중요한 공간이기에 자주 사용하지 않는 주방의 면적을 줄이고 A/V룸의 면적을 최대한으로 확보했다. 음향 장비들과 함께 여유 공간이 넉넉하게 자리 잡을 수 있도록 조성했다.
두 개의 방과 메인 욕실로 구성된 2층 공간은 화이트 톤으로 차분하게 통일감을 주었다. 2층 공간을 둘러싸고 작은 발코니 공간을 마련해 외부와의 접점을 더했다.

MORE ABOUT
THEHARI하우징에서 진행한 남양주 주택 프로젝트. 콤팩트하고 실용적인 구조로 단독주택부터 가족의 세컨드하우스까지 다목적으로 활용할 수 있다.


건축가 이봉수 : THEHARI하우징

https://blog.naver.com/architect_1978
진행_조재희 | 사진_변종석
ⓒ 월간 전원속의 내집 2024년 4월호 / Vol.302 www.uujj.co.kr