전원 생활의 낭만이 넘치는 집
FOREST VIEW HOUSE

울창한 숲을 오롯이 담아내는 가족의 두 번째 집.
한 번의 경험을 바탕으로 불편했던 점들을 보완해 가족에게 꼭 맞춘 집을 완성했다.
DIY로 만든 가구와 자유롭게 마당을 뛰노는 아이들, 그리고 드넓은 자연까지.
주택 생활에서 누릴 수 있는 낭만이 가득한 집에는 가족의 웃음소리가 가득하다.

경상남도 사천시의 주택 단지 안, 울창한 숲을 바라보며 우직하게 자리 잡은 집을 만났다. 군더더기 없이 알차게 정돈된 집은 가족의 두 번째 보금자리다. 주택 단지가 조성된 초창기, 지금의 집 바로 맞은편에 첫 집을 짓고 만족스럽게 살았던 가족은 세 아이가 성장해가면서 그에 맞춘 새로운 집을 계획하게 되었다. 지금의 집에 입주한 지 약 두 달, 가족은 더할 나위 없이 만족스러운 매일을 살고 있다.
부부는 첫 번째 집에 이어 다시 한번 ‘로드하우징’과 프로젝트를 진행했다. 담당 현장 소장님과 소통하며 도움을 받았던 경험이 너무 만족스러워 고민 없이 선택했다고 한다. 두 번째인 만큼 부부는 원하는 것과 보완하고 싶은 점들이 명확했다. 아내는 밤낮으로 공부하며 직접 설계를 구상했다. 실용성과 남향의 숲뷰를 최고 우선순위로 두었으며, 아이들이 있는 집의 수고를 덜 수 있도록 세부 요소들을 적용했다.




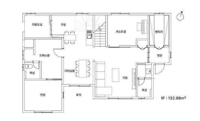
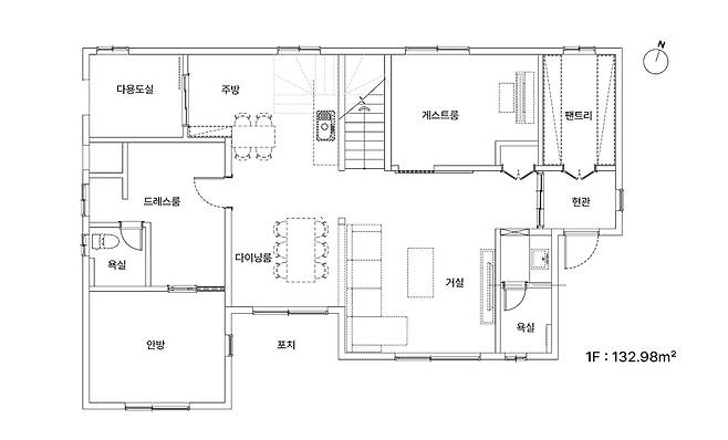
PLAN _ 1F



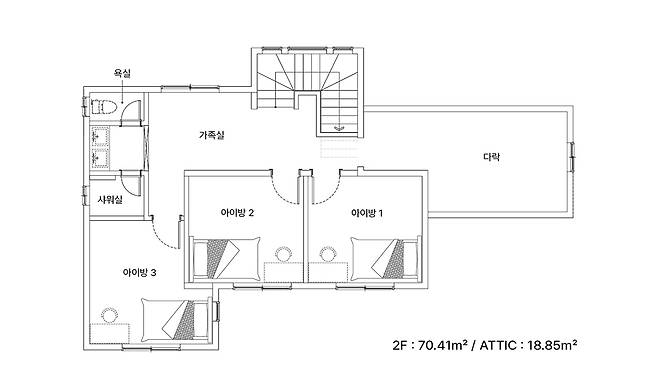
세 아이에게 각자의 방을 만들어 주기 위해 2층 전체를 아이들 공간으로 꾸리고, 1층에 공용 공간과 안방, 게스트 룸을 배치했다. 푸른 숲이 펼쳐지는 남측에 창을 적극적으로 열고, 앉았을 때 시선이 딱 맞도록 창의 높이를 살짝 낮게 설치했다. 독일식 시스템 창호의 틸트앤턴 방식은 아이들이 사용하기에 다소 무겁고 낯설어 융기 독일식 시스템 창호 중 슬라이딩 형식을 선택했다. 또한 이전 집은 3m 정도로 층고가 높았는데, 울림이 심하고 난방과 청소가 어려웠다. 이를 고려해 새로운 집의 층고는 거실 2.6m, 방은 모두 2.4m로 맞추었다. 대가족의 살림을 말끔하게 정리하기 위해 수납 공간을 착실히 챙기는 것도 포인트였다. 넓은 다락 공간을 포함해 집안 곳곳 수납장을 마련해 두었다.



집에 들어서면 거실과 다이닝룸 사이, 액자형 가벽 너머로 보이는 커피 바가 시선을 사로잡는다. 취미 이상으로 커피를 사랑하는 남편을 위해 다이닝 공간 한편에 커피 바를 조성해 카페 공간처럼 꾸몄다. 베이킹과 요리에 진심인 아내는 주방 구조를 넓고 효율적으로 구성하는 데에 신경 썼다.
PLAN _ 2F






“주택 생활을 즐기려면 라이프 스타일이 맞아야 해요.”
최근 공구 수집에 재미를 붙였다는 부부. 벤치 테이블, 자전거 보관소 등을 직접 만들고 소소하게 가구를 수리하며 지내는 주택에서의 삶이 행복하다고 말한다. 완벽하게 가족 맞춤으로 완성한 집에는 부부의 부지런한 손길과 따뜻한 추억이 채워질 일만 남았다.
HOUSE PLAN
대지면적 : 671㎡(202.98평)
건물규모 :지상 2층 + 다락
거주인원 : 5명(부부, 자녀 3)
건축면적 : 132.98㎡(40.23평)
연면적 : 222.24㎡(67.23평)
건폐율 : 19.48%
용적률 : 29.40%
주차대수 : 1대
구조 : 경량목구조
단열재 : 인슐레이션 가등급 (에코배트)
외부마감재 : 지붕 – 세라믹 기와 마감 / 외벽 - 세라믹사이딩
내부마감재 : 벽 – 동화자연마루 디자인월 그란데 화이트, 실크벽지 / 바닥 –에코 돌마루(건축주 직접 시공)
욕실 및 주방 타일 : 다올세라믹
수전 등 욕실기기 : 콜러, 아메리칸스탠다드
주방 가구 : 에넥스
조명 : 프로 라이팅, 히트 조명, 공간 조명, mk 조명, 록스몰, 비츠 조명, ago 라이팅, 광진 조명
현관문 : 커널시스텍
방문 : LX하우시스 4면 패킹 도어
중문 : 우와도어 슬림 양개형 여닫이 도어
붙박이장·아이방 가구 : 에넥스
데크재 : 현무암 석재 데크
창호재 : 융기 독일식 시스템 창호
전기·기계 : 재원전기
설비 : 진명설비
설계 : 디엔에이건축그룹
시공 : 로드하우징·㈜RD종합건설 1577-1614 http://roadhousing.co.kr

취재_ 조재희 | 사진_ 변종석
ⓒ 월간 전원속의 내집 2023년 6월호 / Vol.292 www.uujj.co.kr