[풍성한 이야기로 채운 단 하나의 층 ③ - POOL 붉은 벽돌의 박공집은 유년 시절의 길고도 찬란한 여름을 닮았다] 아이들이 목가적인 풍경 속에서 자연의 풍요를 누리며 커가길 바랐던 건축주 부부. 실내 바닥 레벨과 천장 높이에 변화를 주고 여러 모양의 마당을 갖춰, 단층이지만 입체적인 긴여름집에서 그 소망을 실현했다.




대지는 경상남도 진주시 장대산 자락에 자리를 잡아 남쪽으로는 진주 8경 중 하나인 비봉산을 바라보고 있었다. 건축주 부부는 아이들이 산과 들, 하늘을 바라보며 자랄 수 있는 땅을 오랫동안 찾아다녔다고 했다. 찬란하게 빛나는 여름 같은 유년 시절. 그 시간을 담을 공간이 마당을 바라보며 길게 펼쳐진다.
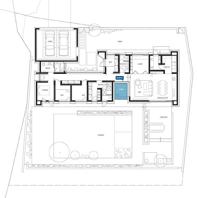
진입 동선은 북쪽 도로변에 배치한 주차장과 뒷마당 사이로 계획하였다. ㅡ자 평면의 단층집은 현관을 중심으로 공용 공간과 개인 공간으로 분리된다. 거실, 다이닝룸, 주방(LDK)은 하나의 개방형 공간이다. 다이닝룸은 통창 너머로 마당의 다이닝 가든과 연결된다. 다이닝 가든은 주방, 다용도실과의 서빙 동선을 고려하고 놀이마당을 조망할 수 있도록 계획했다.


공용 공간은 박공지붕 형태를 살려 약 5m의 높은 층고를 확보해 개방감을 극대화했다. 개인 공간은 아늑함을 위해 2.4m의 층고로 계획하고, 박공지붕 사이 공간에는 다락을 두었다.
준공 후 1년, 마당이 정리되었으니 한번 놀러 오지 않겠냐는 건축주의 전화를 받았다. 수영장 앞 모래 놀이터, 다이닝 가든을 위한 텃밭, 나무 아래 야외주방 놀이터, 마당을 한 바퀴 도는 킥보드 레일 등 가족의 손으로 천천히 완성한 마당이 우리를 기다리고 있었다.
아이들이 하나하나 심은 꽃과 풀이 가득한 다이닝 가든에서 바비큐를 즐기며, 집 안팎을 누비는 아이들을 바라보았다. 단층으로 너른하게 펼쳐진 집이라 편안함을 주었고, 분리된 듯 이어져 있는 입체적 공간들이 즐거움을 주었다. 지나고 보면 찰나인 유년 시절인데, 이곳에서만큼은 ‘긴여름집’이란 이름처럼 길고 아름다운 시절을 보낼 수 있을 것 같았다.

Architect’s say

HOUSE PLAN
대지면적 : 887㎡(268.31평)
건물규모 : 지상 1층
거주인원 : 5명(부부, 자녀 3)
건축면적 : 177.29㎡(53.63평)
연면적 : 171.58㎡(51.90평)
건폐율 : 19.99%
용적률 : 19.34%
주차대수 : 2대
구조 : 철근콘크리트 구조
단열재 : 비드법단열재 2종1호, 압출법단열재 특호
외부마감재 : 심양 고벽돌스무스 240 조적
담장재 : 노출콘크리트
창호재 : 이플러스 AL시스템창호
열회수환기장치 : 나비엔 에어원
에너지원 : LPG
전기·기계 : 극동기술단
설비 : 진경ENG
구조설계(내진) : 일맥구조
조경·시공 : 건축주 직영
설계·감리 : ㈜플라노건축사사무소

INTERIOR SOURCE
욕실 및 주방 타일 : 윤현상재 타일, 세라미코 천연세라믹
수전 등 욕실기기 : 아메리칸스탠다드
주방 가구·붙박이장 : 가람싱크 주문제작
조명 : 지노사파티 Astep 펜던트 조명
현관문 : 리치도어 스틸도어
중문 : 대원목공 주문제작
방문 : MDF+도장 제작도어





건축가 이원길, 김근혜, 박민성 : 플라노건축사사무소
플라노건축사사무소는 성균관대학교 건축학과 동문인 (좌측부터) 이원길, 김근혜, 박민성 책임건축가가 지난 2017년 설립했다. ‘PLANO’는 계획, 설계라는 뜻을 가진다. 사용자와 땅에 대한 충분한 이해를 바탕으로 단순하고 미학적인 공간을 계획한다. plano.plan | www.plano.kr
글_ 김근혜 | 사진_ 최용준 | 구성_ 오수현
ⓒ 월간 전원속의 내집 2023년 8월호 / Vol.294 www.uujj.co.kr