
안녕하세요? 저희는 두보유 가족입니다. 두보유는 저희 가족의 이름을 한 글자씩 따서 만든 단어인데요. 아이가 태어나기 전에는 '두보'라 불렸지만, 9년 전부터는 두보유가 되었답니다. "두루두루 함께 하고, 보듬어주며 유순한 마음 갖고 사는 집"이라는 이름으로 저희 집의 이름도 두보유라 지었습니다. 집을 지으면서 남편과 아이패드로 그려 만든 저희 집 로고 입니다. 자세히 보면 삐뚤 빼뚤하고 위치도 잘 안 맞지만 사랑 가득한 마음으로 신나게 만들었습니다.
남편과 저는 결혼할 때부터 '언젠가는 꼭 주택에 살자!' 는 꿈을 꾸었습니다. 신혼집부터 아이가 태어나고 그 아이가 아홉살이 되기까지 아파트에 살았지만, 주택에 살고 싶다는 염원을 이루기 위해 틈틈히 저희가 살고 있는 지역의 땅은 거의 다 본 것 같네요. 1년이 넘게 땅을 보았습니다. 그런데 정말 거짓말처럼 딱 마음에 드는 땅이 저희가 생각했던 예산에도 맞아 주택을 건축하는 꿈을 이루게 되었습니다.
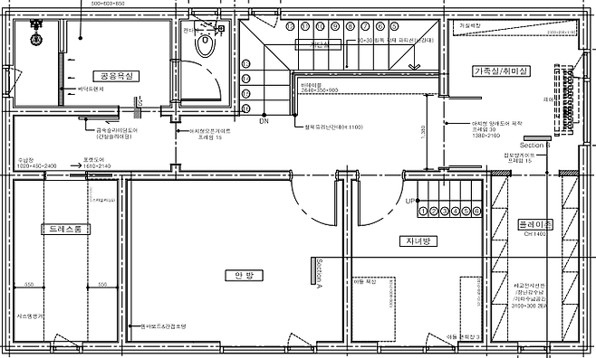
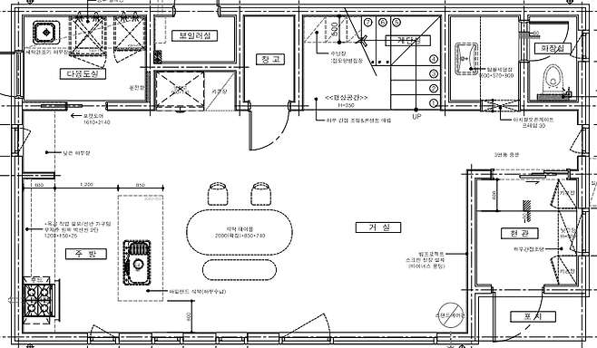
도면


두보유 도면입니다. 손님을 자주 초대하는 저희 가족의 특성 상 1층에는 방이 없이 주방과 거실을 연결하여 최대한 넓은 공간이 나오도록 선택했고, 2층에 모든 방과 드레스룸까지 올려서 손님맞이에 불편함이 없도록 설계했어요.
외관

저희는 1층 20평, 2층 20평. 총 40평의 2층 단독 주택입니다. 2022년 9월에 입주하였고 마당 조경은 따뜻한 봄이 오면 해야할 것 같아요. 조경은 또 다른 건축의 시작이더라고요. 숨 고르기를 좀 하고 내년 봄에 예쁘게 꾸며볼 예정이에요.

남향 집이라 정말 해 뜰 때부터 해 질 때까지 햇빛을 받는 두보유랍니다. 그리고 주택지 코너에 위치해있어서 차 세우기도 또 드나들기도 매우 좋답니다. 기본 박스 형태의 집이라 마인 크레프트 느낌이 나는 건 저만 그런가요? 그래도 건축하러 오시는 분들이 정말 튼튼하게 잘 지은 집이라 해주셔서 기분이 좋아요.
저는 주택에 살기 전부터 아파트에서도 방향과 채광을 정말 중요하게 생각했었어요. 다행히 집을 짓는 땅의 모양과 전체적인 방향이 남향이라 집 자체도 그렇게 되었답니다. 그래서 거실의 창을 아주 크게 내었고, 주방은 세로로 긴 창을 규칙적으로 배열해서 프라이버시는 최대한 지키면서 채광도 고려하였고, 거실에서 바라보는 마당의 연속성도 생각했어요.

거의 이사 초기 사진이라 마당이 지금보다 더 정신이 없네요. 마당이 있어 좋은 점은 매일 그림 같은 하늘을 볼 수 있다는 점입니다. 문 하나만 열면 마당이 펼쳐져 높은 아파트보다도 하늘이 더 가깝게 느껴진다는 점이 매우 신기하고 좋아요. 아이가 있다면 층간 소음과의 해방 다음으로 좋은 점이 이 '하늘'입니다.

요즘은 빔 프로젝트도 매우 상용화되어서 이렇게 하얀 벽을 이용하여 아이들과 마당에서 영화도 볼 수 있어요. 10월 말 쯤이어서 밤에는 그래도 쌀쌀했지만 참나무로 불을 피우고 친구들과 함께 따뜻한 온기를 느끼며 감상했답니다.

아이의 친구가 오로라 가루라며 선물을 줬는데, 불을 피우고 잦아들 즈음에 가루를 휙 뿌려주면 저렇게 오묘한 초록과 보라색의 불빛이 난답니다. 영화도 보고 불멍도 하고 오로라 가루까지 아이도 매우 좋아하지만 저희 부부도 아주 애정하는 마당에서의 시간입니다.
현관

창호는 모두 독일식 창호이고 살라만더 제품입니다. 가장 신경을 많이 쓴 부분이 단열이어서 많은 고민하지 않고 바로 살라만더를 선택했습니다. 저 노랑 벽지는 정말 정말 고민을 많이 했는데, 우드 톤의 현관문과 잘 어우러져서 따뜻한 느낌을 줍니다. 식물하고도 잘 어울려요.

신발장은 약간 띄워 아래쪽에 조명을 했어요. 키큰장과 중간장의 깊이가 깊어서 많은 양의 신발이 수납이 가능하답니다. 그리고 중문은 간살 슬라이딩 도어를 하고 싶었는데 슬라이딩 도어를 하기에는 공간이 부족하여 3연동 도어로 선택했습니다. 최대한 투명하게 해서 더 넓어 보이도록 선택했어요. 사실 이 중문 유리를 불투명하게 할까 굉장히 고민했는데, 앞쪽에 보이는 아치가 예뻐서 투명 유리로 결정했답니다.
주방

저희 집 현관을 들어오면 오픈된 거실과 주방이 보입니다. 1층이 20평이라 그리 넓지 않아 최대한 주방을 오픈하였고, 우디크에서 눈여겨보았던 큰 식탁을 주방과 거실 사이에 두어서 여러 용도로 사용하고 있습니다.
거실과 주방의 경계가 뚜렷하지 않아서 대면형 주방을 선택하였고, TV와 소파가 없는 거실이다보니 큰 식탁을 두어 주방과 거실이 연결되는 동선입니다. 아이가 책을 읽거나 숙제를 할 때 주방 일을 하면서 같이 있다는 안정감을 줄 수 있다는 점이 가장 큰 장점입니다.

대면형 주방을 선택하면서 고민한 이유는 거실에서 들어오면서 보이는 주방이 지저분해 보이지는 않을까가 가장 큰 고민이었습니다. 하지만 식기세척기를 두면서 많은 고민이 해결되었어요. 왜 다들 꼭 필요한 가전 이모님이라고 하시는지 너무 너무 잘 알겠더라구요. 아일랜드 식탁 위에 가장 지저분해 보이는 이유인 식기건조대를 놓을 이유가 없어졌고, 그 덕에 조금 더 깔끔한 뷰의 주방으로 관리하기가 쉬워졌습니다.
그리고 상부장을 달지 않고 원목 선반을 달아 공간감을 유지하면서 허전하지 않게 선택했습니다. 주방은 마지막까지 고민이 많았고 변경을 많이 했던 공간이었는데, 결론적으로는 상부장 없이 대면형 주방으로 선택한 것에 굉장히 만족합니다.

조리대와 아일랜드 식탁 사이의 거리도 충분하여 주방일을 할 때에 매우 편리하고, 수납을 할 수 있는 공간들이 매우 깊어서 충분한 수납이 되어 상부장이 없이도 잘 사용하고 있습니다. 식기세척기는 사진 앞쪽으로 설치하여 수납장의 연속성을 중시하였습니다.
후드는 요즘 원통형 후드를 많이 사용한다고 하여 추천을 받았었는데, 아일랜드 중간에 내려오는 후드는 시선을 끊어지게 만들어 주방과 거실의 공간이 조금 좁아보이지는 않을까 하여 끝에 화이트 침니 후드로 결정하였습니다.

아래 거실 사진과 연속해서 보시면 저희 집의 동선이 어느 정도 연결이 되실 것 같은데요. 현관에서 들어와 작은 거실과 계단밑 아이 도서 공간을 지나면 큰 테이블 겸 식탁, 대면형 주방으로 이어지는 구조입니다. 20평의 공간에서 최대한 뻥 뚫린 느낌을 갖게 하고자 이렇게 설계하였고, 다행히 같은 평수 대비 굉장히 넓어 보인다고들 하십니다.
거실

주방 쪽에서 바라본 거실입니다. 요즘은 아이가 컴퓨터로 수업을 듣거나 숙제를 해야 하는 경우가 많아서 꼭 거실에 컴퓨터를 두어야 했습니다. 오늘의집에서 주문한 레트로 하우스 컴퓨터 책상이구요. 우디크 식탁과 색상도 너무 잘 맞고 템바 보드의 느낌도 동일하여 모두 다 세트 가구라고 착각하실 정도입니다. 가격 대비 아주 만족하는 상품이에요. 턴 테이블도 오늘의집에서 구매했는데 지금은 저 동일한 제품이 없는 거 같더라고요.

책상이 정말 튼튼해서 잘 사용하고 있습니다. 양쪽에 템바 보드 모양이 서랍인데 아주 부드럽게 열리고 또한 인테리어적으로도 충분히 예쁘게 꾸밀 수 있어서 정말 실용성이 다양한 제품입니다. 서랍의 높이도 높아서 책을 세워둘 수도 있습니다.

아이가 좋아하는 디즈니와 해리포터의 LP가 있어서 자주 듣습니다. 정말 고장 한 번 없이 엄청난 감성을 안겨주는 저희 집 분위기 메이커에요.

저 뒤쪽에 보였던 팔레트는 직접 만든 사진책 수납 공간입니다. 사실 남편의 친구분이 5년 전 쯤 만들어 선물해주신 인테리어인데, 주기적으로 매번 사진 책을 만드는 남편 덕분에 쉽게 추억을 꺼내볼 수 있는 공간이 저희 집의 킬링 포인트가 되어줍니다. 벌써 거의 25권이 넘는 사진책들이 쌓였네요. 벽돌 사이 사이에는 아이가 바다에 갈 때마다 주웠던 조개 껍질들도 고이 넣어두었어요. 추억 가득한 공간입니다.

저희는 이사 오기 전부터 거실에 소파와 TV가 없이 '거실의 서재화'로 생활을 해왔습니다. 그래서 주택을 설계할 때도 그렇게 하였고, 2층으로 올라가는 계단 밑 공간은 아이의 독서 평상으로 꾸몄습니다. 좋아하는 책들을 꽂아두고 이 공간에서 누워서 자주 책을 읽습니다. 평상이다 보니 거북 목을 하고 책을 읽어 지금은 보니타 빈 백을 사서 올려두었습니다.

가지고 있는 책이 굉장히 많아서 1층 계단 밑 도서관에 넣을 책들은 아이가 직접 골랐습니다. 최대한 손이 많이 가는 책들이어야 자주 꺼내 읽을 것 같아서 이렇게 결정했고 정리는 제가 최대한 같은 시리즈별, 종류별, 크기별로 해서 깔끔해보이도록 했습니다.


연말에는 크리스마스를 맞이하여 두보유 거실도 이렇게 바뀌었답니다. 빈백에 앉아 케빈도 만나고 캐롤도 들어요. 트리는 이번에 장만한 트리 데코 그레이스 트리입니다. 예쁘고 포근합니다.
1F / 화장실

1층의 아치 안쪽은 건식 세면대와 변기실이 따로 있습니다. 이 공간이 정말 예쁜데 사진이 잘 안 나오네요. 현관으로 들어와 바로 손을 씻기도 편하고 변기실도 독립적으로 있어서 더 편해요. 우디크의 원형 오크 거울인데 자칫 올드할수도 있는 느낌의 타일을 감성적으로 꾸며줍니다. 고급진 느낌이지만 또 포근한 느낌도 함께 주는 공간입니다.
핸드 워시는 록시땅 제품으로 큰 출혈을 감내하고 장만했습니다. 저런 실사용 제품들도 하나하나 인테리어가 되다 보니 신경이 쓰이더라고요. 록시땅 공홈에서 저 원목 트레이까지 셋트로 구매할 수 있었습니다.

현관 중문을 열고 들어오면 이렇게 아치 형태의 브릿지가 있고, 건식 세면대가 있습니다. 주방과 같은 우드장으로 선택하여 최대한 통일성을 주었고, 우디크의 라탄 원형 거울을 이용하여 거실의 큰 테이블과도 같은 느낌을 주었습니다.

그리고 건식 세면대 반대편으로는 귀여운 집 모양의 무늬가 있는 문이 있는데, 여긴 변기만 둔 변기실입니다. 1층은 대부분 손님용으로 욕실을 사용할 것을 생각하여 샤워실은 두지 않았고, 최대한 거실과 주방이 넓어 보여야 했기에 이렇게 설계하였습니다.

문을 열면 있는 변기실입니다. 이 공간은 특이하게 반은 타일을 붙였고 위쪽 반은 벽지를 붙였습니다. 처음에는 괜찮을까 고민을 많이 했는데, 완성된 인테리어는 정말 예뻤어요. 포근한 느낌도 있고 모던한 느낌도 있어서 정말 마음에 드는 공간이 되었답니다.

변기 앉으면 보이는 공간입니다. 모던하우스에서 감귤 향이 나는 방향제를 사서 놓아두었는데 원래 집에 있던 귤나무와 잘 어울릴 것 같아 이곳에 두었습니다. 주택을 지으면서 좋은 점 중 하나는 창문을 내고 싶은 곳을 선택할 수 있다는 것이었는데, 1층도 2층도 욕실과 변기실에 모두 창문을 내어서 정말 좋았습니다. 환기가 잘되는 욕실을 유지할 수 있어 정말 좋아요.
계단실

2층과 연결되어 있는 계단을 올라오면 보이는 작은 복도 겸 공간입니다. 지금은 이 공간에도 트리가 있는데, 둥그런 조명 밑 공간을 어떻게 꾸미면 좋을지 고민하고 있어요. 저 철제 아치문은 아이의 플레이룸으로 통하는 곳입니다. 시공해주시는 분들이 저 문을 제작하시느냐고 많은 고생을 하셨습니다. 그래서 정말 예쁘게 임팩트 있는 공간이 되었습니다.

아치 도어의 옆 쪽으로 보이는 방은 아이 방입니다. 이사 오면서 아이가 혼자 자는 독립기념일을 맞이하였는데, 설계하고 시공해주시는 분들이 정말 신경을 많이 써주신 공간 중 하나입니다.
2F / 아이방

아이방은 들어가자마자 우드 철제 계단으로 자는 공간이 분리되어 있어요. 저 공간 덕분에 이사하는 날부터 혼자 자기 시작해서 독립기념일도 기억하고 있답니다. 수면등도 달려있고 포근한 공간이라 아주 좋아합니다. 지금은 따수미 텐트도 침대에 설치해주었어요.
계단 밑 공간에 수납도 가능하고, 옷을 걸 수도 있어서 학교 교복이나 체육복을 걸어두었더니 혼자서도 잘 찾아 입고 학교 갈 준비도 스스로 하는 어린이가 되었답니다.아이방은 층고가 워낙 높아서 웬만한 조명으로는 조도가 나오지 않았습니다. 그래서 저 3중으로 된 조명을 선택했고 아이방과 잘 어울리며 밝게 유지해주는 아이템이 되었습니다.

아이방에 있는 계단을 올라서면 보이는 공간입니다. 슈퍼 싱글 사이즈의 매트리스를 두고도 공간이 매우 많이 남아 실제로는 굉장히 넓게 느껴진답니다. 그리고 천창도 있어서 밤엔 달빛이 은은하게 듭니다. 그래서 침대 옆 수면등도 반달과 보름달이 연상되는 노란 조명을 선택했습니다.

주택에 오고 나서는 저녁에도 피아노를 칠 수 있어서 아이가 매우 좋아합니다. 시도 때도 없이 피아노를 열고 연주를 합니다. 아직 연주라고 하기엔 거창하지만 스스로 악기를 연주하며 좋아하는 모습이 신기하기도 합니다. 저는 어릴 때 피아노 학원에 가는 게 싫었었는데 아이는 저와 다르네요.
자는 공간에도 책장을 놓아 자기 전에 책을 읽어줍니다. 아직도 자주 책을 읽어달라고 해서 여력이 되는 한 최대한 읽어주려고 하는데 힘이 드는 날도 많네요.
2F / 플레이룸

아치 도어 안쪽의 플레이룸은 아이의 작은 책상과 레고방으로 이루어져 있습니다. 레고를 정말 정말 좋아해서 이사 오기 전에는 모든 수납장이 레고였는데 이사를 오면서는 레고를 둘 수 있는 공간을 미리 마련했어요.
공부방

작은 책상은 리바트 꼼므 제품인데 정말 오래 잘 사용하는 제품 중 하나입니다. 리바트 꼼므와 뒤편에 보이는 가로장도 리바트 제품입니다.
책을 많이 올려두면 책장의 뒤판과 선반 사이가 벌어져서 판이 휘는 책장도 있는데, 저 리바트 책장은 아주 튼튼합니다. 꼼므도 오히려 아이 책상이라고 구매했던 큰 책상보다 더 자주 사용하게 되고 아이도 편하게 앉아 공부할 수 있는 책상 중 가장 좋은 아이템입니다.

비룡소 북클럽을 하면서 받은 책들은 전면장으로 하여 꽂아두었는데 책들의 크기가 워낙 들쭉날쭉하여 전면장은 비룡소의 책들로 넣어주었습니다. 비룡소의 책들이 좋은 책이 많아서 전면장에 두었을 때 아이도 훨씬 꺼내 읽는 빈도가 잦았습니다.
레고방

레고들은 정말 엄청 많습니다. 맨 위 선반까지 양옆으로 꽉꽉 차있어요. 숙제를 하고 나서는 이 공간에서 레고 피규어들을 가지고 재미있게 놀거나, 남은 레고 부품을 모아놓은 것들로 다른 것들을 만들며 시간을 보냅니다. 아이가 제일 좋아하는 공간이 될 수 밖에 없지요.

높이가 1m 40cm 정도 되는 공간이라 지금은 충분히 바로 서서 놀 수 있지만 조금 더 크면 정말 비밀기지 처럼 사용하지 않을까 싶어요.

저 출입금지 입간판은 아이가 미술학원에서 스스로 만들어온 작품입니다. 저 공간에 놓을 거라면서 2주에 걸쳐 만든 연작이라고 하더라구요. 그래도 친구들이 놀러 오면 출입금지 간판을 슬쩍 치워 같이 노는 모습이 벌써 다 컸나 싶은 날도 있답니다.
2F / 화장실

이 곳은 욕실입니다. 위쪽은 우드 타일, 아래쪽은 테라조 타일을 선택해서 톤 다운 되면서도 따뜻한 느낌의 욕실을 원했어요. 우드 타일은 일찍이 찜 해놓고 꼭 욕실은 우드 타일로 해달라고 부탁 드려 이렇게 완성되었습니다.
저는 욕실에 곰팡이가 생기는게 정말 싫었습니다. 그래서 세면대도 안으로 넣는 것 보단 밖으로 빼내어서 항상 손쉽게 닦고자 하였고, 샤워를 하는 샤워실을 만들면 그 유리문에 끼는 물 때도 별로여서 욕조를 최대한 분리하여 두었고 욕실을 길게 빼서 머리를 말리거나 하는 공간은 건식으로 사용할 수 있도록 하였습니다.

물 받아 물놀이 하길 좋아하는 아이를 위해 욕조는 필수 아이템이었습니다. 욕조 옆 쪽도 바닥과 아래쪽 벽 타일을 붙여달라 부탁 드려 통일감을 주었습니다. 조적 욕조를 하고 싶었지만 욕조를 두지 않고 타일만 붙여 욕조로 사용하는 건 아무리 시공을 잘해도 누수의 위험이 있다고 하셔서 욕조 벽에 타일을 붙여 조적 욕조의 느낌을 주었습니다. 안전하고 또 만족한 인테리어가 되었습니다.

비누 거품이 가득한 욕조에서 스노클링이라. 무튼 하교하고 집에 오면 물놀이를 하며 신나게 스트레스를 푸는 K-초딩입니다.

욕조 쪽에서 바라보면 저 문은 변기실입니다. 1층과 2층 모두 변기실을 건식으로 사용할 수 있게 두었고, 변기 옆에 수도를 설치하여 청소할 때 사용할 수 있도록 하였습니다.
건식욕실에 대한 로망이 있었어서 최대한 변기실은 1,2층 모두 분리하였습니다. 욕실 청소를 하 고나면 변기가 젖고 그래서 변기 아래쪽 실리콘에 곰방이가 생기는것들을 최소화하고 싶은 마음이 컸어요. 대신에 변기실도 청소를 할 수 있게 모두 호스를 달아 가능하게 하였습니다.

변기에 앉으면 보이는 타일입니다. 변기실의 타일은 바닥과 앞쪽 벽은 헤링본 모양으로 맞춰 나무 질감의 타일을 이어붙여 연속감이 느껴지고 모든 벽을 이렇게 하면 정신이 없을 것 같아서 나머지 양쪽 벽은 기본 흰색 타일을 붙였습니다.
마치며

지금까지 두보유 집들이를 봐주셔서 감사합니다. 몇개월 동안 설계하고 고민했던 부분들을 글로 적으며 올해 주택을 지어 이사한 꿈을 이룬게 더욱 실감이 나네요. 기회가 좋았고 또 상황들이 잘 맞아 떨어져서 이렇게 집을 짓게 되어 정말 감사한 마음 뿐인 요즘입니다. 게다가 이렇게 집들이도 권유하여 주셔서 정말 감사합니다. 집이 주는 안정감 속에서 모두가 건강하고 소소한 하루하루를 보내며 따뜻한 연말을 보내시면 좋겠어요. 제 블로그와 인스타그램도 있으니 놀러오세요!

