가난이 모이지만 희망의 싹이 자랐던 그곳, 판자촌
![1967년 수해를 입은 청계천 판자촌 모습 [오월의봄 제공. 재판매 및 DB금지]](https://img4.daumcdn.net/thumb/R658x0.q70/?fname=https://t1.daumcdn.net/news/202210/26/yonhap/20221026080019382jrwn.jpg)
(서울=연합뉴스) 송광호 기자 = "늦은 밤의 청계천, 늘어선 판잣집들 앞을 지날 때면 남자들의 싸우는 소리, 여자와 남자가 함께 싸우는 소리, 매를 맞고 우는 아이의 울음소리, 고함소리, 그릇이 깨어지는 소리가 들렸다."(이경자 소설 '빨래터' 中)
전쟁이 끝나고, 미국의 잉여농산물이 싼값에 보급되자 먹고 살길이 막막해진 농부들은 짐을 싸 들고 서울로 줄줄이 올라왔다. 경제발전의 '엔진' 역할을 하던 서울에는 일자리가 넘쳐났기 때문이다. 일은 쉽게 구할 수 있었지만, 살 집이 마땅치 않았다. 주택을 구매하는 것은 꿈도 꿀 수 없었고, 세를 얻기에도 돈이 부족했다. 그때 누군가가 산밑에 허름한 집을 짓기 시작했다. 다른 이들도 따라 지었다. 판자촌은 그렇게 하나둘 생겨나 거대한 마을을 형성했다.
청와대 정책실장을 지낸 김수현 세종대 공공정책대학원 교수가 쓴 신간 '가난이 사는 집: 판자촌의 삶과 죽음'(오월의봄)은 도시 주거 형태의 큰 축을 담당했던 '판자촌의 생로병사'를 조명한 책이다. 저자는 한때 서울 인구의 약 40%가 살았던 판자촌의 형성과 밀집, 그리고 소멸 과정을 추적한다.
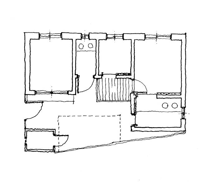
![신림10동 판자집 구조 [오월의봄 제공. 재판매 및 DB금지]](https://img1.daumcdn.net/thumb/R658x0.q70/?fname=https://t1.daumcdn.net/news/202210/26/yonhap/20221026080019500aysf.jpg)
저자에 따르면 1960년대부터 산업화가 추진되자 도시 인구 유입이 큰 폭으로 증가했다. 서울 인구는 1960년 244만명에서 65년 347만명, 70년 543만명으로 10년 만에 배 이상 늘었다. 공간이 부족해지자 사람들은 구릉 지역에 집을 짓기 시작했다. 붉은색 시멘트 기와, 블록 벽, 목재를 활용했다. 산밑에 자리 잡은 허름한 집들의 군락, 이른바 판자촌이 탄생한 것이다.
판잣집은 대개 8평(약 26.5㎡) 공간 안에 평균 두 가정이 살았다. 가정당 5~6명은 족히 됐는데 주인집과 세입자가 함께 살았다. 지붕이나 담장 위, 벽과 담 사이, 벽과 벽 사이, 담장 옆 등 조금이라도 틈이 보이면 어떻게든 활용했다. 저자는 "판자촌 공간에는 가난한 사람들이 도시에 적응하고 생활하는 과정이 그대로 각인되어 있다"고 했다.
그들은 이렇게 비좁은 공간에 살며 공장이나 가게의 임시고용직, 일용건설 노동을 전전했다. 빈곤의 출구는 당장 보이지 않았지만, 그래도 꿈은 있었다. 거창한 건 아니었다. 그저 조그만 가게를 열어 자영업을 하는 것, 노동 현장에서 재룟값이나 일꾼을 부릴 수 있는 정도의 재력을 갖춰 건설 십장이나 가내공업 하청을 하는 것, 그리고 방 두 개짜리 집이 있어 방 한 칸은 세를 놓을 수 있게 되는 것.
일부는 그런 꿈을 이뤄나갔다. 한국경제의 성장과 함께 비교적 성공해서 판자촌을 벗어나거나 아이들을 대학에 보내는 가정도 있었다. 하지만 빈곤이 악화하거나 대물림되는 경우가 훨씬 많았다. 건강 문제, 만성적자, 불안정한 고용이 종종 그들의 발목을 잡았다.
자녀들의 성적도 대체로 좋지 않았다. 공부방은커녕 책상조차 없는 경우가 허다했고, 과외나 학원을 갈 수도 없었다. 중산층 자녀들처럼 부모가 숙제나 학업을 돌봐주는 것도 불가능했다.
![청계천 판자촌 [오월의봄 제공. 재판매 및 DB금지]](https://img4.daumcdn.net/thumb/R658x0.q70/?fname=https://t1.daumcdn.net/news/202210/26/yonhap/20221026080019683ugjf.jpg)
빡빡한 삶이 분명했지만, 그래도 서로를 의지해가며, 버티며 살아갔다. 그런 점에서 판자촌은 가난한 사람들의 생활·경제·복지·경제 공동체이기도 했다. 판자촌 주민들끼리 일자리를 알선하거나 함께 일을 하기도 했고, 생활에 어려움이 있을 때는 상부상조했다. 아동 보육 시스템이 구축되지 않았던 시대에 판자촌의 골목길은 그 자체가 어린이집이자 유치원이었다.
그러나 경제 성장과 함께 도시 미관을 해친다는 이유로 판자촌은 점점 사라지기 시작했다. 1980년대만 해도 서울 시민 10% 이상이 거주하던 판자촌이 10년 만에 2~3%가 사는 곳으로 축소됐다. 같은 기간 줄잡아 70만명 이상이 떠난 것이다. 판자촌에서 쫓겨난 이들은 또다시 가장 싼 주거지로 몰려들 수밖에 없었다. 영구임대주택, 반지하방, 옥탑방, 고시원, 쪽방 등이 판자촌의 빈자리를 대신했다.
![타워팰리스와 구룡마을 [오월의봄 제공. 재판매 및 DB금지]](https://img3.daumcdn.net/thumb/R658x0.q70/?fname=https://t1.daumcdn.net/news/202210/26/yonhap/20221026080019879ejwh.jpg)
저자는 판자촌이 그렇게 역사의 뒤꼍으로 사라졌지만, 가난한 이들의 주거 문제는 여전히 해결되지 않고 있다고 주장한다. 그러면서 공공임대주택 공급을 늘리는 한편, 민간 임대주택에 거주하는 저소득층에게는 임대료를 보조해줘야 한다고 강조한다.
저자는 "모두가 좋은 집에서 살 수는 없다. 그래도 최대한 모두 싸고 좋은 집에서 살 수 있도록 노력하는 사회가 되어야 한다"고 말한다.
압축성장 과정에서 나타났다가 서서히 사라진 판자촌. 가난이 모이지만, 희망이 자라기도 했던 그곳은 우리 현대사에서 어떤 의미를 지닐까? 저자는 이렇게 말한다.
"판자촌은 거주자들에게만 도움을 준 것이 아니라, 낮은 인건비로 노동력을 확보해야 하는 한국경제에도 많은 도움이 되었다. 판자촌은 우리나라 초기 경제성장에 필수적이었던 풍부한 저임금 노동력 확보를 가능하게 해준 핵심 수단이었다. 그런 점에서 한국의 경제성장이 판자촌에 큰 빚을 지고 있는 것은 분명하다."
332쪽. 1만8천500원.
buff27@yna.co.kr
▶제보는 카톡 okjebo
Copyright © 연합뉴스. 무단전재 -재배포, AI 학습 및 활용 금지
- 가정폭력 사각지대 방치가 부른 참극…'캐리어 시신' 사건 전말 | 연합뉴스
- '앤젤리나 졸리 딸' 샤일로, K팝 뮤직비디오 등장…댄서로 참여 | 연합뉴스
- 노벨평화상 수상자, "미친 인간" 트럼프 제지 호소 | 연합뉴스
- [샷!] "계속 말 걸어 무서웠고 결국 피했다" | 연합뉴스
- "고추장 더 넣어도 되나요?"…LA서 재현된 '폭군의셰프' 속 한식 | 연합뉴스
- [반려동물] '세 집 중 한 집 막내로 산다'…1천500만 가족이 달라졌다 | 연합뉴스
- '왕사남' 1천600만도 넘었다…역대 흥행 2위까지 '26만' | 연합뉴스
- 경찰, '100만 구독자' 보수 유튜버 음주운전 혐의 송치 | 연합뉴스
- 화려한 꽃 없어도 괜찮다…버려진 '초록' 품는 '식물유치원' | 연합뉴스
- "나토가 뭔지 아나?"…'북미조약기구' 제목 오류에 NYT 망신살(종합) | 연합뉴스