
날것의 집
먼저 대지는 높은 면과 낮은 면의 경계에 콘크리트 지형을 구축하고, 집은 경사면에 필로티 구조로 띄워 일자로 배치했다. 주변 주택들의 조망을 가리지 않도록 2층은 십자형으로 들어 올렸는데, 이런 배치는 마당을 분절함으로써 다양한 성격의 마당을 형성하고, 조망 방향에 따라 색다른 경치를 선사한다.
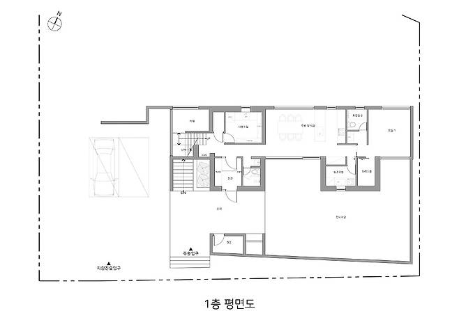
내부는 각자의 영역이 독립된 공간을 원했던 건축주의 요청에 따라 주방과 식당을 아내의 영역, 거실을 남편의 영역으로 각각 1층과 2층에 수직으로 분리 배치했다.
콘크리트 지형은 집을 띄우기도 하고, 마당을 감싸는 입면이 되기도 한다. 강한 인공의 재료 위에 목구조의 집이 얹히고, 인공 지형에 자연의 재료가 박혀 두 물성이 만나며 이 집이 완성되었다.


대지는 멀리 능선이 중첩되는 산 중턱에 위치한다. 해를 등지고 마주하는 산세는 밝고 다채로운 빛을 자아낸다. 대지의 가장 높은 곳과 낮은 곳의 차이는 2층 높이보다 심하며, 높은 곳으로 길이 면해있다. 집이 놓일만한 평평한 땅은 협소하고, 마당을 품기에도 부족한 조건이었다. 하지만 자연을 훼손하지 않고 있는 그대로 받아들이는 태도, 자연 속에서의 삶의 자세와 건축에 대해 깊이 고민하며 설계를 진행했다.
먼저 대지의 높은 면과 낮은 면의 경계에 콘크리트 지형을 구축하고, 집은 경사면에 필로티 구조로 띄워 일자로 배치했다. 자연을 최대한 훼손하지 않고, 대지에 순응하는 집이 되길 바랐다.








2층은 주변 주택들의 조망을 가리지 않도록 십자형으로 배치하여 들어 올렸다. 십자형의 배치는 마당을 분절함으로써 각각 다른 성격의 마당을 형성하고, 조망 방향에 따라 색다른 경치를 선사한다. 실내공간에서는 다양한 자연 풍경을 감상하고, 외부에서는 집이 배경이 되어 모든 마당과 관계를 맺는다.




내부는 조망하기 좋은 공간과 상대적으로 그렇지 않은 공간, 부부가 이용하는 공간과 게스트를 위한 공간 등 조망과 이용 빈도에 따라 공간을 분류하여 수직, 수평으로 배치했다. 건축주 부부는 각자의 영역이 독립된 공간을 원했다. 이에 주방과 식당은 아내의 영역, 거실은 남편의 영역으로 각각 1층과 2층에 분리하여 배치했다.







콘크리트 지형은 집을 띄우기도 하고, 마당을 감싸는 입면이 되기도 한다. 경사지를 고려하면서도 날것 그대로 사용하여 자연의 재료로 치환되는 시간성을 담았다. 강한 인공의 재료 위에 목구조의 집이 얹히고, 인공 지형에 자연의 재료가 박혀 두 물성이 만나며 이 집을 완성한다.








건축개요
위치: 경기도 양평군 서종면 도장리
용도: 단독주택
규모: 지상 2층
대지면적: 994㎡ (300.69py)
건축면적: 149.80㎡ (45.32py)
연면적: 191.54㎡ (57.94py)
건폐율: 15.07%
용적률: 18.10%
구조: 철근콘크리트
사진: 최진보
시공: (주)KSPNC
설계: 투닷건축사사무소 주식회사
──
에이플래폼
대한민국 건축가가 전하는 건축이야기