
‘내륙의 바다’라 불리는 충주댐 인근의 전원주택 취재를 위해 길을 나섰다. 사과특구로 알려진 충주시 동량면 장선마을이 목적지다. 감곡IC를 빠져나와 한참을 달리다보니 남한강 물길이 보이기 시작한다. 마을에 도착해 커다란 느티나무가 초여름의 강한 햇볕을 가리는 그늘진 곳에 주차를 하니 온화한 미소의 어르신이 취재팀을 반갑게 맞아주신다. 이곳 전원에서 평생 고향을 지켜 오신 건축주를 따라 황토색 스페니쉬 기와가 인상적인 단층집에 들어섰다.
글 이형우 기자 | 사진 남두진 기자 | 협조 티비건설
HOUSE NOTE
DATA
위치 충북 충주시 동량면
용도 단독주택
건축구조 일반 목구조(주택), 경량 철골조(창고)
대지면적 580㎡(175.45평)
건축면적 127.43㎡(38.55평)
연면적 127.43㎡(38.55평)
건폐율 21.97%
용적률 21.97%
설계기간 2023년 10월 ~ 2024년 4월
시공기간 2024년 4월 ~ 11월
설계 팀버하우스㈜ 010-9316-4992
시공 티비건설 043-853-4997~8 010-9540-7273
MATERIAL
외부마감 지붕 - 유럽식 평기와(모니어기와 시그니)
외벽 - 롱브릭타일(백색)
데크 - 현무암 판석
내부마감 천장 - 석고보드 위 벽지
내벽 - 석고보드 위 벽지
바닥 - 노바 강마루 리얼시티
단열재 지붕 - 글래스울 R37
외벽 - 글래스울 R21+외단열 EPS 50㎜
창호 유럽식 시스템창(피마펜)
현관문 성우스타게이트도어
위생기구 아메리칸 스탠다드
난방기구 가스보일러(경동)
글 이형우 기자 | 사진 남두진 기자 | 협조 티비건설
HOUSE NOTE
DATA
위치 충북 충주시 동량면
용도 단독주택
건축구조 일반 목구조(주택), 경량 철골조(창고)
대지면적 580㎡(175.45평)
건축면적 127.43㎡(38.55평)
연면적 127.43㎡(38.55평)
건폐율 21.97%
용적률 21.97%
설계기간 2023년 10월 ~ 2024년 4월
시공기간 2024년 4월 ~ 11월
설계 팀버하우스㈜ 010-9316-4992
시공 티비건설 043-853-4997~8 010-9540-7273
MATERIAL
외부마감 지붕 - 유럽식 평기와(모니어기와 시그니)
외벽 - 롱브릭타일(백색)
데크 - 현무암 판석
내부마감 천장 - 석고보드 위 벽지
내벽 - 석고보드 위 벽지
바닥 - 노바 강마루 리얼시티
단열재 지붕 - 글래스울 R37
외벽 - 글래스울 R21+외단열 EPS 50㎜
창호 유럽식 시스템창(피마펜)
현관문 성우스타게이트도어
위생기구 아메리칸 스탠다드
난방기구 가스보일러(경동)

주택이 들어선 이곳 장선마을은 인근에 아름드리 느티나무 숲이 있는 오래된 동네다. 마을 이름인 장선도 ‘오래도록 착한 일을 해야 된다’는 뜻에서 유래했다고 한다. 마을 앞으로는 밤나무가 지천인 지등산이 바라보이고 뒤로는 인등산 줄기가 완만하게 내려앉아 있다. 강과 호수마저 가까이 있으니 산자수명山紫水明의 풍광을 고루 갖춘 곳이라 아니할 수 없다.

외관과 정원이 눈에 띄는 집
‘장선가長善家’는 이곳 마을에서 가장 눈에 띄는 집이다. 우선, 도로 전면을 향해 열린 주택의 정원이 싱그럽다. 꽃과 나무를 좋아하는 건축주 부부는 도로 쪽으로 경사진 대지를 성토해 석축을 쌓아 조성한 정원에 잔디와 각종 화초를 식재해 정성스레 가꾸고 있다. 노령임에도 불구하고 아직도 경운기를 이용해 밭을 일구고 있는 건축주 부부에게 정원은 눈과 마음을 즐겁게 해주는 애정 어린 ‘텃밭’이다.
“아내가 꽃을 아주 좋아합니다. 하지만 구옥에서는 마당의 구배나 건물 배치 등으로 꽃이나 나무를 식재해 제대로 가꾸기가 어려워 항상 아쉬움이 있었습니다. 새로 집을 지으면서 잔디와 화초, 나무 등이 어울리는 정원을 만들겠다고 미리 계획했었죠. 장독대도 만들고 각종 화분도 갖다 놓으니 제법 그림이 나오네요.”(웃음)
‘장선가長善家’는 이곳 마을에서 가장 눈에 띄는 집이다. 우선, 도로 전면을 향해 열린 주택의 정원이 싱그럽다. 꽃과 나무를 좋아하는 건축주 부부는 도로 쪽으로 경사진 대지를 성토해 석축을 쌓아 조성한 정원에 잔디와 각종 화초를 식재해 정성스레 가꾸고 있다. 노령임에도 불구하고 아직도 경운기를 이용해 밭을 일구고 있는 건축주 부부에게 정원은 눈과 마음을 즐겁게 해주는 애정 어린 ‘텃밭’이다.
“아내가 꽃을 아주 좋아합니다. 하지만 구옥에서는 마당의 구배나 건물 배치 등으로 꽃이나 나무를 식재해 제대로 가꾸기가 어려워 항상 아쉬움이 있었습니다. 새로 집을 지으면서 잔디와 화초, 나무 등이 어울리는 정원을 만들겠다고 미리 계획했었죠. 장독대도 만들고 각종 화분도 갖다 놓으니 제법 그림이 나오네요.”(웃음)

정원과 함께 집을 돋보이게 하는 부분은 주택의 외관이다. 스타코 미장 위에 타일을 마감한 외벽과 황토색 유럽식 평기와가 어울려 마을의 기존 농가주택 사이에서 독특한 인상을 뽐낸다. 수수하지만 모던하고, 크진 않지만 단아하다. “예전에 살던 집이 좁고 어둡고 추워 좀 넓고 밝게 해달라고 요청했습니다. 자식들과 손주들이 와서 편안하게 쉬어 갈 수 있는 넉넉하고 밝고 따뜻한 집을 짓고 싶었죠. 동네 분들이 우리 집에 자주 마실을 오는데 집 모양을 보고 ‘예쁘게 잘 지었다’고 얘기하곤 해서 기분이 좋습니다.”


‘고향집’ 콘셉트로 건축
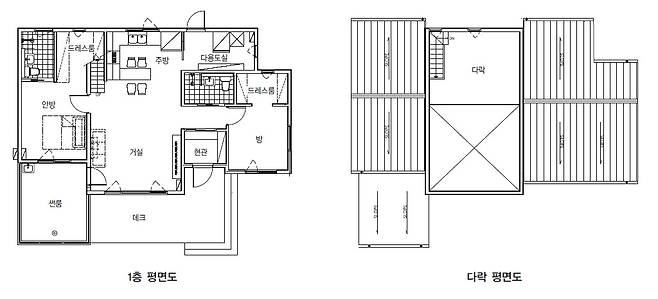
이곳 주택의 콘셉트는 ‘고향집’이다. 자녀 가족들이 자주 와서 쉬었다 가는 개념으로 계획했다. 거실과 주방을 통합해 공용공간의 여지를 넓히고, 2층에 다락을 만들어 자녀 가족들이 이용하도록 했다. 거실은 중목구조를 차용해 천장의 보를 노출시킴으로써 개방감을 더했다. 5평 규모의 다락은 거의 손주들 차지다. 이를 미리 예상한 건축주는 거실에서 손주들과 눈을 맞추며 얘기할 수 있게 다락 벽에 작은 창 두 개를 냈다.
이곳 주택의 콘셉트는 ‘고향집’이다. 자녀 가족들이 자주 와서 쉬었다 가는 개념으로 계획했다. 거실과 주방을 통합해 공용공간의 여지를 넓히고, 2층에 다락을 만들어 자녀 가족들이 이용하도록 했다. 거실은 중목구조를 차용해 천장의 보를 노출시킴으로써 개방감을 더했다. 5평 규모의 다락은 거의 손주들 차지다. 이를 미리 예상한 건축주는 거실에서 손주들과 눈을 맞추며 얘기할 수 있게 다락 벽에 작은 창 두 개를 냈다.



노부부는 각각의 방을 갖는 공간 배치를 요구했다. 이에 거실·주방 공간을 중심으로 좌우에 각각 방을 배치했다. 각 방에는 욕실과 드레스룸을 별도로 둬 편의성을 높임과 동시에 명절 등에 자녀 가족들이 한꺼번에 방문하는 상황도 대비했다.


안방에는 문을 통해 마당으로 나갈 수 있는 선룸을 설치했다. 화분을 관리하고 키울 수 있는 공간이 필요했기 때문이다. 효과는 기대 이상이다. 지난겨울 화분을 보관하는 장소로 유용하게 활용했고, 날씨가 더워진 요즘에는 통풍이 잘되는 시원한 곳에서 식사하는 다이닝 공간으로 쓰고 있다. 모기까지 막아내니 만찬 장소로도 그만이다.



어버이의 자식 사랑이 담긴 설계 요청
주택 뒤로 돌아가면 두 개의 건물이 보인다. 하나는 창고이고, 다른 하나는 속칭 ‘두부공장’이다. 농기구 등을 보관하는 6.4평 규모로 만든 창고에는 농작업 중에 사용 가능하도록 화장실도 별도로 설치했다. ‘두부공장’은 화목을 이용해 요리를 할 수 있도록 아궁이를 설치한 부속 건물이다. 자녀에게 직접 만든 청국장과 두부를 보내주기 위해 건축주 부부가 요청한 소박한 시설로 상업적 목적이 아니다.
주택 뒤로 돌아가면 두 개의 건물이 보인다. 하나는 창고이고, 다른 하나는 속칭 ‘두부공장’이다. 농기구 등을 보관하는 6.4평 규모로 만든 창고에는 농작업 중에 사용 가능하도록 화장실도 별도로 설치했다. ‘두부공장’은 화목을 이용해 요리를 할 수 있도록 아궁이를 설치한 부속 건물이다. 자녀에게 직접 만든 청국장과 두부를 보내주기 위해 건축주 부부가 요청한 소박한 시설로 상업적 목적이 아니다.


원래 주택 후면은 습하고 연약한 지반이었다. 이에 건축주는 뽀송뽀송한 후면이 되도록 조치해 줄 것을 요청했고, 건축업체인 티비건설은 지중배수관을 다수 설치한 후 콘크리트로 포장했다. 흙과 돌로 이뤄진 경사지 담은 석축을 쌓아 무너지지 않도록 했다.“수십 년 전에 지어서 좁고 물도 새는 집에서 살다가 널찍하고 따뜻한 집에서 살아 보니 모든 게 좋습니다. 웃풍도 전혀 없고 안에서 사용하기 편리한 데다 외양도 좋아 보여서 만족합니다. 마을회관 방향으로 통행이 자유롭도록 설치한 진입로를 오가다 가끔 우리 집을 보곤 하는데 잘 지어진 거 같아 뿌듯한 생각이 듭니다. 좋은 집을 지어준 건축업체에게도 감사한 마음을 전하고 싶습니다.”


