이 주택은 안락함과 포근함이 은은하게 느껴진다. 동시에 각 실은 적당한 거리를 유지하면서 구성원은 중정을 통해 유대감을 느낄 수 있다. 마치 가족만을 위한 작은 세상 같다.
글 남두진 기자 | 자료 및 협조 윤성하우징

아파트의 편리한 생활은 누리되 가족이 도란도란하게 지낼 수 있는 단독주택을 꿈꾼 건축주는 세종에서 적합한 부지를 발견했다. 계획 신도시 내 택지인 부지는 학교, 병원, 학원, 식당 등 편의시설까지 도보 5분 내로 닿을 수 있고, 결정적으로 부지 바로 옆 산책로에 실개천이 흐르고 있어 자연도 가까이할 수 있는 최적 장소였다. 부지는 건축주가 바라는 조건을 대부분 만족시켰다. 그러나 이웃집과 인접해 있는 등 외부 시선에 노출되기 쉽다는 조건도 동시에 가지고 있었다.
HOUSE NOTE
DATA
위치 세종시 고운동
용도 단독주택
건축구조 경량 목구조
대지면적 335.00㎡(101.34평)
건축면적 132.15㎡(39.98평)
연면적 264.30㎡(79.95평)
1층 132.15㎡(39.98평)
2층 111.22㎡(33.64평)
건폐율 39.45%
용적률 78.90%
설계기간 2020년 12월~2021년 2월
시공시간 2021년 5월~9월
설계 및 시공 윤성하우징 1566-0495
www.yunsunghousing.co.kr
MATERIAL
외부마감 지붕 - 알루미늄 징크
벽 - 세라믹 사이딩
내부마감 천장 - 베스띠(LG하우시스)
벽 - 베스띠(LG하우시스)
바닥 - 허니티크(구정마루)
단열재 지붕 - R37 인슐레이션
외단열 - R37 인슐레이션
내단열 - R37 인슐레이션
계단재 디딤판 - 멀바우 집성판
난간 - 평철 난간
창호 시스템 창호(살라만더)
현관 LSFD 모노타일(성우스타게이트)
주방가구 대림바스, 아메리칸 스탠다드


내부로 집중시킨 시선
건축주는 설계자와의 상담을 통해 처음에는 프라이버시를 확보한 ㅁ자 형태를 제안받았지만, 다행히 인접한 이웃집에 큰 창이 없어 최종 형태는 ㄷ자로 정했다고 설명했다.
“제가 따지던 조건에 딱 맞는 부지였지만 프라이버시에 약하다는 단점을 가진 곳이었습니다. 업체 설계자와의 상담을 통해 최종 형태는 ㄷ자로 정했어요. 그리고 거실과 주방에서 중정을 바라볼 수 있는 구조를 기본 방향으로 설정했습니다.”
설계자는 진입로 쪽 외부 시선을 차단하고자 전면이 아닌 후면에 다양한 창을 냈다. 실내에서는 재미있는 시선과 개방감을 느낄 수 있다. 전면은 자연스럽게 단조로운 모습이 됐지만, 면과 선을 강조하고 박공지붕과 경사지붕을 적절하게 조합해 입체감 있고 모던한 느낌으로 연출했다.


적당하게 거리 둔 공간 구성

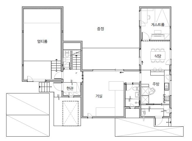
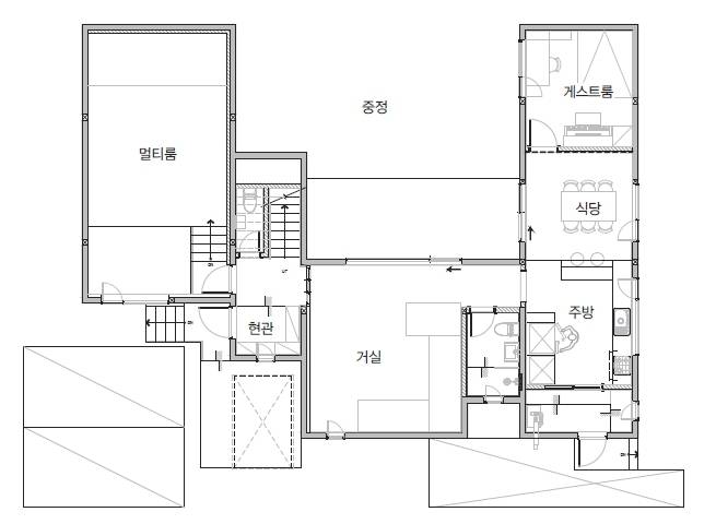
설계자는 이번 설계에서 가장 염두에 두었던 실은 멀티룸이었다고 한다. 멀티룸은 단독주택의 즐거운 생활을 배가시킬 공간으로 높은 천장고와 적당한 면적을 확보하는 것이 관건이었다. 이때 설계자는 부지가 가진 경사를 활용해 낮은 쪽에 멀티룸을 둠으로써 이를 해결했다고 한다. 자연스럽게 거실과 주방·식당은 높은 쪽에 배치했다. 그리고 그 사이에 현관과 계단실, 화장실을 두어 낭비되는 공간 없이 효율적인 동선을 이끌어냈다.
“설계 초기 쾌적한 여가생활을 즐길 멀티룸 위치를 선정하는 데 시간이 걸렸어요. 그런데 가만 보니 부지가 경사를 가지고 있더라고요. 낮은 쪽에 멀티룸 위치를 잡으니 천장고는 해결됐습니다. 게다가 외부 쪽은 프라이버시를 위해 꼭 필요한 곳 말고는 개구부를 최소화하려고 했었는데, 이를 고려하면 딱 알맞은 위치였죠. 멀티룸 위치를 선정한 이후에는 자연스럽게 거실과 주방·식당 위치도 정해졌어요. 결과적으로 1층은 현관을 열면 바로 앞에 계단실과 화장실이 보이고 양쪽으로 멀티룸과 거실이 위치한 재미있는 구조가 됐습니다.”

거실은 주방·식당과 분리해 용도를 분명하게 했다. 특히, 통창으로 중정이 한눈에 들어오는 모습은 보다 안락한 분위기를 선사한다. 일체화한 주방과 식당은 주방기구를 한쪽 벽면에 몰아 공간 효율을 극대화했다. 손님방은 식당 바로 뒤쪽과 인접하게 배치해 프라이버시를 확보하면서 머무는 동안 느낄 불편함을 줄이도록 했다.
2층은 가족 구성원의 개인 실로 구성했다. 각 실은 바로 붙이지 않고 중간에 창고와 욕실을 두어 적당한 거리감을 유지했다. 세탁실과 드레스룸은 한곳에 배치해 가사 효율을 높였다. 이렇게 주요 실로 큰 형태를 잡고, 보조 실로 보완함으로써 전체적으로 편한 동선을 완성했다.
개방감과 공간감 살린 실 계획



설계자는 개방감과 입체감을 살려 각 실을 계획했다. 예를 들어 주방은 상부장 없이 식당까지 긴 하부장을 두었다. 그리고 앞뒤로 큰 창을 마련해 실제보다 입체적인 공간감을 부여했다. 또한 공용 드레스룸을 포함해 각 침실에는 간단하게 옷을 보관할 수 있도록 붙박이장을 마련했는데, 벽지와 비슷한 톤을 적용하고 천장 끝선에 맞춰 제작해 더욱 깔끔한 인상을 준다.


“중정을 향해 통창을 계획하니 실내는 전체적으로 개방감 있었는데, 이를 살리는 편이 좋을 것이라 판단했어요. 그래서 주방에는 상부장을 없애거나 각 실에는 애매하게 남는 공간 없이 딱 맞춰 가구를 제작했죠. 여기에 공간감도 함께 부여하고 싶었습니다. 예를 들어 안방과 세탁실은 작은 테라스와 연계했는데, 이곳에서 서로를 마주 보기도 하고 중정으로 시선을 옮겨 함께 있는 유대감도 느낄 수 있죠.”
현관의 전기 분전함 또한 작은 액자로 가릴 수 있도록 미리 위치를 잡아두고 매립해 마감했다. 이렇게 개방감과 공간감을 만족시키기 위한 설계자의 섬세한 노력은 작은 곳에서도 엿볼 수 있다.




