
안녕하세요! 칠링스토리입니다. 😊바쁘게 지내온 일상에서, 집에서 만큼은 '느긋하게 휴식을 취하다'라는 의미에서 칠링스토리로 이름을 만들었어요.
차가운 도시 느낌과 영국의 작은 시골 마을(코티지 정원 cottage garden)을 믹스매치한 느낌의 공간이에요. 자연의 느낌이 너무나 좋지만, 도시에서 살다 온 저희로선 가끔은 도시적인 느낌이 그립고 열망할 때가 있어 느낌 가는 대로 꾸미다 보니 이렇게 믹스 매치가 되었어요 😊

타운하우스형 단독 주택에 거주하고 있어요. 지상 3층과 지하 주차장이 있구요. 정원을 가지고 있어요. 올해로 4년이 되었구, 저희 부부와 댕댕이 5마리가 같이 거주하고 있습니다.
주택의 넓은 마당과 집 바로 옆의 산이 너무나 맘에 들어 한 눈에 반해 이렇게 오게 되었어요! 처음해보는 주택살이에 우당탕탕 우여곡절도 많고, 시행착오를 반복하며 여기까지 오게 되었어요. 그럼 저희 집을 소개해볼게요!
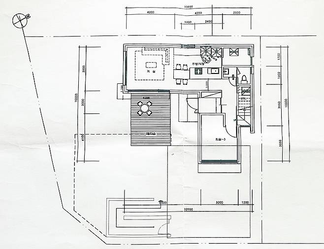
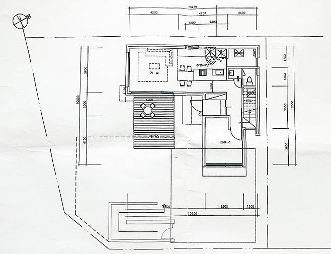
1. 도면
1층 도면

저희 집은 1층 지상에 주차장이 있어요. 한층 올라가 정원이 있고, 3층의 ㄱ 자형 구조로 설계된 집이에요. 이제 1층부터 보여드릴게요! 1층은 거실과 주방, 화장실1, 방1, 세탁실이 있어요.
2층 도면

2층은 거실, 안방, 드레스룸, 화장실 2개로 구성되어 있어요.
2. 1층 거실

집의 공간마다 큰 통유리가 있어 채광이 좋고, 어느 공간에서도 정원이 한눈에 보이는 장점이에요.

거실은 통유리 밖으로 보이는 정원을 감상하기에 충분해, tv를 두지 않았어요. 앉아있기도 하고, 누울 수도 있는ㅎㅎ 소파는 정말 편한 걸로 결정해야겠다! 해서 여기 저기 알아보고 제일 맘에 드는 소파를 발견해 구매했어요.
장점은 등받이를 앞, 뒤로 조절 가능해 앉아있을 땐 앞으로 빼고, 누울 땐 뒤로 밀어줘요! 누워있기에 폭이 충분히 넓어서 아주 편하게 사용 중이에요. 물론 디자인도 빼놓지 않았구요! 분리가 되어서 셀프로 구조 변경도 가능합니다.

정원을 가꾸며 실내 식물에도 관심이 많아 이렇게 거실 가운데 플랜트 박스를 놓았어요. 방부목으로 제작했구요, 화분과는 정말 다른 느낌인 것 같아요. 이 플랜트 박스는 배수가 안되게 만들어서, 물을 자주 주지 않아도 되는 편리함이 있어요. 하지만 과습은 주의해야 해요! :)
꿀팁!

집안에 이런 플랜트박스를 놓을 때, 식물의 잎이 앞 뒤가 명확히 구분이 되는 식물은 햇빛을 따라가기 때문에 잎의 반대쪽만 볼 수가 있어요.. 이런 점을 유의해서 식재하면 좋아요^^
거실의 ㄱ자 면이 다 통유리로 되어있어 한쪽은 차폐를 하기 위해 식물로 배치를 해놓았는데요, 이쪽은 해가 잘 들지 않는 공간이라 이케아에서 판매하는 인조 대나무를 구매해 꾸몄어요! 목재로 플랜트박스를 직접 만들어 그 안에 넣어두었구요없을 때와, 있을 때 차이가 정말 커요!
살아있는 식물이 아닌 인조를 놓는다는 것이 처음에는 이상할 것 같고, 어색했는데 어색함이 전혀 없고, 차폐할 겸 꾸며 놓았지만 이제는 없으면 너무 허전할 것 같아요 ㅎㅎ

저희 부부는 둘 다 음악 듣는 걸 좋아하기에, 전원주택의 장점을 톡톡히 보는 것 같아요. 위 아랫집 걱정 없이 듣고 싶은 음악을 풍성한 사운드로 들을 수 있어요.
이곳으로 오고 망설임 없이 하이파이 오디오를 구매 했어요! 아침엔 잔잔한 뉴에이지를 듣고, 오후로 갈수록 신나는 음악을 틀어요.(저녁에 절정..ㅎㅎ) 그리고 천장의 스트랩 조명과 스피커 위, 몇몇 곳에 핸드폰 앱으로 조명의 색상을 조절할 수있는 필립스 휴를 설치해놨어요. 그날의 분위기에 따라 색을 바꾸곤 합니다 :)

모형 전기 벽난로를 놓았는데요, 버튼을 누르면 따뜻한 온풍이 나오는 벽난로에요. 실제와 매우 흡사하게 만들어져서 만족하며 사용 중이에요. 난방 틀지 않고 살짝 쌀쌀한 날씨에는 이거 하나면 금방 따뜻해져요 :)

보통 집 내부에 화이트톤으로 하는 인테리어를 벗어나 우리만의 스타일로 하고 싶어 블랙&그레이 느낌이 가득하게 시공했어요. 바닥과 아트월은 포세린 타일로, 750각 사이즈로 통일을 했어요. 타일은 빈티지한 자연스러운 무늬의 타일로 선택했는데요, 큰 사이즈의 타일로 공간이 좀 더 웅장하고 넓어 보이는 것 같아요.

아트월 전체도 타일로 해놓으니, 따로 꾸미지 않아도 타일 자체가 멋스러워요.

거실 한쪽 벽면은 유럽미장이라고 하는 마이크로 토핑을 시공했어요. 해보니 정말 정말 대만족이에요! 자연스러운 질감과 그라인딩이 정말 멋스러워요. 시공해주신 사장님이 한겹 한겹 바르고 말리고 그라인딩하고 반복해 만든 빈티지하면서 자연스러운 느낌이 정말 맘에 들어요. 다음에 다른 색상으로 또 해보고 싶어요.
3. 1층 주방

요리를 좋아해 평소 직접 만들어 먹는 걸 좋아해 주방은 꼭! 넓게 쓰고 싶었어요. 11자 주방으로 되어있어, 요리할 때 공간이 넉넉해 정말 편한 것 같아요. 주방 자재는 한샘 터치블랙으로 했고, 상판은 칸스톤 4cm 두께로 두껍게 제작했어요. 시크한 블랙 주방을 만들고 싶어 이렇게 블랙과 실버 메탈만을 조합해 인테리어를 했어요.


수전은 상판에 설치를 하였고, 싱크볼은 사각으로 선택했어요. 수전은 상판에 설치하는게 깔끔하고 예쁜 것 같아요 :) 그리고 밑 하부장은 장 하나를 떼고, 식기세척기를 놓았어요.

이사 오고 처음엔 LG 얼음 정수기 냉장고를 구매했었어요. 당시 제일 큰 사이즈를 놓았는데.. 양 옆의 장보다 너무 많이 튀어나와 있어 미관상 좋지 않았고 주방도 좁게 느껴졌어요. 사용하며 고민하다 추후 냉장고를 장과 사이즈가 딱 맞는 걸로 교체를 하였구요. 오른쪽 장도 사이즈를 조정해 다시 제작을 했어요.

이곳은 원래 밥솥을 놓는 공간인데, 저는 밥솥보다는 에어프라이를 훨씬 더 많이 사용하는 것 같아 에어프라이 자리로 내어 주었어요. 전자레인지는 오븐 겸용 레인지로 매립해놓았구요.
커피를 매일 빼놓을 수 없기에 머신을 놓았는데요, 간편하게 먹을 수 있는 캡슐형을 놓느냐 고민하다 감성도 빼놓을 수 없고, 아무래도 더 좋은 커피 맛을 느끼고 싶어 브레빌로 구매를 했어요. 정말 만족하고 사용 중이에요.
그라인더와 일체형이고 스팀도 가능해요. 그라인딩하고 자동으로 탬핑까지 해주니, 저는 그저 버튼을 눌러 커피를 추출하기만 하면 됩니다.ㅎㅎ

아침은 항상 계란을 먹기에 계란찜기는 빼놓을 수 없어요. 계란 넣고 물계량해 붓고, 버튼 누르면 끝-! 여러 계란찜기를 사용해 보았는데, 찜이 완료되면 알림음이 나는게 더 좋더라구요.
알림음이 나지 않으면 다른 일을 하다가 다 된 줄도 모르고 지나칠 수 있어 저는 꼭 알림음이 나는 걸로 구매해요. 그리고 찜기 내부 밑판도 스텐으로 되어있어, 세척하기도 좋고 위생에도 좋아서 만족하며 사용 중이에요!

이렇게 계란에 간단히 과일 샐러드와 닭가슴살 또는 낫또와 같이 섭취하면 하루 단백질 끝입니다 :)


가장 많이 사용하는 식기류들이에요 :)

어떤 요리든 오벌 플래터에 올려놓으면 음식이 다르게 보이는 것 같아요 :) 듀라렉스 잔은 가끔 플랫 화이트가 먹고 싶을 때 만들어먹기 딱! 좋은 사이즈에요. 스텔라 맥주 잔은, 맥주 구매할 때 세트 구성으로 있는 것을 산 거에요. 왼쪽은 작은 사이즈이고, 오른쪽은 큰 사이즈에요.

요리에 맞게, 면류나 덮밥류는 이런 그릇에 담아서 먹구요. 반찬들도 이런 그릇에 담으면 더욱 더 맛있게 즐길 수 있는 것 같아요 :)

우드 용품들도 빠질 수 없죠! 특히 왼편의 플레이팅보드는 케이크를 올려놓아도 좋고, 요리를 올려놓아도 너무나 고급져보이게 해줘요. 이런 우드 식기류도 즐겨 사용합니다.
4. 1층 온실

이곳은 1층의 방인데요, 방 전체를 식물로 가득 채운 집안의 온실이에요. 다른 공간에 온 듯한 느낌을 주어보고 싶어 저희만의 감각으로 꾸며보았는데요. 식물은 오래된 가구와 정말 잘 어울리는 것 같아, 이렇게 빈티지 앤틱한 가구들을 놓았어요. 화장대와 장식장, 원형 테이블, 엔틱 웨건, 플라워 액자와 의자를 놓았구요.


이곳은 식물들이 성장하는 공간임과 동시에 저희 부부가 항상 책을 읽는 공간이에요. 식물과 함께 성장하는 공간이에요. 곳곳에 조명을 달아 식물등을 쐬주고, 벽면에는 나무를 붙여 더욱 식물과 공간이 더 조화롭게 만들어줬어요. 식물등 뒤에도 이렇게 나무로 장식을 해주었어요.
이 방 안에는 실내 식물 뿐만 아니라, 정원에서 추위에 약한 식물들을 들여놔 겨울에 따뜻하게 보내는 공간이기도 해요. 장식장 안에는 씨앗 파종을 해서 키우고 있는 모종들이 있어요. 안쪽에 식물 led를 달아주어, 식물 인큐베이터입니다😊

한쪽 벽면은 이렇게 엔틱한 장식과 소품들로 꾸며놓았어요. 역시 빠질 수 없는 식물들로 공간이 채워져있구요 :)
5. 2층 거실

2층의 거실이에요. 아담한 사이즈의 미니 거실인데요, 1층의 방과 같은 컨셉의 공간이에요. 빈티지 앤틱한 가구들을 놓았고, 이곳은 통창이 아니어서 빛이 많이 들어오진 않아 식물들은 수경으로 하거나 그늘에 강한 식물들 위주로 키우고 있어요.

마루는 르플로의 원목마루로 선택했는데요, 빈티지한 무늬에 톤다운 된 브라운이 정말 마음에 들어요.
6. 2층 침실

쉼터가 되어주는 침실이에요. pc작업을 하거나, 취침 전 tv를 잠시 보는 시간을 가져요.


통유리 창으로 정원이 한 눈에 들어오고, 산과 하늘이 항상 보이는 공간으로 아침에 일어났을 때 정말 상쾌하고 맑은 기운이에요.
창밖의 산이 한 폭의 액자와 같아요. 자연의 풍경이 4계절을 온전히 느낄 수 있기도 해요. 침실의 벽지는 어두운 톤의 톤다운된 붉은 색감의 벽지를 선택했는데요, 저희의 느낌에 잘 맞는 것 같아요. 가구와 식물과도 잘 어울리구요 :)

한쪽 벽면은 이렇게 장미 액자와, 다꾸들로 꾸며놓았어요 :)

벽 장식 선반들을 달아주고, 정원에서 키운 꽃을 잘라주어 드라이 플라워로 말려 장식해놓았어요. 침실 또한 여럿 실내 식물들을 키우고 있는데 무럭무럭 잘 커주고 있어요 :)
꿀팁!

식물을 기르며 여럿 식물들을 관리하다 보니 저 또한 물 관리가 아차 하면 놓칠 때도 있고 어려운데요. 물주시개를 사용하면 관리가 훨씬 수월해지고, 스프레이 분무를 자주 해주어 공중 습도를 높여주면 더욱 좋아요!
7. 파우더룸

이곳은 침실 안에 있는 파우더룸이에요. 화장실과 연결되어 있구요, 원래는 옷장이 설치되는 것으로 설계되어 있었지만 이렇게 화장을 하거나 머리를 말릴 수 있는 파우더룸으로 변형하였어요. 파우더룸이 따로 있으니 정말 편리한 것 같아요.

피부 관리에 찐 진심이라 여럿 뷰티 디바이스를 사용 중인데, 제일 손이 많이 가는 디바이스에요. 가성비 있고 좋은 것 같아요!
8. 안방 욕실

안방 화장실이에요. 블랙&그레이 색감으로 인테리어를 했는데요. 다른 장식은 하지 않았고 깔끔하게 했어요. 세면대 상판은 블랙으로 하였고, 타일은 어두운 그레이톤으로 했어요. 반신욕을 즐길 수 있는 욕조를 두었고, 샤워하는 곳은 부스장을 만들었어요.

욕실 환풍기는 기존에 있던 환풍기를 철거하고 힘펠 복합 환풍기로 교체해주었어요. 냉온풍, 제습, 환기, 드라이까지 되는 만능이에요! 겨울철 빠르게 욕실을 데워줄 수도 있고 정말 편해요.

꿀팁!

청소를 정말 수월하게 해주는, 잘샀템!을 소개해드릴게요 :) 제일 왼쪽부터 인덕션 크리너, 그 옆의 크린 스틱은 수전이나 욕실 유리 등등 물만 묻혀서 문지르고 닦으면 정말 편리해요. 그 옆의 청소솔은 욕실 바닥을 닦고 반대쪽 스크래퍼가 있어, 물기까지 쓸어줄 수 있어서 정말 좋아요!
그리고 아스토니쉬 곰팡이 제거 클리너가 써본 곰팡이 제거제 중에 세정력이 제일 좋은 것 같아요. 바닥클리너도 아스토니쉬를 사용 중인데요, 향기도 좋고 바닥이 반짝반짝 광나고 정말 좋아요.
9. 드레스룸

방 한 공간을 드레스룸으로 사용 중인데요, 옷과 잡화 등등은 여기에 놓구 스타일러로 관리를 해서 바로 입고 외출하거나, 돌아와서도 관리를 하고 걸어놓곤 해요. 여기도 통유리창이 있는데요, 드레스룸은 빛이 들어오면 좋지 않아 가려놓았어요.
10. 계단실

이제 3층으로 가볼게요! 3층으로 올라가는 계단이에요 :)
11. 3층 멀티룸

3층은 방의 구분이 없이 통으로 이루어진 공간이에요. 그리고 야외 테라스가 있어요. 남편의 전원주택 로망을 실현한.. 헬스장과 영화관이에요.
사운드를 중요시 생각하기 때문에,,ㅎㅎ 7.1채널 스피커를 설치를 했구요, 120인치 스크린을 설치했어요. 암막 커튼까지 달아두어 실제 영화관에 온 것 같은 나만의 영화관이에요. 이렇게 만들어 놓으니 정말 영화관을 거의 가지 않았어요..

런닝머신과 사이클, 간단한 운동 기구들을 놓아서 매일 여기에서 운동을 하구요, 벽면에는 큰 유리를 제작해 붙였는데요, 운동을 하며 거울로 체크할 수도 있고 공간이 더욱 넓어 보이는 느낌이에요.
벽지는 그레이 톤에서 가장 어두운 lg벽지를 선택하여 벽 전체와 천장까지 같은 색상으로 하였구요, 바닥 또한 르플로 마루인데요, 원목 마루 중 제일 어두운 블랙톤을 선택했고 전체적으로 헬스장 느낌을 더해주기 위해 어둡게 하였어요.
12. 3층 테라스

3층의 테라스 공간인데요, 코스트코에서 구매한 가제보를 설치해 놓았어요. 가제보 아래에는 나무 데크를 설치해 놓았구요. 내부에는 야외 라탄 가구를 놓았어요. 날씨 좋은 날 책을 읽거나 티타임을 즐기곤 해요.
라이프 타임 조립식 창고인데요, 야외 라탄 가구에 있는 쿠션과 방석을 사용하지 않을 때는 이곳에 넣어 보관해요. 사용할 때만 꺼내 쓰니, 먼지 타지 않고 좋아요.

그리고 이케아에서 구매한 바테이블과 의자를 놓았어요.

그리고 깨알 농작물을 키워서 소소한 재미를 즐기고 있어요.
13. 건물 외관

14. 정원

차가운 도시 느낌과 영국의 작은 시골마을 (코티지 정원 cottage garden)을 믹스매치한 저희만의 느낌의 공간이에요. 저희 집은 동남향으로 오전 해가 따스하게 들어오고, 오후에도 따스한 빛이 들어와요. 정원에 있으면 저희 부부가 같이 가꾼 꽃, 그리고 댕댕이들과 정말 힐링 그 자체에요.

사계절 중 한여름과 한겨울을 제외하고는 집에서 거의 많은 시간을 보내는 곳이에요. 4년간 정원을 가꾸며 점점 더 식물에 빠지게 되었어요. 집을 둘러싸고 있는 나무 울타리는 직접 만들어 설치하였구요, 목재로 된 장식이나 목재 아치들은 직접 만들었어요. 코스트코에서 구매한 라이프 타임 창고를 놓아, 정원에서 사용하는 용품들을 보관했어요.

정원에 둘러싸인 느낌으로 있고 싶어, 한가운데에 식탁을 놓았는데요. 주로 밥을 이곳에서 먹거나 티타임을 즐기곤 해요. 정원 일을 할 때 작업대로도 쓰입니다 :)

요리하는걸 즐겨, 이렇게 샌드위치나 베이커리를 구워 정원 테이블에서 먹기도 해요 :)

씨앗 파종을하고 발아한 모종을 포트로 옮겨주고 있어요 :)
15. 유리 온실

주택살이에 유리온실이 로망이어서, 여러 번 도면을 그리고 수정하고 설계한 끝에 만든 유리 온실이에요. 박공 지붕을 꼭 하겠단 목표로 만들었는데요, 면마다 창을 만들어 통풍이 잘되게 하였고 산 쪽으로 바라보는 ㄱ자를 폴딩도어로 했어요.

한쪽은 전체 폴딩도어이고, 한쪽은 위로 반쪽만 폴딩도어로 해서 아랫쪽은 장식장도 놓고, 화분도 올려놓고 활용성을 높여주었어요.


천장에는 햇빛을 가릴 수 있는 커튼을 달아주어, 계절에 따라 햇빛이 들어오는 걸 고려해 조정해줄 수 있어요. 위에는 실링팬을 설치해 놓았는데요, 열기를 내려주기도 하고 공기를 순환해주어요. 조명은 빈티지한 소품을 판매하는 매장에서 구매했어요. 무게가 꽤 나가요.

발리용품 전문 매장에서 구매한 조개껍데기로 만든건데요, 바람이 불면 살랑살랑 조개껍데기 흔들리는 소리가 너무나 아름다워요.

온실에서는 따스한 햇살이 비추는 날, 비가 내리는 날, 눈 오는 날, 시시 때때로 계절을 느낄 수 있어요. 손님이 오면 시간을 보내기도 하고, 식사를 하거나 정원 작업을 하기도 해요. 천장까지 유리로 되어있으니, 비 오는 날이나 저녁에는 운치 있어 너무 좋아요.


겨울엔 이렇게 등유난로를 떼고 빔 프로젝터 스크린을 내려 영화를 보곤 해요.

선선한 가을 날씨가 되면, 정원에서 자주 즐기는 캠프파이어에요. 여러 화롯대를 사용해보았지만, 결국 보관의 편리함과 이동성이 편한 미니 화롯대를 선택하게 되더라구요!
겨울 정원


겨울에 눈 내린 날의 정원이에요. 트리는 직접 만들어서 장식도 달아주고 꾸몄어요. 눈 내리는 날 이렇게 텐트 치고 라면도 끓이고 마치 캠핑장처럼 즐기기도 합니다 😊

마치며

좋은 기회를 주셔서 이렇게 저희 집을 소개하게 되었는데요! 주택 생활과, 정원에 있어서 앞으로 좋은 정보들 많이 공유할 수 있도록 해볼게요.^^ 긴 글 읽어주셔서 정말 감사합니다. ❤️

