전원 주택의 로망이 가득한 집, 충추 '겸손한 家'

넓은 마당과 함께 전원 생활의 로망을 가득 담은 주말 주택 한 채. 단정하게 내려온 모임 지붕 아래로 아름다운 풍광과 건축적 공간감이 공존한다.

“전원 주택 생활은 제 인생의 로망이었죠.”
건축주는 오래도록 꿈꿔왔던 주말 주택을 계획하며 경기에서 강원까지 여러 지역의 땅을 보러 다녔다. 지금의 전원주택 단지를 처음 만났을 땐 확신이 들지 않았지만, 많은 부지를 답사한 후 다시 방문하자 이곳의 매력을 확실히 느낄 수 있었다. 첩첩의 산으로 둘러싸인 대지는 자연의 편안함을 담고 있었고, 근방에 공장 등 혐오시설이 없어서 만족스러웠다. 건축주의 본가가 있는 용인 수지에서 도로 상황에 따라 한 시간 안에도 들어올 수 있다는 장점 또한 있었다.


SECTION


직사각형 형태의 대지 위, 정사각형의 주택 앞으로 널찍한 마당이 펼쳐진다.
주택 주변의 외부 동선 곳곳에도 조경 공간을 구성했다.
마당의 포인트 중 하나인 온실은 10평 정도로 여유있게 만들었다. 온실 입구에는 데크를 조성해 바베큐 등 다양한 활동을 즐길 수 있게끔 했다.

긴 직사각형의 대지 위에서 건축주가 첫 번째로 원했던 요소는 마당을 최대한 넓게 만드는 것이었다. 조경에 관심이 많았던 건축주는 10평 내외의 큰 온실과 텃밭, 정원으로 채워진 여유 있는 마당을 그렸다. 여기에 튀지 않는 모습으로 주변과 어우러지는 집을 요청했다. 이에 ‘사무소 구체’는 정사각형의 단정한 평면을 구성하고, 깊이감 있게 내려오는 묵직한 모임 지붕과 벽돌, 석재를 활용해 자연과 조화하는 겸손한 형태의 집을 제안했다.


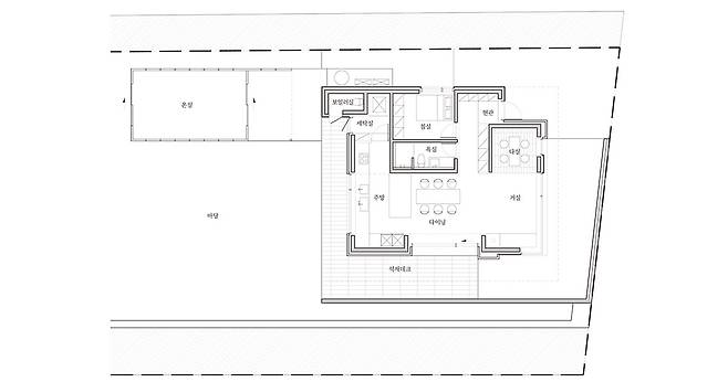
HOUSE PLAN
대지위치 : 충청북도 충주시 | 대지면적 : 784㎡(237.16평) | 건물규모 : 지상 1층 | 건축면적 : 119.31㎡(36.09평) | 연면적 : 118.44㎡(35.83평) | 건폐율 : 15.22% | 용적률 : 15.11% | 주차대수 : 1대 | 최고높이 : 5.3m | 구조 : 기초 – 철근콘크리트 매트기초 / 지상 – 철근콘크리트 | 단열재 : 기초 – 준불연 경질 우레탄뿜칠 100㎜ / 지붕 – 준불연 경질 우레탄뿜칠 150㎜ / 바닥 – 200㎜ 압출법보온판 1호 | 외부마감재 : 두라스택 S500 허니브라운(500*50*90), 일신석재 베트남블랙 T30 버너구이 | 담장재 : 콘크리트 타설 | 창호재 : 윈센시스템창호 THK39 양면로이 투명삼중유리 알루미늄 창호(에너지등급 2등급) | 에너지원 : LPG | 조경 : 건축주 직영공사 | 전기·기계·설비 : 대도엔지니어링 | 구조설계 : 바우엔구조 | 설계·시공·감리 : 사무소 구체

미팅을 진행하며 초기의 구조와 내부 구성은 조금씩 변경되었다. 우선 주말 주택임을 고려하여 편리한 관리와 안전을 위해 경량목구조에서 철근콘크리트구조로 설계를 변경했다. 또한 생활의 편의를 위해 다락을 생략했고, 집의 중심을 잡아주는 지붕의 형태를 그대로 살려 실내에서도 입체적인 공간감을 느낄 수 있도록 천장을 계획했다. ‘사무소 구체’는 시공도 함께 진행하면서 특히 지붕과 천장의 건축적 완성도를 높이기 위해 심혈을 기울였다. 이러한 변경은 건축면적과 예산에 큰 영향을 주는 요소들이었지만, 건축주와 건축사사무소가 서로 긴밀하게 소통한 결과이기 때문에 살면서 매우 만족한다고 건축주는 말했다.

입구 복도에서 북쪽 경치가 내다보인다. 그 앞에는 마당으로 이어지는 석재 데크가 설치되어 있다. 높은 천장과 단정한 지붕선으로 개방감이 느껴진다.
슬라이딩 도어와 코너창을 통해 아름다운 경관이 그림처럼 담긴다. 건축주의 요청 사항 중 하나였던 벽난로가 거실 한쪽을 채운다.

아토피 때문에 인테리어에 관심을 가지게 되었다는 건축주는 2000년대 초반부터 아파트 셀프 인테리어를 하며 많은 지식과 함께 높은 안목을 가지고 있었다. 하루이틀을 제외한 거의 매일 공사 현장을 오가며 집이 완성되어가는 과정을 꼼 꼼히 논의했고, 친환경 자재와 주방 가구 등에는 건축주의 내공이 더해져 더욱 특별한 공간이 완성되었다.


PLAN


주방의 넉넉한 아일랜드와 조리대는 스테인리스 스틸 상판을 적용해 미니멀한 디자인과 함께 사용의 편의성을 높였다.
천장의 디테일을 위해 간접 조명 외에 다른 조명은 생략했다.

집은 심플한 구조 속 내외부가 자연스러운 흐름으로 교류할 수 있도록 구성되었다. 현관에 들어서면 높은 천장과 함께 슬라이딩 창에 담기는 북쪽 풍광이 발길을 인도한다. 복도 끝에 다다르면 동서로 길게 이어지는 주방과 거실이 시원한 개방감과 함께 나타나고, 공간을 두르는 가로창과 코너창이 대지를 에워싼 산세를 파노라마로 담는다. 동쪽 주방 너머로는 건축주의 손길로 항상 깨끗하게 관리된 모습의 정원이 펼쳐진다. 다용도실에 외부 출입구를 두어 정원으로 바로 통하도록 동선을 고려했다. 여기에 콤팩트한 침실과 넉넉한 욕실이 더해져 주말 주택으로서 더할 나위없이 충분한 집의 모습을 보여 준다.
누군가는 집을 지으면 10년은 늙는다고 말하지만 건축주는 아니었다. 진심을 가진 사람들과 한 땀 한 땀 정성을 다해 완성해가는 과정이 즐거웠다는 건축주와 사무소 구체. 입주하고 1년이 지난 지금, 단정하고 겸손한 모습으로 유지되고 있는 집과 정원에서 건축주의 열정과 애정이 묻어난다.


INTERIOR SOURCE
내부마감재 : 바닥 – 더존마루 원목마루 Fore Baum-Select Oak(M) 14×190×1,900 / 벽, 천장 – 벤자민무어 친환경도장 / 욕실 천장 – 이노솔 | 욕실 및 주방 타일 : 욕실 – 이본세라믹 OCEAN BLACK SAND 595×1,192 / 외부 화장실 – 윤현상재 SSP/NEO ANTHRACITE(P577) 600×1,200 / 주방 – 윤현상재 TAXOS(C107) | 수전 및 욕실기기 : 더존테크 하프벽매립 5506 니켈, 더존테크 하프벽매립 샤워 1301 니켈, 보보 TCB 8100W, 아메리칸스탠다드 웨이브 업S, 씬엣지 언더볼 CCASF514 | 주방 가구·붙박이장 : 우림앤뮤즈 | 조명 : 인쇼스토어 CCT 2인치 원형 다운라이트, CCT LED바 | 현관문 : 미건도어테크 FD-단색분체도장(외부그레이) | 방문 : 예림도어 양맞춤면엣지 다대 심재보강 위 필름 시공, 예림도어 ABS 다대 심재보강 위 필름 시공 | 데크재 : 일신석재 베트남블랙 T30 버너구이

침대와 수납장으로 콤팩트하게 구성된 침실.
집의 중앙에서 중심을 잡고 있는 욕실.
거실 안쪽의 다실은 올려진 바닥과 천장의 경사가 색다른 공간감을 형성한다.
마당에 설치된 다양한 조경석들은 건축주가 직접 발품을 팔아 고른 것들이다. 텃밭에는 방울토마토, 수세미, 가지 등이 자라고 있다. 작년에는 텃밭에서 기른 배추로 김장을 할 정도로 열심히 관리 중이다.

건축가 김선욱 : 사무소 구체
사무소 구체를 이끌고 있다. 사람들은 종종 디자인을 어렵게 느끼고, 시공은 자신과 먼 전문 영역이라고 생각한다. 사무소 구체는 그 거리감을 좁히기 위해 ‘구체’라는 이름을 만들었다. 누구나 이해할 수 있는 언어로 풀어내고, 그 이야기를 현실의 공간으로 구현해내는 것을 목표로 한다. www.officegch.com

취재_ 조재희 | 사진_ 변종석
ⓒ월간 전원속의 내집 2025년 10월호 / Vol. 320 www.uujj.co.kr