대학에서 오랜 시간 교편을 잡던 부부가 은퇴하고 지은 든든하고 견고한 주택.
공원으로 가는 길목과 바로 이어져 산책은 하루의 필수 루틴이 되었다.



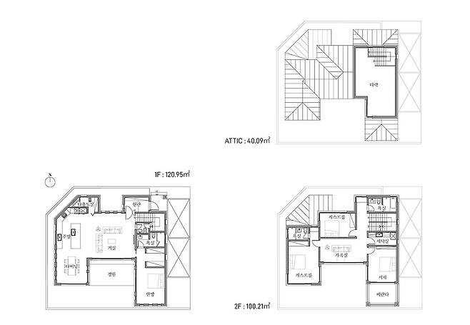
House Plan
건물규모 : 지상 2층 + 다락
건축면적 : 135.90㎡(41.10평)
연면적 : 261.25㎡(79.02평)
건폐율 : 49.04%(법정 50% 이하)
용적률 : 79.81%(법정 80% 이하)
주차대수 : 2대
최고높이 : 8.9m
구조 : 기초 –철근콘크리트 매트기초 / 지상 – 경량목구조 (외벽 2×6 구조목 / 내벽 S.P.F 구조목 / 지붕 2×10 구조목)
단열재 : 내단열 – 글라스울 가등급(크나우프) / 외단열 – 스카이텍
외부마감재 : 외벽 – 라임스톤 / 지붕 –컬러강판
담장재 : 이노블록
창호재 : 살라만더 bluEvolution 82
철물하드웨어 : 심슨스트롱타이, 메가타이
열회수환기장치 : LG 환기시스템
에너지원 : 도시가스
조경석 : 이노블록
감리 : 예촌건축사사무소
설계·시공·조경 : 스위트홈(에스종합건설주식회사) 1544-4140 www.sweeth.com


건축주 부부는 대학교수직을 은퇴하고 세종시에서 경기도 쪽으로 이사를 계획하는 과정에서 주택을 짓고자 결심했다. 미국 유학 시절, 단독주택에 사는 경험은 이미 충분히 했고, 세종시에서도 단독주택을 매입해 살아봤기에 부부에게 단독주택에서의 생활은 익숙했다.
부부는 세종에 거주할 당시 산책하며 우연히 본 주택이 마음에 들어 찾아보다 ‘스위트홈’이라는 회사를 알게 되었다. 그러다 꽃을 사러 들린 원예 단지에서도 우연히 마주친 분과 이야기를 나누다 그분 역시 ‘스위트홈’을 통해 단독주택을 지었다는 이야기를 들었다. 그렇게 스위트홈과 인연이 되었고 주택을 짓기에 적합한 여러 대지를 답사했다.
답사 중 동탄호수공원 옆에 위치하여 아름다운 호수, 멋진 미류나무 숲과 잘 설계된 데크 산책로가 마련돼 있는 지금의 대지를 선택하게 되었다. 공원 산책로가 지척이라 부부가 중요하게 고려하는 건강을 위한 산책, ‘반려견과 함께하는 삶’에 적합했고, 호수공원 근처 상가에 맛집들도 많고 다양한 생활 인프라도 제법 충분한 편이었으며 작은 산 근처에 위치해 공기도 맑았다.



Interior Source
욕실 및 주방 타일 : 티앤피세라믹 + 윤현상재 수입타일
수전 등 욕실기기 : 아메리칸스탠다드
주방 가구·붙박이장 : 키친코드 제작가구
조명 : 매입등 – 필립스 / 마그네틱 트랙등 – 네모조명 / 식탁등 – 루이스폴센
계단재·난간 : 무늬목 (화이트오크), 평철난간 + 오크 원목 손스침
현관문 : YKK 베나토
중문 : 이노핸즈 양방향 중문
방문 : 영림도어
데크재 : 포천석
Kitchen & Dining.
다이닝 공간에도 마당과 공원을 향해 전면창을 냈다. 도로 쪽으로는 세로창을 적용해 개방감과 프라이버시를 모두 누릴 수 있도록 했다. 주방에는 대면형 아일랜드를 설치해 거실과 다이닝 공간과의 소통을 강조하고 넉넉한 수납을 확보했다. 물건을 늘어놓는 것을 좋아하지 않는 건축주의 요청으로 주방 냉장고장 뒤에 위치한 보일러실도 두 공간으로 분리하여 한쪽에는 제법 큰 수납공간을 마련했다.





호수공원 쪽의 풍경은 살리되 인근 아파트와 마주 보고 있어 프라이버시가 보장될 수 있는 주택의 설계가 관건이었다. 코너에 있는 대지의 여건 덕에 산책로를 따라 줄지어 있는 미류나무를 볼 수 있는 2층의 탁 트인 경치가 장점이 되도록 창의 방향을 정하고 실을 구성했다. 자녀들의 방문이 잦고, 외부 손님도 많이 초대하는 까닭에 공용공간이 구분되어 답답한 것보다는 확 트여 넓어 보이는 구조를 중점으로 설계했다. 따라서 주방으로부터 거실로 향할수록 높이가 낮아지는 가구의 배치를 계획하고, 거실 아트월 양옆의 도어는 히든도어로 배치해 개방감을 줬다.


구조는 단열에 강하고, 건강에 좋고, 경제적인 형태의 목구조로 계획하였다. 바닥에 열전도판을 시공해 에너지 효율을 향상시켰다. 외장재는 모노 타일, 벽돌 등 다양한 선택지를 놓고 고민하다가 양쪽 건물이 모두 적벽돌 주택이어서 다른 건물과의 분리, 유지·보수가 간편한 라임스톤 계열의 석재로 결정되었다. 내부는 계절이나 분위기에 따라 가구, 소품들로 포인트를 줄 수 있도록 미니멀한 화이트와 베이지 톤의 배경으로 마감했다. 거실은 반려견들과 함께 생활하는 공간이니만큼 생활 기스 및 물에 강하면서도 원목마루의 질감을 가지고 있는 광폭 강마루를 시공하여 넓은 공간감을 극대화해 주었다.
이로써 유지 및 보수가 간편하면서도 모던하고 개방감 있는 은퇴 주택이 지어졌다.





기획_오수현 | 사진_변종석
ⓒ 월간 전원속의 내집 2025년 1월호 / Vol.311 www.uujj.co.kr