PENTHOUSE FOR FAMILY

테라스의 장점을 누리기 위해 선택한 펜트하우스지만 구조적
특성으로 인해 아쉬움을 느꼈던 건축주는 인테리어를 통해 그 해답을 찾아냈다. 통일된 컬러감 속 다양한 소재가 주는 질감의 미학과 다이닝이라는 공간을 통해 핵심 공간인 테라스로 향하는 동선을 다채롭게 만들어냈다.



송도신도시로 잘 알려진 인천 연수구의 한 아파트. 30대에 두 아이의 부모인 건축주는 부부는 도심 속 테라스가 있는 집이라는 장점에 이끌려 아파트 탑층의 펜트하우스를 구매했다. 그러나 건축주의 생각과 달리 이 집의 테라스는 마주 보는 두 세대 중 하나를 튼 모양새 덕에 주 공간인 안방이나 거실과 멀리 떨어진 작은방과 붙어 있는 구조였다. 긴 복도를 두고 떨어진 이 테라스의 물리적인 한계와, 여기에서 비롯되는 아쉬움을 극복하고자 건축주는 817디자인스페이스의 문을 두드렸다.
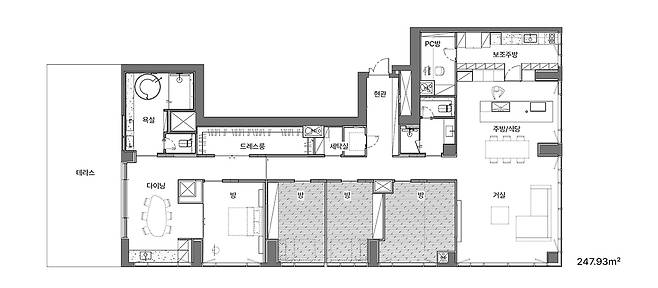
PLAN

INTERIOR SOURCE
인테리어 면적 : 247.93㎡(75평)
내부마감재 : 벽·천장 - 벤자민무어 SCUFF-X 도장 / 바닥 -세티나인 빅슬랩 포세린 타일, 지복득마루 원목마루(작은방1,2,3)
욕실 및 주방 타일 : 거실 - 토탈석재 빅슬랩 타일, 천연 대리석(세면대) / 안방 - 두오모 빅슬랩 타일
수전 등 욕실기기 : 써머비 코쿤
주방 가구 : 제작가구, 토탈석재 빅슬랩 타일(아일랜드), 유앤어스 무니크(키큰장), 넥서스 제시(싱크수전), 하농 리마데시오(식탁), 디에디트(펜던트 조명) 거
실 가구 : 잭슨카멜레온 클레이소파
방문 : 제작 도어
중문 : 안방, 다이닝 - 리마데시오 유리도어 / 드레스룸 - 위드지스 유리도어
붙박이장 : 제작가구
조경 : 더숲
IoT : 아이오티랩
인테리어 설계 및 시공 : 817디자인스페이스 02-514-1723
https://www.instagram.com/817designspace_director


가족을 위한 구조를 고민한 끝에, 테라스 옆에 가족실의 역할을 할 다이닝룸을 만들었다. 그리고 그 옆에 안방을 두고, 기존의 안방 자리에 주방을 배치했다. 현관으로 들어서면 긴 복도를 통해 우측으로는 안방, 좌측으로는 주방과 거실로 분리된다. 안방의 프라이버시를 위해 유리 중문을 설치해 인테리어에 포인트까지 더했다. 다이닝룸은 복도 중문을 닫고 안방과 다이닝룸을 연결하면 부부만의 공간이 된다. 또 중문을 개방하면 가족실의 역할을 하며 동시에 아이들이 친구를 초대하기 위한 파티룸으로도 활용된다. 이렇게 거실과 주방, 다이닝까지 세 공간을 모두 큰 사각 프레임 안에 배치하고 경계를 모호하게 해 더 넓어 보이는 구조를 완성했다.


인테리어의 전반적인 컬러는 베이지로 설정하되, 단조로워 보이지 않게 각기 다른 텍스쳐와 포인트 컬러를 적절히 조합했다. 대표적인 것이 다이닝 공간의 포인트인 싱크볼로, 시각적으로 특별한 가구를 만들기 위해 천연 대리석을 사용했다. 싱크볼 표면과 하부 수납장을 모두 같은 대리석으로 통일하고 덮개를 덮으면 하부장처럼 보이며 더욱 깔끔한 공간이 된다. 이외에도 주방 키큰장의 무늬목이나 화장실의 타일들까지 자연스러운 색감을 유지하는 데 중점을 뒀다.
인테리어 포인트

유리 중문
침실과 다이닝을 나누기 위해 채택한 프레임형 슬라이딩 중문. 무늬가 들어간 유리가 채광과 어우러진다.
대리석 싱크대
다이닝 공간을 더욱 돋보이게 만드는 포인트 요소. 덮개를 활용하면 싱크와 수전을 가려 하부장처럼 연출할 수 있다.
테라스를 바라보는 세면대
안방의 욕실은 파우더와 화장실을 한 공간으로 튼 뒤 입구 동선을 따라 긴 세면대를 둬 테라스를 바라보도록 구성했다.


또 다른 포인트는 바로 IoT홈. 음성명령이나 앱 조작으로 조명, 커튼의 조작은 물론 시간에 따른 조명의 색온도 변화까지 루틴이 반영된 세팅값에 따라 자동화되어 있다.
집의 코어 공간인 테라스에는 집 안 어디에서나 시선 끝에 걸리는 큰 나무가 중심을 잡고 있고, 낮은 키의 식물들이 배경이자 경계의 역할을 한다. 집 안 곳곳으로 들어차는 채광의 공간이자 아이들을 위한 놀이터로 적극 활용 중이다. 아이들의 장난감이 자유로이 늘어져 있는 모습에서 건축주의 생활이 인테리어를 통해 바라던 모습을 찾아감을 엿볼 수 있었다.


구성_손준우 | 사진_쏘울그래프 포토그라피 / 진성기
ⓒ 월간 전원속의 내집 2023년 9월호 / Vol.295 www.uujj.co.kr