
안녕하세요. 소통으로 만들어가는 아름다운 디자인 퍼스트애비뉴 인테리어입니다. 오늘은 모던한 분위기의 화이트&우드로 리모델링한 49평 아파트 인테리어 현장을 소개해 드리겠습니다.
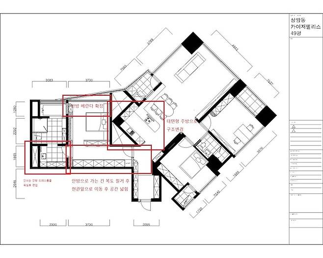
도면

이번 공사의 핵심 요소
1. 여러 번의 구조변경 (사진 꼭 참조) 2. TV가 있을 자리 대신 제작한 대형 책장 3. 매립 수전과 안방 욕실의 매립 욕조 4. 불필요한 공간은 과감히 없애기 5. 마감의 완성도를 좌우하는 고급 시공 기법 6. 가구까지 전부 퍼스트애비뉴가 제작부터 셀렉까지! 7. 호텔에서 볼 수 있었던 전동 커튼
완성도가 높을 수 밖에 없는 현장이죠 ^^?
현관 Before

기존의 현관은 49평 아파트의 현관이라고 하기에는 중문 때문에 상당히 좁은 느낌을 주고, 특유의 베이지 톤 타일이 올드한 느낌을 주고 있었어요.

바로 시야를 가로막는 답답한 주방 쪽의 가벽이 존재했지만 가벽을 없앤 만큼 효율적으로 현관을 사용할 수 있었어요 :) (글 상단의 도면을 보시면 현관과 복도의 레이아웃을 훨씬 쉽게 이해하실 수 있어요)
현관 After
뻔한 수납장은 NO! 전시장 같은 현관

현관부터 알 수 있는 드라마틱한 변화. 일부러 같은 구도에서 촬영한 사진인데 좀 와닿으시나요?!

현관 입구 좌측 방향은 양옆으로 수납공간을 넣어 자칫 답답할 수 있었는데요. 유리도어를 활용해 개방감을 확보하고, 디자인과 수납기능 두 가지 모두 가져갈 수 있었어요.

무엇보다도 유리도어의 뒤쪽으로는 라인조명같이 선명한 빛을 주면 빛의 노출 부위가 많기 때문에 눈이 아플 수 있었어요.
대신 은은한 바리솔 조명으로 훨씬 고급스러운 현관을 완성할 수 있었어요.

고객님께선 책을 정말 많이 가지고 계신 분이셨는데, 그런 니즈를 반영해 현관문의 오른쪽에는 이렇게 무늬목을 사용한 책장을 제작했습니다.


이 아파트 자체가 상당히 각진 레이아웃을 가지고 있어 라운딩을 여러 군데에 활용해 기존의 단점을 상쇄시켰습니다.
인테리어 및 리모델링 시 이렇게 공간 전체의 레이아웃 같은 부분을 고려한다면 같은 공간에서, 최대한의 효율로 공간을 활용할 수 있어요 ^^
주방 Before

기존 주상복합 주방의 가장 큰 구조적 핸디캡은 보시다시피 지저분한 천정 등박스 라인이었습니다.
주방 After
모든 주부들의 로망, 대면형 주방

기존에는 가벽으로 가려져 있어 폐쇄적인 ㄷ자 형의 주방을 가벽 철거 후 시원하게 개방감 있는 주방으로 바꾸어주었습니다.

단차를 두고 나누어져 있던 등박스 라인을 하나로 정리하고, 깔끔한 느낌을 극대화하기 위해 군더더기 없이 매입된 간접조명만으로 조도를 조절했습니다.

오로지 디자인만 생각하고 주방을 디자인하다 보면 기존 레이아웃이 가지고 있는 문제점이나 기능적으로 중요한 '수납'을 간과할 수 있어요. 그렇기에 구조변경과 같은 기초공사에 신경을 더 써야만 만족스러운 결과물을 얻을 수 있어요 ^^

주방 자재는 싱크대 상판과 벽면은 모두 세라믹으로 마감해 편의성과 고급스러움 두 가지를 가져갈 수 있었습니다.

세라믹 특유의 물결 같은 무늬를 싫어하는 분들을 위해 깨-끗한 화이트로만 구성된 스페인의 이날코 프리미엄 상판을 공수해 배치해 드렸습니다. 화이트 모던을 콘셉트로 하는 이번 현장에 적재적소에 맞게 잘 배치된 느낌을 줍니다.

주방에는 여러 가지 가전이 필요하기 때문에 콘센트는 필수로 들어가야만 하는데, 일반적인 디자인의 콘센트 대신 가운데의 작은 원을 누르고 뚜껑을 돌리면 코드를 꼽을 수 있는 구멍이 나오는 유니크한 제품으로 셀렉 해드렸어요 ^^

주방 서랍 쪽 아일랜드는 위쪽을 유리로 디자인해 서랍 내부가 훤히 보이도록 했는데요. 유리 아래로 보이는 내부까지도 디테일하게 여러 톤의 우드를 사용는데요. 주방에 상대적으로 우드의 비중이 낮다고 판단되어 서랍 아래의 섹션을 나눠주는 역할로 우드를 선택했어요.

터치 도어의 측면 마감도 깔끔한 느낌을 자아냄과 동시에 이색이 지지 않도록 스테인리스를 사용했습니다. 주방에 들어간 세라믹은 동일한 제품을 사용해 주방 전체의 일관성과 완성도를 높였어요.
거실 Before

앞서 말했던 기존 집의 가장 큰 문제, 지저분한 천장 등박스 라인과 불필요할 만큼 넓은 세탁실이 보이시나요?
거실 After
TV 없는 거실, 스크린과 책장을 활용해 공간 효율 높이기

거실은 그레이 톤의 널찍한 소파가 포세린 타일과 톤 앤 톤을 맞추어 주는데요,

우드와 그레이 두 가지 요소를 모두 갖춘, 마음에 드는 하드웨어를 찾기 위해 몇 날 며칠 발품을 팔아 데려올 수 있었어요 ^^;;
지저분했던 천장의 등박스 라인을 높은 쪽으로 통합해 천고를 올렸고, 좌측의 세탁실 입구는 소파 뒤쪽으로 동선을 이동시켜주어 불필요했던 공간을 없애고 거실의 면적을 넓혔습니다.


높인 천고를 통해 개방감을 주었으니, 화이트 우드 인테리어의 핵심인 깔끔함을 강조하기 위해 천장 안쪽으로 간접등을 매입했습니다.

뒤쪽의 세탁실과의 공간 분리를 위해 놔두었던 가벽이 좁은 주방을 더 답답하게 보이게 할 우려가 있기에 가벽의 상부는 유리블록을 시공하여 개방감을 가져갈 수 있었어요.

소파 뒤쪽은 세탁실로 통하는 문을 배치하고, 벽을 세워 세탁실과의 공간을 분리했습니다.

호텔에서 많이 보이는 전동 커튼! 거실에서도 만나보실 수 있어요 :) 편리하기도 하지만 이런 아이템 하나로 거실 전체가 고급스러워 보인답니다.

책을 정말 많이 소장하고 계신 고객님을 위해 기존에는 tv를 넣어야 할 자리에는 무늬목 책장을 제작해 드렸어요. 이번 현장은 디자인은 물론, 무엇보다도 고객님께서 살면서 겪을 경험들을 위주로 콤팩트한 수납공간을 마련하는 것도 아주 중요한 작업이었어요.

같은 타입의 공간에 TV가 없는 거실을 여러 번 제작한 경험이 있는데, 대부분은 이렇게 천장 안쪽으로 롤스크린을 설치해 한쪽 벽에서 수납과 시청 두 가지 기능을 가능케 하고 있어요.

디자인적인 요소를 가미하기 위해 밋밋한 무늬목 책장 대신 섹션 안쪽으로 라인조명을 길게 설치해 전시장 같은 느낌을 주는 하드웨어를 구상했어요.

책장의 하단을 나눠주는 매트한 소재의 블랙 바를 추가로 디자인해 모던한 느낌과 시선이 집중되는 포인트가 되어 주어주고 있어요.
안방 Before

기존 복도는 위의 도면에서 볼 수 있듯이 안방 드레스룸까지의 거리가 매우 길었습니다.

안방 베란다가 존재한다는 점을 기억하고 봐주세요! 실제 안방 면적은 50평대 아파트라고 하기엔 넓지 않은 모습. 확연히 티가 나죠?

(정확히 기존 안방의 벽 끝에서 촬영한 사진) 기존 침실의 노출된 몰딩들도 확인해 주세요.

불필요하게 긴 복도와 더불어 기본 아파트 구조에 포함된 침실 베란다 때문에 부부 침실의 전용 면적이 다소 좁았습니다.

확실히 기존의 침실은 넓은 베란다 때문에 효율성이 현저히 떨어지는 구조였죠?
안방 After
획기적인 구조 변경

현관을 지나 바로 찍은 모습이에요. 기존 복도는 길고 안방까지의 거리가 상당했기에 안방의 절대 면적이 좁았기에 복도를 줄이고 베란다를 확장하여 안방 내에서의 공간을 더욱 확보했습니다.

한눈에 봐도 앞의 비포사진과 비교했을 때 안방의 실사용 면적이 넓어짐이 드러나요.

아무래도 침구류 및 옷의 수납을 위해 키큰장을 넓힌 복도만큼의 면적에 넓게 설치했고, 깔끔한 느낌을 위해 라인등을 길게 매립시켜 올곧게 뻗은 직선의 느낌을 주고, 라인조명만으로는 부족한 조도를 보완하기 위해 간접조명 여러 개를 추가로 설치했어요.
안방 복도 한 가지에 얼마나 많은 디테일이 들어갔는지 알 수 있어요 :)

공간 확장 효과에 크게 한몫하는 '마이너스 몰딩'을 연출하기 위해 천장의 안쪽을 파내어 가구와 조명을 매립시켜 디자인했어요.

반려묘 3마리와 함께 생활하시는 고객님께 고양이들이 드나들기 쉽도록 문 하단 중앙 부분에 설치해 드린 고양이 전용 출입문도 제 역할을 톡톡히 하고 있어요 ^^

(가구 입주 전입니다.) 안방 입구 쪽 선반과의 공간 분리를 위해 제작 침대와 어울리는 가벽으로 파티션을 세웠는데요. 저희가 침실 인테리어에 자주 사용하는 방법!
파티션 상부를 투명한 유리로 제작하게 되면 가벽을 높게 세우는 것보다 공간이 훨씬 답답해 보이지 않아요🤭

안방 아트월 젠다이와 우측의 선반도 같은 자재의 천연 대리석을 사용해 무게감 있으면서도 공간 전체에 통일감을 줄 수 있었어요.

각각 다른 위치일지라도 같은 공간에 다른 종류의 타일을 사용하는 것보다 같은 종류의 타일은 통일감을 주기 때문에 이질감이 없어 보기에 훨씬 편해요!

안방의 베란다만큼을 확장하고 침실 공간으로 편입해 실용성을 높이는 데에 집중한 침실의 모습.

화장대 서랍의 상판도 천연 대리석으로 마감해 소재의 다양함을 연출했습니다:) 전체 콘셉트에 일관성과 부드러운 시각적 효과를 위해 침실 서랍의 모서리도 라운딩으로 마감했습니다.

라운딩 서랍과 어울리는 동그란 타원형의 거울도 배치했어요. 사소한 부분까지 신경 쓴 만큼 최선을 다했던 현장이라 더 애착이 가는 것 같아요.

제작 침대에는 전기공사를 통해 무드등을 매립시켜 설치했어요. 제작 침대의 큰 장점 중 하나는 침대 헤드에 콘센트를 설치할 수 있다는 점이에요 번거롭게 멀티탭을 사서 침대 옆에 휴대폰 충전기를 놓지 않아도 돼서 이 점이 참 편리하더라고요 ^^
입주하신 후 고객님의 편의까지 생각하는 게 침실 인테리어의 디테일이 아닐까요 :)
안방 욕실

분위기로 압도한다는 설명이 딱 어울리는 널찍한 안방 욕실입니다.

차콜 그레이가 주는 고급스러움은 독보적인 특성이에요. 기호의 차이는 있을 수 있지만 다른 타일을 붙여도 차콜 그레이만큼 고급스러운 느낌을 내는 건 쉽지 않거든요.

전혀 실용성 없었던 드레스룸을 철거하고, 그 공간만큼을 화장실로 넓혀주었기 때문에 이렇게 널찍한 화장실을 만들어 줄 수 있었어요! 이렇게 용도를 바꾸어주는 과감한 선택이 필요하다고 느낄 때가 많아요.

우드랑 매치하면 모던한 느낌이, 화이트랑 매치하면 밝지만 무게감 있는 공간이 연출되지만 이렇게 매트한 블랙을 사용해 조금 더 분위기 있고 시크한 느낌을 완성 할 수 있었어요.
하지만 단순히 차콜 그레이만 사용한다고 전체적으로 고급스럽고 시크한 느낌을 주지는 않아요.

어느 순간부터 간접등을 설치하지 않는 집이 오히려 찾기 어려워졌어요. 하지만 간접조명을 아주 여러 개 달아주지 않는 이상은 조도를 조절하기가 어려워요. 특히 이번 욕실처럼 어두운 공간에는 메인 광원이 반드시 존재해야 해요.

그래서 떠올렸던 라인조명! 심미적으로 부족했던 디자인 요소와 간접등만으로는 부족했던 광원의 역할까지 톡톡히 해 줄 수 있어요😉

제가 좋아하는 부분! 요 부분은 저희 실장님께서 고객님이 고양이와 생활하시는 것을 고려해 따로 마련해 주신 샤워공간이에요. 매번 아이들을 씻길 때 욕조 아래로 허리를 숙여 씨름하는 고통은 반려동물을 한 마리라도 키워보신 분은 공감하시리라 생각해요 하하..
아주 사소하고, 또 간과하기 쉬운 부분이지만 이런 디테일의 유무가 인테리어 업체 선정의 좋은 기준이 되셨으면 좋겠어요:)

또 하나의 포인트는 거울의 절반을 이렇게 루바를 덧대어 준 것인데요. 물론 우드의 질감이나 소재도 전체적으로 무게감 있는 욕실에 맞도록 오크우드를 사용했고, 타일로만 구성해 차가운 느낌을 상쇄시킬 수 있도록 자연이 고스란히 담겨있는 무늬목을 셀렉 했어요.

확장한 베란다 부분 만큼은 높이가 높은 욕조를 제작해 드렸는데요, 이 욕조의 가장 큰 포인트는 모든 수전을 매립시킨 데에 있어요. 사실 이 부분이 실무자들의 역량이 가장 차별화 될 수 있는 고급 시공의 한 가지이다 보니 공을 들일 수밖에 없더라고요.

사진으로 보이는 공간보다 깊게 제작해 드렸기 때문에 실제로 촬영 다녀왔던 날 욕조 안쪽까지 확인해 보니 진짜 온천같더라고요!

상암 카이저 팰리스 49평 인테리어의 전체 랜선 집들이 어떻게, 잘 보셨나요? 현장감 넘치는 유튜브에서도 꼭 확인해 보세요 :) 감사합니다!

