
수수한 모습의 단층 주택 내부로 들어서자 이색적인 풍경이 펼쳐졌다.
마감재를 덧대지 않고 원물 그대로의 매력을 드러내기 위해 과감하게 시도한 노출콘크리트 마감.
부부의 라이프스타일에 맞춰 세심하게 계획된 배치와 동선계획이 안정감 있는 집을 만든다.
시선을 차단해 여유롭게 만끽하는 마당 공간
고요하고 아늑한 분위기를 품은 세종의 한 주택단지. 획지형 단독주택 단지로서 잘 정리된 부지 주위에는 낮은 야산이 퍼져 있었고, 이 산세의 풍광을 풍부하게 끌어들이는 것이 주택의 첫 번째 이슈였다. 그와 동시에 외부 도로로부터의 시선을 확실하게 차단하길 원했던 건축주 부부의 요청 사항을 반영해야 했다.
“별채 형식의 자전거 보관 및 창고 공간과 건축 가벽, 그리고 담을 활용하여 프라이버시를 보호하는 구성의 중정형 배치계획을 그렸습니다.”
부부는 자전거와 운동 기구를 보관할 수 있는 독립적인 공간이 필요했는데, 이를 별동으로 계획해 외부 창고이자 마당을 지키는 가림막의 역할을 할 수 있도록 한 것이다.



SECTION

호림건축사사무소 김준희 소장은 이러한 배치와 함께 단층의 지붕라인과 가벽들이 서로 중첩되고 연결되어 산세의 모습을 담고자 했다고 전했다. 또한 프로그램별 조닝 및 동선계획과 촘촘한 세부 치수 계획을 통해 최대한 로스가 없는 공간을 구현했다. 부부는 집의 콘셉트를 ‘맨얼굴로 지은 집’이라고 표현했다. 원물의 가공하지 않은 자연스러움을 추구하는 부부는 노출콘크리트를 적극적으로 활용한 집을 완성하고 싶었다. 계획 부지는 지구단위계획상 외장재에 대한 제한이 있기에 노출콘크리트 마감은 내부 거실과 주방 공간에서 과감하게 적용되었다. 마당 가벽의 일부 구간에도 노출콘크리트 마감을 적용해 실내에서 마당을 바라보았을 때 집의 콘셉트가 이어지도록 연출했다. 노출콘크리트와 라왕 합판의 조화로 섬세하면서도 담담한 주택의 풍경이 완성되었다.



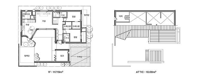
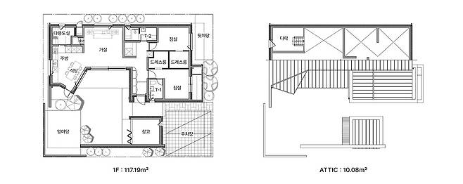
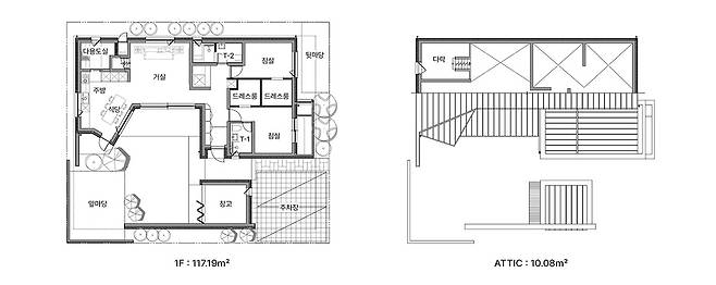
HOUSE PLAN
대지면적 : 303.50㎡(91.81평)
건물규모 : 지상 1층
거주인원 : 2명(부부)
건축면적 :118.27㎡(35.78평)
연면적 : 117.19㎡(35.45평) (1동 –107.38㎡, 2동 – 9.81㎡)
건폐율 : 38.97.%
용적률 : 38.61%
주차대수 : 2대
최고높이 : 6m
구조 : 기초 –철근콘크리트 매트 기초, 줄기초 / 지상 –철근콘크리트
단열재 :지붕 – THK170 경질우레탄 스프레이폼 / 외벽 –THK135 비드법단열재 가등급 / 기초바닥 – THK130 압출법단열재 가등급 / 층간 –THK30 경질보온판 가등급
외부마감재 : 외벽 – 컬러시멘트 모노타일 / 지붕 –THK0.5 컬러강판 돌출이음
창호재 : 살라만더 PVC (47mm 3중유리 양면로이 아르곤)
에너지원 : 도시가스
조경 : GARDEN DAM
시공 : 호멘토(HOMENTO) 1670-6234 www.homento.co.kr
설계 : 호림건축사사무소
PLAN




실의 구성에 있어서는 부부 각자의 독립적인 방을 필요로 했다. 아내는 층고가 높은 공간을 연출하고 싶었고, 남편은 적당한 층고로 아늑함이 느껴지는 공간을 선호했다. 방을 따로 분리하기는 했지만 평소 방보다는 공용 공간에서 지내는 시간이 많기 때문에 개인 공간의 면적을 줄이고, 거실과 주방 및 다이닝 구역을 큰 볼륨으로 조성했다. 높은 층고와 노출콘크리트로 완성된 공용 공간은 꺾인 각으로 인해 하나로 열려 있으면서도 분리된 동선을 만든다.부부에게는 외부 공간을 자유롭게 오가고, 마당에서 차를 마시거나 이야기를 나누며 여유롭고 조용한 시간을 보내는 것이 중요했다. 그러한 활동을 더욱 편하게 만끽하기 위해 데크를 보통보다 길게 조성했는데, 폭 2m, 길이 5m로 건축면적에 포함되는 것을 감안한 선택이었다.




INTERIOR SOURCE
바닥 : 원목마루(지복득마루)
욕실 : 마이크로시멘트(조군산업)
수전 등 욕실기기 : 폰타나(FONTANA), 로얄앤컴퍼니(주)
주방가구 : 이케아
수납장 : 미소디자인
조명 : 트웰브라이팅, 그린맥스
계단재·난간 :나왕합판 위 마이크로시멘트, 금속난간
현관문 : 살라만더 현관문
방문 : 우드원코리아 제작히든도어(수성스테인+락카도장)
데크재 : 콘크리트 위 마이크로시멘트



건축가 김준희, 호윤정 : 호림건축사사무소

진행 조재희 | 사진 변종석
ⓒ 월간 전원속의 내집 2024년 12월호 / Vol.310 www.uujj.co.kr