양주 목조주택 인테리어

이 주택에는 건축주 부부와 부모님, 자녀들이 함께 생활한다. 거주 인원이 7명이라 방이 많이 필요했고, 거실과 주방도 넓어야했기에 설계에서 가장 중점 둔 사항은 최대한 공간 낭비를 줄이는 것이었다. 전체 면적 대비 많은 방이 필요했지만, 거실과 주방 크기를 줄이는 건 원하지 않았다. 따라서 거실과 주방 면적에 20평 정도 할애하고 일체형으로 계획해 가족이 다 모여도 넉넉한 공간으로 계획했다. 부부가 거주하는 2층에도 탁 트인 가족실과 테라스를 만들어 답답하지 않게 했다.
글 조아라(㈜더존하우징 인테리어부 과장) | 진행 백홍기 기자 | 사진 더존하우징
HOUSE NOTE
DATA
위치 경기도 양주시 옥정동
건축구조 경량 목구조
대지면적 323.06㎡(97.72평)
건축면적 157.28㎡(47.58평)
건폐율 48.92%
연면적 283.33㎡(85.71평)
1층 153.04㎡(46.29평)
2층 110.45㎡(33.41평)
포치 4.25㎡(1.29평)
2층 테라스 15.60㎡(4.72평)
용적률 88.13%
외부마감
지붕 - 0.45T 컬러강판
벽 - 치장벽돌, 모노타일
데크 - 석재 데크, 합성목재
단열재
지붕 - THK220 글라스울 R37
내벽 - THK140 글라스울 R23
설계 및 시공 더존하우징
1644-3696 www.dujon.co.kr
MATERIAL
벽 벽지, 친환경 수성페인트
바닥 공용부 - 타일, 그 외 강마루(헤링본 패턴)
천장 벽지
창호 독일식 시스템창호
계단 철재 오픈 계단, 멀바우 집성목(챌판), 화이트 평철 난간
내부도어 영림도어, 도장 도어
위생기구 아메리칸 스탠다드, 대림바스
주방가구 에넥스
INTERIOR CONCEPT!
1층은 화이트, 2층은 블랙 & 화이트 콘셉트로 설정하고 벽면에 웨인스코팅 마감을 적용해 전체 모던 프렌치 스타일로 계획했다. 각 방은 가족 구성원 성향에 맞게 프렌치 스타일의 뮤럴벽지와 한식 스타일로 연출해 개성이 넘치는 공간으로 완성했다.
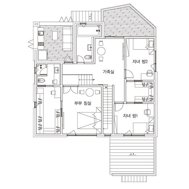
부지는 동쪽과 북쪽이 시원하게 열린 단지 코너에 있다. 건물은 북동쪽이 도로라 최대한 도로변에 건물을 붙이고, 남쪽에 마당과 주차장을 계획했다. 주요 공간 구성은 빛이 좋은 남쪽에 거실과 부모님 방을 두고, 오전 빛이 들어오는 동쪽에 자녀 방, 빛이 적게 들고 통풍이 좋은 북쪽에 주방과 다용도실을 배치했다. 방은 총 6개이며 남쪽에 있는 거실과 안방은 스킵플로어 방식으로 연결해 거실 천장을 높여 개방감을 확보하고 안방에 충분한 채광까지 살렸다. 동쪽과 서쪽에는 실 위에 데크와 테라스를 만들어 전망 좋은 가족의 휴식 공간을 만들었다.

현관

화이트로 밝게 꾸민 공간에 비앙코 포셀린 타일과 골드 손잡이를 사용해 포인트를 주었다. 중문과 가구 도어에는 몰딩을 적용해 고급스러움을 더했다.
주방/식당

벽면 타일을 음각 형태로 제작해 웨인스코팅 분위기와 연결한 듯한 느낌을 내 전체 인테리어 통일감을 주고, 천장 루버를 짙은 우드 컬러에 사선 형태로 디자인해 포인트를 살렸다. 여기에 내추럴한 주방 가구를 매치해 고급스러운 분위기를 냈다.
거실

웜 톤 연그레이 타일을 바닥과 아트월에 매치해 단정하고 미니멀한 분위기를 만들었다. 천장과 아트월에 은은한 간접조명을 설치하고 샤무드 소파를 배치해 더욱 포근하고 아늑한 공간으로 연출했다.
계단

계단실은 금속 오픈 계단 구조를 적용해 시원하고 개방감을 줌으로써 거실에서 포인트 역할을 하도로 했다. 흰색 난간과 멀바우 계단재가 미니멀한 공간에 이질감 없이 어울린다.
부모님 방과 연결 복도
단 올림으로 툇마루와 영역을 분리한 부모님 방은 천장에 노출 서까래 디자인을 적용하고, 전통 무늬 조명과 도어를 설치해 한실 느낌을 강조했다. 짙은 우드 톤 가구를 배치해 차분하고 고풍스러운 분위기를 더했다.
1층 공용 욕실

블랙 액세서리와 포인트 타일로 마감해 모던하고 세련된 공간으로 연출했다. 세면대 하부장과 탑볼이 공간에 세련미를 더한다.

부부 침실

부부 침실은 헤드월에 액자 형태 몰딩으로 포인트를 주고 벽면에 부드러운 웨인스코팅과 블랙 헤링본 강마루가 어우러지도록 마감해 고급스러운 프렌치 스타일로 연출했다.
자녀 방1

핑크 톤 웨인스코팅 뮤럴벽지와 크림 톤 가구를 배치해 예쁜 공주님 방으로 완성했다.
자녀 방2

블루 톤 웨인스코팅 뮤럴벽지를 적용해 귀여운 프렌치 콘셉트를 유지하고 가구와 조명을 톤온톤으로 매칭해 편안한 느낌을 냈다.
2층 가족실

가족실은 벽면에 웨인스코팅으로 마감하고 블랙 톤 헤링본 마루를 조합해 품위가 넘치면서 아늑한 프렌치 스타일로 연출했다.
2층 테라스

간이주방을 설치하고 바닥을 타일로 마감해 언제나 식사와 가족모임이 가능한 공간으로 연출했다. 게다가 폴딩도어를 설치해 야외에서 식사하는 기분을 내도록 하면서, 공간 활용성까지 높였다.