

도시의 건물이 차지하는 바깥의 크기는 종종 건물 앞쪽이 면한 도로의 크기와 같습니다. 20m 도로와 접하면 문 앞도 시원하고 시선도 멀리 보낼 수 있습니다. 4m 도로는 작고 답답하지만 주거환경으로는 괜찮습니다. 아담하고 조용하고.
가원집의 앞길은 보차혼용의 8m 도로니 중간 크기의 바깥입니다. 앞길을 따라 나란히 놓인 이웃 땅들에는 없는 이 땅만의 장점도 있습니다. 삼거리의 끝에 위치해 집의 바깥이 앞길 건너편에서 멈추지 않고 길의 길이를 따라 쭈욱, 열립니다. 예전 건물은 건축주가 어린 시절부터 요즘까지, 거의 평생을 보낸 집이었습니다. 새집이 필요했지만 동네를 떠나지 않고 그 자리에 새집을 짓기로 했습니다. 건축주의 세 아이는 아버지가 자란 장소를 이어받게 될 것입니다. 그 장소는 아버지의 아버지와도 이어져 있습니다. 땅이 돈이 아니라 장소의 형태로 대를 이으니 요즘에는 드문 일입니다.



HOUSE PLAN
대지위치 : 서울특별시 동대문구 장안동 439-7
대지면적 : 343.20㎡
건물규모 : 지상 5층
거주인원 : 5명(부부+자녀 3/주인세대가 4층 일부와 5층, 다락층 사용)
건축면적 : 166.47㎡
연면적 : 563.76㎡(1층-86.33㎡, 2층-144.56㎡, 3층-144.56㎡, 4층-95.92㎡, 5층-92.39㎡, 다락-33.52㎡)
건폐율 : 48.51%
용적률 : 164.27%
주차대수 : 7대
최고높이 : 16.75m
구조 : 기초 - 철근콘크리트 매트기초, 지상 - 철근콘크리트 혼합구조
단열재 : PF board 120㎜
외부마감재 : 외벽 - 스타코플렉스, 유로폼 노출콘크리트
조경재 : 콩자갈노출포장
전기·기계 : ㈜정연엔지니어링
설비 : ㈜정연엔지니어링
구조설계(내진) : ㈜누리구조엔지니어링
시공 : 창재종합건설(주)
설계 : 수상건축




첫 검토 때는 항상 하던 대로 최대치의 면적을 찾았습니다. 땅 크기가 약 340㎡니 용적률 200%로 건물 크기는 680㎡. 예산 초과가 예상됐습니다. 시행사가 아닌 개인이 짓기에는 땅이 조금 큰 편이었습니다. 9세대의 원투쓰리룸 구성을 그대로 유지하면서 예산에 맞게 건물 규모를 조정하는 작업이 이어졌습니다. 처음에는 이게 가능한 일인지 걱정도 됐으나 어찌어찌 예산에 맞는 560㎡ 건물이 나왔습니다. 종심형으로 좁고 긴 대지의 깊이 방향을 다 사용하고 너비 방향으로 건물을 줄였습니다. 이런 방식이 첫 검토안의 세대 구성을 유지하는데 적합하기도 하고 동시에 도심지 저층집합주거, 빌라와 그 주변의 관계를 새롭게 하는데 도움이 되는 방식이라고 판단했습니다.
서울시 공지 기준에 따라 다세대 빌라는 옆 땅으로부터 1m를 이격해야 합니다. 옆 건물도 빌라면 건물 사이는 2m. 빌라 골목의 풍경을 지배하는 숫자입니다. 어차피 규모를 줄여야 하니 평면에 꼭 필요한 너비만큼 건물을 얇게 만들었습니다. 구조적인 정합성이나 주차의 효율, 피난 동선의 확보 등 자잘한 이점이 있으나 차치하고, 이로써 왼쪽 건물과 4.6m, 오른쪽 건물과 2.5m 떨어졌습니다. 오른쪽 건물이 새로 지어진다면 이쪽도 3.5m 이상 떨어지겠죠.



당장 예비 임차인들의 평가가 좋습니다. 닭장처럼 다닥다닥한 빌라만 봤는데 옆이 시원해서 좋다고 합니다. 건축주도 건물 사이가 마음에 들어 안쪽 공터에 임차인들과 이웃들을 위한 마당을 꾸미고 있습니다. 한발 더 나아가 1층 근린생활시설에 빨래방을 건축주가 직접 운영합니다. 이 역시 언제 여냐 빨리 열어라, 호응이 좋습니다. 우리도 나름대로 대지 앞 열린 골목에 대답하는 적당히 열린 건물을 지을 수 있어 만족스럽습니다. 건물 규모를 줄여 손해 본 사람은 없는 것 같습니다.



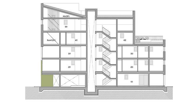
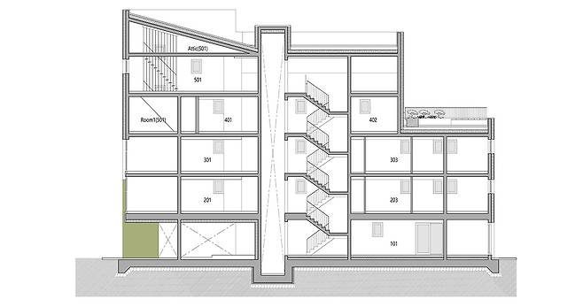
건물의 구성은 다음과 같습니다. 1층 근생 1호. 2층에 원룸, 투룸, 쓰리룸 3세대. 3층은 2층과 동일하고 4층에 원룸과 투룸 2세대. 마지막으로 4층 일부와 5층과 다락의 3개층을 사용하는 주인세대가 있습니다. 임대성의 균형을 위해 도로쪽에 투룸 세대를, 뒷편에 쓰리룸 세대를 주로 배치했습니다. 그 사이에 원룸이 끼어 있고요. 다양한 시장의 요구에 다양한 세대구성으로 대응하는 전략인데 사용승인과 함께 임대가 거의 완판됐으니 전략 성공이라 할 만 합니다. 5층은 주인세대 거실과 안방 영역이 자리하고 4층과 다락으로 나뉜 세 아이의 방은 거실에서 실내계단으로 연결됩니다.



세 아이의 돌림자를 따라 건축주가 이름을 직접 지었으니, 가원집은 이 집안의 넷째 아이인 셈입니다. 어째서인지 여자아이라고 합니다. 옛집이 아버지의 오랜 친구였던 것처럼 막 태어난 가원이가 삼형제의 평생의 친구이기 바랍니다. 옛집의 철거 앞에서 불편한 마음을 추스르기 어려웠던 아버지처럼 먼 훗날, 이 집의 마지막 때에도 세 아이가 같이 슬퍼해줬으면 좋겠습니다. <글 : 수상건축>
구성_ 이준희 | 사진_ 최진보, 수상건축
ⓒ월간 전원속의 내집 / www.uujj.co.kr

※ 모든 콘텐츠의 저작권은 전원속의 내집에 있습니다. 글/사진을 퍼가실 경우 반드시 출처 표기바랍니다. 또한, 기사와 관련 없는 광고성 댓글이나 무분별한 악성 댓글, 인신공격 및 허위성 댓글은 사전 통보 없이 삭제될 수 있음을 알립니다.