단층주택 사례2
독특한 박스 형태로 조형미 갖춘 스틸하우스 단층주택


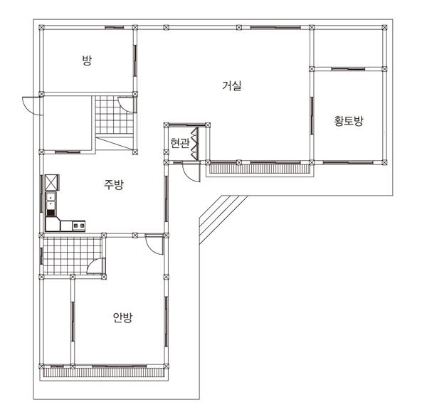
부부는 30평 규모의 단층 전원주택을 짓고 싶어했다. 침실 3개에, 두 면이 오픈된 필로티 구조의 데크를 설치해 가족이 함께 주변 경관을 즐기며 차를 마시거나 식사할 수 있는 공간을 원했다. 주택 입면은 단순한 직사각형에 군더더기 없이 심플한 모양이다. 지붕은 개방감을 주려고 천장을 높인 거실 부분에 의해 경사지붕을 형성함으로써 밋밋한 외부에 변화를 주는 요소가 됐다. 마당을 향한 오픈 데크는 대지 경사도를 6° 정도 기울여 돌출시켜 외형까지 독특하고 기하학적인 형태를 띠게 하는 장치가 됐다. 평면은 조각에서 사용하는 음각 기법으로 공간을 비워내는 방법을 사용해 심플한 형태로 만드었다. 현관을 사이에 두고 침실 3개와 거실, 주방을 구분하고 안방에 발코니와 전실, 욕실을 마련했다. 침실과 거실 사이에 데크로 나갈 수 있게 설치한 창호는 복도에 빛과 공기를 공급하는 역할을 한다. 거실과 주방은 천장고를 다르게 해 영역을 구분하고, 각각 창을 내 주변 경관을 최대한 끌어들였다. 이로써 각기 다른 기능의 창이 모여 파노라마 같은 전경을 한눈에 볼을 수 있게 완성했다.


HOUSE DATA
위치 경북 포항시 북구
건축구조 스틸스터드공법(스틸하우스)
대지면적 678.00㎡(205.09평)
건축면적 140.34㎡(42.45평)
건폐율 20.70%
연면적 122.90㎡(37.17평)
용적률 18.13%
설계 건축사사무소 건인자 053-753-0470
blog.naver.com/withg21jkkim
시공 ㈜그린홈예진 055-758-4956
www.yejinhouse.com
경사면 활용해 3층으로 지은 단층주택


단독주택에서 지하실은 상당히 유용한 공간이다. 자체 방음과 소음 및 외부 시선을 차단해 음악이나 영화관, 지극히 사적인 공간으로 활용하기 좋다. 또, 실내 온도 유지가 뛰어나 여름에 시원하고 겨울에 포근한 환경을 제공한다. 하지만, 방수 시공을 완벽하게 하지 않으면 쾌쾌하고 눅눅해져 사용하기 꺼려지는 공간이 되기 쉽다. 지하실 만드는 것보다 2층으로 짓는 게 더 경제적이라 비용면에서도 불리하다. 이 때문에 평지에 지하를 만드는 사례가 많지 않지만, 경사면을 활용한 지하 공간은 어렵지 않게 찾아볼 수 있다. 보통 벙커형 주차장이 이에 해당한다. 지하에 주차장을 마련하면 그만큼 마당을 넓게 활용할 수 있고, 차량 관리도 수월하다는 장점 때문이다.
이 주택은 3층 건물처럼 보이지만, 지하 2층 구조로 된 단층 건물이다. 자연 경사를 활용해 지하 2층에 주차장을 마련하고 지하 1층과 지상 1층을 주거 공간으로 구성했다. 지하라 해도 남향을 향한 정면이 열린 구조라 실내 깊이 빛이 들어오고 환기가 수월해 늘 밝고 쾌적하다. 또, 벙커처럼 건물 삼면이 땅에 매립된 상태라 단열 성능도 좋다. 물론 경사에 의한 우수와 방수 처리는 기본이다. 실내 공간은 건축주 부부와 자녀가 독립적인 생활을 하도록 듀플렉스 형태로 구성하고 각각 별도의 현관과 공유 공간, 침실을 배치한 뒤 1층 계단 입구를 연결해 하나의 순환 동선으로 연결되는 구조로 완성했다.

HOUSE DATA
위치 경기도 양평군 서종면
건축구조 철근콘크리트 구조
대지면적 992.00㎡(300.60평)
건축면적 98.72㎡(29.91평)
연면적 280.86㎡(85.10평)
1층 65.70㎡(19.90평)
지하 1층 170.16㎡(51.56평)
지하 2층 주차장 45.00㎡(13.63평)
설계 혜원건축사사무소 02-546-2855
시공 건축주 직영
다락으로 부족함 채운 단층주택


휴식, 취미, 풍경 감상, 창고 등 다락은 목적과 활용에 따라 다양한 공간으로 이용할 수 있다. 다락은 주요 실이 아닌 부속 공간에 해당하지만, 사용하기에 따라 방 한 개를 더 얻는 효과도 낼 수 있다. 그렇다 보니 단독주택을 계획할 때 규모와 상관없이 다락을 필수 공간으로 끼워 넣는 경우가 많다. 특히 소형주택일수록 다락은 상당히 중요한 역할을 한다. 이 주택은 건축주가 세컨드하우스 용도로 풍경이 아름다운 시골 마을에 지은 것이다. 주말에만 잠시 머물 용도라 규모는 최소 거주 생활에 적합하도록 아담한 단층으로 계획했다. 입면은 불필요한 요소를 모두 덜어내 과하지 않고 담백하게 디자인했다. 색감도 흰색 바탕에 점토벽돌만을 사용해 깔끔하게 마무리했다. 실내에 들어서면 아담한 공간이 한눈에 들어오고 고풍스러운 분위기가 편안하게 반긴다. 단출한 실내 공간은 거실 중심으로 방과 주방, 게스트룸을 감싸듯 배치했다. 거실 뒤 벽에는 다락을 연결하는 계단이 있다. 다락 난간은 상부만 개방해 아래층과 소통이 단절되지 않게 했다. 창은 눈높이에 맞춰 설치하고 취미와 휴식을 위한 물건을 배치해 이 주택에서 특별한 위치를 차지하는 공간이 됐다. 부부는 예상과 다르게 전원생활에 반해 대부분의 시간을 이곳에서 보내게 됐다. 규모는 작지만, 넓은 마당과 자연풍경 그리고 특별한 공간들이 주는 시간이 삶을 여유와 풍요로 채워주기 때문에 지내는 데 불편함은 없다고 한다.


HOUSE DATA
위치 충북 괴산군 연풍면
건축구조 경량 목구조
대지면적 723.00㎡(218.71평)
건축면적 96.22㎡(29.11평)
건폐율 13.31%
연면적 96.22㎡(29.11평)
1층 96.22㎡(29.11평)
다락 17.82㎡(5.39평)
용적률 13.31%
설계 및 시공 팀버하우스 010-9316-4992
www.팀버하우스.kr
전통과 현대 건축의 조화를 이룬 한옥


옛 멋스러움에 현대의 실용성을 더해 한옥은 더 이상 불편하고 추운 건물이 아니다. 건축주 부부가 한옥을 짓기로 마음먹은 것도 우리의 전통과 멋, 단아한 모습에 현대 주거의 편의성을 갖췄기 때문이다. 이 한옥은 고풍스러우면서도 위풍당당한 모습의 솟을대문이 방문객을 맞이한다. 대문 옆에는 대지 레벨 차를 이용한 벙커형 주차장이 전통과 현대의 조화를 이뤄 입구에서부터 색다르게 다가온다. 과거 한옥은 부엌과 화장실이 외부에서 연결되는 구조라 불편했다. 당시 건축 기술과 환경을 고려하면 당연한 공간 구성이다. 하지만, 시대 변화에 따라 부엌은 식당을 겸비한 편리한 현대식 주방으로 재래식 화장실은 깔끔하고 깨끗한 환경에 욕실 기능을 더한 위생 공간으로 변해 실내로 들어왔다. 반 외부공간인 대청은 기능과 역할, 감성을 그대로 담아 거실로 진화해 다목적 공간으로 활용하게 됐다. 벽체는 다양한 방식으로 단열 성능을 보강하고, 열 손실이 많던 창호는 한지로 멋 낸 전통 창문에 시스템창호를 덧창으로 설치해 멋과 성능을 한번에 해결했다. 무엇보다 한옥은 돌, 흙, 나무와 같은 자연 친화적 소재로 만들어 인체에 좋은 영향을 미치고 실내 습도를 조절하는 기능이 뛰어나 늘 깨끗하고 쾌적한 환경을 유지하는 점이 가장 큰 장점이다.


HOUSE DATA
위치 인천 강화군 길상면
건축구조 전통 한식 목구조
대지면적 926.00㎡(280.61평)
건축면적 197.65㎡(59.89평)
건폐율 21.34%
연면적 245.65㎡(74.44평)
1층 197.65㎡(59.89평)
지하 주차장 48.00㎡(14.55평)
용적률 21.34%
설계 ㈜미르건축사사무소 032-932-9647
시공 금송한옥 010-5267-9356 www.ksbuilder.co.kr
공간에 가변성 부여한 뉴질랜드 카랑가하케 단층주택


젊은 건축주 부부는 뉴질랜드 북섬 와이카토 지방에 있는 마을에 작은 농지를 구입했다. 이곳에 자연과 어우러지고 농장 생활에 편리한 주거 공간을 짓기로 했다. 건축 형식은 자연을 거스르지 않는 친환경적인 자재와 공법을 사용하길 바랐다.
부부는 건축가에게 뉴질랜드 하이킹 대피소 ‘트램퍼 오두막Trampers huts’ 같은 미니멀 하우스를 지어 달라고 요청했다. 건축가는 요구를 모두 충족시키는 공간과 친환경 공법까지 해결하기 위해 조립식주택으로 계획했다. 건물은 지붕, 벽, 바닥을 패널 형태로 제작해 4일 만에 골조를 세우고 박공지붕을 얹어 아담한 형태를 완성했다. 외벽은 부드러운 빛을 내는 ‘툰드라 목재’를 사용했다. 툰드라 목재는 밀도가 조밀하고 뒤틀림이 적어 안정적이며, 외부에 노출되면 은빛 녹청으로 변해 멋진 색감을 띠는 자재다. 이렇게 간결한 형태와 재료 물성을 이용해 고즈넉한 시골 정서에 어울리는 아담한 주택을 지었다. 내부 공간은 아웃도어룸을 중심으로 남쪽에 게스트룸과 사무실을, 카랑가하케 협곡을 바라보는 북쪽에 거실-식당-주방-침실-욕실을 일렬로 배치했다. 북쪽과 동쪽 면에는 데크를 길게 둘러 모든 침실에서 야외로 자유롭게 오가도록 했다. 아웃도어룸은 숲과 농장 풍경, 계절을 담아낸 매력적인 반 외부 공간이다. 여기에 미닫이 헛간 문을 설치해 날씨와 상황에 따라 여닫아 공간을 다양하게 활용하게 했다.


HOUSE DATA
위치 뉴질랜드 카랑가하케KARANGAHAKE, NEW ZEALAND
건축구조 목구조
건축규모 지상 1층
건축면적 100.00㎡(30.25평)
연면적 100.00㎡(30.25평)
설계 메이크 아키텍츠MAKE Architects
www.makearchitects.co.nz
시공 웰하우스 월스트럭트Welhaus - Welstruct