
안녕하세요! 건축 설계를 하는 남편이 직접 설계한 집에서 고양이 한 마리와 함께 살고 있는 부부입니다. 비교적 젊은 나이에 도시를 떠나 자연 가까이 지은 집을 소개합니다.
저희는 작년 5월에 이 곳으로 이사하여 아직 사계절을 지내보지 않아 이것저것 적응하고 만들어가는 과정 중에 있어요. 집 소개와 더불어 땅을 구하고 집을 짓는 과정도 짧게 담아보았습니다.
1. 건축 과정
토지 구입에서부터 설계, 그리고 공사까지

집을 지어 살기로 결정하고, 당연히 제일 먼저 토지를 찾아야 했어요. 처음엔 지역도 구체적으로 정하지 않은 채 무작정 네이버 부동산을 통해 토지 매물을 보러 다녔습니다.
주말마다 경기도 동서남북 이곳저곳을 다니며 약 3달 반 간 정말 열심히 땅을 찾으러 다녔고, 예산과 원하던 조건들이 만나는 지점을 도저히 찾을 수 없을 것 같던 순간에 수채화 같은 단풍과 함께 우리의 땅이 찾아왔습니다.
땅을 처음 방문했던 가을은 단풍이 한창이어서 앞쪽으로 보이는 첩첩 산이 울긋불긋했는데, 그 날 따라 하늘이 너-무 맑아서 그 모습은 한 치 막힘도 걸림도 없었어요. 눈을 돌릴 수 없이 벅찼던 그 모습은 저에게 다가와 제 눈과 마음에 자리 잡아버렸고, 지금 더듬어 기억해보면 저는 그 순간 이곳에서 살아야겠다고 결정해버린 것 같습니다.
본격적인 공사 전 초여름에 찍은 사진입니다. 무성하게 자란 잡초에 가려져있지만 첫눈에 마음을 빼앗겼던 산세가 멀리 보여요.

땅을 구하고는 본격적으로 설계에 들어갔어요. 저희 땅은 약간 서쪽으로 틀어진 남향이며 세로로 긴 형태를 띄고 있었고, 채광과 땅의 활용을 위해 크게 ㄷ자 혹은 ㄱ자 형태로 계획해나갔습니다.

주택에 살아본 적 없는 저는- 주택이면 당연히 2층 아니야? 라며 2층 집을 고집했지만 여러가지 합리적인 이유로 완성된 저희 집은 단정한 단층 집입니다.

아파트와 같은 공동 주택에는 집 안팎의 시설을 관리해주는 인력이 있지만, 단독 주택은 사소한 것도 집주인이 직접 해결해야 합니다. 그리고 주택은 주기적으로 외장재를 손 봐주어야 하기도 해요.
그래서 집 곳곳에 우리의 손이 닿을 수 있어야 하기에 2층이 아닌 1층으로의 설계가 더욱 합리적인 선택이었다고 생각합니다.

ㄷ자 단층 집으로 완성된 집의 한쪽에서 반대편을 올려다보면 집의 지붕 위로 산 머리가 빼꼼 보여서 마치 산등성이 지붕을 가진 것처럼 보이는데, 2층으로 설계했다면 이러한 그림을 볼 수 없었겠지 생각에 어쩔 뻔 했나 싶습니다.

설계를 마치고는 길고 길었던 건축 허가를 득하고 2022년 8월 둘째주, 드디어 첫 삽을 떴어요. 그 후 약 8개월 동안 매주 현장을 오가며 현장 감리를 다녔습니다.


공사 사진을 찾는다고 사진첩을 더듬어보는데, 공사가 한창이었던 당시에도, 공사가 모두 끝나고 입주까지 한 지금도 한결같이 느끼는 점은 공정 하나하나 쉽지 않고 더욱이 대충이어서는 안된다는 것. 그리고 집 하나를 짓는 데에 정말 많은 분들의 노력이 들어간다는 것을 알 수 있었습니다.

둘이서 단출하게 상량식도 치뤘습니다. 마룻대에 양가에서 직접 덕담을 써주셨고, 아이패드로 띄운 돼지 머리와 함께 현대판으로 지냈어요.

두 개의 마룻대는 현관 천장에 올려졌고, 지금은 마감으로 덮여있지만 천장 속에 단단히 자리 잡아 집에 드나들 때마다 저희를 내려다보며 집을 지키고 있습니다.
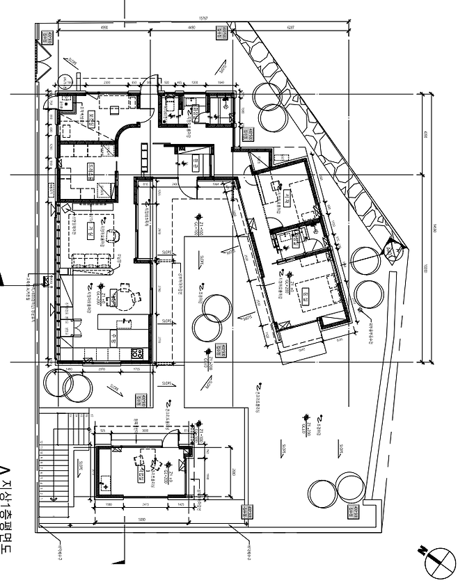
2. 도면

집의 도면입니다. 저희가 선택한 땅은 약간 서쪽으로 틀어진 남향이며 세로로 긴 형태를 띄고 있어서 채광과 땅의 활용을 위해 ㄷ자 형태의 집을 계획했어요.

이번에는 제가 그린 간단한 도면입니다 ㅎㅎ 주택 설계를 해본 사람으로서 아파트의 구조는 효율의 끝판왕으로 느껴집니다.
대개 아파트의 구조는 조금씩 상이하긴 하지만, 보통 현관에서 거실로 들어가는 복도가 짧게 있고, 기본적으로 거실을 중심으로 하여 각 방으로, 화장실로, 부엌으로 이어지기 때문에 거실은 거실이라는 공간의 역할 뿐 아니라 복도의 역할을 겸하고 있어요.
이러한 점이 얼마나 동일 면적 대비 각 실들의 면적을 키울 수 있는 효율적인 공간 구성인지 주택 설계를 하기 전에는 알지 못했답니다.
저희의 주택은 ㄷ자 구조를 띄고 있는데, 그러다보니 각 실로 이동을 위해 복도가 매우 길어졌어요. ㄷ자 안쪽으로 이어져 여러 각도로 꺾인 복도는 거실에서 욕실로, 침실로 이동하게 함과 동시에 집 내부를 거닐게 하고, 마주 보는 외부로 뚫린 창을 통해 서로를 바라보게 하며, 실내에서도 마당을 걷고 있는 듯한 느낌이 들게 합니다.
사실 설계 단계에서는 이렇게 기다란 복도가 아파트 구조에서만 살아본 저에게 익숙하지 않았고, 무엇보다 복도로 빠지는 면적으로 인해 방과 거실 사이즈가 줄어드는 것 같아 못내 아쉬웠습니다.
지금은 매일, 매시간 다른 모습을 보이는 마당으로 한번 더 눈 맞추게 하는 우리의 복도를 지나며, 익숙하고 당연해서 벗어나기 어려웠던 아파트의 구조는 익숙했던 그 긴 기간만큼 저의 동선과 생활을 제한하고 있었구나 생각하곤 해요.
3. 현관

현관은 건물로 들어서는 첫 공간이기에, 들어서는 사람에게 환영 받는다는 느낌을 주고 싶었습니다. 그래서 빨강과 버건디 사이 색상의 타일을 사용하여 경쾌한 분위기를 만들어 보았어요.
현관 한 켠에는 앉아서 신발을 신을 수 있도록 벤치가 있으며 그 위로 집 내부로 뚫린 목재 창이 있습니다.

신발을 벗고 들어서는 집의 첫 공간입니다.
현관 공간에 크고 작은 화분들을 두었어요. 저는 식물을 아주 좋아해서 화훼 단지에 가서 직접 식물을 고르고, 어울리는 화분을 골라 분갈이 해줍니다. 토분이 예쁘긴 하지만 무거워서 큰 화분은 주로 아트 스톤 화분으로 쓰고 있어요.

중문 앞에 작년 일본 여행에서 구매했던 꽃을 든 고양이 엽서를 붙여놓았는데, 나중에 저희 고양이를 입양하고 나니 엽서의 고양이와 똑 닮아서 놀랐던 기억이 납니다.

현관 중문에는 모루 유리를 끼워 집안이 너무 훤히 들여다 보이지 않도록 했어요.


중문을 열면 창을 통해 집의 뒤편 석축이 보입니다. 뒤편 석축에 여름에는 푸릇푸릇한 풀들이 뒤덮고, 겨울에는 하얀 눈이 쌓이곤 해요.
4. 드레스룸

드레스룸은 이케아 팍스 옷장으로 구성했습니다. 옷 먼지 관리와 깔끔한 수납을 위해 오픈장이 아닌 닫힌 장으로 구성했어요. 옷장의 도어는 열고 닫는 반경을 고려해서 여닫이, 그리고 미닫이를 적절히 섞었습니다.
벽 빈틈 없이 짜넣어 깔끔한 붙박이장과 달리, 팍스 옷장은 위쪽으로는 천장과, 옆쪽으로는 벽과 뜨는 공간도 생기고 생각보다 비용이 저렴하지는 않아요. 그렇지만 옵션이 매우 다양하고 추후에 언제든지 손쉽게 내부 구성을 변경할 수 있다는 점이 충분히 매력적이라고 생각합니다.

팍스나 플랏사 등의 수납 시스템은 이케아 홈페이지에서 위와 같이 직접 미리 구성해볼 수 있어서 공간을 꾸밀 때 편리합니다. 워시 타워와 스타일러 또한 드레스룸 내부에 설치해놓았어요.
드레스룸이 좁은 공간이라 사진이 제대로 나오지 않았는데 대략 이렇게 구성되어 있습니다.

드레스룸 문은 옷장 문이나 서랍을 여는 데에 방해가 되지 않도록 여닫이가 아닌 미닫이 문(포켓 도어)로 만들었어요.


옷도, 옷장도 항상 단정하게 깔끔하게 하려고 노력은(!) 하고 있습니다.
5. 거실

드레스룸을 지나면 거실 복도와 그 너머 주방이 보입니다.

거실의 천장은 주방까지 이어지며 박공 형태를 하고 있습니다. 제가 결혼 전부터 쓰던 회색 소파를 그대로 가져오고, 그린 색상의 의자를 포인트로 두었어요.

주방에서 바라본 거실의 모습입니다. 박공 모양의 무늬목 천장이 주는 따뜻한 느낌이 집을 아늑하게 만들어줘요.
최근에는 거실에 텔레비전을 놓지 않는 경우가 많은데, 저희는 영화관보다는 주로 집에서 영화를 보고 또 콘솔 게임을 좋아하는 편이라 크지 않은 텔레비전을 놓아두었습니다.

공사 시작 전 설계 단계의 모델링 이미지에요. 박공 모양 천장이 의도한 대로 시공된 것 같아 볼 때마다 만족스럽습니다.

고측 창으로는 경량 목구조의 구조목을 그대로 노출시켰어요. 목조 주택만이 가질 수 있는 온화함입니다.

곡선 면이 끝나는 지점에 간접등을 설치해서 저녁에 조명을 켜면 곡선 면에 부딪힌 빛이 눈 부시지 않고 은은하게 실내를 밝혀줍니다.

원래는 벽 쪽의 회색 큰 소파가 텔레비전을 바라보도록 배치되어 있었는데, 생활하면서 큰 소파를 텔레비전이 아닌 창을 바라보도록 구조를 변경했어요. 소파에 누우면 자연스럽게 바깥을 바라보게 되어 괜히 더 편안하게 느껴져요. 소파는 벽에 바짝 붙이지 않고 조금 띄워 고양이만을 위한 길을 만들어 놓았답니다.

선물 받은 르코르뷔지에의 유니테 포스터로 심심해보이는 붙박이 책장 뒷벽을 가려주었어요.
거실에서는 주로 스트레칭을 하거나 텔레비전을 보곤 하는데 요즘에는 주로 고양이 사냥놀이를 위한 공간으로 쓰여집니다ㅎㅎ 집의 전체 평수 치고 거실이 넓지 않은 편이라 소파, 의자, 그리고 테이블 등등으로 복작복작한 편이에요.
사냥놀이를 할 때 다양한 지형지물을 활용할 수 있어서 고양이는 오히려 더 좋아하는 것 같습니다.

기둥 쪽에는 항상 달력을 붙여놓곤 합니다. 일러스트가 마음에 들어 일본에서 사온 달력이라 일본 공휴일이 표시되어 있네요.


건축 중 목수분들이 제작해주신 소중한 책장은 거실과 주방의 공간을 구분하고 있습니다.

고양이의 스트레칭 장소이기도 해요.
6. 주방

제가 집에서 가장 좋아하는 주방 공간입니다. 전에 살던 9평 집의 주방이 협소하다 못해 거의 없었던 수준이라 원 없이 수납 공간을 만들었어요.

집에 처음 방문하시는 분들은 모두들 천장의 철로 만든 긴 것의 정체를 물어보시는데, 아연 도금 철판으로 현장에서 용접하여 만든 간접등입니다.

밤에 이 간접등 하나만 켜놓아도 눈부시지 않게 실내를 밝혀줘요. 직부등을 많이 설치하지 않은 편이라 집 안이 어두울까 걱정했는데 오히려 직부등을 전혀 켜지 않고 철판 간접등이나 고측 창의 간접등으로만 생활해도 전혀 불편하지 않아요.

주방 붙박이 가구는 직접 디자인했고, 손잡이도 하나하나 드릴로 달았어요. 싱크대 옆 미니 원목 식탁을 만들기 위해서 적당한 원목 상판을 구하러 다녔던 기억이 납니다.

주방 가구 설계 단계에서 처음에는 대화하며 요리하는 대면형 주방을 만들고 싶었습니다. 하지만 저희 집의 층고가 높아서 인덕션을 아일랜드 카운터에 놓을 경우, 주방 후드를 다운 드래프트 후드로 설치해야 했어요.
다운 드래프트 후드는 저희의 예산을 크게 벗어나서 고민한 결과 인덕션은 벽에 붙이고, 대신 싱크대를 아일랜드 카운터에 놓게 되었습니다.

저희는 결혼하고 제가 기존에 살던 작은 투룸에 살았었고, 그래서 결혼할 때 전혀 가구를 구매하지 않았어요. 이곳으로 이사를 계획할 때에도 기존 가구를 거의 가져오게 되어 구입할 가구가 많지는 않았습니다. 그래서 식탁 만큼은 아주 오래 쓸, 제대로 된 제품을 구매하고 싶었어요.
거실과 주방의 천장이 오크 무늬목으로 마감될 예정이었어서 톤이 비슷한 오크 원목의 원형 테이블을 원했고, 여러 원목 가구 브랜드를 열심히 살펴보았습니다. 원목 원형 식탁의 경우 원목 가구 브랜드마다 출시하는데, 제가 생각하는 디자인의 큰 차이점은 다리 부분의 디자인이었어요.

마지막으로 고민했던 다른 브랜드의 테이블의 경우 다리가 가늘고 아래로 내려갈수록 가늘어지는 약간의 곡선을 가지고 있어서 우아하고 세련되며 여성스러운 느낌, 저희가 구매한 비플러스엠 제품의 다리는 더 굵고 일직선으로 떨어져 묵직하고 솔직한 느낌을 주었습니다.
모델링을 몇 번이나 해보곤 저희 집에는 우아한 느낌보다 솔직하고 귀여운 느낌이 더 어울리는 것 같아 비플러스엠 포스트 테이블을 결정하였습니다. 원목 가구는 시간이 지날수록 빛을 난다고 하는데, 주기적으로 고체 왁스를 발라주며 오랫동안 저희 가족과 함께 세월을 맞아가는 모습을 그려봅니다.

주방에는 수납해야 할 물건들과 재료들이 넘쳐나요. 저는 주로 물건을 구입하고 나서 남은 박스를 서랍 높이에 맞게 잘라서 수납하기를 좋아합니다.
꼭 필요한 경우에는 사용하지만, 플라스틱 정리함이나 수납함을 선호하지 않아요. 깔끔하고 편리하지만 결국에는 언젠가 버려질거니까요. 각이 조금 안 맞고 덜 깔끔해도 물건을 잘 찾을 수만 있다면 어떤 것이든 환영입니다.


주방 앞쪽으로는 상부장 대신 마당 입구 쪽으로 큰 창을 내었어요. 창밖으로 라일락 나무가 계절에 따라 푸르고 붉은 모습을 보여줍니다.

작년 겨울엔 창틀에 조그맣게 연말 분위기도 내보았습니다.

주방 한쪽 벽면에는 원목 선반을 설치해 식물과 액자 등을 두었어요.

식탁 옆창 측으로는 행잉 플랜트를 걸 수 있도록 설계부터 고리 자리를 확보해두었습니다.

19살부터 혼자 살기 시작하며 이곳으로 이사하기 전까지 약 15년 동안 연말이면 항상 트리를 두고 싶었지만, 협소한 공간 때문에 번번이 다음을 기약해야 했어요.
만들다가 지칠 만큼 큰 트리를 만드는 게 소원이었는데 작년 연말 드디어 소원 성취를 하게 되었습니다.
7. 화장실

공용 공간 화장실은 세면 공간, 변기실, 욕조실로 나누어져 있습니다. 이렇게 나눔으로 인해 공간과 공사 비용이 더 들기는 했지만, 청소가 간편하고 사용할 때에도 '각자의 공간에서 일어나는 활동'에 더 집중하게 되는 느낌이 들어요.
특히 욕조실에서 목욕을 할 때에는 세면대, 도기 등이 보이지 않고 좁은 공간에 욕조만 있어 자발적 고립을 충분히 느끼곤 합니다.


세면공간의 거울 위쪽 고측 창은 사계절을 담아냅니다.

왼쪽의 미닫이 문을 열면 변기실이 나옵니다. 지금은 고양이 화장실로 주로 사용되고 있어요.

우측 여닫이 문으로 연결되는 욕조실은 탕욕을 즐기는 저희에게 소중한 공간이에요. 조적 욕조는 물이 빨리 식는다고 하여 걱정했는데 딱히 그렇지는 않은 것 같고, 대신 매립식 욕조보다 물 받는 데에 시간이 꽤 오래 걸립니다. 여름에 찍었던 사진이라 창 밖 풍경이 푸릇푸릇하네요.

8. 복도

픽스 창 바로 앞에 심어둔 화살 나무는 각 계절마다 다른 얼굴을 띠곤 합니다. 새가 자주 찾아오기 때문에 고양이가 좋아하는 공간이에요.


픽스창 옆으로 이어지는 세 번 꺾이는 복도는 마치 골목길처럼 다음에 어떤 모습과 만날지 기대하게 해요.

한번 꺾은 곳의 우측으로는 현관에서 보았던 창과 만나게 됩니다.

길게 이어진 복도 끝으로 침실과 그 너머 겨울 마당의 단풍나무가 보여요. 겨울이라 붉었던 잎들이 다 떨어지고 가지만 남았네요.
9. 설계실

이름은 거창하게 설계실이지만, 업무를 위한 컴퓨터와 침대가 놓여있는 방입니다. 제가 잠에 예민한 편이라 업무가 늦게 끝나는 날엔 남편은 이곳에서 잠을 자곤 해요.

설계실은 면적이 넓지 않아 복잡하지 않게 화이트 톤으로 가구를 통일했습니다. 오래 앉아서 같은 자세로 일하면 허리와 목이 아픈데 이케아 베칸트는 높이 조절이 가능한 책상이라 앉아서도, 서서도 컴퓨터를 할 수 있어요. 책상 위에 놓인 이케아 몰라 제품은 원래 어린이용인데 트레싱지를 꽂아 건축 스케치를 그리곤 합니다.

복도와 방 사이에는 모루유리 목재 창이 있고, 복도에 전면 창이 나 있어 컴퓨터를 하려고 책상에 앉으면 모니터 너머 거실, 툇마루 위의 처마와 멀리 있는 산등성이가 지붕처럼 펼쳐집니다.


고양이는 목재 창틀 위에 놓인 물건들을 다 떨어트리곤 바닥에 떨어진 물건들을 드리블하며 놀아요.

10. 부부 침실

침실의 문을 열어도 침대가 바로 보이지 않도록 배치하였습니다. 침실의 포켓 도어를 끝까지 열어 놓으면 침실 창 너머 마당과 나무가 보여서 마당이 집 안에 들어와있는 것 같아요.

침실은 숙면에 집중하기 위해 최대한 필요한 가구만, 최대한 톤을 맞추어 두려고 했어요. 새로 산 가구는 없고, 기존에 쓰던 가구들을 가져왔어요.

이사를 하며 침실이 꽤 넓어져서 침대와 서랍장, 협탁, 화장대를 모두 넣고도 꽤 넓은 공간이 남아있지만 아직은 빈 곳을 채우지 않고 휑한 공간을 한껏 즐기고 있습니다. 채우지 않아도 꾸미지 않아도 공간은 공간 자체로서 제 역할을 해낸다고 믿고 있어요.

침구는 관리가 번거롭지만 화이트 침구를 고수하고 있습니다. 이 침구를 사용한 지 4년 정도 되었는데, 여러 번 세탁해도 사각 사각함이 유지돼요. 색이 조금 변했다 싶을 땐 세탁 후 쨍한 햇빛 아래에서 말리면 금방 새하얗게 돌아옵니다.





침대에 있으면 발치 창을 통해 마당의 조경과 만납니다. 강아지와 고양이에게는 이 창이 맞춤형 화면인지 창 앞에서, 혹은 침대에 누워서 한참 바깥을 구경하곤 해요.

2월인데도 폭설이 내린 날, 마당에 고양이 헌정 눈사람(눈고양이?)을 만들었어요. 고양이가 발치창을 통해 눈고양이를 흐뭇하게 바라보고 있는 것 같네요.

11. 작은 욕실

저희가 주로 쓰는 작은 욕실입니다. 벽은 무광 화이트 타일, 바닥은 블랙 타일로 구성했어요. 욕실 액세서리(수전, 샤워기, 수건걸이 등)는 모두 무광 니켈로 통일했습니다.

공사 시 타일 조적 높이가 잘못 시공되어 상부장을 설치하지 못하게 되었는데, 그래서 오히려 더 깔끔한 공간이 된 것 같아요.

여름에 찍어놓았던 샤워 부스 창밖 모습입니다. 아파트나 빌라 등 공동 주택에는 욕실에 창이 나있지 않는 경우가 많은데 샤워실에 창을 만들어 샤워하면서 새소리도 듣고 바깥의 풍경을 볼 수 있어서 짧은 시간이지만 행복해져요.

겨울에 눈이 온 날은 이렇게 설산을 바라보며 샤워를 합니다.
12. 건축 외관

주차장의 외벽 콘크리트는 올록볼록한 문양 거푸집(도드락 문양)을 사용하여 마감했어요.


집이나 마당에 있을 때 주차장 외벽이 저희에게 보이지는 않지만, 집으로 올라오는 가파른 오르막길을 지나 맑은 하늘을 가르는 물결 모양 곡선을 보면 왠지 재미있는 무언가가 우리를 기다리고 있을 것 같은 즐거운 느낌이 듭니다.

마당으로 들어서면 보이는 모습입니다. 우측으로는 작은 다용도실(작업실), 좌측으로는 집이 보여요. 건물의 외부는 벽돌 타일과 목재로 마감했습니다.

아직 건축 사진을 찍지 않아 제가 찍어보았는데 건물 외부를 사진에 담는 게 쉽지 않네요.


저 멀리 현관 문이 보입니다. 집으로 들어가는 쪽으로 처마를 만들어 비를 피할 수 있어요. 설계 과정 중에 남편은 처마에 집착하다시피 했는데, 주택에 살아보지 않은 저는 처마를 대수롭지 않게 여겼어요.
그런데 살아보니 처마는 비를 피할 수 있게 해줄 뿐 아니라 한여름의 햇빛으로부터 실내를 어느 정도 보호해주기도 합니다. 특히 툇마루 위의 처마는 완벽한 피서지를 만들어줘요.
13. 마당
주택의 시골살이

전원주택의 꽃 마당 이야기를 해볼까요!
대개 주택 마당은 잔디마감을 하는 경우가 많은데, 관리가 어려울 것 같아 저희는 잡초방지 시트를 깐 다음 그 위를 자갈로 덮었습니다. 그 후 조경가님의 도움을 받아 전반적인 식물과 나무의 종류, 위치를 정하고, 저희가 직접 식물들을 심었어요. 해가 따갑게 내리쬐는 날이라 땀이 줄줄 흘렀지만 전부 심고나서는 말할 수 없이 뿌듯했었어요.

여름날 집의 전경이에요. 해가 내리쬐어서 매일매일 마당의 식물에 물을 오래도록 줘야했습니다.






마당 입구에 심은 에키네시아와 베르가못은 가을 내내 방문자들을 반겨주었습니다.


유달리 붉게 해가 지는 날엔 핑크색 렌즈를 낀 것 같아요.

작업실 내부에서 바라본 마당과 옆산의 모습이에요.


작업실 공간은 저희가 직접 페인트를 칠하고 바닥을 깔았습니다. 엄청나게 힘들었는데 또 그만큼 뿌듯한 공간이에요. 이곳에서 화분 분갈이도 하고, 노트북 작업도 하고, 업무 미팅도 합니다.
지금은 겨울이라 잠시 사용하고 있지 않지만 다음에 기회가 또 된다면 소개해보도록 하겠습니다.


작년 겨울엔 유난히 눈이 많이 왔어요. 겨울이라 식물들이 모두 휴식하는 중에 하얗게 눈 쌓인 마당도 운치 있었어요. 크리스마스 이브에 폭설이 내렸는데, 새벽에 내리는 눈에 이브의 햇빛이 비쳐 눈이 반짝반짝 빛나던 기억이 납니다.

도시에 살 땐 눈이 많이 와도 제설차가 금방 눈을 치워주었지만 시골에선 모두들 열심히 자기 집앞 눈을 치운답니다.

눈을 치우다가 지칠 땐 작업실 바닥에 깔고 남았던 장판을 가지고 신나게 눈썰매도 탑니다. 저희 집이 꽤 고지대에 위치하고 있어서 오르막길이 가파른 편인데 눈이 오는 날은 너무나 완벽한 썰매장으로 변신해요.

마당엔 곰돌이 눈사람(눈곰?)도 만들었고요.

처마 아래의 크지 않고 적당한 툇마루는 여름철 완벽한 피서지가 되어줍니다. 해를 가려주는 처마 아래 툇마루에서 냉장고에 넣어두었던 시원한 수박을 먹으면 무릉도원이 따로 없어요 ㅎㅎ


집앞 개울로 나가 의자를 펼쳐놓고 시원한 물에 발을 담그고 신선놀음을 즐기기도 해요. 남편은 뜰채를 구해와서 물고기잡이 삼매경입니다.

옆집 마당에서 찍어준 사다리에 오른 저희 모습입니다. 옆집에는 남편의 동업자이자 오랜 친구 부부가 집을 지어 살고있어요. 시골의 단독주택에서는 좋은 이웃을 만나는 것도 정말 중요한데, 같이 땅을 사고 집을 지으면서 비용도 꽤 절약되었고 서로에게 도움이 되는 이웃으로 지내고 있습니다.
집들이를 마치며

마당에서 보는 해가 지는 풍경입니다.
도시에 살 때는 존재도 몰랐던 다양하고 거대한 벌레들(지네는 생각보다 크고 정말 징그럽고 빨라요), 은근히 자주인 듯한 단수와 정전의 불편함이나 겨울에 폭설이 올 때면 눈을 치우기도 전에 어깨가 욱신거리는 것 같지만. 맑은 가을 밤 쏟아질 것만 같은 별빛이나 여름밤 시끄러운 개구리 소리는 모든 걱정과 불편함을 감수하게 해줍니다.
항상 같은 패턴의 사계절을 살아왔지만 이곳에서 느끼는 여름의 폭우, 가을의 높은 하늘, 겨울 공기의 상쾌함은 훨씬 진해서 계절이 바뀔 때마다 새로운 곳으로 여행을 다녀온 듯 해요. 이곳에서 처음 맞이하는 봄은 어떤 얼굴을 하고 있을지 궁금하고 기대됩니다.
온라인 집들이를 준비하며 건축 과정을 되돌아보니 새삼 설레고 벅차오르기도 하네요. 블로그에도 드문드문이지만 지난 건축일기를 쓰고 있으니 놀러와주세요 :) 지금까지 저희 집의 긴 이야기를 만나주셔서 감사합니다!

