ARCHITECTS CORNER

생애 두 번째 단독주택을 짓는 건축주가 요청한 것은 오로지 가족을 위한 공간이었다. 이제 막 사춘기에 접어든 세 자녀 개개인의 특성을 잘 담을 수 있고 함께 온기도 나눌 수 있는 넓은 공간을 가지는 것. 다섯 식구가 함께 추억을 만들어 갈 맞춤형 단독주택 ‘채우다砦禑多’는 이런 공간을 만드는 고민으로 시작한 프로젝트다.
정리 남두진 기자│글 자료 건축사사무소 시움│사진 김성철 작가
HOUSE NOTE
DATA
위치 인천 서구 가정동
건축구조 철근콘크리트조
대지면적 264.9㎡(80.13평)
건축면적 129.78㎡(39.25평)
연면적 191.37㎡(57.88평)
1층 88.79㎡(26.86평)
2층 102.58㎡(31.03평)
건폐율 48.99%
용적률 72.24%
설계기간 2024년 3월 ~ 6월
시공기간 2024년 8월 ~ 2025년 1월
설계 건축사사무소 시움
070-7789-4302 www.ciumarchitects.com
시공 지맨건축 010-8415-0710
MATERIAL
외부마감
지붕 - 평슬라브
외벽 - 점토벽돌
데크 - 합성목재
내부마감
천장 - 친환경도장
내벽 - 친환경도장
바닥 - 포세린타일, 강마루
단열
지붕 - 준불연 경질우레탄보드
외벽 - 준불연 경질우레탄보드
계단
디딤판 - 집성목계단판
난간 - 원형파이프난간
창호 KCC창호(주식회사 케이엔)
주방가구 쿠노스페이스디자인
위생기구 더죤테크, VOVO
난방기구 대성쎌릭

건축주는 과거에 단독주택을 직접 지어 5년 간 살아본 경험이 있었다. 당시 소박했지만 소중한 추억들은 잊을 수가 없었고 아파트로 이사한 뒤에도 단독주택에 대한 열망은 오히려 커졌다. 결국 건축주는 가정동 주택 지구에 땅을 매입해 두 번째 단독주택을 짓기에 이르렀다.
떠올린 집의 이미지를 명확하게 구현해 줄 설계자를 찾던 중 우리의 작품들에 공감했다며 설계를 의뢰했다. 단독주택에 살아본 경험이 있는지라 건축주의 요구사항은 상당히 구체적이고 현실적인 것들이 많았다. 반면에 예산은 한정돼 있었기에 이를 고려하면서 최대한 가족 구성원의 개성을 담을 수 있는 데 집중하기로 했다.






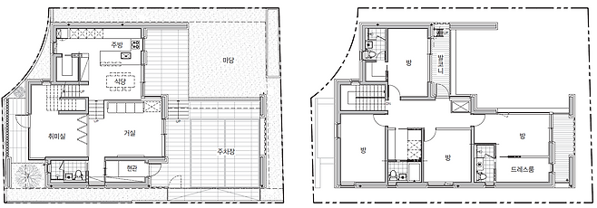
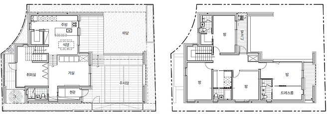
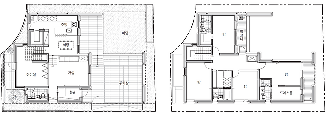
땅이 내어준 자연스러운 마당
바비큐 파티를 자주 즐기는 건축주에게 주방과 연계되는 넓은 마당은 중요한 사항이었다. 하지만 2m의 경사가 존재하는 비탈진 대지에서 넓은 마당을 마련하기란 쉽지 않은 일이다. 대지 내 경사를 극복하면서도 거실과 마당을 효과적으로 확보할 방안이 필요했다.
기단을 만들어 평탄한 부지를 확보하는 해결책도 있지만 성·절토 및 골조공사로 많은 비용 지출이 예상됐다. 기단을 이미 확보한 인근 주택을 보니 주변 녹지와는 단절된 형태도 보였기에 우리는 다른 방안이 필요하다고 판단했다.
현장을 유심히 관찰하던 중에 오히려 경사가 존재하는 대지로부터 묘한 매력을 느꼈다. 전체적으로 보니 승학산 산등성이에서부터 공공 녹지를 거쳐 부지 내로 자연스럽게 내려오는 녹지의 흐름이 보였고 이를 설계의 첫걸음으로 활용하기로 했다.
우선 도로와 같은 레벨에 필로티 주차장을 구성했다. 이 필로티는 필요에 따라 확장된 마당으로 사용할 수 있는 곳이다. 그리고 그보다 1m 높은 마당을 형성해 단차가 발생한 형태로 외부 공간을 계획했다. 그 결과 ‘주차장-마당-공개 공지-승학산’으로 이어지는 위계성 있고 열린 조망이 있는 공간이 탄생했다.
다른 주택들보다 낮고 작은 평수임에도 집은 더 웅장해 보였다. 마당 뒤의 공공 녹지와 산등성이가 마치 마당의 연장선처럼 연출돼 공간감을 확장한 것이다. 땅이 그려놓은 선 위에 자연스레 얹힌 마당, 땅을 온전하게 이용한 셈이다.




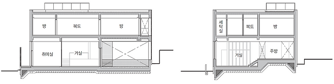
모이고 다시 흩어지는 1층과 2층
현관을 통해 실내로 들어오면 마당과 마찬가지로 1m의 단차를 가진 거실을 마주한다. 단차를 활용해 거실과 식당을 나눴고 식당에 맞춘 천장 덕분에 거실엔 3.5m의 천장고가 형성됐다. 다소 협소하지만 탁 트인 밝은 분위기가 돋보인다.
이때 거실에 한 가지 장치를 통해 다둥이에 대한 배려를 숨겼다. 거실과 폴딩도어로 연결된 취미실은 막내의 플라잉 요가 공간으로 마련했고 계단실의 하부는 형제의 로망인 게임방이다. 이곳은 거실과 연계해 언제든 확장된 공간으로 활용할 수 있다.
식당은 인접한 마당을 통해 외부로 확장된 공간이 될 수 있고 설치된 스크린을 이용하는 경우에는 거실과 연계한 영화관으로도 즐길 수 있다. 온 가족이 모여서 다양한 활동을 이룰 수 있는 여러 가능성을 품게 된 것이다.
1층을 공적 공간으로만 구성했다면 2층은 사적 공간인 다섯 식구의 침실로 구성했다. 각 방은 천창을 통해 채광이 들어오는 복도로 구분된다. 특히, 셋째 방과 안방은 마당으로 열려 프라이빗한 환경 속 근사한 주변 풍경을 즐기기에 좋다. 최초 제안한 가족실을 뒤로하고 각자의 방을 최대한 넓게 해달라는 건축주의 요청은 과연 경험에서 나오는 현답이었다.
외부로부터의 시선을 차단하기 위해 외벽 일부는 조금 더 연장했다. 마당을 두 날개로 품은, 마치 울타리나 둥지와 같은 형태로 주택 내부를 보다 프라이빗하고 아늑한 공간으로 만든다.



적벽돌로 빚은 특별한 질감
건축주가 요청한 마감재인 적벽돌은 우리에게 너무나 친숙하면서도 값싼 재료다. 그러기에 예스럽고 따뜻하지만 동시에 가족의 노력을 표현하기에는 제한적이라고 생각했다. 다른 시공 방안이 필요한 순간이었다.
우리는 적벽돌을 반으로 쪼개 활용하기로 했다. 쪼갠 벽돌을 각 창호 하단과 담장 영롱쌓기에 적용해 곳곳에 질감 변화를 줬다. 이로써 적벽돌이 가진 친숙함과 더불어 어딘가 세련됨도 느껴지는 특별한 주택 외관을 완성했다. 특히, 저녁에는 실내의 빛이 영롱쌓기한 담장 틈으로 새어 나와 입면에 또 다른 표정을 부여한다.



사실 이번 주택은 비교적 한정된 예산 속에서 설계 초기부터 재료 및 시공 방법까지 치밀한 계산과 연구가 필요했다. 건축주, 설계자, 시공자가 각 단계에서 경제적인 구현 방법에 대해 긴밀하게 소통하고 의논했기에 모두가 만족하는 결과물이 될 수 있었다. ‘채우다’가 앞으로도 다둥이 가족의 소중하고 행복한 역사를 담는 보금자리가 되길 기대한다.
가와건축과 노바건축에서 쌓은 탄탄한 경력으로 건축사사무소 시움을 열고 활발히 활동 중인 실력파 건축사다. 서울시 공공건축가로 활동했으며 현재 강북구 건축심의위원과 부천대학교 건축공학과 겸임교수로 활동 중이다.
정상문_지맨건축 대표
건축주의 입장에서 건축가와 소통하며 함께 만들어가는 가치를 가장 중요시한다. 건축 시공뿐 아니라 다년간 쌓아온 인테리어 경험은 건축주가 상상하던 공간을 현실화시키는 과정의 기반이 된다. 건축주의 삶이 고스란히 담길 공간을 만들어내기 위한 끝없는 고민과 노력은 현장에 있어서 경력과는 무관하게 그 누구라도 게을리하지 말아야 할 요소라고 생각한다.