HOUSE STORY

조금씩 성장하는 아이들이 집에서 뛰어놀 때면 건강한 모습에 부모는 뿌듯하기만 하다. 하지만 지내는 곳이 아파트라면 동시에 층간 소음에 대해서도 신경을 쓸 수밖에 없다. 이는 현대의 대표적 주거 형태인 아파트의 고질적 문제이자 집짓기를 결심하게 되는 주된 이유이기도 하다.
글 사진 남두진 기자│자료 파인트리하우징
DATA
위치 경북 김천시 율곡동
건축구조 경량 목구조
대지면적 338.70㎡(102.45평)
건축면적 138.60㎡(41.92평)
연면적 204.48㎡(61.85평)
1층 82.26㎡(24.88평)
2층 77.22㎡(23.35평)
창고 45.00㎡(13.61평)
건폐율 40.92%
용적률 60.37%
설계 건축사사무소 수담(김상오)
010-9772-1121
시공 파인트리하우징
054-434-5459
MATERIAL
외부마감
지붕 - 평기와(모니어)
외벽 - 롱브릭타일
데크 - 현무암
내부마감
천장 - 실크도배(디아망)
내벽 - 실크도배(디아망)
바닥 - 구정마루
계단 아카시아 집성목
도어
현관 - 살라만더
내부 - 대성도어
창호 독일식 시스템 3중 창호(살라만더)
위생기구 대림바스
난방기구 가스보일러(경동)

가족을 위한 집짓기 결심
김천 주택의 건축주 역시 성장기에 접어든 자녀를 둔 부부로서 아파트 생활의 불편을 감내하던 참이었다. 이에 지내던 아파트에서 멀지 않은 곳에 이동식 주택을 하나 두고 주말이면 가족들과 캠핑이나 바비큐 파티를 즐기곤 했었는데 문득 단독주택에서 행복하게 지냈던 어린 시절이 떠오르면서 집짓기를 결심하게 됐다. 이동식 주택을 둔 곳은 신도시 필지 중 한 곳으로 생활 인프라는 당연히 잘 조성됐거니와 근처에 아이들이 다니던 유치원도 있었기에 주택살이에는 안성맞춤이었다.



여러 업체를 찾던 어느 날, 필지 근처에서 집 한 채가 눈에 들어왔다. 전문가는 아니지만 이곳저곳 살펴보니 마감이나 형태가 꼼꼼하다는 인상을 받았다. 자연스럽게 품질의 신뢰가 생기면서 같은 업체에 상담을 요청하는 등 본격적으로 집짓기를 실행에 옮겼다.


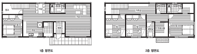
집은 2층 규모로 제안됐고 두 개의 층이 독립적이면서 각 공간이 효율적인 배치를 이루는 것이 중요하게 언급됐다. 1층은 거실·주방·식당과 같이 가족이 한데 모일 수 있는 공용공간과 어머니·게스트룸으로 구성했고, 2층은 부부와 자녀들의 침실로 구성하는 것으로 크게 나눴다.




생활에 도움을 주는 공간 구성
특히 건축주가 요구했던 사항은 가전과 가구를 배치하고도 여유가 느껴지는 공간 확보였다. 집짓기를 시작하고 기초공사 단계에서 진행 상황이 궁금해 현장을 한번 방문했던 적이 있었는데 사실 그때는 구획된 공간이 다소 작아 보인 탓에 더 크게 지었어야 하는 걱정이 있었다고.




그러나 골조가 세워지고 완공에 가까워지면서 재차 방문했을 때는 공간감에서 느껴지는 넉넉함에 오히려 안심됐다고 웃으며 말했다. 2차원의 면적이 3차원의 공간을 이뤘을 때를 상상하기가 익숙하지 않았기에 했던 괜한 걱정이었던 것이다. 가전과 가구까지 배치한 현재는 더할 나위 없는 만족을 느낀다고 덧붙였다.



또한 아파트와 달리 특별한 일이 없으면 앞으로도 시간을 보낼 공간이었기에 커가는 자녀들을 고려한 계획도 중요하게 적용됐다. 건식 화장실을 별도로 마련해 아이들 이용의 편리성과 쾌적성을 높였고 수납공간 역시 성장 시기에 맞춰 발생할 짐 등에 대응하고자 계단 하부를 창고로 계획했다. 디자인적으로 예쁜 것도 좋지만 생활을 위해 보다 실질적으로 도움이 될 계획을 중요하게 여긴 건축주였다.



사람에 공간을 맞추는 일인 집짓기는 설계부터 시공까지 꼼꼼하게 진행돼야 한다. 여러 가지를 찾아보고 공부를 하는 등 건축주의 노력도 필요하지만 부족한 경험치와 노하우를 메우기 위해서는 업체를 잘 선정하는 것이 무엇보다 중요하다.



건축주는 가족을 위한 결심과 끝까지 신뢰할 수 있는 업체 선정을 통해 또 다시 추억을 쌓아갈 주택살이를 시작하게 됐다. 머릿속에서 그리던 모습과 실제로 지어진 모습이 거의 일치해 만족스럽고 그 과정을 직접 지켜본 일은 인생에서 꼽을 만한 뜻 깊은 경험이었다며 활짝 웃는 얼굴로 기자를 배웅했다.