

안녕하세요. 조용한 마을에서 자연을 오롯이 즐기고 있는 7년 차 부부예요. 저희 부부는 여행을 즐기다가 점점 캠핑에 관심을 가지게 됐어요. 그러다 자연이 주는 매력에 한껏 빠져들면서 주택 라이프에 대한 꿈을 꾸게 되었어요.
그래서 회사 근처 전원주택에 전세로 들어가 주택라이프를 경험했는데 1년 차부터는 더 이상 아파트에는 살지 못하겠다는 생각이 들더라구요. 저희가 원하는 삶은 주택에서 시작되겠구나 싶었거든요. 그래서 전세 계약 종료가 다가오면서 주택 매매를 결정하고 열심히 공부하기 시작했어요.

집을 고를 때 디자인도 중요했지만 무엇보다 주변 환경과 뷰를 우선으로 했어요. 시내 중심에서 조금은 멀었으면 좋겠고 풀벌레 소리가 잘 들리는 조용하고 산 속 아래 작은 마을 같은 느낌이면 좋겠다 싶었어요. 자연의 느낌이 가득한 곳을 원해서 정형화된 주택단지들은 피했구요.
2년 동안 열심히 돌아다니면서 찾고 찾다가 발견한 집이 현재 집이랍니다. 그리고 뒤에 유명한 이천의 산이 있어요. 둘레길도 잘 되어 있어서 강아지 산책 시키는 것도 너무 좋고, 산행하기도 너무 너무 좋았어요 :)


집이 작은 편이었지만 일순위로 생각했던 주변 환경과 뷰 그리고 매매가가 너무 만족스러웠어요. 그리고 리모델링을 하기에 수월한 콘크리트 구조에 건폐율 40% 지역이라 증축이 가능한 것도 디자인이 백프로 마음에 안 드는 점을 덮을 만한 큰 메리트가 되었어요.
Before 사진

리모델링을 어디서 어떻게 할지 너무 막막했는데 지인 중에 막 집을 완성한 부부가 있었어요. 가서 보니 설계도 잘 됐고 너무 이쁘더라구요. 그 집이 바로 얼마 전에 오늘의집에 소개된 모콩이네 집이었어요. 그래서 저희도 박샤바 스튜디오 대표님을 만나게 되었고요. 역시나 저희 마음을 잘 캐치해 주셨고 그걸 고스란히 구조에 잘 반영한 뒤 인테리어 디자인까지 정리해 주셔서 너무 마음에 드는 디자인이 나왔어요.
처음에는 일층 거실 벽을 뚫어서 벽만 더 확장을 시킬까 했는데 내력벽을 건드려야만 좋은 구조가 나올 것 같아서 포기하고 고심 끝에 한 동을 더 짓기로 했어요. 비용은 당연히 예상보다 더 많이 들었지만 너무 마음에 드는 디자인이 나와서 진행하기로 했습니다.
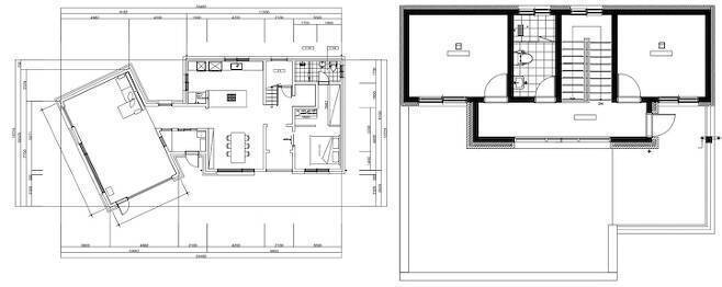
도면

보시면 네모 틀어진 곳이 새로 짓게 된 공간입니다. 뷰 확보를 위해서 박샤바 대표님 아이디어로 거실동을 조금 틀어서 시공했어요.
공사 사진

주방 창문이 너무 작아 답답해 창을 더 크게 시공했어요. 더 넓어 보이는 효과와 산이 보이는 뷰까지 얻을 수 있었어요 :)

구축에서 외부로 나가는 문과 세탁실 문을 제거하고 아치로 변경하였습니다.

저희가 뷰를 중요시하는 만큼 대표님도 뷰를 우선으로 생각하셔서 신축동은 과감하게 각을 틀어서 뷰를 확보했고 여행과 캠핑을 즐기는 취향을 파악하시고는 신축동은 산장 카페 같은 느낌을 주자고 하셨어요.
현관




복도





거실



신축 거실은 16평에 박공지붕이고, 2중 로이코팅 유리로 뷰를 확보했어요. 빔으로 홈시네마를 즐기고 뷰를 바라보며 쉴 수 있는 힐링 공간을 생각하며 인테리어에 맞는 가구들을 선택했어요. 천장 박공은 도배로 했고, 그 외 벽은 노출 콘크리트 느낌으로 카페 분위기가 나도록 디자인을 잡았어요.






주방 다이닝룸

기존 건물은 거실과 주방이 있던 공간 전체를 주방과 다이닝룸 그리고 세탁실로 사용하기로 했어요. 11자 구조로 주방을 설계하고 아일랜드 상판을 엔지니어드 스톤으로, 싱크대 가구는 블랙을 선택하여 더 고급스러운 느낌을 줬어요.




안방



안방은 드레스룸과 자는 공간을 구분했어요. 자는 공간에는 조명을 따로 설치 안 했고, 드레스룸에 조명을 설치하였어요.

안방 욕실


안방 화장실은 테라조 타일로 조적 욕조를 했어요. 원래 여닫이문이었는데 문 크기 너무 커서 열면 화장실이 작아 보여서 슬라이딩 도어로 선택했어요 :)


안방 복도



여기는 원래 본동 현관 공간이었어요. 현관 위치가 변경되어 구 현관은 내부로 변경되었어요. 그래서 통 뷰로 변경하여 밖의 풍경을 볼 수 있게 했어요.
계단



진짜 문제의 계단이에요. 타일 계단으로 바꿨는데 기존 계단 목작업이 수평수직이 맞지가 않아서 타일 작업하는데 꽤나 애를 먹었지만 너무 마음에 들어요. 난간 디자인도 그렇구요. 여담이지만 제가 키가 많이 크거든요. 제 키나 분위기에 어울리는 난간 디자인이라며 대표님이 추천해 주신 거예요.

여기는 원래 아래 사진처럼 2층 창문이었는데 너무 답답해서 폴딩도어로 변경했어요.

마을 뷰 및 노을




그래서 파사드 디자인을 최대한 산장 느낌이 나게 박공 지붕으로 잡았고요. 전면은 전체 유리창으로 하고 우측면으로는 큰 통창을 넣어서 뷰를 완벽하게 확보했어요.

그리고 본동과 신축동 연결이 아주 기가 막혔어요. 기존 본동 거실에는 밖으로 나갈 수 있는 창이 두 개가 있었어요. 전면부에 하나 그리고 건물 좌측면으로 작게 하나가 있었는데 좌측면 쪽을 헐어서 신축동과 연결하는 복도가 만들어졌고 현관 입구도 그쪽으로 변경하게 되었어요.
외관

마지막으로 저희 집 외관 사진이에요. 외장은 미장과 금속으로 컨셉을 잡았어요.




아직 조경도 끝나지 않았고 부족한 것이 많지만 앞으로 집을 캠핑할 수 있는 공간으로 만들 수 있어서 설레면서도 기분이 좋아요. 어수선한 사진도 많지만 전원주택을 꿈꾸며, 캠핑을 좋아하고 저희와 같은 인테리어 취향을 가진 분들에게 많은 도움이 되었으면 좋겠어요. 처음이라 부족해서 많은 설명을 달지 못했는데, 궁금하신 점 있다면 댓글로 남겨주세요! 구경 와주셔서 모두 감사합니다~
