전원주택을 찾는 이들이 늘어남에 따라 전원주택 시장의 규모 또한 커지고 있다. 더불어 점점 더 높아지는 건축주의 눈높이를 충족하기 위한 중·고급형 주택이 꾸준히 등장하고 있다.

건축개요
건축 공법 경량 목구조 모던 하우스
연면적 143.34㎡(43.36평)
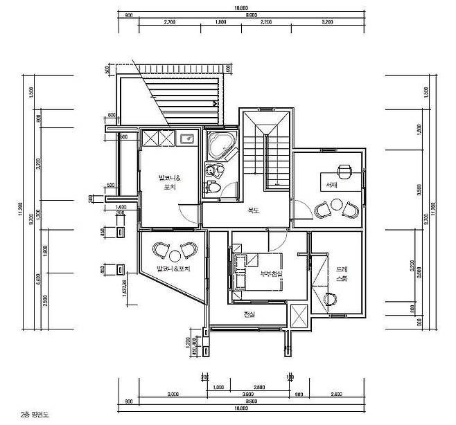
1층 84.54㎡(25.57평)
2층 58.80㎡(17.79평)
포치 33.96㎡(10.27평)
데크 40.10㎡(12.13평)
발코니 22.89㎡(6.93평)
지붕재 컬러 강판
외장재 스타코, 파벽돌, 컬러 강판
창호재 미국식 시스템 창호
현관문 동판 단열 도어
자료 협조 CM건축(주)


한적한 마을을 지나 한참 이동한 끝에 도착한 주택지는 고즈넉한 풍경이 아름다운 곳이다. 건축주는 부지 중심에 박힌 여러 개의 말뚝을 가리키며, 이곳이 땅의 기운을 가장 많이 받는 곳이기 때문에 침실과 현관 거실이 이 자리에 배치되길 원한다고 말했다. 하지만 그 크기가 7m×7m 요구 사항에 비해 다소 협소한 크기라는 문제점이 있었다.
현관, 거실, 부부 침실, 손님방을 가장 좋은 위치에 배치하고, 부수적인 실들을 동선에 맞춰 구성했다. 차후 저온 창고를 계획하고 있어 다용도실을 매개체로 주방과 식당, 저온 창고의 중심에 배치해 주부의 동선과 편리성에 중점을 뒀다. 거실 상부에 위치한 2층 부부 침실은 땅의 기운을 가장 많이 받는 지점에 침대를 배치했다. 원래는 구조적인 문제로 인해 다소 크게 구획되는 부분이었으나, 완충작용 공간으로 전실을 설치해 아담하게 연출할 수 있었다.



