
영동 모던주택은 차분하고 무게감 있는 세라믹 소재 마감재를 벽과 지붕에 사용해 외부 위험 요소를 모두 막아줄 것 같이 견고한 느낌을 전한다. 단열과 기밀성을 높여 더위는 물론 강추위 속에서도 항상 쾌적한 실내 환경을 유지한다. 인테리어는 밝은 무채색 바탕에 원색과 파스텔 톤을 포인트로 가미하고 은은한 조명을 곳곳에 설치해 형형색색이 조화로우며 세련미가 넘친다.
구성&진행 백홍기 기자 | 글 윤형노&임희연(코원하우스 브랜드전략팀) | 사진 코원하우스
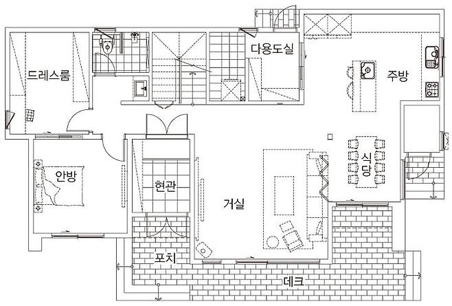
HOUSE DATA
위치 충북 영동군 상촌면
건축구조 경량 목구조
건축면적 131.82㎡(39.88평)
연면적 190.59㎡(57.65평)
1층 127.66㎡(38.62평)
2층 45.87㎡(13.88평)
외장재
지붕 - 세라믹 지붕재(KMEW)
외벽 - 16T 세라믹 사이딩(KMEW), 스타코플렉스
단열재
지붕 - R38 글라스울
내벽 - R11 글라스울
외벽 - R24 글라스울
설계 및 시공 ㈜코원하우스 1577-4885 www.coone.co.kr


INTERIOR POINT!
인테리어는 화이트 톤으로 통일해 이미지가 깔끔하다. 화이트 바닥 타일은 그레이 아트월과 따뜻한 골드 색 간접조명이 어우러져 분위기가 은은하고 매력적이다. 각 문과 요소요소에 딥블루, 골드, 핑크, 라이트 브라운 등을 사용해 다양한 질감과 색감을 조화롭게 연출했다. 1층은 하이실링 구조와 거실과 이어지는 주방에 폴딩도어를 설치해 공간감과 효율적인 공간 분리가 포인트다. 주방은 세련된 색감을 사용한 붙박이장을 벽면 전체에 설치해 실용성을 높였다.
01 폴딩도어로 공간 활용성 높인 거실과 주방
화이트 마감재에 딥블루 색으로 포인트 컬러를 강조하고 골드 조명을 더해 분위기가 고급스럽다. 거실과 주방 사이에 폴딩도어를 설치해 필요에 따라 공간을 유연하게 사용할 수 있다.
02 웨인스코팅으로 아트월 마감
공용 공간인 거실 아트월을 웨인스코팅으로 마감했다. 다양한 무늬의 골드 몰딩을 사용해 감각적이고 세련된 공간을 연출했다.
03 분위기 좌우하는 조명
안방 4면에서 나오는 간접조명과 침대 양옆의 골드조명이 깔끔하고 세련된 분위기를 제공한다. 주방에서 길게 이어지는 백색 간접조명은 한층 더 고급스러운 분위기를 낸다.
04 하이실링으로 개방감 부여
2층까지 시원하게 열린 공간이 넓은 개방감과 웅장한 느낌을 준다. 포세린 바닥 타일과 아트월 간접조명, 우물천장 등이 심플한 느낌을 주면서 조형미를 완성한다.
05 맞춤 가구로 디자인과 실용성 높여
주방가구, 신발장, 세면대 등을 인테리어 요소로 눈에 띄게 연출하면서 실용성을 높였다. 아트월과 어울리도록 디자인 가구를 설치해 세련된 멋을 냈다.


현관은 화이트&딥블루 컬러를 조화롭게 사용해 모던하면서도 깊이 있는 질감을 냈다. 차분하고 세련된 첫인상은 영동 모던주택 전체 인테리어 콘셉트를 안내한다.
Interior Data
바닥 포셀린 타일
벽 포셀린 타일
천장 실크벽지
중문 영림 두 짝 양개도어
신발장 하부 간접조명


깔끔한 포셀린 타일, 심플한 아트월, 아늑한 천장 조명과 벽 조명 등이 전체 실내 분위기를 세련미 넘치게 꾸며준다. 2층까지 열린 천장은 시원한 공간감을 선사한다.
Interior Data
바닥 포셀린 타일
벽 실크벽지
천장 실크벽지 + 실링팬
아트월 포셀린 타일 + 간접조명

밝은 바탕에 깔끔한 포셀린 타일과 은은한 간접조명을 사용해 고급호텔 라운지 바와 같이 산뜻한 공간을 연출했다. 주방과 거실 사이에 투명유리 화이트 접이식 도어를 설치해 공간을 유연하게 사용하도록 했다.
Interior Data
바닥 포셀린 타일
벽 실크벽지
천장 실크벽지 + 간접조명

넓은 창을 내 햇살과 풍경을 끌어들여 밝고 개방감이 좋다. 바닥은 침실 분위기와 어울리는 은은한 포셀린 타일로 마감해 깔끔하고 고급스럽다.
Interior Data
바닥 한솔 SB마루마블
벽 실크벽지
천장 실크벽지 + 간접조명
도어 영림 ABS 도어

드레스룸은 안방과 복도를 통해 유연한 동선을 확보하고 양개형 맞춤 가구로 모던하고 차분한 분위기를 냈다.
Interior Data
바닥 한솔 SB마루마블
벽 실크벽지
천장 실크벽지 + 간접조명
도어 영림 ABS 도어

위생 공간 입구에 세면대를 별도로 두고 맞춤 가구로 포인트를 줬다. 블루 톤 가구와 벽타일이 신선한 조화를 이룬다. 위생 공간 내부는 샤워실을 별로로 분리해 활용도를 높였다.
Interior Data
바닥 자기질 타일
벽 도기질 타일 + 포인트 타일
천장 smc
도어 영림 ABS여닫이 도어
샤워기 세비앙
샤워부스 투명 강화유리
위생기기 대림바스
재료분리 및 도어식기 인조대리석


거실과 가족실을 넓게 구성하면서 침실 면적이 다소 좁아졌지만, 맞춤 가구로 공간 활용도를 높이고 아늑한 공간으로 완성했다.
Interior Data
바닥 한솔 SB마루마블
벽 실크벽지
천장 실크벽지 + 간접조명
도어 영림 ABS 도어

2층 가족실은 웨인스코팅에 골드 몰딩으로 감각적이고 세련된 멋을 연출하고, 핑크 컬러 가구를 배치해 산뜻하면서 사랑스러운 느낌을 더했다.
Interior Data
바닥 포셀린 타일
벽 웨인스코팅
천장 실크벽지
포치도어 캡스톤도어

유리 파티션을 설치해 세면대와 샤워 공간을 분리한 게 특징이다. 공간 분리로 기능성을 높여 편리하고 편안하게 스트레스를 푸는 공간으로 만들었다.
Interior Data
바닥 자기질 타일
벽 폴리싱 타일
천장 smc
샤워기 8와트
샤워부스 투명 강화유리
상·하부장 맞춤제작
거울 8와트
도어 ABS여닫이 도어
위생기기 대림바스 + 아메리칸스탠다드

계단실은 천연 대리석으로 마감해 고급스럽고 중후한 분위기를 냈다.
Interior Data
바닥 포셀린 타일
벽 실크벽지
천장 실크벽지 + 간접조명
난간 세로 평철 난간 + 벽부형 철제 손스침

