
요즘 젊은 부부들이 집을 지을 때 자연스럽게 나오는 단어가 ‘IoT 시스템’이다. 언택트 시대 이후 외부활동을 자제하고 집에서 머무는 시간이 늘어나면서 많은 사람이 더욱 편리하고 안전하면서 쾌적한 주거환경을 원하는 홈택트(home+untact) 라이프 스타일에 주목하고 있다. 이와 관련해 아파트 시장에선 IoT 시스템을 접목한 ‘스마트앱’, ‘AI.IoT’, ‘스마트홈’ 등을 선보여 소비자 요구에 발 빠르게 대응하고 있다. 그러나 거주자의 삶을 고려하지 않은 기술은 무용지물이다. ‘하하하집’은 IoT 기술에 관심 많은 젊은 건축주가 실제 생활에 도움 되는 기술만 모은 진정한 스마트홈이다.
글 백홍기 기자 | 사진 노경 작가
취재협조 정예랑건축사무소
※‘하하하집’은 1편과 2편으로 나눠서 소개합니다. 1편은 스마트홈에 적용한 IoT 기술에 대해, 2편은 스마트홈 공간을 소개합니다.
IoT(Internet of Things; 사물인터넷)는 사물에 센서를 연결해 인터넷 기반으로 실시간 데이터를 주고받는 기술이다. IoT 기술을 적용한 하하하집은 곳곳에 설치한 스마트 기기가 각 실 특징과 환경에 따라 스스로 알아서 작동하거나 사람의 말과 행동에 따라 일사불란하게 움직인다. 일출과 일몰에 맞춰 알아서 작동하는 커튼과 블라인드는 온 가족이 외출할 땐 자동으로 외부 시선을 차단한다. 그러다 가족이 집에 들어오면 다시 커튼을 열어준다. 또, 거실에서 “영화 보여줘” 한마디만 하면, 블라인드를 내리고 실내 조도에 따라 조명을 조절하며 스크린을 작동해 시네마 환경을 만든다. 이뿐만이 아니다. 실내 공기질과 대기 환경, 온도, 습도에 맞춰 집 안을 늘 쾌적한 상태로 유지한다. 직접 일일이 제어하는 게 아니다. 어떤 기능은 스스로 학습하고 데이터를 수집해 최적의 조건을 찾아낸다. 그야말로 스마트하다.
살아있는 집, 스마트홈
스마트홈은 살아있는 유기체와 같다. 단순히 IoT 기기만 설치하는 것은 원격 제어 시스템이다. 스마트홈은 IoT 기기들을 혈관처럼 긴밀하게 네트워크로 연결하고, 사물이 더욱 세밀한 조건에 반응하는 알고리즘을 완성하도록 센서와 API, 허브 등을 갖춰야 비로소 하나의 시스템으로 완성된다. 이러한 네트워크와 서버로 구성한 하하하집은 외부에서 조명과 보일러, 에어컨을 원격 제어하는 것은 기본이고, 일정에 따라 알아서 조명이 켜지거나 비가 오지 않는 날에만 잔디에 물을 주며, 가족이 머무는 시간을 측정해 실내 온도를 조절하는 등 환경에 따라 스스로 성장하고 움직인다. 하하하집에 사용한 IoT 기술은 서버와 네트워크로 나뉘며 기능에 따라 안전, 편의, 쾌적한 실내 공간 유지로 구분할 수 있다.


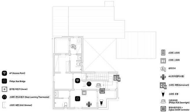
서버는 IoT 시스템의 심장이다. 라우터, 허브, NAS를 한곳에 모아 허브랙을 구성하는 서버는 IoT 무선 네트워크를 담당하는 AP와 허브를 연결하고 보안카메라 영상과 각종 자료, 데이터를 기록하고 보관한다.
Smart Things 허브
허브는 뇌 역할을 하는 기기로 Smart Things 제품은 가장다양한 IoT 기기를 컨트롤하는 확정성이 넓은 플랫폼이다. Smart Things는 미국 IoT 플랫폼 전문기업으로 삼성전자가 이 분야에 뛰어들기 위해 인수했다. 인수 후 경영은 설립자인 호킨스가 운영하고 있다.

스마트 보안카메라
보안카메라는 POE(인터넷 케이블 하나에 데이터와 전원을 동시에 보내는 기술)로 연결해 기존 카메라보다 성능과 기능이 뛰어나다. 모션 감지 기능은 실시간으로 사물이 출현한 시간을 기록해 쉽게 확인할 수 있다.

스마트 화재경보기
연기를 감지하고 일산화탄소량을 정밀하게 측정해 알려준다.

도어벨
외부인이 벨을 누르면 AI 스피커로 알려주거나 휴대폰으로 문자를 발송한다. 실시간으로 영상통화도 할 수 있다. 모션 감지 기능이 있어 현관 보안 수준을 높여준다.

스마트홈이 추구하는 생활은 편리함을 넘어 윤택한 삶을 제공하는 데 있다. 각종 IoT 기기와 센서는 사소한 일상 행위를 줄여 편리한 환경을 제공한다.
스마트 커튼/블라인드
일출과 일몰에 맞춰 자동을 열리고 닫힌다. 음성이나 행동으로도 작동하는 커튼과 블라인드는 가족이 모두 외출 시엔 자동으로 닫히고 집에 들어오면 현관 도어 센서 신호를 받아 자동으로 열린다.

AI 스피커
AI 스피커는 일상에서 커튼과 블라인드 작동, 창문 개폐, 영화, 날씨 등을 편리하게 음성으로 제어하고 인터넷 검색 기능을 제공한다. 또, 실내와 차고에 총 AI 스피커 7대를 설치해 어디서나 소통하는 기능도 제공한다.

센서
집 안에서 일어나는 움직임, 온도, 진동, 밝기 등을 감지해 냉·난방, 조명, 환기와 관련한 기기를 제어한다.

AP(Access Point)
IoT 시스템 기반을 제공하는 AP를 거실, 주방, 2층, 차고에 설치해 각 기기를 연결하고 집 안 어디서나 끊어지지 않는 무선 인터넷을 제공한다.

NAS(Network Attached Storage)
네트워크로 접속하는 데이터 장치다. NAS에 접속한 단말기로 아이들은 영어 공부를 하고 가족 모두 음악과 사진 등을 공유한다. 시놀로지Synology에서 제공하는 앱App을 이용하면 언제 어디서든 서버에 접속해 다양한 활동을 할 수 있다.

스마트 스위치
휴대폰으로 조명을 제어하거나, AI 스피커를 통해 음성 명령을 내릴 수 있다. 화장실 조명이 켜지거나 습도가 높아지면 환풍기를 자동으로 작동시킨다.

스마트 버튼
조명과 블라인드, 커튼 등을 제어한다.

스마트 플러그/멀티탭
전력량을 측정하고 안정적인 전원을 공급한다. 지그비 리피터Zigbee Repeater 기능을 포함한 제품은 단거리 통신망을 보완하는 역할도 한다.

스마트 조명
1600만 가지 색을 표현하는 스마트 조명은 색과 조도를 환경에 맞춰 제어하거나 소리에 따라 동적으로 연출해 필요에 따라 다양한 환경을 만들 수 있다.

다운 라이트
스마트 스위치 또는 환경 설정을 통해 개별로 색온도와 밝기를 제어한다. 센서와 연동해 조도 5lux 이하일 때 주방에서 움직임이 감지되거나, 주방 수납장 문을 열면 천장에 설치한 다운 라이트가 자동으로 켜진다.

집 안은 거주자 활동이나 조리, 외부 미세먼지 유입 등에 의해 수시로 변하기 때문에 실내 환경에 따라 적절하게 환기해야 한다. 하하하집은 각종 센서와 조절기기가 실내외 상황에 맞춰 집 안을 늘 일정하게 쾌적한 상태를 유지한다.
스마트 온도조절기
거실, 주방, 2층 3곳에 설치한 스마트 온도조절기는 실내 상태와 가족들의 생활패턴을 빅데이터로 수집해 집 안 온도를 최적화한다. 불필요한 냉난방 가동을 줄여 연료비30% 정도를 절감했다.

공기질 측정기
온도, 습도, 이산화탄소, 일산화탄소, 화학물질, 초미세먼지 등을 측정해 자동으로 열 회수 환기장치를 작동하거나 음성으로 실내 공기질 상태를 알려준다.

열 회수 환기장치
수동으로 작동하는 기존 열 회수 환기장치에 IoT 스위치를 장착했다. 실내 공기질 측정기 신호 또는 기상청 API 정보와 연동해 실시간 자동으로 작동한다.

세 자녀 이름에서 따온 스마트홈 ‘하하하집’을 완성하기 위해 김현민 건축주와 정예랑 건축가가 만났다. 둘 다 처음 겪는 도전기라 시작부터 순탄하지 않았다. 거듭된 회의와 설계 변경을 거치며 1년이 흘렀다. 공사 현장에서도 수정하는 일은 다반사였다. 과정은 힘들었지만, 기대와 우려 속에 하나하나 완성해가는 하하하집을 보면서 즐거웠다는 김현민 씨와 정예랑 건축가의 스마트홈 도전기에 대해 물었다.
Q 스마트홈을 계획한 이유는 무엇인가.
건축주 김현민(이하 김) 최근 신축 아파트는 외부에서 조명을 컨트롤하거나 엘리베이터 호출, 가스 밸브 제어 등 스마트 기능을 적용하고 있다. 집을 짓기로 하면서 이러한 ‘원격 조절 기능’이 별도 관리실이 없는 단독주택에 더욱 필요할 것이라고 생각했다.
Q IoT 기술을 배우는 게 어려웠을 거 같다.
김 IoT에 대한 개념이 전혀 없는 상태에서 처음엔 무작정 외부에서 원격 조절하는 기능에만 관심이 있었다. 그러다 작동 원리가 궁금해 인터넷 카페와 유튜브 동영상을 뒤져봤다. 클라우드, 로컬, 서버, 지그비, 허브, 게이트웨이 등 모르는 단어로만 조합된 설명을 이해 못 해 포기할 뻔했다. 하지만, 모르는 건 반복 학습으로 넘어서리란 막연한 기대감으로 하나씩 개념을 잡아가면서 ‘원격 컨트롤’과 스마트홈을 구성하는 ‘IoT’가 완전히 다른 개념이라는 것을 깨닫게 되었다.
Q 정예랑 건축가는 스마트홈 설계를 의뢰받고 어땠나.
정예랑 건축가(이하 정) ‘나도 공부해야겠구나’란 생각이 가장 먼저 들었다. IoT는 가구처럼 원하는 제품을 구입해 갖다 놓는 것처럼 단순하지 않다. 전기와 설비 등 보이지 않는 시스템, 네트워크 설계를 동반해야 하기 때문에 말 그대로 ‘관계’를 새롭게 다시 설정하고 설계해야 하는 미션이었다.
Q 일반 주택과 스마트홈을 설계할 때 다른 부분은.
정 건축주와 소통 과정이 더 긴밀해야 했다. 단순히 요구사항에 대응하는 공간 배치를 넘어 보이지 않는 네트워크 시스템을 고려해야 했기에 설계에서 시행착오도 겪었다. 계획 및 공사 과정 중에도 건축주가 거주하는 아파트에서 실시간 테스트와 모니터링, 시뮬레이션을 통해 설계를 수정하고 현장에 반영했다. 건축주가 요청해도 건축가가 설계에 반영하지 못하거나, 현장에 적용하지 못하면 무용지물이다. 역으로, 건축가와 시공사가 의지가 있어도 건축주의 요구나 그에 뒷받침되는 지식이 없어도 결과가 아쉽게 끝나기 마련이다. 나로서는 결과로서의 집만큼이나 ‘과정’도 의미 있는 작업이었다.

Q 스마트홈에 살아보니 어떤 점이 좋은가.
김 계절마다 변하는 일몰 시각에 맞춰 외벽 조명이 자동으로 켜지고, 밤 10시 이후엔 조도를 30% 수준으로 낮춘다. 아침에는 계단과 거실 블라인드를 모두 올리고 중정이 보이는 주방 커튼은 절반만 열어놓는다. 실내 활동이 많거나 음식을 조리할 땐 실내 공기질에 따라 자동으로 열 교환기가 작동해 공기를 정화한다. 매일 아침저녁에 물 줘야 하는 정원을 출퇴근하면서 관리하는 게 쉽지 않아 최근 자동으로 물주는 시스템을 구축했다. 비 오는 날은 알아서 물을 주지 않는다. 이렇게 IoT 시스템을 구축하면 매일 반복되는 단순한 규칙을 자동화해 일상이 편리해지는 것은 물론 시간 낭비를 줄여 새로운 생활패턴을 만들어 낼 수 있다.
Q 이웃들의 반응이 궁금하다.
김 음성이나 행동으로 명령하면 움직이는 주방 커튼과 조명, 거실에서 ‘영화보자’라고 외치면 알아서 극장 환경을 만들어주는 기능. 그리고 중정에서 아이들이 음악을 틀고 뛰어놀 때 음악에 반응하는 조명이 중정을 클럽 분위기로 바꾼다. 이러한 환경을 평소 경험할 수 없어 놀라는 사람이 많다. 하지만, IoT 시스템은 특정 명령에 반응하는 기능보다 주기적으로 발생하는 생활패턴에 맞춰 자동화가 진행되는 것이 더욱 큰 장점이다. 이러한 기능을 이웃에게 보여줄 수 없으니 사람들은 눈에 보이는 것만 보고 감탄할 뿐이다.
Q 가장 자주 사용하는 것과 편리하게 사용하는 기능은.
김 스마트홈 구축 장치들은 개별 제어보다 자동화에 목적이 있다. 실제 매일 반복되는 기능은 특정 시간에 작동하는 블라인드와 커튼, 외등, 정원에 물주기 기능이 있다. 그리고 실내 환경에 따라 수시로 냉·난방과 열 교환기가 인식조차 못 할 정도로 자주 사용되고 있다. 일상에서 편리하게 사용하는 기능은 AI 스피커 ‘방송하기’ 기능이다. 1층에서 2층에 있는 아이들에게 밥 먹으러 내려오라고 할 때, 마당이나 차고에서 실내로 또는 실내에서 외부에 있는 사람들에게 메시지를 전달할 때 자주 사용한다.
Q 스마트홈을 만들기 위해 꼭 갖춰야 할 시스템은.
김 필수 시스템은 허브와 네트워크다. 허브는 센서, 스위치, 조명 등 스마트홈에 설치된 장치를 제어하는 두뇌 역할을 한다. 아직은 스마트홈 분야가 표준화되지 않은 상태라 여러 회사에서 허브를 독립적으로 개발하고 있다. 나는 ST(SmartThings), Hue(Philips) 허브 중심으로 휴, 루트론 허브를 하위 브릿지 개념으로 사용한다. 네트워크는 스마트홈에서 가장 중요하다. 집 안 곳곳에 유·무선으로 기기를 연결하는 메쉬망을 구성해 네트워크가 끊어지지 않게 함으로써 디바이스 이탈을 방지한다. 더욱 정교하고 튼튼한 스마트홈 생태계(플랫폼)를 구성하기 위해 서버를 구축하는데, 서버는 IoT를 시작할 때 꼭 필요한 시스템은 아니다. 하지만, 조금 발전된 과정으로 진입하면 서버에 도커를 설치하는데 이때부터 도커가 24시간 구동되면서 스마트홈의 유기적인 관계를 제어하는 ‘심장’ 역할을 한다. NAS와 같은 대용량 저장 매체는 스마트홈에서 데이터 공유 외에 더 중요한 HA(Home Assistant)와 같은 스마트홈 플랫폼을 구축하기 위해 꼭 필요하다.
Q 스마트홈 환경을 구축하면서 가장 공들인 것과 어려웠던 점은.
김 스마트홈은 살면서 계속 진화해간다. 그래서 ‘현재 어떠한 물리적 환경을 반드시 구축해야 하는가’라는 문제에 집중했다. 네트워크 장비는 모세혈관에 해당하는 만큼, 스마트 플랫폼이 섬세하고 정교하게 안정적으로 운영되도록 네트워크 구성에 가장 많이 공들였다. 네트워크 기기는 주택 전체를 빈틈없이 하나의 Mesh WiFi 망으로 묶기 위해 라우터, 스위칭 허브, 무선 AP를 각각 구입해 결합하는 미국 ‘UniFi’ 제품을 사용했다. 그리고 이 분야 전문가도 아니고 공유기만 사용해봤기 때문에, 네트워크 장비를 이해하는 과정이 가장 어려웠다.

Q 설계도 상당히 어려웠을 거 같다.
정 스마트홈은 건축주 가족의 생활패턴과 직결되다 보니, 평소처럼 공간을 계획하는 것보다 더욱 복잡했다. 살면서 적용할 수 없고, IoT 제품을 배치할 위치 등에 대한 고민도 함께해야 해서 충돌되는 부분이 있었다. 그에 따른 문제와 직결된 공간에 대해 해결해야 하는 것이 건축가의 몫이기 때문에 건축주만큼이나 나에게도 고민의 시간이 필요했다. 건축주와 시공사에 질문도 많이 했다. 건축주와 미팅할 때마다 매번 새로운 IoT 시스템에 대한 이야기와 새롭게 구매한 제품들, 그것이 어디에 어떻게 쓰였으면 하는지 요구사항이 추가됐다. 그때마다 머리가 복잡해졌지만, 반면 실제 구현된다면 어떨까 하는 상상하는 재미가 있었다.
Q 스마트홈 아파트가 눈에 띄게 늘었다. ‘하하하집’이 다른 점은 무엇인가.
정 현실의 스마트홈은 대부분 일반적인 IoT 제품 몇 개를 설치한 정도다. 중요한 문제는 거주자의 요구와 삶의 방식을 고려하지 않았다는 것이다. 하하하집은 설계 단계부터 거주자의 삶과 생활에 밀접하게 관련된 IoT 환경이 어떤 것인지 고민하고 최적의 스마트홈 환경을 구성하기 위해 노력한 점이 가장 큰 차이다. 이러한 환경은 건축주 외에 아내와 자녀의 삶도 고려해 함께 수정하고 새롭게 추가해 완성해나갔다.
Q 하하하집을 설계하고 변화된 것이 있나.
정 최근 젊은 부부, 신혼부부, 노부부까지 다양한 주택 설계를 의뢰하는데, 이들의 가장 큰 이슈는 ‘안전’과 ‘편리’다. 자연스럽게 하하하집을 좋은 예로 들며 스마트홈의 좋은 점과 절대적으로 필요한 요소들을 설명해준다. 그 과정에서 그동안 IoT 기술에 관심만 가졌던 예비 건축주의 이해를 돕고 선택할 수 있는 폭을 넓혀주게 됐다.
Q 스마트홈을 계획한 선배로서 후배 건축주에게 도움 될 정보가 있다면.
김 IoT 플랫폼은 ST(Smart Things)와 HA(Home Assistant)가 대표적이다. IoT 관련 공부는 단기간에 끝낼 수 있는 영역이 아니다. 기본적인 물리적 구조도 이해해야 한다. 예를 들면, 모든 스위치 박스에 중성선을 추가 매립하는 이유, 자동 커튼과 블라인드처럼 기존엔 필요 없던 공간에 전기 배선 설치, 랜선 관련 용어 습득과 랜선을 이용한 특정 제품 연결 방법 등이다. 그리고 주택은 건축주 개개인의 니즈를 반영하기 때문에 커스터마이징(Customizing)이 매우 중요한데, 국내 많은 기업에서 제공하는 IoT 관련 제품은 사용 범위가 너무 좁다. 그마저도 월 사용료를 내야 하는 경우가 대부분이다. 결국, 내가 원하는 스마트홈을 지으려면 충분한 시간을 두고 다양한 환경과 적절한 제품을 찾아 직접 시뮬레이션해 보는 과정이 필요하다. 나는 인터넷 카페에서 ST 기반으로 시작해 차근차근 범위를 넓혀갔다.
Q 스마트홈 설계를 의뢰할 예비 건축주에 전할 말은.
정 가능하면, 설계(계획) 단계부터 건축가와 함께 이야기하며 개선하는 과정이 필요하다. 공사 중에도 적용할 수 있지만, 충돌되는 부분 또는 변수가 생겨 가능하면 설계 때 충분히 논의하는 게 좋다. 그리고 막연하게 스마트홈이 좋을 거 같아 따라 하는 것보다, 가족의 라이프 스타일을 생각하고 필요한 기능에 대해 충분히 살펴본 다음에 결정해야 시행착오를 줄일 수 있다. 스마트홈에 삶을 맞추는 게 아니라, 나의 삶에 맞는 스마트홈을 완성해가는 과정이기 때문이다.

