· 오늘의집 @힐링은집에서 님의 집들이입니다
· 인테리어 제보는 인스타그램 @todayhouse
· 인테리어 제보는 인스타그램 @todayhouse
"내 취향을 온전히 반영한 집에 살아보니 공간이 사람에게 주는 행복과 편안함이 얼마나 큰지 매 순간 깨닫고 있어요"

안녕하세요.
9년동안 살던 집 리모델링을 통해 집이라는 공간이 사람에게 미치는 심리 정서적 영향이 얼마나 큰지 몸소 체험하고 있는 결혼 19년차 워킹맘입니다^^
9년동안 살던 집 리모델링을 통해 집이라는 공간이 사람에게 미치는 심리 정서적 영향이 얼마나 큰지 몸소 체험하고 있는 결혼 19년차 워킹맘입니다^^

세상에서 가장 든든한 내편인 남편과 제 눈에는 제일 이쁜 남매와 같이 제 취향이 100프로 반영된 집에서 날마다 힐링하며 행복한 하루하루를 보내고 있습니다.
2018년에는 리모델링과 미니멀한 홈스타일링에 온 힘을 쏟아부었다면 요새는 실내 공기 정화에 도움이 되고 우리 집에 잘 어울리는 초록이들을 하나 둘씩 들이면서 생기있는 집꾸미기에 푹~ 빠져있습니다.
그럼 이제 심플하지만 유니크한 매력이 있는 저희 집을 소개할게요.
2018년에는 리모델링과 미니멀한 홈스타일링에 온 힘을 쏟아부었다면 요새는 실내 공기 정화에 도움이 되고 우리 집에 잘 어울리는 초록이들을 하나 둘씩 들이면서 생기있는 집꾸미기에 푹~ 빠져있습니다.
그럼 이제 심플하지만 유니크한 매력이 있는 저희 집을 소개할게요.
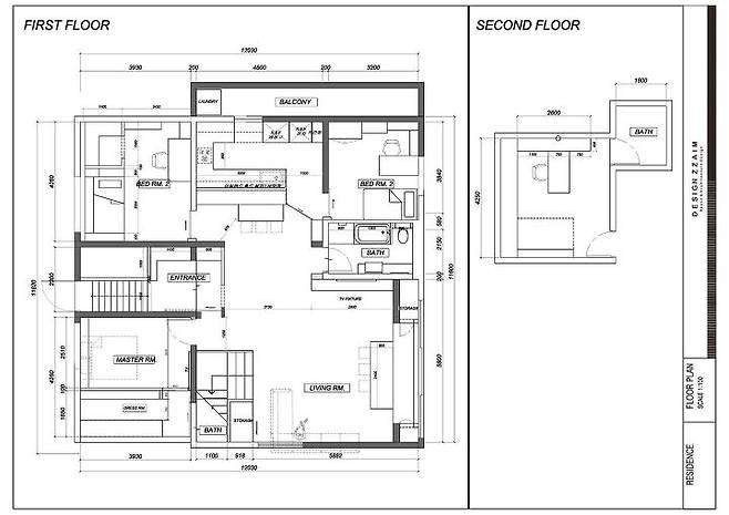
도면

동향의 복층 집입니다. 공간이 널찍한 빌라라 아파트 구조와는 매우 달라요. 공사하기 전도 살기 불편한 구조는 아니었지만 살면서 아쉬웠던 부분을 구조변경해서 제가 머릿속에 수없이 그리던 공간이 탄생했습니다.
<구조변경 및 간단 설명>
*요구사항 : 다크한 마루, 시스템 에어컨, 동선은 간결하게 수납은 빵빵하게, 대면형 주방, 럭셔리 화장실
1. 현관 : 현관 중문을 거실 안쪽으로 이동하여 확장, 확장한 부분의 가벽은 아치형 유리 칸막이를 제작
2. 주방 : 주방과 거실을 나누던 슬라이딩 문 제거. ㄱ자형 구조에서 ㄷ자형 구조로 변경하여 대면형 주방으로, 뒷 베란다 나가는 문의 위치를 변경하여 세탁실 공간 확보
3. 거실 : 쇼파와 TV장 위치 변경, 앞베란다 확장, 복층 계단 옆 창고 신설
4. 안방 : 가벽을 통해 침실과 드레스룸 분리
5. 거실화장실 : 호텔 화장실처럼 럭셔리하게
<구조변경 및 간단 설명>
*요구사항 : 다크한 마루, 시스템 에어컨, 동선은 간결하게 수납은 빵빵하게, 대면형 주방, 럭셔리 화장실
1. 현관 : 현관 중문을 거실 안쪽으로 이동하여 확장, 확장한 부분의 가벽은 아치형 유리 칸막이를 제작
2. 주방 : 주방과 거실을 나누던 슬라이딩 문 제거. ㄱ자형 구조에서 ㄷ자형 구조로 변경하여 대면형 주방으로, 뒷 베란다 나가는 문의 위치를 변경하여 세탁실 공간 확보
3. 거실 : 쇼파와 TV장 위치 변경, 앞베란다 확장, 복층 계단 옆 창고 신설
4. 안방 : 가벽을 통해 침실과 드레스룸 분리
5. 거실화장실 : 호텔 화장실처럼 럭셔리하게
BEFORE - 거실

공사 전 거실 모습입니다. 정리 전 모습이라 어수선하지만 깔끔히 정리하면 널찍한 매력이 있었어요.

현장 실측과 저의 요구사항을 듣고 난 후 처음 업체에서 제안한 시안입니다. 시안을 보고 이 업체에서 하면 내가 원하는 대로 잘 나올 것 같다는 느낌이 왔어요. 지금 다시 보니 큰 틀은 비슷하고 소소한 부분만 바뀌었네요^^
벽은 화이트, 바닥은 다크브라운 마루 베이스로 다크그레이와 우드 색상을 포인트 컬러로 톤을 정리했어요.
벽은 화이트, 바닥은 다크브라운 마루 베이스로 다크그레이와 우드 색상을 포인트 컬러로 톤을 정리했어요.
AFTER - 거실

헤링본 마루를 하고 싶었지만 원목마루로 업그레이드 하면서 비용이 올라가서 헤링본은 포기할 수 밖에 없었어요^^; 하지만 후회하지 않아요. 헤링본 원목마루로 했으면 더 이뻤겠지만 어차피 인테리어 공사는 예산과의 타협이니까요.
비록 흔한 일자마루지만 원목마루 자체가 주는 아우라가 있는 것 같아요. 촉감도 너무 좋고요. 거기다 밝은 강마루나 그레이 타일이 유행인 요새 인테리어 트렌드 속에서 다크한 원목마루는 우리집만의 유니크한 분위기를 만드는 일등공신이죠.
앞 베란다는 확장하며 전창을 반창으로 만들었어요. 거기에 붙박이 벤치를 제작하고 220cm 우드슬랩을 둬서 카페 같은 거실을 만들었습니다.
기존 벽은 내력벽이 아니여도 건물 안정성을 생각해 유지하도록 했어요. 대신 기존에 아치형 창문이 있던 곳에 아치형 유리 칸막이를 만들어 힘을 주었죠. 이 공간은 창고로 쓰기 때문에 실루엣 정도만 보이게 모루유리로 마감했습니다.
거실장이 있는 곳은 원래 소파가 있었는데요, 더 큰 소파를 놓기 위해 위치를 바꿨습니다.
원래는 TV만 벽걸이로 두려고 했지만 수납공간이 필요할 것 같아 TV장을 제작했어요. TV를 안볼 때는 슬라이딩 문으로 TV를 가리고 책장만 보이게 해서 거실을 서재처럼 사용할 수 있어요.
거실 LED 조명은 주문제작했습니다. 조명에 대해서는 1도 몰라서 업체에 일임했어요. 조명에 대한 유일한 요구사항은 어둡지 않게 해주세요 였는데, 어둡지 않으면서 각 공간별로 포인트 되게 잘 해주셔서 넘 맘에 들어요. 아래 사진을 계속 보시면 아시겠지만 공간마다 조명이 다 달라요:)
비록 흔한 일자마루지만 원목마루 자체가 주는 아우라가 있는 것 같아요. 촉감도 너무 좋고요. 거기다 밝은 강마루나 그레이 타일이 유행인 요새 인테리어 트렌드 속에서 다크한 원목마루는 우리집만의 유니크한 분위기를 만드는 일등공신이죠.
앞 베란다는 확장하며 전창을 반창으로 만들었어요. 거기에 붙박이 벤치를 제작하고 220cm 우드슬랩을 둬서 카페 같은 거실을 만들었습니다.
기존 벽은 내력벽이 아니여도 건물 안정성을 생각해 유지하도록 했어요. 대신 기존에 아치형 창문이 있던 곳에 아치형 유리 칸막이를 만들어 힘을 주었죠. 이 공간은 창고로 쓰기 때문에 실루엣 정도만 보이게 모루유리로 마감했습니다.
거실장이 있는 곳은 원래 소파가 있었는데요, 더 큰 소파를 놓기 위해 위치를 바꿨습니다.
원래는 TV만 벽걸이로 두려고 했지만 수납공간이 필요할 것 같아 TV장을 제작했어요. TV를 안볼 때는 슬라이딩 문으로 TV를 가리고 책장만 보이게 해서 거실을 서재처럼 사용할 수 있어요.
거실 LED 조명은 주문제작했습니다. 조명에 대해서는 1도 몰라서 업체에 일임했어요. 조명에 대한 유일한 요구사항은 어둡지 않게 해주세요 였는데, 어둡지 않으면서 각 공간별로 포인트 되게 잘 해주셔서 넘 맘에 들어요. 아래 사진을 계속 보시면 아시겠지만 공간마다 조명이 다 달라요:)

현관에서 바라본 모습입니다. 제가 너무너무 사랑하는 뷰랍니다. 창 너머로 보이는 나무가 싱그러움을 더해요.
거실 벽은 흰색으로 도장시공 했어요. 원래 벽지로 계획했지만 더 이쁘게 만들기 위해 업체 실장님이 서비스로 도장으로 해주셨어요.
거실 벽은 흰색으로 도장시공 했어요. 원래 벽지로 계획했지만 더 이쁘게 만들기 위해 업체 실장님이 서비스로 도장으로 해주셨어요.

벽에 레일이 있어서 그림을 쉽게 걸 수 있어요.
거실이 넓어서 에어컨을 2대 설치할까 했지만 실링 팬과 에어컨 조합으로 결정했습니다. 실링 팬은 여름엔 시원하고 겨울에는 공기 순환을 도와서 난방할 때 금방 훈훈해져요. 무엇보다 예쁘고요.
거실이 넓어서 에어컨을 2대 설치할까 했지만 실링 팬과 에어컨 조합으로 결정했습니다. 실링 팬은 여름엔 시원하고 겨울에는 공기 순환을 도와서 난방할 때 금방 훈훈해져요. 무엇보다 예쁘고요.
BEFORE - 주방

공사 전 주방 모습이에요. 20년 전에 유행한 전형적인 ㄱ자 구조의 싱크대죠? 넓은 공간이지만 사방으로 문이 있어서 공간 활용도가 떨어지는 게 문제였어요.
거실과 주방을 나누는 슬라이딩 도어는 항상 열어놓고 사용했기 때문에 공사하면서 철거했어요.
거실과 주방을 나누는 슬라이딩 도어는 항상 열어놓고 사용했기 때문에 공사하면서 철거했어요.

주방 때문에 여러 번 미팅을 했는데요, 여섯 개 시안 중 최종 선택된 시안입니다.
아일랜드 주방에 대한 로망이 있었는데요, ㄷ자 구조의 대면형 주방과 홈카페는 꼭 갖고 싶었어요. 이 조건과 함께 편리한 동선을 고려하며 실장님과 열심히 회의하고 궁리한 결과 노력한 만큼 예쁘고 실용적인 구조가 나왔어요.
아일랜드 주방에 대한 로망이 있었는데요, ㄷ자 구조의 대면형 주방과 홈카페는 꼭 갖고 싶었어요. 이 조건과 함께 편리한 동선을 고려하며 실장님과 열심히 회의하고 궁리한 결과 노력한 만큼 예쁘고 실용적인 구조가 나왔어요.
AFTER - 주방

주방과 거실을 구분해주던 슬라이딩 도어를 철거했기 때문에 주방을 분리해주는 인테리어 아이템이 필요했어요. 그래서 나온 것이 아일랜드 위 철제 우드 선반이예요. 사진 상으로는 잘 보이지 않지만 아일랜드 선반 하단부는 투명 유리를 둘렀어요. 선반에 놓는 그릇들에 먼지가 덜 타게 하려고 낸 아이디어였죠.
선반 위쪽은 덜 사용할 것 같아서 아래만 투명 유리 칸막이를 만들었답니다. 지금 맨 위칸은 덩쿨 식물을 뒀어요. 철제와 원목으로 만든 이 아일랜드 선반이 우리집 주방을 일류 레스토랑 분위기로 만드는 주역입니다.
아일랜드 싱크대 반대편에 붙박이 벤치를 제작해 다이닝 공간을 마련했어요. 양반다리로 앉아도 충분할만큼 붙박이 벤치 폭을 널찍하게 만들었죠. 싱크대와 냉장고 앞에 식탁이 있어서 식사준비 및 치울 때 편한 최고의 동선이 탄생했답니다.
또 붙박이 벤치 옆에는 서랍장을 짜서 사진에는 안나왔지만 간단한 홈카페와 간식창고로 꾸몄어요.
선반 위쪽은 덜 사용할 것 같아서 아래만 투명 유리 칸막이를 만들었답니다. 지금 맨 위칸은 덩쿨 식물을 뒀어요. 철제와 원목으로 만든 이 아일랜드 선반이 우리집 주방을 일류 레스토랑 분위기로 만드는 주역입니다.
아일랜드 싱크대 반대편에 붙박이 벤치를 제작해 다이닝 공간을 마련했어요. 양반다리로 앉아도 충분할만큼 붙박이 벤치 폭을 널찍하게 만들었죠. 싱크대와 냉장고 앞에 식탁이 있어서 식사준비 및 치울 때 편한 최고의 동선이 탄생했답니다.
또 붙박이 벤치 옆에는 서랍장을 짜서 사진에는 안나왔지만 간단한 홈카페와 간식창고로 꾸몄어요.

싱크대 안쪽 구조입니다. 냉장고-개수대-인덕션의 삼각형 동선 덕에 요리할 때 매우 편해졌어요.
사실 싱크대 구역 바닥은 타일로 하고 싶었는데 여러가지 사정으로 그냥 원목마루로 했죠. 이 부분이 공사한 후 제일 아쉬워요. 원목마루는 너무 좋은데 물 묻는게 많이 신경 쓰여서요. 그래도 예쁘니까 물떨어지기가 무섭게 부지런히 닦으며 살고 있습니다^^;
후드는 소음이 적은 것으로 골랐어요. 6개월간 써보니 디자인도 좋고 환기/공기순환 모두 가능해서 아주 만족하면서 쓰고 있어요.
상판은 흠집에 강해요. 예전 집은 베이지 상판이라 이번에 블랙으로 했는데 관리가 매우 편하네요.
사실 싱크대 구역 바닥은 타일로 하고 싶었는데 여러가지 사정으로 그냥 원목마루로 했죠. 이 부분이 공사한 후 제일 아쉬워요. 원목마루는 너무 좋은데 물 묻는게 많이 신경 쓰여서요. 그래도 예쁘니까 물떨어지기가 무섭게 부지런히 닦으며 살고 있습니다^^;
후드는 소음이 적은 것으로 골랐어요. 6개월간 써보니 디자인도 좋고 환기/공기순환 모두 가능해서 아주 만족하면서 쓰고 있어요.
상판은 흠집에 강해요. 예전 집은 베이지 상판이라 이번에 블랙으로 했는데 관리가 매우 편하네요.

아일랜드에서 바라본 거실입니다.
기존 ㄱ자 주방에서 일할 때는 벽 보며 일해서 혼자서 일한다는 느낌이 들어서 싫었는데요, 이제는 식구들을 바라보며 하니 그런 느낌이 들지 않아서 좋아요.
기존 ㄱ자 주방에서 일할 때는 벽 보며 일해서 혼자서 일한다는 느낌이 들어서 싫었는데요, 이제는 식구들을 바라보며 하니 그런 느낌이 들지 않아서 좋아요.
AFTER - 세탁실

주방에서 뒷베란다 나가는 문의 위치를 변경해서 만든 세탁실입니다.
주방의 창문이 있던 곳에 문을 내고 기존에 베란다로 나가는 문이 있던 곳을 세탁실로 만들었죠. 매우 좁은 공간이지만 동선도 편리하고 건조기까지 같이 넣을 수 있어서 개인적으로 매우 만족하는 공간입니다.
주방의 창문이 있던 곳에 문을 내고 기존에 베란다로 나가는 문이 있던 곳을 세탁실로 만들었죠. 매우 좁은 공간이지만 동선도 편리하고 건조기까지 같이 넣을 수 있어서 개인적으로 매우 만족하는 공간입니다.
BEFORE - 안방

예전에는 침대 없이 생활했어요. 또 슬라이딩 옷장 뒤에 창이 있었지만 수납을 많이 하려고 창을 막았어요. 하지만 이번에 공사하면서 막았던 창을 다시 살렸습니다.
AFTER - 안방

가벽 인테리어서 가장 걱정되는 부분이 공간이 답답해보이는 거였어요. 하지만 다시 살린 창문덕에 공간이 더 넓고 밝아졌어요.
또 가벽 높이를 천장까지 올리지 않아서 답답한 느낌이 들지 않도록 신경썼어요. 덕분에 침실 공간과 드레스룸 공간이 확실히 구분되면서도 밝고 아늑한 느낌의 침실이 만들어진 것 같아요.
사진에 보이는 가벽은 드레스룸 옷장의 뒷면인데요 화이트 도장처리하고 간접등을 제작해 아늑한 침실 분위기를 만들어요.
또, 침대 옆에 무지주 선반을 만들어서 핸드폰 충전이나 소품을 둘 수 있도록 했습니다. 침대 프레임은 동네 공방에서 제작한 거예요. 아래쪽에 슬라이딩 수납공간이 있어서 침실의 잔짐들을 수납할 수 있게 했습니다.
또 가벽 높이를 천장까지 올리지 않아서 답답한 느낌이 들지 않도록 신경썼어요. 덕분에 침실 공간과 드레스룸 공간이 확실히 구분되면서도 밝고 아늑한 느낌의 침실이 만들어진 것 같아요.
사진에 보이는 가벽은 드레스룸 옷장의 뒷면인데요 화이트 도장처리하고 간접등을 제작해 아늑한 침실 분위기를 만들어요.
또, 침대 옆에 무지주 선반을 만들어서 핸드폰 충전이나 소품을 둘 수 있도록 했습니다. 침대 프레임은 동네 공방에서 제작한 거예요. 아래쪽에 슬라이딩 수납공간이 있어서 침실의 잔짐들을 수납할 수 있게 했습니다.

가벽 뒤쪽 사진입니다. 매일 입는 옷은 오픈 행거에 걸어두고요, 집에서 입는 옷은 수납 벤치에 둡니다.
화장대는 따로 두지 않고 거울 아래 서랍에 화장품을 수납하고 있어요. 화장품을 서랍에 두면 먼지도 쌓이지 않고 깔끔해 보여서 정리정돈에 도움을 주죠.
화장대는 따로 두지 않고 거울 아래 서랍에 화장품을 수납하고 있어요. 화장품을 서랍에 두면 먼지도 쌓이지 않고 깔끔해 보여서 정리정돈에 도움을 주죠.
BEFORE - 딸방

공사 전 딸방 모습입니다. 딸아이 방이라고는 하지만 온 식구들의 책들이 다 모여있는 방이었죠. 아이의 사생활이 전혀 보호되지 않는 식구 모두의 방이었습니다. 그래서 이 방의 요구사항은 딸의 취향이 100프로 반영된 아이방을 만드는 것이었습니다.
공사를 위해 짐을 빼다 보니 책장 뒤편에서 누수가 발생하여 벽면에 곰팡이가 생겼더라고요. 누수가 더 커지기 전에 시공하게 돼서 다행이라고 생각했습니다.
공사를 위해 짐을 빼다 보니 책장 뒤편에서 누수가 발생하여 벽면에 곰팡이가 생겼더라고요. 누수가 더 커지기 전에 시공하게 돼서 다행이라고 생각했습니다.
AFTER - 딸방

집에서 유일하게 벽을 투톤으로 마감한 곳입니다. 벽면은 벽지이고 벽지 색에 맞추어 침대와 드레스룸은 도장처리 했습니다. 핑크색이 너무 튀지 않을까 염려했는데요, 막상 시공해보니 너무 예뻤어요.
침대 부스(?)는 딸의 요구사항이었고, 딸 아이의 방에 대한 희망사항을 듣고 이를 반영하여 실장님이 디자인했어요. 방 주인이 너무나 만족하고, 손님들도 이쁘다고 칭찬하는 곳입니다.
침대 부스(?)는 딸의 요구사항이었고, 딸 아이의 방에 대한 희망사항을 듣고 이를 반영하여 실장님이 디자인했어요. 방 주인이 너무나 만족하고, 손님들도 이쁘다고 칭찬하는 곳입니다.

드레스룸 거울 밑은 3단 서랍장으로 침대 부스에서는 선반이 되는 ㄹ자 구조입니다.
이건 실장님 아이디어인데 실용성을 살리면서 수납 문제도 해결하니 아주 만족스러워요. 침대 옆 계단식 수납장은 장난감이나 책 수납용도 외에도 수납장 위 다락으로 올라가는 계단 역할도 합니다.
이건 실장님 아이디어인데 실용성을 살리면서 수납 문제도 해결하니 아주 만족스러워요. 침대 옆 계단식 수납장은 장난감이나 책 수납용도 외에도 수납장 위 다락으로 올라가는 계단 역할도 합니다.

딸 아이가 악기를 배우고 있어서 전자 피아노와 보면대가 있고, 그 옆에 책장, 책상, 행거를 뒀어요. 기존에 가지고 있던 가구인데 다행히 방과 세트처럼 잘 어울려요.
BEFORE - 복층계단

옥탑방으로 가는 계단입니다. 난간을 옷걸이처럼 사용해서 어수선한 모습이죠?
AFTER - 복층계단

그냥 난간으로 하면 습관처럼 또 옷걸이가 될까 아예 흰색 철제봉으로 난간을 만들었어요. 이건 제 요구사항이었어요. 이 봉 덕에 인테리어 포인트가 생겼고, 식구들이 옷을 제자리에 두는 습관이 생겼어요. 그래서 공사 후 지금까지 깔끔하게 처음 모습 그대로 유지가 잘 되고 있네요.
계단 옆 공사하면서 만든 작은 창고에는 청소 용품을 뒀어요. 늘 보이는 곳에 청소도구가 있으니 청소를 더 자주 하는 것 같아요.
계단 옆 공사하면서 만든 작은 창고에는 청소 용품을 뒀어요. 늘 보이는 곳에 청소도구가 있으니 청소를 더 자주 하는 것 같아요.

현관에서 바라본 계단 모습이에요. 이국적이고 예쁘지 않나요?
AFTER - 거실 화장실

화장실 문제로 리모델링을 결심했는데요, 누수가 발생해서 어차피 공사하는 김에 전체적으로 공사를 하자고 결정을 했습니다.
기존 화장실은 옥색 세면대의 향연이어서 이번 화장실 컨셉은 호텔 화장실로 잡았어요. 무조건 럭셔리 하고 세련되게!
저는 작은 타일을 선호하지 않아서 대형 타일로 벽면을 마감했어요. 또 그레이 타일이 대세라고 하지만 저한테는 화장실은 베이지색 계통이 더 이뻐보여서 베이지 타일로 했어요. 샤워부스는 저의 요구사항이었죠. 베이지 타일과 톤을 맞추어 브론즈 유리로...
사진에는 잘 안나왔지만 욕조와 샤워공간이 샤워부스안에 같이 있는 독특한 구조에요. 부스를 만드니 샤워할 때 춥지 않고, 금방 따뜻해져서 좋아요. 또, 건식 라인과 습식 라인이 확실히 구별돼서 건식라인 쪽 청소하기 편한 것도 좋고요.
하지만 샤워부스 닦기라는 예상치 못한 댓가가 따르네요^^; 그래도 너무나 하고 싶었던 샤워부스여서 즐거운 마음으로 청소하고 있습니다.
기존 화장실은 옥색 세면대의 향연이어서 이번 화장실 컨셉은 호텔 화장실로 잡았어요. 무조건 럭셔리 하고 세련되게!
저는 작은 타일을 선호하지 않아서 대형 타일로 벽면을 마감했어요. 또 그레이 타일이 대세라고 하지만 저한테는 화장실은 베이지색 계통이 더 이뻐보여서 베이지 타일로 했어요. 샤워부스는 저의 요구사항이었죠. 베이지 타일과 톤을 맞추어 브론즈 유리로...
사진에는 잘 안나왔지만 욕조와 샤워공간이 샤워부스안에 같이 있는 독특한 구조에요. 부스를 만드니 샤워할 때 춥지 않고, 금방 따뜻해져서 좋아요. 또, 건식 라인과 습식 라인이 확실히 구별돼서 건식라인 쪽 청소하기 편한 것도 좋고요.
하지만 샤워부스 닦기라는 예상치 못한 댓가가 따르네요^^; 그래도 너무나 하고 싶었던 샤워부스여서 즐거운 마음으로 청소하고 있습니다.

화장실이 긴 직사각형 구조라 럭셔리의 상징인 두 대의 세면대를 뒀습니다. 그것도 탑볼로요. 직선이 가득한 곳에 원형 탑볼이 포인트입니다.
아이들이 등교 준비할 때 싸우지 않아서 좋아요^^
아이들이 등교 준비할 때 싸우지 않아서 좋아요^^
AFTER - 현관

기존 현관이 좁았기 때문에 거실 쪽으로 가벽을 설치해서 공간을 좀 넓혔어요. 그리고 철제 슬라이딩 도어에 모루 유리를 사용해 거실이 훤히 보이는 것은 막았죠. 대신 옆에 있는 아치형 칸막이를 투명 유리로 해서 포인트를 주고 답답함도 해결했어요.
신발장도 중문과 같은 디자인으로 해서 통일성을 줬어요.
신발장도 중문과 같은 디자인으로 해서 통일성을 줬어요.

중문을 열면 거실이 보여요. 이 문을 열고 들어오면 힐링이 시작돼요.
원래도 집순이였는데 공사한 후에는 그 증상이 더 심해졌어요:D 이젠 세상 어디를 가도 우리 식구들한테는 우리 집이 최고의 힐링 공간이에요^^
원래도 집순이였는데 공사한 후에는 그 증상이 더 심해졌어요:D 이젠 세상 어디를 가도 우리 식구들한테는 우리 집이 최고의 힐링 공간이에요^^
온라인 집들이를 마치며

내 취향을 온전히 반영한 집에 살아보니 공간이 사람에게 주는 행복과 편안함이 얼마나 큰지 매 순간 깨닫고 있어요. 집에 있는 시간이 늘다보니 가족간 유대감도 높아지고 요리, 청소, 식사와 같은 일상 생활 하나하나가 모두 소중하게 느껴져요^^
요새는 자칫 건조할 수 있는 공간을 싱그러운 식물들로 하나둘 채우고 있어요. 바깥 생활에서 지친 가족들 마음을 힐링시키는 최상의 안식처로 집을 꾸미고 가꾸어 보려고요.
긴 글 읽어주셔서 감사하구요, 모두들 자신이 꿈꾸는 공간에서 행복하세요!
요새는 자칫 건조할 수 있는 공간을 싱그러운 식물들로 하나둘 채우고 있어요. 바깥 생활에서 지친 가족들 마음을 힐링시키는 최상의 안식처로 집을 꾸미고 가꾸어 보려고요.
긴 글 읽어주셔서 감사하구요, 모두들 자신이 꿈꾸는 공간에서 행복하세요!
이 집을 더 자세히 구경하고 제품 정보를 알고 싶다면?