
문경새재는 소백산맥에 있는 조령鳥嶺(1,017m)을 일컬으며, 우리말로 ‘나는 새도 넘기 힘든 고개’라는 뜻이다. 조선시대 영남의 선비들이 한양으로 과거를 보러 갈 때 주로 넘던 고개이기도 하다. 당시 추풍령을 넘으면 추풍낙엽처럼 떨어지고, 죽령을 넘으면 죽죽 미끄러지고, 문경새재를 넘으면 경사를 전해 듣고[聞慶] 새처럼 비상한다고 여겼기 때문이다. 문경새재의 고장, 경북 문경시 마성면 신현리에 이야깃거리가 풍성한 주택이 있다. 17년간 시어머니와 함께 살다가 지난해 시어머니의 집 앞마당에 주택을 지어 분가分家한 71년생 동갑내기 반규현·박현미 부부와 자녀인 성실(고2), 기업(7), 이렇게 네 식구가 알콩달콩 살아가는 이야기다.
글 윤홍로 기자 | 사진 이상현 기자
취재협조 ㈜위드라움
위치 경북 문경시 마성면 신현리
지역/지구 계획관리지역, 자연취락지구
건축구조 철근콘크리트조, 경량 목구조
대지면적 232.00㎡(70.18평)
건축면적 129.26㎡(39.10평)
건폐율 55.72%
연면적 146.36㎡(44.27평)
1층 82.36㎡(24.91평)
2층 64.00㎡(19.36평)
용적률 63.09%
설계기간 3개월
공사기간 4개월
건축비용 2억 8천만 원(3.3㎡당 600만 원)
MATERIAL
외부 지붕 - 0.7 리얼징크
벽 - 고파벽돌, 스타코
데크 - 방킬라이
내부 천장 - 실크벽지(LG하우시스)
벽 - 실크벽지(LG하우시스)
바닥 - 강마루(동화자연마루)
단열재 지붕 인슐레이션 R-38
외단열 100㎜‘가’등급 단열재
내단열 인슐레이션 R-21
계단실 디딤판 - 오크집성
난간 - 평철난간
창호 이건창호 PVC 3중유리
현관문 성우스타게이트
위생기구 아메리칸 스탠다드
조명 국산 LED 매립등
주방기구 한샘가구
난방기구 경동나비엔 콘덴싱 LPG 보일러
설계 ㈜리슈건축사사무소 02-790-6404 www.richue.com/2010
시공 ㈜위드라움 1544-0565 www.withraum.com




조령에서 발원한 조령천과 영강이 남쪽에서 합류하고, 문경대로와 중부내륙고속도로가 좌우로 비켜 지나고, 경북 8경 중 제1경인 고모산성이 있는 고모산이 정면으로 멀찍이 바라보이는 문경새재의 고장 신현리. 시골의 정취가 물씬한 이곳에 모던 스타일의 복층주택과 전형적인 농촌주택이 이웃하고 있다. 농촌주택에서는 시어머니가 살고, 모던한 주택에서는 반규현·박현미 부부와 두 자녀가 살고 있다. 이들 삼대 가족이 이웃하며 살게 된 이유는 무엇일까.
“시어머니하고 17년간 살았는데 아이들이 자라면서 자신들만의 공간을 원했어요. 특히, 사촌 언니랑 한 방에서 지내던 성실이가 기숙형 고등학교에 진학하면서 주말에 집에 와서는 침대가 있는 자신만의 방에서 편하게 쉬고 싶다고 했어요. 그래서 시어머니의 집 앞마당에 우리 집을 지은 거예요.”



문경 주택은 분가라기보다는 예전에 세대 구성원이 늘어남에 따라 채를 늘려 지은 채 나눔 형태에 더 가깝다. 주택의 설계는 규현 씨가 SNS를 통해 찾아낸 고향 동창인 ㈜리슈건축사사무소 홍만식 소장이, 시공은 ㈜위드라움에서 진행했다. 부부는 신혼 이후에, 아이들은 태어나서 처음으로 자기만의 공간이 있는 주택을 짓게 되자 기대감에 잔뜩 부풀 수밖에 없었다. 가족은 저마다 바라는 공간을 A4용지에 담아 홍 소장에게 전달했다.
공통
● 전체적으로 집의 색상이 밝은 톤의 분위기(집 외부, 가구, 싱크대 모두 산뜻하고 깔끔한 밝은 분위기 선호)
● 붙박이장(거실, 안방, 성실이 방, 기업이 방)
● 방 외부에 가급적 베란다가 있어서 외부를 볼 수 있게
아빠
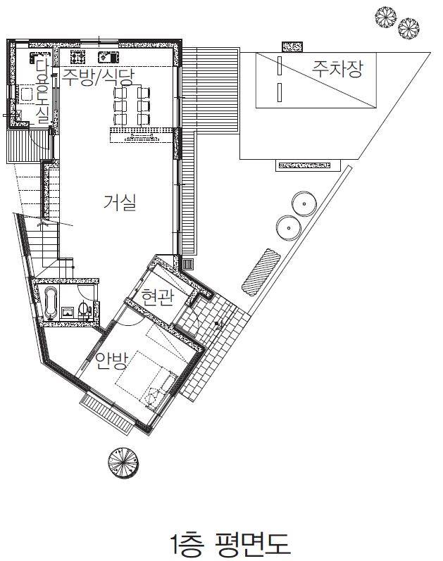
● 1층(오픈형 주방 + 거실, 욕실, 다용도실)
● 2층(안방 + 샤워장 + 화장실)
● 평수 외 사용 가능한 베란다
● 야외 마당에 주차장 외 바비큐장 활용 공간
엄마
● 거실을 회의 공간과 미니 도서관 결합
● 거실 내 폐쇄형 TV 설치(빔프로젝터 사용 공간 필요, 화상 채팅 예정)
● 깔끔한 현관
성실이▲방음 장치(댄싱 연습 가능하도록) ▲샤워장 + 화장실 ▲방 안에 침대, 책상 들어가도록 ▲평수 외 사용 가능한 베란다
기업이 ▲낮은 침대 + 책장, 공구 수납공간 ▲침대는 창가에 위치하도록(열이 많아서 창가에서 자고 있음)


‘Y’자로 난 골목길로 진입하면서 바라본 문경 주택의 대지 모양은 두 길로 갈라지는 모서리에 접한 삼각형이다. 폭 5m 전면 도로에서 주택을 바라보면 남향한 매스가 마당을 포근하게 감싼 형태다.
해가 남쪽 고모산 위로 채 오기도 전, 한 아이가 옆집에서 나오는가 싶더니 잰걸음으로 현관을 놔둔 채 넓은 툇마루에 올라 집 안으로 들어간다. 할머니 집에 놀러 갔다 오는 막내 기업이다. 기업이가 들어간 부분을 보니 처마를 길게 뽑은 외벽의 선이 마치 숫자 2를 닮았다. 필로티 공간을 활용한 툇마루는 할머니 집과 기업이네를 이어주는 공간이다. 삼면이 뚫려 있으면서 넓은 그늘이 드리우기에 여름철에는 할머니의 쉼터이자, 따듯한 계절에는 삼대 가족이 모여 식사하는 야외 식당을 겸한다.
주방/식당과 거실 사이에는 목재(구조재)로 만든 개방형 가벽이 있다. 현미 씨는 “주방에서 음식을 만들면서 가벽을 통해 아이들의 움직임을 볼 수 있기에 안심할 수 있다”고 한다. 거실은 앞마당을 스치듯이 들어온 풍부한 햇살로 밝고 따듯하다. 현미 씨는 “아이들이 맑은 햇살을 많이 받으면서 정서적으로 안정되고 긍정적으로 성장했으면 하는 바람으로 채광에 신경을 썼다”고 한다.



좌측 끝 깊숙이 배치한 안방은 천장고가 높아 면적에 비해 훨씬 넓어 보인다. 남쪽과 서쪽으로 2개의 창을 냈는데 남쪽 창에는 빛을 차단하는 암막 블라인드가 있다. 그리고 서쪽 창가에는 툇마루와 한 그루의 나무로 아담하게 꾸민 부부만의 시크릿 가든이 있다. 여타 부분은 골목을 왕래하는 사람들과 단절되지 않게 구멍이 숭숭 뚫린 큐블록으로 담을 쌓아 안팎이 통하게 했지만, 이 부분 만큼은 큐블록의 면을 이용해 외부의 시선을 차단했다.

거실 후면 외벽에 설치한 계단실이 여느 주택하고 다르다. 거실 상층 베란다를 통해 자연광을 끌어들여 분위기가 명랑하며, 하부뿐만 아니라 상부 발판에도 책과 장난감을 보관하는 수납장을 만들어 단순 계단실보다는 가구에 가깝다.




현미 씨는 “아이들이 계단을 오르내리며 책도 읽고 장난감을 갖고 놀기도 한다”면서, “우리 집 계단실은 아이들에게 도서실이자, 놀이터”라고 한다.


2층에는 수납을 겸한 오픈형 세면대와 욕실 좌우에 성실이와 기업이의 방이 있다. 천장이 박공이라 넓어 보이는 2개의 방 모두 할머니 집 쪽으로 낸 창이 있다. 방문을 열면 텐트를 치고 놀아도 될 정도로 넓은 베란다가 있는데, 복도와 계단실로 햇살을 끌어들이는 통로이기도 하다.


2층 남쪽 끝에는 가족이 북카페라 부르는 도서관이 있는데, 벽 전체를 두른 책장과 베란다가 돋보인다. 현미 씨는 “가족실을 겸하는 공간으로 아이들에게는 도서실이고 병원 관련 컨설팅을 하는 저에게는 회의실이며, 마을 어르신들에게는 사랑방”이라고 한다.



나무에 새순이 돋고 꽃이 피고 열매가 열리고 잎과 열매가 노랗게 물들어 떨어지고 눈꽃이 피고 ……. 시선이 멀리 향하는 전망 좋은 2층에서는 이렇듯 계절의 변화를 느낄 수 있을 것 같다.



*
할머니 집 앞마당에 주택을 지어 분가한 기업이네 가족은 할머니하고 17년간 쌓아온 정을 고스란히 나누는 데다 각자의 공간이 생겼기에 매우 만족스러워한다. 한편, 현미 씨는 “자칫 모던한 주택이 시골의 정취를 깨트리지 않을까 내심 걱정했는데, 외부는 마을 분위기에 어울리고 내부는 모던하고 편리한 주택이 지어졌다”고 한다. 여기에 덧붙여 “시공할 때 단열에 신경을 많이 써서 그런지 잠들기 전에 난방 온도를 22℃까지 올려놓고 보일러를 끄면, 그 온도가 이튿날 오전까지 계속 유지된다”고 한다. 아름다운 디자인의 문경 주택 속에는 아름다운 가족 이야기가 가득하다. 풍부한 햇살과 시골의 정취를 집 안에 담아낸 문경 주택에서 또 어떤 아름다운 이야기가 펼쳐질지 궁금하다.



