
동남향에 창을 집중적으로 배치한 디자인이 눈에 띄는 주택이다. 여기에 화이트 스타코플렉스와 차콜 세라믹 사이딩을 매치해 심플하고 모던하게 디자인했고, 눈썹징크 지붕으로 포인트를 주었다.
글 이수민 기자 | 사진 박창배 기자 | 취재협조 로드하우징
[HOUSE NOTE]
DATA
위치 경기 수원시 이의동
지역/지구 제1종 일반주거지역, 지구단위계획구역
건축구조 철근콘크리트조(지하) + 경량 목구조(지상)
건축규모 지하 1층, 지상 2층
대지면적 259.10㎡(78.37평)
건축면적 105.95㎡(32.05평)
건폐율 40.89 %
연면적 203.50㎡(61.56평, 지하 포함 77.37평)
지하 52.27㎡(15.81평)
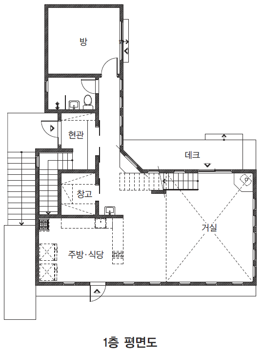
1층 105.95㎡(32.05평)
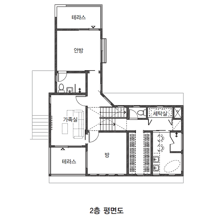
2층 97.55㎡(29.51평)
용적률 78.54%
설계기간 2018년 10월~2019년 2월
공사기간 2019년 3월~11월
설계 및 시공 로드하우징
1577-1614 www.roadhouse.kr
MATERIAL
외부마감 지붕 - 알루미늄징크
벽 - 스타코플렉스, 세라믹 사이딩
데크 - 현무암 데크
내부마감 천장 - 실크벽지
내벽 - 실크벽지
바닥 - 강마루, 타일
단열재 지붕 - 크나우프 인슐레이션(에코배트)
외단열 - 크나우프 인슐레이션(에코배트)
내단열 - 크나우프 인슐레이션(에코배트)
계단실 디딤판 - 멀바우
난간 - 유리
손스침 - 원목
창호 3중유리 독일식 시스템창호(게알란)
현관 성우스타게이트
조명 렉스조명
주방기구 한샘
위생기구 아메리칸 스탠다드, 대림바스
난방기구 가스보일러




많은 창이 액자가 되어 그림 같은 풍경을 선사하는 수원 풍경화 주택은 중년 부부와 20대 중반의 딸 그리고 두 마리의 반려견이 함께하는 공간이다. 주택의 외관은 화이트 스타코플렉스에 차콜 세라믹 사이딩으로 포인트로 줘, 고급스러움과 세련된 분위기를 연출한다. 여기에 전체적인 창들의 위치를 조절하고, 눈썹 징크 지붕을 앉혔다.
건축주는 따스한 햇살이 듬뿍 들어오는 환한 집을 바랐기에 집을 동남향으로 앉히고, 추운 계절에 햇살이 집 안 깊숙이 들어올 수 있는 창을 여러 개 냈다. 대신 북서쪽에는 창 갯수를 많이 줄였다. 이렇게 만들어진 동남향 창들은 햇살을 고려해 만들었지만, 창 너머에 그림 같은 풍경을 막힘없이 누릴 수 있어 수원 주택만의 매력 포인트가 됐다.




건축주는 운영하는 사업체를 용인으로 이전 계획하며, 2008년도에 전원주택 살이를 시작했다. 용인 전원주택에서 살다 만족스러운 면이 많아 지금의 집을 계획하게 됐다. 오래 전부터 가지고 있는 지병이 있어 가까이에 병원이 있는 부지를 우선적으로 꼽았다. 그리고 도심의 문화생활을 누릴 수 있고 생활 편의가 좋은 곳을 찾아다녔다.
그러다 광교역까지 도보로 15분 정도 소요되고, 근처에 서수지 IC가 있어 자차로 서울까지 15분 정도면 닿는 지금의 부지를 만났다. 집 주변에 등산로와 산책로가 있다는 점도 마음에 들어 2018년도에 93평(공유지분 15평 포함) 정도를 8억2천만 원에 매입했다.





주택은 하이브리드 구조로 지하는 철근콘크리트조, 1층과 2층은 경량 목구조로 지어졌다. 지하에 주차장과 오락실을 배치하기 위해서다. 생동감이 느껴지는 색상과 디자인의 가구를 선호하기에 내부 인테리어는 전체적으로 화이트에 심플하게 완성했다.
먼저 현관은 옐로와 그린을 매치해 위트 있는 공간으로 표현했다. 거실은 천장을 50㎝ 올려 개방감을 더 상승시켰고, 침실은 공용공간과 차별화될 수 있도록 부분 포인트 벽지로 마감했다. 주방은 청록색 아일랜드 조리대와 하부장으로 청량감을 상승시켰으며, 요리를 즐기는 아내를 위해 11자형 동선으로 디자인했다.
계단실은 멀바우 계단 재와 유리 난간을 조합해 1층의 인테리어와 연결되며, 2층의 색다른 분위기는 해치지 않도록 완성했다. 주택에는 두 개의 마당이 있는데, 이는 반려견 아지와 아짱을 위해 건축주 가족이 특별히 신경 쓴 공간이다.







집짓기 준비는 1년 정도 소요됐다. 2019년 2월에 인허가를 받고, 그해 12월 6일에 입주했다. 전원주택 생활에 대해 평을 요청하니, 별 다섯 개 ‘대만족’이라고 한다. 실내에서 화초를 키우고, 마당에서 정원을 가꾸느라 집밖으로 나갈 일이 없다며, ‘요즘 같은 팬데믹 시대에 최고의 집’이라 자평한다. 외장재로 스타코플렉스와 세라믹 사이딩을 선택한 이유를 물었다.
“스타코플렉스와 세라믹 사이딩의 경우, 다른 외장재에 비해 외관을 심플하게 연출할 수 있다는 점이 마음에 들었습니다. 그중 스타코플렉스는 건축비 절감도 할 수 있어 만족스러웠고요. 다만, 시간이 지나면 눈물자국이 생길 수 있다는 것이 아쉽지만요.”




마지막으로, 시공사 선택 기준을 물었다.
“화려한 디자인보다 단정하고 기본에 충실한 타입을 선호합니다. 그런데 로드하우징의 경우 기본 디자인이 정직하고 소박하다는 느낌을 받았습니다. 물론 디자인의 종류는 다양하게 보유하고 있지만요. 여기에 A/S가 잘 된다는 호평들이 많아 선택하게 됐고, 지금 2년째 살고 있는데 정말 잘한 선택이라는 생각을 하고 있습니다.”





