정서가 메마른 딱딱한 공간, 숨이 탁탁 막히는 갑갑한 공간, 개성이 없는 획일적인 공간… 이 모두 아파트를 일컫는 말이다. 동해시 천곡동 건축주 부부가 지난해 9월 창살 없는 감옥인 아파트에서 탈출해 흙 향기 소나무 향기 폴폴 날리는 열린 전원에 단독주택을 지은 이유이다.
야트막한 산마루 가까이에 그것도 개량형 한식韓式 목구조로 위풍당당하게 앉힌 주택이라 인근 7번 국도(동해대로)에서 도드라져 보인다.
글·사진 윤홍로 기자

위치 강원 동해시 천곡동
건축형태 복층 목구조 황토집
용도지역 제2종 일반주거지역
대지면적 1155.00㎡(350.00평)
건축면적 141.54㎡(44.71평)
연면적 181.34㎡(54.95평)
1층 141.54㎡(44.71평),
2층 39.80㎡(12.6평)
외장재 치장 벽돌 줄눈 마감
지붕재 점토 기와
내장재 게르마늄 황토벽돌, 한지 벽지, 루버
바닥재 강화마루, 한지 장판(구들방)
창호재 시스템 창호(유럽식)
난방형태 기름보일러, 구들(안방), 보조난방 벽난로
설계 건축사사무소 정우
시공 게르마늄황토집 031-798-3544

건축주 부부는 3년 전 전원주택을 짓고자 동해시 천곡동 터를 마음에 담아둔다. 편의시설이 밀집한 도심에서 도보로 10분 거리이고, 이름만큼이나 푸른 초록봉이 한눈에 들어오고, 아름드리 소나무 숲과 나란히 한 동남향 터라 전원주택지로 손색이 없기 때문이다. 하지만 필지 면적이 2343.0㎡(710.0평)로 덩어리가 너무 커서 매입을 포기한다.
그 후 매일같이 동해시에서 전원주택지로 이름난 망상동, 추암동, 북평동 쪽으로 터를 찾아다닌다. 동해시는 바닷가에 연한 지역이기에 언뜻 바다가 손에 잡힐 듯한 터를 생각할 법한데 건축주 부부의 생각은 달랐다. 조망이야 나무랄 데 없겠지만, 바닷바람에 가구들이 부식될 수 있다는 우려에서다.

건축주 부부는 주택이 서너 채 자리한 망상에 터를 잡을까 했으나 초등학교 6학년인 아들의 학원 문제가 맘에 걸려 포기한다. 결국 매입한 것이 처음 마음에 담아둔 천곡동 터이다.
“먼저 살던 21층 아파트에서 이 땅이 내려다보였기에 그동안 여기저기 발품을 팔면서도 늘 아쉬워했는데, 다행스럽게도 다른 사람의 손을 거쳐 분할돼 매물로 나온 1155.0㎡(350.0평) 땅을 사들인 거예요. 3년 전에 비해 3.3㎡(평) 당 20만 원 정도 더 주고 샀지만, 생활 편의시설과 주변 경관, 교육 여건 등 여러 면에서 나무랄 데가 없고 무엇보다 터가 마음에 폭 안겼기 때문이죠.”

천곡동 주택이 들어선 터는 동서로 긴 장방형이고 남북으로 경사를 이루며 동쪽은 마을 길에 서쪽은 소나무 숲에 접한다. 건축주 부부는 직영 공사로 2년 남짓 걸려 대지를 조성한다. 터를 2단으로 나눠 석축을 쌓고 성토한 다음 지반을 다지고자 1년간 재운 것이다.
터를 높낮이 차가 심한 2단으로 조성한 까닭은 상단엔 본채를 짓고 하단엔 별채로 게스트하우스를 앉히기 위해서이다. 본채와 별채를 함께 지을 생각이었으나, 예산을 고려해 먼저 본채를 마을 길에서 간섭을 피하고 채광과 조망 여건이 좋은 상단 좌측 소나무 숲 가까이 배치하기로 한다.

건강성 주거 공간을 염두에 둔 건축주 부부는 건축 형태를 본지本誌를 통해 접한 게르마늄 황토집으로 정한다. 게르마늄으로 만든 팔찌, 목걸이, 도자기 등 다양한 제품이 시중에 나와 있듯이 ‘게르마늄은 인체 세포를 활성화하고 피를 맑게 해준다’고 한다. 건축주 부부가 게르마늄에 마음이 끌린 이유이다.

부부는 시공사 최을용 대표와 통화한 후 대구 주택을 방문한다. 바로 본지에서 2012년에 ‘사람을 부르는 집_대구 165.0㎡(50.0평) 복층 목구조 황토집’으로 소개한 주택이다. 부부는 당시 입주 전이라 가구가 없는 데도 집 안이 썰렁하지 않고 쾌적하다는 느낌을 받았으나, 여느 건축 형태에 비해 건축비가 다소 비싼 편이라 망설인다.

그 후 대지 조성공사를 마친 터가 자리를 잡자 부부는 다시 시공사에 전화해 최 대표의 안내로 대구, 악양, 구례, 하동 등에 지은 주택을 둘러본 후 생애 한 번 짓는 집이니 만큼 무리하더라도 건강에 유익한 게르마늄 황토집을 짓자고 결심한다.

“가족 모두 잔병치레가 없다, 집 안 공기가 쾌적하다, 잠이 보약이라는데 깊은 잠을 잔다, 얼굴에 화색和色이 감돌고 금실이 좋아졌다… 게르마늄 황토집을 찾았을 때 그곳에 사는 건축주들의 칭찬이 자자했어요. 그래서 처음 생각한 대로 지난해 9월 못 한 개 쓰지 않고 사개맞춤으로 가구架構를 짠 목구조 게르마늄 황토집을 지은 거예요. 6개월 남짓 살면서 예전에 만난 게르마늄 황토집 건축주들의 말을 실감하고 있어요.”

천곡동 주택은 치장 벽돌과 목재 사이딩을 두른 외벽 선, 점토기와를 얹은 박공지붕 선, 여기에 포치형 현관과 아궁이가 더해져 보는 재미가 쏠쏠하다. 이것은 간섭과 조망, 채광, 동선 등 내부 공간의 기능성을 한껏 끌어올린다.



1층은 면적이 141.54㎡(44.71평)로 가운데 거실과 주방/식당을 기준으로 우측에 파우더룸과 드레스룸이 딸린 안방(구들방)을, 좌측에 공용 화장실을 사이에 두고 두 개의 방을 배치한 형태이다.
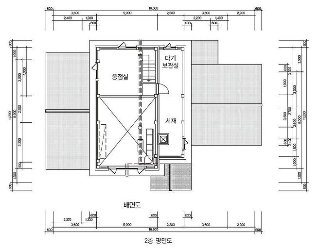
2층은 면적이 39.80㎡(12.6평)로 주방/식당 위에 20.00㎡(6.6평) 응접실이, 현관과 다용도실 위에 19.80㎡(6.0평) 서재 겸 다기茶器 보관실이 자리한다.

건축주 부부는 1층에선 실 간 거리를 확보한 좌측 두 개의 방, 전실을 이용해 주방/식당에서 시선을 차폐한 공용 화장실, 그리고 불을 한 번 때면 그 온기가 이틀 이상 가는 구들을 놓은 안방을 맘에 들어 한다. 주로 차를 마시거나 책을 읽는 2층 다실에 앉으면 시선이 전면으론 커튼월 구조의 거실 창으로, 좌측으론 틸트&턴 시스템 창호로 이어진다. 특히 가까이 아름드리 소나무 숲, 그리고 멀리 동해시의 안산案山인 초록봉을 담아낸 창호는 그 자체가 한 폭의 그림이다.

천곡동 주택은 건강성 주거답게 실내를 게르마늄 황토벽돌과 구조용 목재, 천연석, 한지 등으로 장식했다. 노출된 기둥과 도리, 보, 인방 그리고 오픈 구조인 거실 오량 천장에서 2층 응접실 오량 천장까지 이어지는 상량문이 적힌 육중한 원형 종도리가 눈길을 끈다.
또한, 각 실의 고가 높다 보니 밋밋함을 없애고자 우측 안방은 삼량가 박공천장으로, 좌측 두 개의 방은 평천장에 원목 매립형 등 박스로 꾸민 점도 특이하다.

건축주 부부가 게르마늄 황토집을 짓고 살면서 무엇보다 맘에 들어 하는 것이 초등학교 6학년인 아들의 한결 더 밝아진 모습이다. 아파트에 살 때와 달리 집으로 친구들을 자주 데려와 2층 아지트 역할을 하는 서재에서 내려올 생각을 않는다. 한편 퇴근하면 리모컨만 만지작거리던 남편은 장작을 패서 벽난로와 안방 아궁이에 불을 때느라 군살이 빠졌다고 말한다.
다도를 즐기는 아내는 응접실에서 한가로이 창밖을 내다볼 때면 이런 게 사람 사는 맛이구나 하는 생각이 든다고 말한다. 흔히 아파트를 머무는 집이라 하고, 단독(전원) 주택을 살 집이라고 한다. 밝고 건강한 기운이 흐르는 천곡동 주택을 보더라도 무엇이 더 화목한 주거 공간인지는 자명하다.



