· 오늘의집 @마이니나 님의 집들이입니다
· 인테리어 제보는 인스타그램 @todayhouse
· 인테리어 제보는 인스타그램 @todayhouse
"새로 고칠 저희 집의 컨셉은 아이가 있어도 깔끔하게 유지 할수 있는 인테리어를 목표로 무조건 화이트. 가능하면 모두 화이트로"

안녕하세요. 저는 결혼과 동시에 사업을 시작했어요. 올해는 사업 운영 및 결혼 10년 차가 되는 해이고, 개구쟁이 5살 남자아이의 엄마로 살고 있습니다.
저희 부부는 이사를 한 번도 하지 않고 10년째 쭉 같은 집에서 살아왔습니다. 1999년도에 지어진 아파트인데, 2009년 연말에 처음 이 집을 보고 주위 환경이 너무 편리하고 좋아서 바로 계약을 했죠. 당시 도배와 방문 페인팅, 주방 및 화장실 리모델링 등 부분 인테리어만 조금 하고 들어왔어요.
그리고 그 무렵에 바로 일을 시작했는데 아침 일찍 출근해서 새벽에 집에 들어올 만큼 너무 바빠서, 저나 남편에게 집은 잠만 자는 곳이나 마찬가지였어요. 집에서 머무는 시간이 굉장히 적기에 꾸미면서 사는 일에 필요성을 크게 느끼지 못하고 지냈죠. 그런데 2016년도에 아이가 태어나고 모든 것이 바뀌었어요.
둘만 있을 때와 세 명이 된 삶은 너무나 다른 것...! 이 집의 단점이 슬슬 눈에 들어오기 시작했죠. 이전까지는 전혀 거슬리지 않았던 부분들이 아이와 같이 살다 보니 정말 크게 와닿더라고요. 마침 10년이 거의 다 되어 가는 인테리어가 유행도 지나고, 살림들이 점점 낡고 고장 나기 시작했고요. 벽지 자체도 색이 바래고, 싱크대도 색이 변하고 문짝도 떨어지고 누수 문제까지 있었습니다. 아이가 돌 무렵에는 벽지에 낙서하거나 벽지를 뜯기도 했답니다.
나이 들어가는 집을 보니 살림도 재미 없어지고 집에 대한 애정도 점점 떨어져서 리모델링으로 뭔가 우리 가족의 삶에 변화를 주고 싶었어요. 이젠 아이가 유치원 갈 나이가 된 지라 시도를 해도 괜찮을 것 같아서, 과감히 살고 있는 집을 리모델링하기로 결정했습니다.
평수를 넓혀 이사하거나 동시에 리모델링을 하기에는 예산이 부족하고, 또 지금 살고 있는 동네를 떠날 생각이 없었거든요. 보관 이사를 맡기고 친정살이를 하면서 지금 집을 그대로 손보게 되었어요.
저희 부부는 이사를 한 번도 하지 않고 10년째 쭉 같은 집에서 살아왔습니다. 1999년도에 지어진 아파트인데, 2009년 연말에 처음 이 집을 보고 주위 환경이 너무 편리하고 좋아서 바로 계약을 했죠. 당시 도배와 방문 페인팅, 주방 및 화장실 리모델링 등 부분 인테리어만 조금 하고 들어왔어요.
그리고 그 무렵에 바로 일을 시작했는데 아침 일찍 출근해서 새벽에 집에 들어올 만큼 너무 바빠서, 저나 남편에게 집은 잠만 자는 곳이나 마찬가지였어요. 집에서 머무는 시간이 굉장히 적기에 꾸미면서 사는 일에 필요성을 크게 느끼지 못하고 지냈죠. 그런데 2016년도에 아이가 태어나고 모든 것이 바뀌었어요.
둘만 있을 때와 세 명이 된 삶은 너무나 다른 것...! 이 집의 단점이 슬슬 눈에 들어오기 시작했죠. 이전까지는 전혀 거슬리지 않았던 부분들이 아이와 같이 살다 보니 정말 크게 와닿더라고요. 마침 10년이 거의 다 되어 가는 인테리어가 유행도 지나고, 살림들이 점점 낡고 고장 나기 시작했고요. 벽지 자체도 색이 바래고, 싱크대도 색이 변하고 문짝도 떨어지고 누수 문제까지 있었습니다. 아이가 돌 무렵에는 벽지에 낙서하거나 벽지를 뜯기도 했답니다.
나이 들어가는 집을 보니 살림도 재미 없어지고 집에 대한 애정도 점점 떨어져서 리모델링으로 뭔가 우리 가족의 삶에 변화를 주고 싶었어요. 이젠 아이가 유치원 갈 나이가 된 지라 시도를 해도 괜찮을 것 같아서, 과감히 살고 있는 집을 리모델링하기로 결정했습니다.
평수를 넓혀 이사하거나 동시에 리모델링을 하기에는 예산이 부족하고, 또 지금 살고 있는 동네를 떠날 생각이 없었거든요. 보관 이사를 맡기고 친정살이를 하면서 지금 집을 그대로 손보게 되었어요.
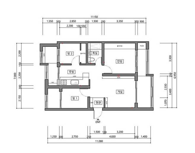
도면

저희 집은 현관에서 바로 욕실이 보이는 흔한 구조의 24평 아파트입니다. 확장이 되어 있지 않았고 거실 베란다와 현관 기준 왼쪽 방, 주방에서 세탁실로 가는 길까지 세 군데에 베란다가 있었어요.
이런 구조의 아파트에 사시는 분들은 공감하시겠지만 거실 베란다가 쓸데없이 넓고 방에 붙은 작은 베란다는 난방이 당연히 안 되고 활용도가 낮아서 의도치 않게 창고로 사용하는 경우가 많은 것 같더라고요. 저희 집 역시 마찬가지로 베란다 자체를 크게 활용을 하지 못했기에 이번에는 꼭 확장을 하고 싶었습니다.
그리고 오래된 아파트다 보니 단열과 누수 문제가 있었는데 집 자체가 많이 추운 편이었고 샷시 사이로 바람이 새기도 했죠. 욕실 쪽은 윗집의 누수가 있어서 이 부분도 전반적으로 손봐야 했고요.
리모델링을 진행함에 있어서 저희 집은 집 전체의 창호(샷시)와 방문 교체 그리고 세 군데의 베란다 확장(확장하면서 보일러 배관 연결 필수), 욕실과 주방 수리 등 정말 뼈대만 남기고 모두 공사해야 되는 상황이라, 제가 하나하나 다 알아보고 반셀프로 진행하기에는 시간적 여유가 없어 믿을 수 있는 업체를 찾게 되었습니다.
10년 전, 입주 당시에 부분 인테리어를 맡겼을 때는 제가 현장을 거의 확인하지 못했고 시공해주는 분과 전혀 커뮤니케이션이 안 된 상태로 진행을 하여 결과물이 마음에 들지 않았던 터라, 이번에는 최소 2-3일에 한 번은 꼭 현장에 가서 업체 실장님과 진행 체크를 하고 미팅도 자주 했답니다.
새로 고칠 저희 집의 컨셉은 아이가 있어도 깔끔하게 유지 할수 있는 인테리어를 목표로 무조건 화이트. 가능하면 모두 화이트로. 자재를 고를 때 충분히 하얗지 않다고 얼마나 실장님을 괴롭혔는지 모르겠네요. 화이트 컬러를 베이스로 택한 이유는 어떤 가구나 소품을 올려도 다 잘 어울리기 때문이에요.
이런 구조의 아파트에 사시는 분들은 공감하시겠지만 거실 베란다가 쓸데없이 넓고 방에 붙은 작은 베란다는 난방이 당연히 안 되고 활용도가 낮아서 의도치 않게 창고로 사용하는 경우가 많은 것 같더라고요. 저희 집 역시 마찬가지로 베란다 자체를 크게 활용을 하지 못했기에 이번에는 꼭 확장을 하고 싶었습니다.
그리고 오래된 아파트다 보니 단열과 누수 문제가 있었는데 집 자체가 많이 추운 편이었고 샷시 사이로 바람이 새기도 했죠. 욕실 쪽은 윗집의 누수가 있어서 이 부분도 전반적으로 손봐야 했고요.
리모델링을 진행함에 있어서 저희 집은 집 전체의 창호(샷시)와 방문 교체 그리고 세 군데의 베란다 확장(확장하면서 보일러 배관 연결 필수), 욕실과 주방 수리 등 정말 뼈대만 남기고 모두 공사해야 되는 상황이라, 제가 하나하나 다 알아보고 반셀프로 진행하기에는 시간적 여유가 없어 믿을 수 있는 업체를 찾게 되었습니다.
10년 전, 입주 당시에 부분 인테리어를 맡겼을 때는 제가 현장을 거의 확인하지 못했고 시공해주는 분과 전혀 커뮤니케이션이 안 된 상태로 진행을 하여 결과물이 마음에 들지 않았던 터라, 이번에는 최소 2-3일에 한 번은 꼭 현장에 가서 업체 실장님과 진행 체크를 하고 미팅도 자주 했답니다.
새로 고칠 저희 집의 컨셉은 아이가 있어도 깔끔하게 유지 할수 있는 인테리어를 목표로 무조건 화이트. 가능하면 모두 화이트로. 자재를 고를 때 충분히 하얗지 않다고 얼마나 실장님을 괴롭혔는지 모르겠네요. 화이트 컬러를 베이스로 택한 이유는 어떤 가구나 소품을 올려도 다 잘 어울리기 때문이에요.
거실


작은 집이라 거실이 큰 편이 아니고 베란다가 넓게 나와서 확장하는 것이 필수였어요. 하지만 거실 샷시 양쪽으로 내력벽이 있어 그 부분은 철거를 하지 못한다고 하셔서 고민이 많았습니다.

저 네모나고 답답하게 튀어나온 벽을 어떻게 활용해야 되나 고민을 많이 했는데 실장님이 아치형 벽을 추천해주셨어요. 요즘 트렌드이긴 하지만 과연 그게 우리 집에 어울릴까 싶어서 고민을 하다가 믿고 진행해보기로 했습니다.

만들어지는 과정을 보니 점점 예쁘게 변하는 것 같아서 기대를 많이 했죠.

비포 애프터가 너무 확실하지 않나요? 아치형으로 안 했으면 정말 후회할 뻔했네요.
이전에는 천장도 평평하지 않았고 거실등이 안으로 쑥 들어간 형태로 달려 있었는데 그 부분을 일자로 고르게 해주고 예전부터 갖고 싶었던 실링팬을 달았습니다. (실링팬을 달 때는 그냥 천장에 달면 안 되고 꼭 보강목 작업을 해주어야 한다고 해요.)
그리고 저희는 거실에 메인등을 없애고 LED 매립등을 설치했는데 이전보다 밝고 천장이 깔끔해져서 좋아요.
이전에는 천장도 평평하지 않았고 거실등이 안으로 쑥 들어간 형태로 달려 있었는데 그 부분을 일자로 고르게 해주고 예전부터 갖고 싶었던 실링팬을 달았습니다. (실링팬을 달 때는 그냥 천장에 달면 안 되고 꼭 보강목 작업을 해주어야 한다고 해요.)
그리고 저희는 거실에 메인등을 없애고 LED 매립등을 설치했는데 이전보다 밝고 천장이 깔끔해져서 좋아요.

그리고 이번에 정말 과감하게 진행한 것이 거실의 시스템 창호인데요. 보통은 신축 아파트나 주상복합건물에 많이 설치하는 형태의 창호지만 실장님과 상의 끝에 한 번 모험을 해보자 했어요. 베란다 쪽 창호의 철제 난간을 없애고 시스템 창호를 넣었죠. 물론, 공사 전에 아파트 관리 사무실 및 구청에 문의해서 시스템 창호는 베란다 철제 난간이 없어도 되는 부분인지 다 확인하고 진행했죠.
사실 집이 저층이라 뷰가 좋지 않아 큰 의미가 없을 수 있지만 답답해 보이는 난간이 사라지니 개방감이 느껴져서 정말 만족스러워요. 환기 걱정을 조금 했지만 현재까지는 무리 없이 잘 지내고 있습니다. 어차피 안방 쪽 베란다는 시스템 창호가 아니고 일반 베란다이기 때문에 그쪽 문을 열어서 환기를 해도 되고요. 예전에 썼던 오래된 샷시보다 방음과 단열이 잘 되는 건 두 말할 것도 없네요!
사실 집이 저층이라 뷰가 좋지 않아 큰 의미가 없을 수 있지만 답답해 보이는 난간이 사라지니 개방감이 느껴져서 정말 만족스러워요. 환기 걱정을 조금 했지만 현재까지는 무리 없이 잘 지내고 있습니다. 어차피 안방 쪽 베란다는 시스템 창호가 아니고 일반 베란다이기 때문에 그쪽 문을 열어서 환기를 해도 되고요. 예전에 썼던 오래된 샷시보다 방음과 단열이 잘 되는 건 두 말할 것도 없네요!

계속 눈여겨보던 커튼을 달고 분위기가 좋아졌어요.
다들 바닥재가 타일인 줄 아시던데 장판이에요. 우드 느낌도 좋아하지만 오랜 시간 어두운 우드 컬러 장판으로 지내왔기에 바닥은 꼭 심플하고 밝은 톤으로 하고 싶었어요. 그리고 저희 집은 바닥이 어두우니 전체적으로 집이 더 어두워지는 것 같더라고요. 처음에는 거실만 포쉐린 타일로 진행하려고 했지만 아직은 아이가 어려서 다치거나 타일이 깨질 것 같은 불안감이 있었어요. 그리고 제가 중학교 때 타일 바닥인 아파트에 살았는데 여름에는 시원하지만 겨울에 보일러 난방을 하지 않으면 바닥이 굉장히 차갑던 기억이 났죠.
고민하던 중 새로 나왔다는 엘지 엑스컴포트 장판을 실장님이 추천해주셔서 알게 되었고 기존 장판보다 훨씬 두꺼운 5T의 두께감과 타일을 빼닮은 컬러감에 반해 집 바닥 전체를 시공했습니다. 은은하고 옅은 그레이 컬러에 타일 같은 정사각 패턴이라 마음에 쏙 들어요.
다들 바닥재가 타일인 줄 아시던데 장판이에요. 우드 느낌도 좋아하지만 오랜 시간 어두운 우드 컬러 장판으로 지내왔기에 바닥은 꼭 심플하고 밝은 톤으로 하고 싶었어요. 그리고 저희 집은 바닥이 어두우니 전체적으로 집이 더 어두워지는 것 같더라고요. 처음에는 거실만 포쉐린 타일로 진행하려고 했지만 아직은 아이가 어려서 다치거나 타일이 깨질 것 같은 불안감이 있었어요. 그리고 제가 중학교 때 타일 바닥인 아파트에 살았는데 여름에는 시원하지만 겨울에 보일러 난방을 하지 않으면 바닥이 굉장히 차갑던 기억이 났죠.
고민하던 중 새로 나왔다는 엘지 엑스컴포트 장판을 실장님이 추천해주셔서 알게 되었고 기존 장판보다 훨씬 두꺼운 5T의 두께감과 타일을 빼닮은 컬러감에 반해 집 바닥 전체를 시공했습니다. 은은하고 옅은 그레이 컬러에 타일 같은 정사각 패턴이라 마음에 쏙 들어요.

리모델링 전에 구입한 세리프 티브이인데 사실 우리 식구들은 티브이를 거의 안 보는 편이라 장식용에 가까워요. 그래도 가전 자체가 인테리어에 녹아든 것 같아서 좋습니다. 나중에 빔 프로젝터를 구입할 계획이라서 벽은 깨끗한 상태로 뒀답니다.

사이드 테이블은 실장님이 구해주신 빈티지 제품이에요. 거실 한쪽에 오브제나 책을 올려 두는 네모난 전시 선반도 실장님이 제작해주셨어요.


소파는 이전에 사용하던건 도련님께 드렸고 그 자리에 층간 소음 방지를 위한 놀이매트를 깔고 지냈었죠. 그런데 그렇게 생활하다 보니 불편해서 집에 소파가 다시 있었으면 좋겠더라고요,
꼭 갖고 싶었던 소파가 있었는데 소파라는 게 저 혼자 좋아서 사는 게 아니니까 남편의 의견도 중요하게 생각했어요. 정말 원했던 이 소파는 이번 리모델링을 계기로 남편이 적극적으로 권장해줘서 기쁜 마음으로 구매했죠. 모듈형이라 몇 가지 모양으로 변형해서 사용이 가능하니 단조롭지 않아 좋아요.
2인용으로 만들 수도 있고 보통의 소파처럼 사용할 수도 있어서 정말 만족스럽습니다.
꼭 갖고 싶었던 소파가 있었는데 소파라는 게 저 혼자 좋아서 사는 게 아니니까 남편의 의견도 중요하게 생각했어요. 정말 원했던 이 소파는 이번 리모델링을 계기로 남편이 적극적으로 권장해줘서 기쁜 마음으로 구매했죠. 모듈형이라 몇 가지 모양으로 변형해서 사용이 가능하니 단조롭지 않아 좋아요.
2인용으로 만들 수도 있고 보통의 소파처럼 사용할 수도 있어서 정말 만족스럽습니다.
현관 및 중문

기존에는 중문 없이 그냥 살았는데 시간이 지나니 중문의 필요성을 정말 뼈저리게 느꼈어요. 중문도 아닌 어정쩡한 가벽을 10년 전에 세워서 달았는데 폭이 좁아서 전혀 활용을 하지 못하는 상황이었죠.
아이가 꼬꼬마일 때 보행기를 타고 현관으로 나가기도 하고 맨발로 대문까지 가고... 그리고 제일 중요한 건 중문이 없으니 일단 집이 추워요. 문 열고 닫을 때마다 바람이 숭숭 들어오는 건 물론이고, 집 구조상 다른 사람이 집에 왔을 때 여과 없이 집 전체가 바로 한눈에 보이는 것도 마음에 걸렸죠.
그래서 이번에 중문을 넣기로 하고 디자인을 꽤 고민했습니다. 3단 슬라이딩이 제일 콤팩트하고 잘 맞을 것 같은데 아무래도 마음에 들지 않아서 이것저것 구상을 많이 했어요. 특히, 손님이 급작스럽게 집에 오거나 택배를 받을 때 대문에서 집 바닥 전체가 다 보이지 않았으면 했고 흔하지 않은 디자인의 중문이었으면 좋겠더라고요.
카페 같은 느낌이 나는 문이 어울리지 않을까 싶어 이것저것 그림을 그려서 실장님께 보여드렸고 그렇게 딱 제가 원한 중문이 만들어졌습니다.
아이가 꼬꼬마일 때 보행기를 타고 현관으로 나가기도 하고 맨발로 대문까지 가고... 그리고 제일 중요한 건 중문이 없으니 일단 집이 추워요. 문 열고 닫을 때마다 바람이 숭숭 들어오는 건 물론이고, 집 구조상 다른 사람이 집에 왔을 때 여과 없이 집 전체가 바로 한눈에 보이는 것도 마음에 걸렸죠.
그래서 이번에 중문을 넣기로 하고 디자인을 꽤 고민했습니다. 3단 슬라이딩이 제일 콤팩트하고 잘 맞을 것 같은데 아무래도 마음에 들지 않아서 이것저것 구상을 많이 했어요. 특히, 손님이 급작스럽게 집에 오거나 택배를 받을 때 대문에서 집 바닥 전체가 다 보이지 않았으면 했고 흔하지 않은 디자인의 중문이었으면 좋겠더라고요.
카페 같은 느낌이 나는 문이 어울리지 않을까 싶어 이것저것 그림을 그려서 실장님께 보여드렸고 그렇게 딱 제가 원한 중문이 만들어졌습니다.


수정에 수정을 거쳐 완성된 중문입니다. 다 막히면 답답해 보일 듯해서 파티션의 상부는 유리로, 문 자체는 묵직한 스틸문으로 넣었어요. 중문의 유리는 혹시나 유리가 이탈되는 상황이 생길까봐 문틀 안에 끼워 작업했답니다. 아이가 아주 어렸다면 이 디자인을 하지 않았겠지만 지금 어느 정도 커서 괜찮을 것 같았어요.
중문이 있고 없고의 차이가 이렇게 큰 걸 처음 알았는데요. 확실히 슬라이딩 중문보다는 단열이 덜 되는듯한 느낌이지만 그래도 예전보다는 훨씬 더 따뜻하고 방풍도 잘 되는 것 같습니다.
바닥이 지저분해도 바깥에서는 보이지 않기 때문에 중문을 기준으로 집과 밖의 경계가 딱 나누어지는 것 같아서 마음에 들어요.
중문 옆에는 실장님이 골라주신 볼 조명을 달아서 포인트를 주었습니다.
중문이 있고 없고의 차이가 이렇게 큰 걸 처음 알았는데요. 확실히 슬라이딩 중문보다는 단열이 덜 되는듯한 느낌이지만 그래도 예전보다는 훨씬 더 따뜻하고 방풍도 잘 되는 것 같습니다.
바닥이 지저분해도 바깥에서는 보이지 않기 때문에 중문을 기준으로 집과 밖의 경계가 딱 나누어지는 것 같아서 마음에 들어요.
중문 옆에는 실장님이 골라주신 볼 조명을 달아서 포인트를 주었습니다.

바닥은 연한 베이지 컬러의 포쉐린 타일을 깔았어요. 현관 타일을 큰 걸로 하니 줄눈 오염이 덜 되어서 좋네요.
오른쪽에는 간단히 물품을 수납할수 있는 벤치 겸용 수납장을 넣었습니다.
신발장은 깔끔하게 문 두 짝으로 만들어 한쪽에 전신거울을 달고 아래쪽에 간접조명을 넣었어요. 현관문도 기존의 난해한 무늬 시트에서 화이트 시트지로 교체했고요. (처음 인테리어할 때 대체 왜 그런 무늬로 붙여주셨는지 아직도 미스터리)
오른쪽에는 간단히 물품을 수납할수 있는 벤치 겸용 수납장을 넣었습니다.
신발장은 깔끔하게 문 두 짝으로 만들어 한쪽에 전신거울을 달고 아래쪽에 간접조명을 넣었어요. 현관문도 기존의 난해한 무늬 시트에서 화이트 시트지로 교체했고요. (처음 인테리어할 때 대체 왜 그런 무늬로 붙여주셨는지 아직도 미스터리)
주방

예전 주방은 지금 생각해도 총체적 난국이었어요. 주방과 거실이 일자로 이어지는 구조가 아닌 살짝 꺾인 구조라서 좁기도 굉장히 좁고, 거실을 향해서 알 수 없는 거울 벽까지 가로막고 있고 양문형 냉장고를 넓게 둘 공간도 없었죠. 그래서 이 좁은 주방에 가스레인지 뒤로 냉장고를 두고 사용했었네요.

저 거울 뒤의 벽을 꼭 트고 싶었답니다. 벽이 있으니 더 좁고 답답해 보이는 주방이었어요.
같은 싱크대를 10년 동안 사용해서 색도 누래지고 알고 보니 타일도 10년 전에 덧방 시공을 해서 불룩하게 튀어나왔더라고요. 그 당시 인테리어해주시는 분이 타일에 대한 설명 없이 그냥 다 주방과 화장실 모두 덧방으로 처리를 하셨어요. (물론 타일도 제가 고른 게 아니고 후드도 제가 고른 게 아니고...)
같은 싱크대를 10년 동안 사용해서 색도 누래지고 알고 보니 타일도 10년 전에 덧방 시공을 해서 불룩하게 튀어나왔더라고요. 그 당시 인테리어해주시는 분이 타일에 대한 설명 없이 그냥 다 주방과 화장실 모두 덧방으로 처리를 하셨어요. (물론 타일도 제가 고른 게 아니고 후드도 제가 고른 게 아니고...)

가스레인지 오른쪽에도 역시 정체를 알 수 없는 유리창이 있었는데, 음식을 할때 마다 기름이 유리창 쪽으로 다 튀는 바람에 닦아도 닦아도 점점 세월의 흔적이 쌓여서 깨끗해지질 않더라고요. 저 유리창이 있는 벽을 꼭 철거하고 싶었고 주방에서 세탁실로 가는 쪽 역시 재활용 쓰레기를 두거나 청소도구를 두는 정도의 역할밖에 못해서 이번에는 꼭 확장을 해야겠다고 마음먹었습니다.
사진을 보시면 아시겠지만 가스레인지 옆에 조리 준비하는 공간이 너무 좁아서 그동안 동선이 엉망이었어요. (싱크대 리모델링 하실 때는 본인의 생활 패턴이나 스타일에 맞춰서 꼭 싱크대나 가스레인지, 조리대 등의 동선 및 폭을 정하시는 걸 추천드리고 싶어요.) 이번에는 조리할 수 있는 공간도 넓히고 싶었고 냉장고에서 재료를 꺼내서 싱크볼에서 씻고 손질해서 바로 인덕션에서 조리할 수 있도록 동선을 짰죠.
일단 제일 중요한 것이 냉장고 자리를 정하는 일이었는데요. 신혼 시절 구입한 크고 뚱뚱한 냉장고는 처분하고 어떤 냉장고를 새로 사서 어디다가 둘 것인가 고민하던 중 비스포크 키친핏 냉장고를 구입했고 그에 맞게 주방을 짰습니다.
사진을 보시면 아시겠지만 가스레인지 옆에 조리 준비하는 공간이 너무 좁아서 그동안 동선이 엉망이었어요. (싱크대 리모델링 하실 때는 본인의 생활 패턴이나 스타일에 맞춰서 꼭 싱크대나 가스레인지, 조리대 등의 동선 및 폭을 정하시는 걸 추천드리고 싶어요.) 이번에는 조리할 수 있는 공간도 넓히고 싶었고 냉장고에서 재료를 꺼내서 싱크볼에서 씻고 손질해서 바로 인덕션에서 조리할 수 있도록 동선을 짰죠.
일단 제일 중요한 것이 냉장고 자리를 정하는 일이었는데요. 신혼 시절 구입한 크고 뚱뚱한 냉장고는 처분하고 어떤 냉장고를 새로 사서 어디다가 둘 것인가 고민하던 중 비스포크 키친핏 냉장고를 구입했고 그에 맞게 주방을 짰습니다.

먼저 답답했던 거울 벽을 철거하고 가스레인지 옆 유리벽도 철거를 했어요. 벽을 다 없애고 나서 얼마나 속이 시원하던지...
철거 후에는 일사천리로 일이 진행되었고 예전부터 상부장 없는 주방에 대한 꿈이 있어 좁은 주방이지만 상부장을 없애기로 했습니다.
철거 후에는 일사천리로 일이 진행되었고 예전부터 상부장 없는 주방에 대한 꿈이 있어 좁은 주방이지만 상부장을 없애기로 했습니다.

확장 후 넓어진 주방입니다.
후드 위에 보시면 간접조명을 넣었는데 천장을 뜯어내고 후드 배관을 길게 빼서 연결하려고 하니 그 높이가 너무 낮아서 배관 통과가 어렵다고 저렇게 단을 내려서 후드 배관도 통과시키고 조명도 만들어 주셨어요. 요청하지도 않았는데 척척 예쁘게 해주셔서 지금 생각해도 업체에 감사한 마음이네요.
후드 위에 보시면 간접조명을 넣었는데 천장을 뜯어내고 후드 배관을 길게 빼서 연결하려고 하니 그 높이가 너무 낮아서 배관 통과가 어렵다고 저렇게 단을 내려서 후드 배관도 통과시키고 조명도 만들어 주셨어요. 요청하지도 않았는데 척척 예쁘게 해주셔서 지금 생각해도 업체에 감사한 마음이네요.

너무 갖고 싶었던 사각 후드와 파포니 링고 수전과 백조 사각 싱크볼을 넣었고요. 상부장이 없는 대신이라고 하면 좀 그렇지만 이케아의 철제 선반을 하나 달아서 포인트 주기로 했어요.
원래 가스레인지가 있던 자리에 냉장고를 넣고 아일랜드 식탁이 있는 쪽에 인덕션을 넣어서 조리 공간을 옮겼습니다.
창문 아래 공간에도 3칸 수납장을 짜서 사용빈도수가 적은 식기를 보관하고 있습니다.
원래 가스레인지가 있던 자리에 냉장고를 넣고 아일랜드 식탁이 있는 쪽에 인덕션을 넣어서 조리 공간을 옮겼습니다.
창문 아래 공간에도 3칸 수납장을 짜서 사용빈도수가 적은 식기를 보관하고 있습니다.

상부장이 없으니 확실히 넓고 깔끔해 보이지 않나요?
상판 대리석의 경우 에이프런을 하지 않은 채 얇게 올리고 하부장의 걸레받이도 굉장히 낮게 들어갔기 때문에 수납공간이 더 넓어졌어요.하부장에는 일반적인 여닫이문과 서랍을 섞어서 구성했는데 서랍형의 경우 여닫이문보다 비용이 훨씬 더 드는 만큼 사용하기 편하답니다.
제가 외국여행 가서 주방을 사용해 보니 타일이 있는 것보다 그냥 대리석이나 자력이 있는 키친 판넬이 붙은 벽이 관리하기 좋더라고요. 저도 그 부분에 힌트를 얻어 타일 대신 상판과 동일한 화이트 대리석을 올리기로 결정했어요.
사실 싱크대 벽 쪽을 모두 대리석으로 하고 싶지만 비용적인 부담이 있어서 반 정도만 올리게 되었는데 그래도 마음에 듭니다. 뭐가 튀거나 묻으면 그냥 닦아내면 되니 타일 줄눈 오염 걱정도 덜 되고 훨씬 더 편하네요.
상판 대리석의 경우 에이프런을 하지 않은 채 얇게 올리고 하부장의 걸레받이도 굉장히 낮게 들어갔기 때문에 수납공간이 더 넓어졌어요.하부장에는 일반적인 여닫이문과 서랍을 섞어서 구성했는데 서랍형의 경우 여닫이문보다 비용이 훨씬 더 드는 만큼 사용하기 편하답니다.
제가 외국여행 가서 주방을 사용해 보니 타일이 있는 것보다 그냥 대리석이나 자력이 있는 키친 판넬이 붙은 벽이 관리하기 좋더라고요. 저도 그 부분에 힌트를 얻어 타일 대신 상판과 동일한 화이트 대리석을 올리기로 결정했어요.
사실 싱크대 벽 쪽을 모두 대리석으로 하고 싶지만 비용적인 부담이 있어서 반 정도만 올리게 되었는데 그래도 마음에 듭니다. 뭐가 튀거나 묻으면 그냥 닦아내면 되니 타일 줄눈 오염 걱정도 덜 되고 훨씬 더 편하네요.

주방은 온전히 비스포크 키친핏 냉장고를 기준으로 짰는데 저희 집이 너무 하얀색이라 냉장고가 그레이로 보일 정도입니다.
냉장고 오른쪽에는 키큰장을 짜서 전자렌지와 커피머신,식재료등의 수납을 하고 있습니다.
냉장고 오른쪽에는 키큰장을 짜서 전자렌지와 커피머신,식재료등의 수납을 하고 있습니다.

한정된 싱크대 면적을 최대한 활용하고자 데드 스페이스가 없도록 공간을 짰어요. 인덕션 조리대 옆 공간에 아주 넓고 깊게 수납장을 만들어 부피가 큰 냄비나 사용 빈도가 적은 소형가전, 그릇 등을 수납합니다.

다른 인덕션보다 큰 사이즈의 4구 인덕션을 넣었는데 그 덕에 싱크대 세로 폭이 넓은 편이에요.
인덕션이 거실을 향해 있으니 거실을 보면서 요리를 할 수도 있고, 남편과 마주 보면서 요리 준비를 할 수도 있고. 저도 한 방향에서만 요리를 하는 게 아니라 더욱 편하고 좋은 것 같아요.
처음에 하이브리드 인덕션(인덕션+하이라이트)을 구입하려다 나중에 사용하다보면 전부 인덕션인 제품으로 할걸하고 다들 후회를 한다고 하시길래 저도 4구가 모두 인덕션인 제품을 구입했어요.이 인덕션은 크고 네모난 닭갈비 스텐팬도 올릴수 있어서 만족스러워요.
인덕션이 거실을 향해 있으니 거실을 보면서 요리를 할 수도 있고, 남편과 마주 보면서 요리 준비를 할 수도 있고. 저도 한 방향에서만 요리를 하는 게 아니라 더욱 편하고 좋은 것 같아요.
처음에 하이브리드 인덕션(인덕션+하이라이트)을 구입하려다 나중에 사용하다보면 전부 인덕션인 제품으로 할걸하고 다들 후회를 한다고 하시길래 저도 4구가 모두 인덕션인 제품을 구입했어요.이 인덕션은 크고 네모난 닭갈비 스텐팬도 올릴수 있어서 만족스러워요.

그리고 주방을 온통 하얗게 한 이유는 바로 이 때문입니다. 제가 자잘한 소품들이 참 많은 편인데 그동안은 집에 어울리지 않아 꽁꽁 숨겨뒀었거든요. 이제는 흰 주방에 어울릴 것 같아서 시간 나는 대로 소품들을 바꿔가며 장식하고 있습니다.
저희 집에서 아이방과 더불어 제일 알록달록한 공간이에요.
저희 집에서 아이방과 더불어 제일 알록달록한 공간이에요.

제가 요즘 노란색을 좋아해서 저희 집 주방 군데군데 노란색 포인트가 있답니다.
이전에 냉장고가 있던 자리에 원형 테이블을 두었는데요. 이 테이블은 원래 거실에 PC를 올려 두고 사용하던 용도로 저희 집 주방에서 식탁으로 쓰기엔 크기가 조금 크지만 아직까지는 잘 쓰고 있어요.
이전에 냉장고가 있던 자리에 원형 테이블을 두었는데요. 이 테이블은 원래 거실에 PC를 올려 두고 사용하던 용도로 저희 집 주방에서 식탁으로 쓰기엔 크기가 조금 크지만 아직까지는 잘 쓰고 있어요.
세탁실

주방 쪽 베란다를 확장하고 샷시를 교체함과 동시에 세탁실과 주방을 분리하는 터닝 도어를 넣기로 계획했어요.
이렇게 양쪽에 창문이 있었는데 오래된 샷시라서 습기도 차고 방풍도 잘되지 않아 주방 베란다 쪽도 엄청 추웠거든요. 저는 이번에 공사를 하면서 샷시와 창호의 역할이 이렇게나 중요하다는 것을 깨달았는데요. 터닝 도어를 달고 나니 방풍은 물론이고 아예 세탁기 소리도 안 들릴 만큼 방음도 잘 되더라고요. 그래서 가끔 세탁이 다 되어도 소리가 들리지 않아 세탁물을 잊기까지 하네요.
이렇게 양쪽에 창문이 있었는데 오래된 샷시라서 습기도 차고 방풍도 잘되지 않아 주방 베란다 쪽도 엄청 추웠거든요. 저는 이번에 공사를 하면서 샷시와 창호의 역할이 이렇게나 중요하다는 것을 깨달았는데요. 터닝 도어를 달고 나니 방풍은 물론이고 아예 세탁기 소리도 안 들릴 만큼 방음도 잘 되더라고요. 그래서 가끔 세탁이 다 되어도 소리가 들리지 않아 세탁물을 잊기까지 하네요.


다른 곳이 다 심플하니 세탁실은 허니콤 육각 타일로 골랐어요. 이 타일은 안방 베란다에도 똑같이 시공했습니다.
왼쪽은 김치냉장고를 올릴 곳. 그리고 위쪽에 세탁기와 건조기 자리를 새로 만들었는데요. 이전에는 저 단이 좁아서 세탁기 위에 건조기를 올릴 수 있는 선반을 둘 폭이 나오지 않았어요. 보일러까지 교체하니 약간의 틈이 생겨서 드디어 건조기를 세탁기 위에 올릴 수 있었습니다.
왼쪽은 김치냉장고를 올릴 곳. 그리고 위쪽에 세탁기와 건조기 자리를 새로 만들었는데요. 이전에는 저 단이 좁아서 세탁기 위에 건조기를 올릴 수 있는 선반을 둘 폭이 나오지 않았어요. 보일러까지 교체하니 약간의 틈이 생겨서 드디어 건조기를 세탁기 위에 올릴 수 있었습니다.


터닝 도어를 넣은 덕에 세탁실이 많이 협소해졌지만 그래도 이 좁은 공간에 작은 김치냉장고와 세탁기, 건조기가 오밀조밀 들어가 있어요.
도어 위에는 압축봉으로 예쁜 패브릭을 걸어주었는데 볼 때마다 기분 좋아지는 노란색이에요.
도어 위에는 압축봉으로 예쁜 패브릭을 걸어주었는데 볼 때마다 기분 좋아지는 노란색이에요.
침실

제가 이사 오기 전에 계시던 전 주인분이 안방에 슬라이드 붙박이장을 맞춤하셨는데 실제로 2년 정도 사용하셨다고 하더라고요. 당시에 찾아보니 거의 200만 원 정도의 제품으로 내부 구조도 굉장히 깔끔하고 좋아서, 문에 시트지 작업을 해서 그대로 쓰고 있었죠.
잘 사용했지만 시간이 지날수록 선반이 내려앉고 옷 봉이 이탈하는 현상이 계속 생겼습니다. 어차피 리모델링에 붙박이장은 필수라고 생각되어 기존 붙박이장을 철거하고 새로 짜넣기로 했어요.
잘 사용했지만 시간이 지날수록 선반이 내려앉고 옷 봉이 이탈하는 현상이 계속 생겼습니다. 어차피 리모델링에 붙박이장은 필수라고 생각되어 기존 붙박이장을 철거하고 새로 짜넣기로 했어요.

결혼 후 2번 바꾼 매트리스입니다. 원래는 프레임도 있었지만 아이를 낳고 생활하니까 프레임 없는 것이 편해서 정리하고 침대 깔판을 구매하여 저상형 침대로 사용했네요.

안방은 창호끼리 맞물리지도 않고 계속 바람이 새고 외풍이 있어서 겨울에는 얼굴이 조금 시리던 방이었어요. 이번에 무조건 단열 작업을 잘 해달라고 요청드렸기에 이 방도 다 철거하고 단열 작업 후 창호도 교체했습니다.

너무 놀란 건 도배 시공자분들이 깜짝 놀라실 정도로 방마다 벽지가 네 겹씩 붙어있었다는 사실... 이전에 살던 분들이 벽지를 제거하지 않고 그 위로 계속 덧방을 했더라고요. 세월의 흔적이 겹겹이 쌓인 모든 벽지를 다 떼어내고 새롭게 실크 벽지로 도배했습니다.

창호도 바뀌고 붙박이장도 흰색이라 넓어진 느낌이에요.

푸시 타입의 도어라 손잡이가 없어서 깔끔해졌고요. 원래는 천장 끝까지 문이 올라오도록 하고 싶었는데 안방은 그게 안 되어서 조금 아쉬웠네요.

거실과 똑같은 차르르 커튼도 달아주었어요. 최근 노란색에 빠진 터라 침구도 노랑 체크로 바꾸어 보았답니다.

침대 맞은편에는 수납장을 넣고 좋아하는 작가님의 그림을 올려 두었어요. 화장품이 그렇게 많지 않아 이 수납장 한쪽에 다 정리를 해두었고 나머지 칸에는 자주 입는 옷들을 정리해두었습니다.

안방 쪽 베란다는 따로 시스템창호를 하지 않고 일반 창호로 시공했어요. 베란다로 들어가는 입구 문에 터닝 도어를 달았습니다.

세탁실과 같은 허니콤 타일을 깔았구요. (빈번히 드나드는 곳이 아니라서 이 정도 타일을 해도 질리지 않을 것 같아서요.) 베란다에도 장을 새로 짜 넣어서 철 지난 물품을 수납하고 있습니다.
작은방

주방 옆에는 작은방이 하나 딸려 있었는데요. 이 방은 전혀 활용을 하지 못하고 창고 겸 아이 아빠의 침실로 쓰고 있었어요. 침실이라고 하지만 침대도 없었어요. 코골이 때문에 힘들어하는 저 때문에 안방에서 못 자는 아이 아빠가 이부자리를 깔고 임시로 자던 곳이었습니다. 정말 작아서 두 명이 누우면 꽉 찰 정도였어요. 가끔 문을 열면 방문에 막 머리를 박을 정도로 작아요.
그리고 정체 모를 거울 문짝이 달린 장이 있었어요. 생각보다 이 공간이 넓어서 안에 행거를 설치해 옷장으로 사용했지만 항상 이 거울 문짝이 위험하다고 생각이 되더라고요. 이번 기회에 다 철거하고 안방과 동일한 디자인의 화이트 붙박이장으로 바꿨습니다.
그리고 정체 모를 거울 문짝이 달린 장이 있었어요. 생각보다 이 공간이 넓어서 안에 행거를 설치해 옷장으로 사용했지만 항상 이 거울 문짝이 위험하다고 생각이 되더라고요. 이번 기회에 다 철거하고 안방과 동일한 디자인의 화이트 붙박이장으로 바꿨습니다.

그리고 일부러 이 방의 문은 슬라이딩 도어로 설치했어요. 좁은 방이라 이렇게 바깥쪽에 슬라이딩 도어를 넣으면 조금이라도 더 넓게 느껴지지 않을까 생각했는데 성공적인 것 같아요.
방문을 다 교체하면서 기존의 문지방이 다 없어진 것만으로도 더 넓어지는 효과가 있었는데 슬라이딩 도어로 바꾸니 공간 활용에 정말 좋네요.
방문을 다 교체하면서 기존의 문지방이 다 없어진 것만으로도 더 넓어지는 효과가 있었는데 슬라이딩 도어로 바꾸니 공간 활용에 정말 좋네요.

슬라이딩 도어로 새로 태어난 이 작은 침실은 지금 남편이 편하게 잘 사용 중입니다. 딱 맞는 일체형 침대를 넣고 간단히 업무를 볼 수 있도록 PC도 뒀어요. 하얀 방에 침대와 컴퓨터만 있다 보니 주위에서는 꼭 피부과 시술실 같다고 하네요. 하하.
아이방

활용이 전혀 되지 않는 베란다 때문에 살면서 계속 마음에 걸렸던 아이방도 확장을 하였습니다. 사실 이 방의 확장이 가장 절실했어요. 저희 아파트의 다른 이웃집에 놀러 가도 다들 이 방은 꼭 확장을 해두셨더라고요.
세로로 긴 방인데 생각보다 베란다 쪽이 넓어서 방 자체가 애매한 크기로 남아 활용하기가 어려웠답니다. 철거를 할 때 베란다 문 오른쪽 벽이 당연히 내력벽인 줄 알고 저 튀어나온 벽을 어떻게 해야 하나 고민을 많이 했는데 다행스럽게도 전부 철거가 가능한 벽이라 바로 허물었네요. 샷시도 상태가 좋지 않아 바람이 숭숭 들어오는 방이라 단열 작업을 꼼꼼히 하고 창호도 바꾸었습니다.
세로로 긴 방인데 생각보다 베란다 쪽이 넓어서 방 자체가 애매한 크기로 남아 활용하기가 어려웠답니다. 철거를 할 때 베란다 문 오른쪽 벽이 당연히 내력벽인 줄 알고 저 튀어나온 벽을 어떻게 해야 하나 고민을 많이 했는데 다행스럽게도 전부 철거가 가능한 벽이라 바로 허물었네요. 샷시도 상태가 좋지 않아 바람이 숭숭 들어오는 방이라 단열 작업을 꼼꼼히 하고 창호도 바꾸었습니다.

확장을 하고 나니 확실히 넓어져서 이제 아이방에 침대를 놓을 수 있겠더라고요.

창가에 매립등을 설치하고 우드 블라인드도 달아주었습니다.

아이방은 이케아로 많이 채웠어요.

이케아 폴 책상은 3단계로 높이 조절이 되는 점이 마음에 들어서 구입했어요. 지금은 제일 낮은 높이랍니다.

이렇게 꾸며줬지만 정작 아들은 변신로봇 사랑이라 한쪽에 로봇 정리 선반을 둬야 했죠.

종종 이 선반이 어디 제품이냐고 여쭙는 분들이 계시는데 사실 원래 신발장이에요. 신발장으로 쓰려고 산 건 아니고 교구장으로 사용할까 싶어서 저렴한 가격에 구입했는데 흔들흔들거리고 약해도 너무 약한 것!
그래서 제가 가로 선반을 하나 빼서 뒷판 용도로 고정해 사용하고 있어요. 그 뒤로는 전혀 흔들거림이 없답니다. 조금 힘든 작업이라 드릴질에 능숙하신 분들은 괜찮으실 듯하지만 그냥 쓰기엔 너무 흔들거리기 때문에 마구 추천하진 못하겠네요.
그래서 제가 가로 선반을 하나 빼서 뒷판 용도로 고정해 사용하고 있어요. 그 뒤로는 전혀 흔들거림이 없답니다. 조금 힘든 작업이라 드릴질에 능숙하신 분들은 괜찮으실 듯하지만 그냥 쓰기엔 너무 흔들거리기 때문에 마구 추천하진 못하겠네요.

딱히 수면 분리를 할 생각은 없었는데 침대를 사주면서 자연스럽게 분리가 되었어요. 본인 침대에서 혼자 자고 싶다고 하더라고요. 그래서 지금 저희 세 식구는 의도치 않게 모두 각방 중이랍니다. 안방과 같은 노란 체크 침구를 구입했지만 이불은 절대 덮지 않고 자는 5세!
욕실

욕실은 정말 할 말이 많은 곳이에요.
일단 오래된 아파트이다 보니 누수 문제가 좀 있었어요. 같은 아파트라도 고층은 괜찮은데 유독 저층에 물이 샜죠. 저희도 저층이라 윗집에서 물이 새는 현상이 발견되어서 이번에 욕실을 고칠 때 윗집 주인분과 만나 새고 있는 부분에 대해 수리를 어느 정도 하고 공사를 시작했습니다. (구축 아파트를 알아보고 계신다면 이런 누수 부분을 반드시 체크하셔야 해요.)
또 부분 리모델링할 당시 제가 고르지 않은 타일로 시공을 해놓으셔서 화가 났지만 그냥 욕실이 새로 고쳐진 것에 만족하고 나름 합리화를 하며 10년을 지냈어요. 알고 보니 상의도 없이 욕실 또한 주방처럼 타일 덧방을 10년 전에 해두셨더라고요. 이번에 다 철거를 하였습니다.
일단 오래된 아파트이다 보니 누수 문제가 좀 있었어요. 같은 아파트라도 고층은 괜찮은데 유독 저층에 물이 샜죠. 저희도 저층이라 윗집에서 물이 새는 현상이 발견되어서 이번에 욕실을 고칠 때 윗집 주인분과 만나 새고 있는 부분에 대해 수리를 어느 정도 하고 공사를 시작했습니다. (구축 아파트를 알아보고 계신다면 이런 누수 부분을 반드시 체크하셔야 해요.)
또 부분 리모델링할 당시 제가 고르지 않은 타일로 시공을 해놓으셔서 화가 났지만 그냥 욕실이 새로 고쳐진 것에 만족하고 나름 합리화를 하며 10년을 지냈어요. 알고 보니 상의도 없이 욕실 또한 주방처럼 타일 덧방을 10년 전에 해두셨더라고요. 이번에 다 철거를 하였습니다.

보면 볼수록 신기하면서도 스산한 욕실 철거 현장이에요. 철거하는 소음 때문에 주변 이웃들이 많이 고생하셨을 것 같습니다.

욕실은 저희 집에서 유일하게 화이트 컬러가 아닌 곳이에요. 제가 가봤던 호텔들 중 바닥과 벽을 동일하게 똑같은 포쉐린 타일로 마감을 한 곳을 보았는데 무광에다가 고급스러운 느낌이라 참 마음에 들더라고요. 저는 이 타일이 너무 좋아서 현관 바닥에도 동일한 타일을 사용했어요. 물론 청소의 용이성을 위해 줄눈이 그렇게 많지 않은 큼지막한 걸로 고른 이유도 있고요.
그리고 크게 욕조의 필요성을 못 느껴서 아예 없애버렸고 낮은 가벽과 유리 파티션으로 샤워 공간만 분리하기로 했습니다.
또, 화장실 방수공사를 하면서 샤워 공간 외 바닥에도 난방선(보일러 배관)을 깔기로 했어요. 이 부분 정말 만족스러워요. 요즘 신축 아파트는 욕실에 난방선이 대부분 깔려 있는데 구축은 그런 게 없어서 욕실이 정말 추웠고 씻고 나오면 모두 오들오들 떨기 바빴죠. 난방선이 있으니 보일러를 가동하면 저절로 화장실 바닥도 따뜻해지고 물도 금방 말라서 욕실 바닥이 뽀송해요.
그리고 크게 욕조의 필요성을 못 느껴서 아예 없애버렸고 낮은 가벽과 유리 파티션으로 샤워 공간만 분리하기로 했습니다.
또, 화장실 방수공사를 하면서 샤워 공간 외 바닥에도 난방선(보일러 배관)을 깔기로 했어요. 이 부분 정말 만족스러워요. 요즘 신축 아파트는 욕실에 난방선이 대부분 깔려 있는데 구축은 그런 게 없어서 욕실이 정말 추웠고 씻고 나오면 모두 오들오들 떨기 바빴죠. 난방선이 있으니 보일러를 가동하면 저절로 화장실 바닥도 따뜻해지고 물도 금방 말라서 욕실 바닥이 뽀송해요.

큼직한 타일 덕에 예전보다 넓어 보이는 욕실이 되었어요. 타일 위에 대리석 마감을 하지 않은 젠다이로 시공했고요. 원래 그레이 빛이 도는 옅은 베이지 컬러인데 매립등 색 때문에 원래 색보다 좀 더 짙은 베이지 톤으로 느껴져요.
욕실은 플랩 거울장을 제외하고 모두 아메리칸 스탠다드 제품으로 설치했습니다.
욕실은 플랩 거울장을 제외하고 모두 아메리칸 스탠다드 제품으로 설치했습니다.


그리고 욕실 역시 남편 방처럼 문을 슬라이딩 도어로 넣었습니다. 현관에서 바로 욕실이 보이는 구조라 그 점이 마음에 들지 않았는데, 슬라이딩 도어로 해두니 처음 집에 오시는 분들은 화장실인 줄 모르시더라고요. 스위치도 안쪽에 다 옮겨서 사용하기 편하고 내부도 더 넓어졌어요.
다만 왼쪽 옆벽에 도저히 여유가 없어 잠금장치를 예전에 많이 사용하던 문고리 같은 잠금쇠를 달게 되어서 아쉽네요.
다만 왼쪽 옆벽에 도저히 여유가 없어 잠금장치를 예전에 많이 사용하던 문고리 같은 잠금쇠를 달게 되어서 아쉽네요.

욕실 시공하고 제일 만족스러운 부분은 난방선과 더불어 온풍기 겸용 환풍기를 설치한 것이에요. 정말 이걸 안 쓰고 어떻게 살았나 싶을 정도로 100% 그 이상 만족하고 있어요. 온풍기 덕에 겨울에 추운 욕실은 잊었네요.
특히 아이 있는 집에 좋은 것 같아요. 씻기 전에 미리 켜두면 따뜻하게 공기가 데워지고, 아이를 씻긴 후 드라이 기능으로 살짝 말려주고 로션 바르고 잠옷까지 입혀서 나온답니다. 물론 저와 남편도 애용하고 있지요.
또 욕실 사용하고 나서 스퀴지로 슥슥 물기를 밀어내 닦아주면 온풍기 효과로 물기가 금방 말라요. 타이머 기능도 있고,두달동안 사용해보니 생각보다 전기세도 폭탄맞을만큼 나오지 않아서 대만족입니다.
특히 아이 있는 집에 좋은 것 같아요. 씻기 전에 미리 켜두면 따뜻하게 공기가 데워지고, 아이를 씻긴 후 드라이 기능으로 살짝 말려주고 로션 바르고 잠옷까지 입혀서 나온답니다. 물론 저와 남편도 애용하고 있지요.
또 욕실 사용하고 나서 스퀴지로 슥슥 물기를 밀어내 닦아주면 온풍기 효과로 물기가 금방 말라요. 타이머 기능도 있고,두달동안 사용해보니 생각보다 전기세도 폭탄맞을만큼 나오지 않아서 대만족입니다.

사이즈를 잘못 보고 산 엄청 큰 수건 스탠드는 의외로 맹활약 중입니다. 이것도 욕실 문이 슬라이딩 도어가 아니었으면 아마 사용하지 못했을 것 같네요.

바깥에서 보았을 때 작은방과 욕실의 슬라이딩 도어는 이런 모습입니다. 문 높이가 거의 천장까지 올라와서 뭔가 집이 좀 더 넓어 보이고 천고도 높아 보이는 효과가 있는 것 같네요. 좁은 집에는 슬라이딩 도어를 추천드리고 싶어요.

지금까지, 오랜 기간 같은 집에 살다가 이곳의 단점들을 보완해 새 집으로 탄생시킨 이야기였습니다.
사실 아이에게 맞춰 결정한 부분도 많고 작은 집이라 공간적인 제약이 많아서 하고 싶었던 걸 모두 다 풀어내진 못했어요. 살다 보면 또 고칠 것이 나오고 마음에 들지 않는 부분들이 나오겠지만 지금은 집이 주는 안정감과 행복을 너무 잘 느끼고 있답니다.
신축 아파트에 가지 않고 왜 헌집을 고치느냐는 주위의 만류도 있었는데 불편함이 많은 집이었지만 그래도 익숙하고 편안했던 곳이라 정이 갔던 것 같아요. 뼈대 빼고 모두 고치는 리모델링이라 시간도 오래 소요되고 겨울에 시공해주신 직원분들과 모어디자인스튜디오 실장님 모두 고생을 많이 하셨는데 이 집에 긴 시간 살아오면서 머릿속으로 이렇게 고쳤으면 좋겠다, 이렇게 만들고 싶다, 생각만 했던 부분을 잘 풀어주셔서 정말 감사하게 생각해요.
삶의 터닝 포인트를 찾고 싶을 때, 여건이 된다면 과감히 지금 살고 있는 집을 새롭게 바꿔보는 것도 괜찮은 방법인것 같습니다.
사실 아이에게 맞춰 결정한 부분도 많고 작은 집이라 공간적인 제약이 많아서 하고 싶었던 걸 모두 다 풀어내진 못했어요. 살다 보면 또 고칠 것이 나오고 마음에 들지 않는 부분들이 나오겠지만 지금은 집이 주는 안정감과 행복을 너무 잘 느끼고 있답니다.
신축 아파트에 가지 않고 왜 헌집을 고치느냐는 주위의 만류도 있었는데 불편함이 많은 집이었지만 그래도 익숙하고 편안했던 곳이라 정이 갔던 것 같아요. 뼈대 빼고 모두 고치는 리모델링이라 시간도 오래 소요되고 겨울에 시공해주신 직원분들과 모어디자인스튜디오 실장님 모두 고생을 많이 하셨는데 이 집에 긴 시간 살아오면서 머릿속으로 이렇게 고쳤으면 좋겠다, 이렇게 만들고 싶다, 생각만 했던 부분을 잘 풀어주셔서 정말 감사하게 생각해요.
삶의 터닝 포인트를 찾고 싶을 때, 여건이 된다면 과감히 지금 살고 있는 집을 새롭게 바꿔보는 것도 괜찮은 방법인것 같습니다.
이 집을 더 자세히 구경하고 제품 정보를 알고 싶다면?