홍천의 노일강변을 담아낸 연면적 272.67㎡(82.48평) 철근콘크리트 펜션이다. 이름은 어릴 적 상상력이 자라서 만들어진 공간으로 여기길 바라는 마음에서 명명한 가칭 우주 전함 깍두기호이다. 가족 동(A동)은 노일강에 서식하는 쏘가리를, 커플 동(B동)은 아슬아슬한 연인 관계를 은유적으로 표현한 형상이다.
글·디자인 김동희
http://blog.naver.com/kimddonghee

우리는 어릴 적의 추억을 간직하고 싶어 한다. 때로는 추억 속 엉뚱한 상상력이 현실로 나타나길 바란다. 하지만 이상과 현실 사이엔 괴리가 존재한다. 홍천 노일강 펜션은 잠시나마 꿈이 현실 속에서 이뤄지는 공간이길 바라는 마음에서 출발한다.
전원 속 펜션은 주체인 건축주 입장에서 보면 일종의 투자이자, 노후 연금 개념으로 지은 건축물이다. 반면, 가족이나 커플 등 이용자에겐 도시와 기존 숙박 시설에서 벗어나 좀 더 다양한 공간을 체험하며 추억을 만드는 공간이다.
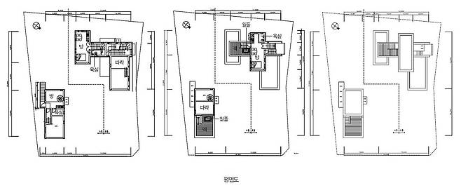
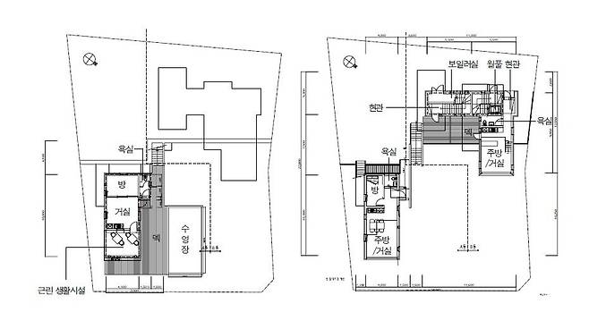
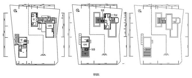
노일강 추억 만들기 프로젝트. 목표는 최적의 노일강변 조망을 선사할 수 있는 건축 공간의 구성이다. 가족 동(A동)은 노일강에 서식하는 토종 물고기인 쏘가리 형상을 은유화해 입면이 덩치가 크고 먹음직스럽게 나타난다. 커플 동(B동)은 연인이 콘셉트로 수직적인 판상 형태에 수평 공간이 매달린 것 같은 형태이다. 연인 관계의 아슬아슬한 긴장감이 자연스럽게 나타나는 듯하다. 수평 공간 끝에서 노일강의 정취를 만끽하며 둘만의 오붓한 시간을 보낼 수 있다.
건축 테마는 어린 시절 추억에 대한 은유적 표현이다. 어릴 적에 본 만화 속 우주 전함은 상상력을 자극하며 대리 만족을 선물한 것 같다. 노일강변 펜션이 그 추억 속 상상력이 자라서 만들어진 공간으로 여겨지길 바란다.


건축정보
위치 강원 홍천군 북방면 노일리
건축구조 철근콘크리트조
주용도 제1종근린생활시설 / 단독(다가구)주택
지역지구 보전관리지역
대지면적 706.00㎡(213.57평)
건축면적 137.85㎡(41.70평)
연면적 272.67㎡(82.48평)
설계 건축사사무소케이디디에치 (KDDH) 건축가 김동희





