
오늘의집 @90m813 님의 집들이입니다.
9개월 아들이 있는 디자이너 부부예요! 직장 때문에 서울 나가기 편한 광명 쪽에서 2년 지내다가 아기도 생기고 둘 다 맞벌이를 해야 해서 인천 시댁 근처로 이사 왔어요! 아버님이 3층짜리 작은 건물을 가지고 계셔서 그 건물을 올 수리(외부제외)하고 들어오게 됐어요. 마침(?) 남편이 인테리어 디자이너고 저는 시각 디자이너라 일할 때보다 훨씬 더 열심히 레퍼런스 찾아가며 공사했어요! ㅋㅋ
37년 된 건물이라 설비, 보일러 공사까지 싹- 다 하느라 공사 예산이 음청 컸지만...ㅠ 그래도 공사 끝나고 나니 아주 만족스럽네요! 인테리어 디자이너랑 결혼한 보람이 있다는 ㅋㅋㅋ
Before

일단 대략적인 비포부터 보여드릴게요! 한 층이 실평수 13평 정도 되는 공간인데, 전에 사용하시던 분이 1층은 철물점, 2, 3층은 주거 겸 창고로 쓰셨데요. 2, 3층에 보일러도 안 깔려 있던 건물이고 레이아웃도 엉망에 방도 크기가 제각각이어서 활용도가 낮았어요.
다들 비포 사진 보고 걱정을 했지만 저랑 제 남편은 건물 구조만 남기고 다 (천정, 바닥, 벽) 뜯을 걸 알기에 바로 공사를 시작했습니다.

1차 설계 3D

마감재
이런 오래된 건물은 뜯어봐야 제대로 건물 컨디션을 알 수 있기에, 80% 정도 설계를 하고 마감재를 정했어요. 철거하고 나머지 디테일한 설계를 하기로 했고요.

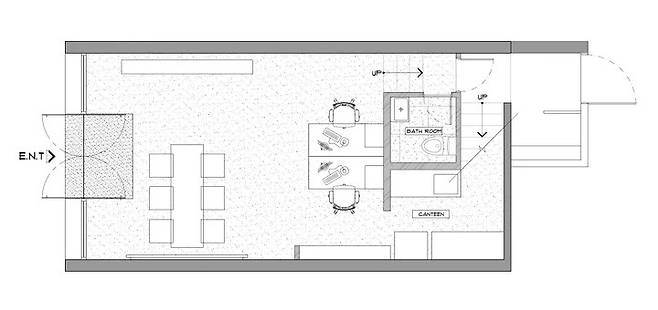
1층 (사무실, 화장실)
1층은 저희도 상업공간(스튜디오)으로 쓸 예정이라 최대한 돈 들이지 말자! 최소의 돈만 쓰자! 하고 천장은 철거하지 않았어요. 마음같아선... 천장도 뜯고 유리도 다 새로하고 싶었지만, '유리는 살면서 돈벌어서 이뿌게 하자. 집에 집중하자'며 최소한의 철거를 했어요.

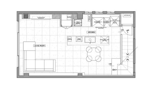
2층 (거실, 주방)
우선 이 건물의 가장 큰 고민이 낮은 천고였어요. 인테리어에 조금이라도 관심 있으신 분들은 아시겠지만, 천고가 높으면 뭘해도 예쁘기에 ㅠㅠ 철거하면서 천장 위에 공간이 많았으면 좋겠다 했는데! 철거해보니 위아래로 각 20cm가 넘는 공간이 나온 거 있죠 ㅋㅋㅋㅋ 그래서 2.2m 정도 되는 천고에서 갑자기 2.6m가 됐어요. 그리고 뷰는 안 좋지만, 창은 무조건 커야 한다며 거실 창도 철거하면서 무릎 정도 높이까지 창을 넓혔어요.

2층 계단실
원래 계단실이 매우 별로였기 때문에, 저 부분을 벽으로 막으려고 했는데, 철거해보니 계단 난간이랑 3층에서 2층을 내려올 때 보이는 뷰가 매우 괜찮아서 저 부분을 살리는 걸로 설계를 변경했어요!

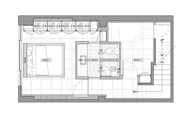
3층 (안방, 아가방, 화장실)
역시나 3층도 위아래로 공간이 40cm는 숨이었더라고요! 그리고 아기방으로 할 공간에 해리포터 방 같은 비밀 공간이 나와서 남편이랑 철거한 거 보고 어찌나 웃었는지. ㅋㅋ 3층은 주로 자는 공간이라 있는 창 그대로 크기 변경 없이 철거만 하고 끝냈어요! 별거 안 한 거 같지만, 철거공사만 3일 걸렸... 폐기물만 2.5톤 차량이 다섯 차나 나왔어요...^^ 폐기물 = 철거비...! 하 눈물을 머금고 예산의 거의 15%에 달하는 비용을 냈...어요.. ㅠ
A.F.T.E.R
*입주 후 사진
- 1층 사무실

가장 돈을 안 들이고 마무리한 1층. 사실 아직 가구도 다 안 들어오고 간판도 못 달았어요.

바닥은 콩자갈이라는 마감재인데, 진짜 색 입힌 자갈을 까는 시공법이에요. 주거공간에서는 잘 안 하고 요즘 카페에서 많이 하는데, 더러운 게 떨어져도 티도 안 나고 좋네요. (이게 제일 만족스러운 부분 ㅎㅎ)

벽면 마감이 독특하죠?

그리고 저희는 브랜딩, 인테리어 디자인 스튜디오라 약간 현장에서 미팅하는 그런 분위기를 컨셉으로 50%는 도장을 퍼티까지만 하고 마무리했어요.


바로 밖이 외부인데, 둘 다 밤늦게까지 작업하는 일이 많아서 통으로 암막 커튼을 달아 9시가 넘은 시간엔 커튼을 치고 작업하고 있어요.

올라가는 계단도 노출된 벽돌과 콩자갈로 연출했고요

1층 화장실입니다.
현관

사무실 안쪽문을 열면 정면에는 커튼 너머로 신발장이, 오른쪽으론 집으로 들어가는 계단이 있어요.

저희는 카펫 깔린 부분부터 실내화를 신고 생활해요 :)
2층

2층 거실

주택에 거실은 2층이라 절대 예쁜 뷰가 나올 수 없어서 밤에는 아예 가릴 수 있도록 무거운 느낌의 암막 커튼을 설치했어요.

옆에 있는 주방이 거대해서 거실과 주방이 밸런스가 맞아 보이도록 커튼, 소파, 러그에 컬러감을 줬어요!


2층 주방
우리 집에서 면적이 제-일 큰 주방!


사실 밥도 잘 안해먹는데, 전자기기가 밖으로 나와있는게 너-무 싫어서 다 수납하다보니까 주방이 제일 커졌어요.

수전이 안쪽으로 가있으면 설거지하는 사람이 혼자 뒷정리 하는 기분이라 아일랜드로 뺐는데, 식기세척기를 들이면서 아무도 설거지를 하지 않게 되었다는...ㅋㅋㅋㅋ 다음엔 그냥 벽 쪽으로 설계해도 될 것 같아요 ^^

싱크대 장 문짝 컬러는 남편이 알아서 비스포크랑 비슷한걸로 골랐는데, 설치하고 보니 그냥 똑같은 색깔이어서 놀랐어요. 괜히 경력 12년 차가 아닌가봐요. ㅋㅋㅋ

계단실

복층에서만 볼 수 있는 계단실!

오래된 주택이다 보니 창문 모양이 제각각인데, 저희는 이게 더 멋스러운 것 같아 모양을 그대로 살렸어요.
집이 무려 3개 층이기 때문에 오르락내리락할 때 조금이라도 관절에 무리가 덜 가도록 계단은 전체 카펫을 깔았어요. 깔기 전엔 먼지도 많이 날 것 같고 이것저것 걸리는 게 많았는데, 안전하기도 하고, 굉장히 만족스러운 공간 중 하나가 됐어요!
3층

3층은 구조가 조금 특이해요!
화장실을 안방에서도 바로 들어갈 수 있고 복도에서도 들어갈 수 있도록 화장실 안에 복도를 만들었어요.
3층 안방
초 깔끔해서 뭐 없는 안방이에요.


사실 한 쪽 벽면은 다 붙박이장인데 마감재를 벽면이랑 똑같이 해서 실제로 보면 좀 독특한 느낌이에요.
그리고 동대문에 직접 가서 맞춘 모달 이불 커버! 구매하는 것보다 저렴하고 원하는 원단으로 맞출 수 있어서 강추해요! 어디서도 볼 수 없는 컬러라서 매우 만족 중이에요.


벽으로 쏙 숨을 수 있는 안방 문이에요 :)
3층 화장실


전에부터 꼭 쓰고 싶었던 브라운 타일을 써서 우리 집에서 제일 애정하는 공간 중 하나!

안방이랑 복도랑 이어지게 문 두 개 달아서 사용하기 엄청 편해요!

스타벅스 매장 매뉴얼이라는 바닥타일 사용했는데, 역시 괜히 스타벅스가 아니에요.

씻는 공간은 따로 분리해주었어요.

그리고 제일 마음에 드는 건 변기! 쉬야하고 일어서면 자동으로 물 내려가서 세상 편해요! 돈 쓴 것 중에 제일 만족스럽네요. ㅋㅋ
3층 아가방


25,000원 주고 당근에서 산 아기침대에 리폼비만 200,000원 써서 세상에서 하나밖에 없는 아기침대도 만들고 아들의 취향은 없지만 엄마아빠의 애정이 듬뿍 담겨있어요.
공사하면서 오늘의집에서 얻는 정보들이 너-무 많아서 저도 나름 도움이 되었음 하고 이것저것 자세하게 썼어요!
*
가장 중요한 예산은 기본공사(설비, 보일러, 구조변경) 등을 제외하면 대략적으로 7000만 원 정도 든 것 같아요. 물론 남편이 직접 설계, 공사해서 디자인 피는 빠진 금액입니다! 인테리어 관련 궁금하신 거 있음 편하게 물어보세요! 최대한 답변해드릴게요 ^^ 큰 도움은 아니더라도...ㅋㅋㅋ 쬐끔의 도움이 됐길 바라며 !
랜선 집들이 끝!!!
집들이 속 제품 정보를 알고 싶다면?
▼ 클릭 ▼

BEST 온라인 집들이가 궁금하다면?
▼ 클릭 ▼

가장 사랑받은 집들이를 책으로 만나보고 싶다면?
▼ 클릭 ▼
