
건축은 일방통행으로 진행되는 게 아니다. 원하는 것을 정확하게 피력하고, 의견을 적극 반영하며 협의해나가야 한다. 그래야 완성도와 만족도 높은 결과물을 얻을 수 있다. 그 중심엔 솔직한 소통과 협의가 있다. 하남 상가주택은 그 모범적인 사례라고 할 수 있다.
글 이상현 기자 | 사진 박창배 기자(외부), 이상현 기자(내부) | 취재협조 ㈜지아이피종합건설
HOUSE NOTE
DATA
위치 경기 하남시 미사강변한강로
지역/지구 도시지역, 제1종 일반주거지역,
지구단위계획구역
건축구조 철근콘크리트조
용도 근린생활시설 및 다가구주택
대지면적 257.90㎡(78.01평)
건축면적 154.17㎡(46.63평)
건폐율 59.78%(법정 60% 이하)
연면적 493.47㎡(149.27평)
1층 130.87㎡(39.58평)
2층 115.49㎡(34.93평)
3층 115.49㎡(34.93평)
4층 131.62㎡(39.81평)
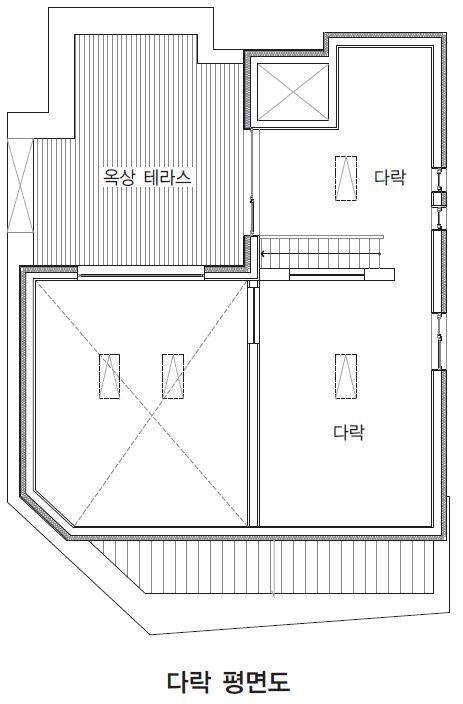
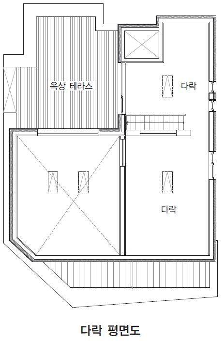
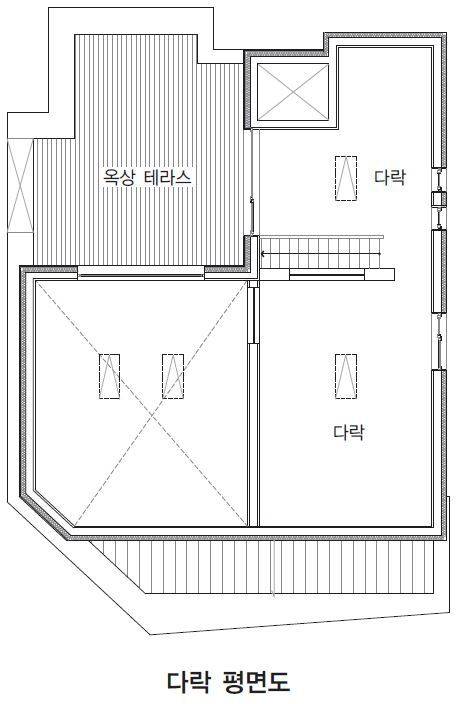
다락 56.22㎡(17.00평)
용적률 191.31%(법정 200% 이하)
공사기간 2018년 9월~2019년 4월
건축비용 8억 3000만 원(3.3㎡당 448만 원)
설계 ㈜지아이피건축사사무소
시공 ㈜지아이피종합건설
1661-3693 www.giparchi.com
MATERIAL
외부마감
지붕 - 컬러강판(포스틸)
벽 - 화이트 워싱 목재, 세라믹타일
(ICOT RYOWA HAN13T-B06)
내부마감
천장 - 디자인벽지(LG하우시스 테라피 슈가 8190-1)
벽 - 실크벽지(LG하우시스), 무늬목 패널
바닥 - 구정마루
계단실 디딤판 - 애쉬 집성목 30T
단열재
지붕 - 압출법 보온판(아이소핑크)
외벽 - 비드법 보온판 2종 1호
창호 시스템 창호(LG하우시스 유로시스템9)
현관문 성우스타게이트 SG802
주방가구(싱크대) 한샘
위생기구 대림바스
난방기구 콘덴싱 가스보일러(경동나비엔)


두 번의 만남이 인연으로
미사강변 택지개발지구 단독주택용지에 위치한 하남 상가주택. 남쪽과 동쪽은 도로와 접하고, 북쪽과 서쪽은 이웃대지와 면하는 곳으로 주변 여건이 좋아 상가주택 입지로 손색이 없다. 미사리 조정경기장과 조정공원이 도보 10분, 초등학교와 중학교가 도보 4분 거리다. 북쪽으로 1000세대가 넘는 여러 아파트 단지, 남쪽으로 큰 길 건너편에는 주택가가 즐비하다. 이미 1층 상가 외 2층과 3층 주택은 임대가 끝났다.

건축주 부부는 남편이 운영하던 공장이 재개발사업으로 수용되어 지금의 대지를 보상 받았지만, 주변 건물이 다 들어설 때까지 건축을 망설였다. 상권이 아직 형성되지 않아 빈 집, 빈 상가가 제법 있었기 때문이다. 건축주 부부는 짓더라도 수익성이 높은 상가주택을 짓기로 마음먹었고, 그 후 동네 분위기가 갖춰지면서 준비를 시작했다.
“상가주택을 유심히 살펴봤어요. 두 곳이 눈에 들어왔는데 집 앞에 있는 상가주택과 제가 자주 가는 베이커리 건물이었어요. 베이커리 주인에게 건물을 어디서 지었냐고 물었는데, ㈜지아이피에서 지었다고 하더군요. 상담 받아볼 겸 사무실을 방문했는데, 거기에 제가 눈여겨봤던 집 앞 상가주택 모형이 있었어요. 두 건물 스타일이 완전 다른데 같은 곳에서 설계·시공했다는 점에 놀랐죠. 마침 설계대표가 저희 집 근처에 살고 있고, 같은 학부형이라는 공통점이 있어 금방 친해졌습니다. 몇 차례 더 만난 후 진솔한 모습에 신뢰가 생겨 건축을 맡기기로 했습니다.”









화이트 워싱 루버로 눈길 사로잡는 상가주택
건축을 준비하면서 건축주 부부의 생각이 바뀌었다. 부모님과 건축주 동생이 이곳에 살기로 하면서 매매하지 않고 보유하기로 한 것. 가족이 살면서 직접 관리하기로 해 편리성 위주에 초점 맞췄다. 건축주는 가족의 의견을 모았다. 주택 안팎에 목재를 적용할 것, 가족이 거주하는 4층은 거실과 주방을 연결하되 구분 지을 것, 거실과 다락에 천창을 설치할 것 등이다.
시공사는 건축주가 요구한 것을 3D프로그램으로 구현하면서 건축주의 취향을 찾았다.
“건축주는 자연스러운 느낌의 목재 적용을 매우 선호했어요. 그래서 외벽을 목재로 마감하면 어떻게 보이는지 3D로 구현해서 직접 보여줬어요. 전체를 목재로 마감했을 때와 부분만 적용했을 때, 그리고 일부분만 적용했을 때를 각각 보여주며 건축주와 합의점을 찾았어요.”

하남 상가주택은 주변 건물에 비해 더 커 보인다. 그리고 상가주택 외관에 흔히 사용하지 않는 화이트 루버의 신선함이 오가는 사람들의 시선을 멈추게 한다. 창과 이어진 벽에 블랙 벽돌, 외곽에 화이트 워싱 루버를 시공해 흑백으로 입체감 있는 단면처럼 연출했기 때문이다. 도로와 면한 두 면이 연속적으로 이어진 느낌마저 들 정도다. 완성된 모습은 멋지지만 건축주는 화이트로 칠하기까지 망설였다.
“3D프로그램으로 봤을 때도 입면이 참 예뻤어요. 시공 중에 화이트 워싱처리 전 루버만 있는 상태가 있었는데, 그것도 나쁘지 않더라고요. 주변에서도 그냥 둬도 괜찮겠다고 하니까요. 그러다가 외관에 루버를 적용하면서 오일스테인을 바르는 등 지속적인 관리를 하기로 결정한 만큼, 건축사의 디자인 감각을 믿기로 했어요. 화이트 워싱 후 실제 모습을 보니 역시 느낌이 다르더군요.”



디테일한 평면과 동선 배치
1층은 상가, 2층과 3층은 임대 세대, 4층은 부모님과 동생이 거주하는 공간이다. 1층은 입구를 후면에 배치해 근린생활시설이 도로에 면하는 면적을 늘리면서 상가 내부에서의 가시성을 높였다. 2층, 3층 임대 세대는 투룸과 쓰리룸으로 평면을 구성했다. 4층은 현관을 기준으로 남서쪽에 동생 방, 북쪽에 주방·식당과 다용도실, 안방을 두고 가장 오래 머무는 거실을 남쪽에 배치했다.
상가주택 특성상 건축면적 외 부분을 주자창으로 사용해 단독주택에서 즐길 수 있는 마당이 없다. 따라서 도심 속 마당 개념으로 다락 일부분을 옥상 테라스로 시공했다.

건축 시작부터 완성까지 원활한 소통이 있었다. 건축주가 의견을 제시하면, 시공사 측은 그 의견을 바탕으로 또다른 의견을 제시하는 식이었다.
“임대 세대 쓰리룸은 아무래도 아이가 있는 가정이 임대할 가능성이 크기 때문에 욕실 두 개가 꼭 필요하다고 해서 넣었어요. 세탁실도 욕실 안에 넣으려 했는데, 설계대표님이 우리나라는 습식으로 사용하기 때문에 관리하기 어렵다는 말을 해주더군요. 제가 외국에 살았던 경험 때문에 건식으로 사용하는 걸 인지하지 못했었죠. 서로 좋은 것을 만들어가려는 협의 과정이 재밌었어요. 아, 설계와 시공을 담당한 ㈜지아이피는 설계를 수정할 때마다 ‘이곳은 냉장고 자리에요’라고 말했었어요. 처음엔 왜 그럴까 싶었는데, 임대할 때 알았어요. 집 구경 온 사람들이 이점을 좋아하더라고요. 제가 놓친 디테일들도 잘 반영해줘서 덕분에 빠르게 임대가 끝났어요.”




4층 이야기는 동생이 거들었다.
“전체적인 동선이 간단해서 좋아요. 제가 주로 사용하는 방이 두 개 붙어있어서 서재와 침실로 쓸 수 있어 편하고, 부모님방과 공용 공간에서 적당히 떨어져 있어 프라이버시가 서로 확보돼 좋습니다. 엘리베이터가 있어 부모님도 오르내리기 편하고요. 무엇보다 옥상을 전부 다락으로 만들지 않고 일부분을 테라스로 만든 게 맘에 듭니다. 텃밭도 가꾸고 차도 마실 수 있는 공간이거든요.”



완성도와 만족도, 그 핵심은 ‘소통’
인터뷰 내내 가족은 집 이야기를 자랑하듯 꺼내며 대화가 끊이지 않았다. 그 속엔 즐거움이 가득해 보였다. 아쉬운 것이 없냐는 물음에 건축주는 “100%는 아니지만 이 정도면 만족스러운 편”이라며, “시공사 측에서 자잘한 것으로 연락해도 싫은 내색 하나 없고, 차일피일 미루는 것 없이 끝까지 책임져주는 모습을 보며 업체를 잘 만났다는 생각이 든다”고 했다.





