
오늘의집에서 두 번째로 소개하는 츄크홈입니다. 삶을 영위하는 주거나 환경의 방식이 바뀐다는 것은 존재의 의미, 시간의 개념, 삶의 가치관까지도 바뀌는 일이란 말을 공감하며 주택살이를 3년째 즐기고 있습니다. 집을 짓고, 가꾸고 살면서 우연한 기회들도 얻게 되고 새로운 도전을 시작하게 해준 계기도, 그 꿈을 펼칠 수 있는 공간이 되기도 합니다.
2020년 11월 14일 새로 지은 집에 입주했었습니다. 집을 짓고 난 직후의 모습은 아주 심플한, 미니멀 그 자체였어요. 지금도 우리 집은 완성이 되지 않았어요. 3년 전 모습은 가장 이상적인 종이를 찾은 후 채우기 전의 도화지였고 지금은 그 도화지에 하나씩 채워가는 중입니다. 2021년 오늘의집 집들이를 했었는데 3년 후 다시 소개하게 되었네요.
저는 살림하기를 무척이나 좋아하는 40대 초반의 워킹맘입니다. 아날로그와 빈티지 물건을 사랑하지만 직업은 최첨단을 다루는 IT 업계에서 UX designer로 일하고 있습니다. 넘치는 에너지를 차분하게 누르고 안온한 삶은 즐기기 위해 취미로 시작한 차명상과 싱잉볼 명상이 부업이 되었어요. 주말에는 Tea & Sound Therapist로도 종종 활동합니다.
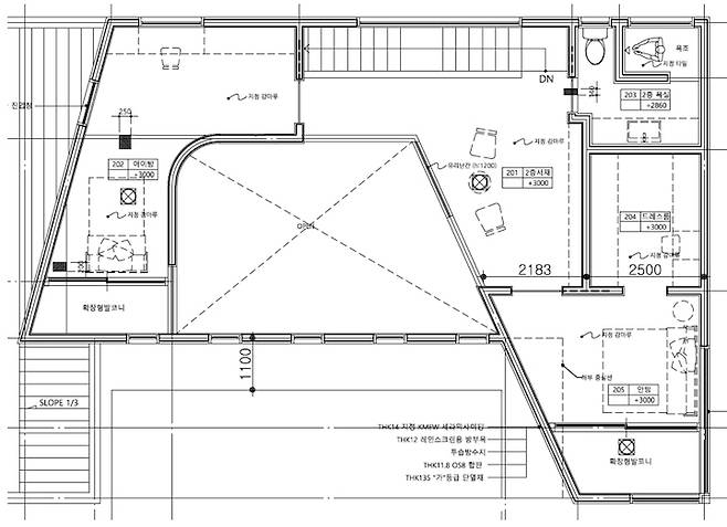
1. 도면

1층 전체에 대한 도면입니다. ㄷ자로 된 남향집에 마당에는 석재 데크, 잔디밭, 조경 그리고 주차장이 있습니다. 주차는 규정상 2대가 들어가야 해요. 이렇게 특이하고 특별한 도면 보셨나요?
집에 세모, 세모, 세모, 곡선, 곡선, 곡선, 집을 짓기 전에는 가구 배치를 어떻게 해야 할지나 데드 스페이스가 많이 생길까 봐 걱정하기도 했는데 정말 쓸 데 없는 걱정이었습니다. 현관을 지나면 욕실, 파우더룸, 게스트룸, 거실, 주방 그리고 다이닝룸이 있습니다.

2층 도면도 정말 특별하죠? 2층에는 아이방, 안방, 욕실, 작은 거실이 있어요. 아이방에는 천장이 있어서 별도 보고 구름도 볼 수 있어요. 아이방은 거의 ㄱ자 구조입니다. 구조가 재미있지만 그만큼 연출하기도 쉽지 않아서 3년이 지난 지금도 미완성입니다. 입구에서 안쪽으로 들어오는 벽체에 라운딩이 더 넓어 보이는 효과를 줍니다.
2. 외관

집 외관의 가장 큰 포인트는 베이지색 세라믹 사이딩 본체에 검은색 스테인리스스틸 루버로 벽과 대문을 마감한 것이에요.

시간마다 빛에 따라 투과되는 면이 달라집니다.

밤이 되어 거실과 1층 화장실 그리고 마당에 조명을 키면 마치 숨어 있던 공간이 보이는 것 같습니다.

남쪽을 향한 집의 얼굴입니다. 일층과 이층을 어색하지 않은 비율로 건축자재와 창을 나누기 위해 고민했어요. 일층은 짙은 톤의 오일스테인으로 칠한 적삼목으로 마감하여 무게를 무겁게 두었고 이층은 베이지 톤의 밝은 세라믹으로 나눠 가벼운 톤으로 답답하지 않은 정돈된 조화의 조형미를 더했습니다.

큰 돌과 제법 키가 큰 왕벚꽃 나무를 왼쪽에 두어 삭막할 수 있는 모던함에 주택의 개성과 스타일을 부여했어요. 정원의 구조, 식물의 선택, 돌과 나무의 조합 등은 주거자의 취향과 가치관을 반영하며, 주택을 더욱 독특하게 만듭니다.
일층의 어두운 적삼목 마감이 왕벚꽃과 잔디가 섬세하게 어우러져, 자연 소재의 따뜻함을 더해 건축물에 모던하면서도 포근한 느낌을 부여하고 있습니다. 주택 디자인에서의 조경은 아주 중요합니다. 절대로 대충 하거나 넘어갈 수 없는 부분이에요. 어떻게 조경으로 마무리하느냐에 따라 집의 퀄리티가 올라가고 내려갑니다.

조경관리는 늘 조금씩 꾸준히 해야 해요. 겨울은 동파의 위험이 있어서 수도를 잠그고 보온을 해줘야 합니다.

나무들 중 추위를 타는 나무들은 잠복소로 둘러 주어야 해요. 그라스류들은 5센티 정도만 남기고 이발을 해줍니다. 봄부터 여름까지는 잡초 관리와 농약을 뿌리고 가을은 낙엽을 모아서 버려야 해요.

오후에 거실에 앉아서 밖을 보면 서쪽에서 해가 깊게 루버문을 통해 들어옵니다. 그 모습이 신비해서 한참을 감상하게 돼요.

외부에서 보면 주차장 루버문과 대문 한 면이 통일되어 보입니다.
3. 거실

집 공간에서 차실과 함께 가장 많은 시간을 보내는 공간인 거실입니다. 주중에는 가족들이 1층 거실에서 시간을 보냅니다. 주말에는 사운드 명상 세션이 있어서 손님들께 내어 드립니다. 퇴근하고 가족이 모두 모였을 때 하루 있었던 이야기를 나누고 일정을 소화한 다음 이층 침실로 올라가서 잠을 자는 게 매일 같은 루틴입니다.
우리 가족은 이 공간에서 딸아이 숙제나 독서도 하고 영화도 함께 봅니다. 반려견 솔이가 공 가지고 신나게 뛰어노는 공간이기도 하지요. 제법 넓은 편이라 우리 딸도 강아지도 뛰어다니며 놀아요. 뛰지 말라는 말을 하지 않아서 참 좋습니다.
주말에는 힐링명상을 하러 오신 분들을 위해 온전히 사용됩니다. 거실에는 작은 대청마루가 있는데 이 공간을 무대처럼 싱잉볼을 연주할 때 씁니다. 예전에는 아이의 무대였는데 지금은 저의 무대가 되었네요.

1층은 거실과 오픈된 주방이 크게 공존하는 공간입니다. 석재와 목재만으로 무게 있는 느낌을 연출했습니다. 트라버틴 원석의 느낌과 톤이 다운된 갈색 오일 스테인으로 모든 목재의 색을 통일했어요. 가구는 블랙톤과 우드 톤으로 밝은 벽과 바닥을 눌러 주어 밸런스를 맞췄습니다.
새집의 느낌이 아니었으면 했기 때문에 자연 트라버틴 패턴과 색 고재 나무의 짙은 갈색으로 맞췄습니다. 되도록이면 원목을 쓰려 노력했고요. 벽체들은 둥글게 라운딩 했어요. 너무 각지고 반듯한 구조보다는 유연하고 비정형스러운 모습을 갖추길 원했습니다.
저희 집은 공간이 네모 반듯한 곳이 화장실 팬트리 현관 빼고는 없습니다. 이런 점이 어느 각도에서 찍어도 재미를 주는 요소가 되었습니다. 라운딩 된 구조가 다양한 모양의 면을 만들어 공간을 더욱 풍부하게 만들어 줍니다. 보이드 공간은 높이가 약 7미터 정도 되는데 높은 천고는 웅장함을 줍니다.

갤러리 같은 집을 소망했기 때문에 거실에서 바랬던 또 다른 로망 중 하나는 높은 천고였어요. 답답함보다는 탁 트인 공간을 원했기 때문에 7미터의 천고 6미터의 통창을 만들었습니다. 아침부터 해가 지기까지 빛의 각도와 모양이 다르게 들어와서 아름답습니다. 지루할 틈이 없어요.

서쪽 갤러리 창은 노을이 질 때 멋진 빛을 만들어 냅니다.

거실 대청마루는 아이의 무대였어요.

지금은 저의 무대로 쓰고 있습니다. 주말 사운드테라피 명상 수업을 진행할 때 싱잉볼들을 연주하는 무대로 쓰이죠.

대청마루 무대에서는 연주를 거실에서는 찾아와 주신 분들이 누울 수 있게 자리를 마련합니다.

명상을 도와주는 디귿집의 한옥 향수를 무척이나 애정입니다. 제가 수업할 때 마무리에 향을 퍼지게 하여 명상 수업을 들으시는 분들께 릴랙스할 수 있게 도와줍니다.

주말에는 싱잉볼 명상 수업이 있기 때문에 크리스탈 싱잉볼과 히말라야 싱잉볼이 늘 대청마루에 연주하기 쉽게 진열되어 있어요. 선반에는 체험할 수 있는 히말라야 싱잉볼과 시향과 판매 가능한 한옥 향수가 있습니다. 고재 오브제들 몇 가지와 연출하니 악기와 향수도 멋진 오브제 같아요.

편한 소파가 거실 한편에 자리하고 있어요. 낮잠에 쉽게 빠질 정도로 너무 폭신합니다.

저녁이 되면 조도를 낮추고 여러 개의 조명으로 따뜻하고 차분한 느낌의 분위기를 연출합니다.

페인팅이 잘 된 흰 벽은 주말에 영화를 볼 수 있는 작은 영화관도 되어줍니다.

집안 곳곳에 재미있는 공간들이 있는데 이 공간은 집중적으로 전시하고 싶은 작품이나 오브제를 진열해 둡니다.

마치 박물관 혹은 갤러리처럼요.
4. 차실

저의 소우주 응집체 같은, 가장 아끼는 공간이 있습니다. 원래 계획했던 공간이 시간이 지나면서 다른 매력을 찾아서 용도가 바뀌었어요. 동양미 물씬 풍기는 목재로 제작한 간살문을 열면 정돈이 잘 된 정원의 청단풍 고목이 커다란 갤러리 창을 통해 보입니다.

이 공간은 찾아온 손님들과 차명상을 하고 차담을 나누고 분위기를 내고 싶은 날은 가족들과 근사한 식사를 하는 곳입니다. 벽 한쪽에 있는 수납장은 결혼생활 동안 모아온 기물들을 정리해 놓았어요.
쇼룸 같은 느낌을 내기 위해서 프레임만 나무고 유리로 제작했습니다. 이곳에 손님이 오면 시간 가는 줄 모르고 대화가 이어져요. 그래서 원래 계획했던 시간들 보다 항상 더 오래 머물다 가십니다. 차 마시는 도구 등 오브제를 효과적으로 보관하고 진열할 수 있게 쇼케이스 같은 수납장을 제작했어요.

집에서 가장 사랑하는 공간입니다. 차를 마시고 일을 하고 가족과 식사도 하는 멀티룸인 셈이지요. 커다란 갤러리창이 계절마다 다른 그림을 만들어 줍니다. 가을에 붉게 물든 단풍이 아름답고 고즈넉한 차경을 만들어 주어요. 주택살이의 큰 행복 중 한 부분입니다. 겨울에 눈 오는 모습이 영화를 보는 것 같은 착각이 듭니다.

가을에는 멋진 단풍이 갤러리창으로 보입니다.

봄과 여름은 풍성한 색을 보여줍니다. 계절이 변하면서 갤러리창의 분위기가 바뀝니다.

비 온 뒤의 모습은 색이 더 뚜렷해지고 선명해져요. 답답한 마음도 상쾌하게 해줍니다.

린넨커튼을 치면 고요하고 편안한 분위기로 바뀝니다. 커튼에 비치는 나무의 모습이 한 폭의 그림 같아요. 바람이 불면 흔들리는 나뭇가지 모습이 더 신비롭습니다.

주말에 분위기를 내고 싶을 때는 이곳에서 식사를 합니다.

마당 정원에서 이 공간을 찍었어요.

정원에서 보면 이렇게 멋진 장면이 탄생해요.

차를 마시기에 더없이 좋은 공간이에요.

가끔은 아이가 팽주가 되어 차를 내어 주기도 합니다.

차를 마시고 명상을 하고 이웃들과 다회를 갖는 시간은 삶은 풍요롭게 해요.

나 자신을 아끼는 방법 중 하나입니다.

특별한 날 분위기를 내서 가족들과 레스토랑을 가지 않아도 집에서도 충분히 기분을 낼 수 있어요.

주방 아일랜드 식탁에서 바라본 모습이에요.

은은한 조명이 간살문을 통해 흘러나오니 차분한 분위기가 완성됩니다.
5. 주방

거실과 같이 이어지는 공간입니다. 개수대 두 곳을 설치했는데 한 곳은 마당을 볼 수 있는 각도로 설계했습니다. 주로 과일이나 야채를 씻고 요리를 준비하면서 거실이나 마당에서 가족들을 볼 수 있습니다. 요리를 하는 개수대는 설거지를 주로 합니다. 개수대의 용도를 요리 전과 후로 나눈 것이지요.

쉽게 쓸 수 없는 블랙 싱크대를 설치했어요. 색상은 지금도 너무 만족하지만 얼룩이 남지 않는 신소재라 하여 시공했는데 얼룩 제조기가 되어버렸어요. 깔끔한 성격에 초반에는 엄청 닦았는데 지금은 그냥 내려놓고 물기만 제거하고 있어요.

자주 쓰는 양념은 꺼내 두지만 모든 라벨을 제거하고 양념통의 색은 맞출 수 있는 것은 맞추려 노력합니다. 자주 쓰는 무쇠솥 두 개 프라이팬 하나는 무겁기 때문에 꺼내 놓습니다.

설거지는 하고 난 후 닦아서 수납장에 그때그때 정리합니다. 그릇은 되도록이면 나와 있지 않게 유지해요. 그때그때 정리하지 않으면 주방은 금방 지저분해 보이기 때문에 가장 많이 정리 정돈하고 치우는 공간입니다. 개수대에는 수세미 하나 주방 비누 하나 솔이 전부에요. 그릇을 널어 놓는 거치대는 사용하지 않습니다.

원석의 느낌을 낸 트라버틴타일로 아일랜드 식탁도 제작했어요.

바닥과 동일한 소재로 마치 바닥에서 뽑아 올린 도형 같은 모양인데 어디에도 없는 디자인이에요.

검정 싱크대에서 이어지는 비정형 모양의 아일랜드 식탁이 모던함을 극대화해 줍니다. 의자는 우리 집 목재 전체 톤과 맞춰서 기민석 작가님께 의뢰하여 제작했어요.

아이와 가끔 요리를 해요. 딸아이는 요리를 무척이나 재미있어 합니다.

8인까지 앉을 수 있게 제작된 아일랜드 식탁 덕에 특별한 날 홈파티를 즐길 수 있어요.
6. 팬트리

무조건 흰색의 수납이 종류별로 용이하게 싱크대 하부장, 맞춤 상부 선반, 모듈 서랍장들을 활용하여 이름표를 붙이고 종류는 아주 많지만 쉽게 찾을 수 있도록 정리했습니다. 아주 다양한 물건을 수납해야 하므로 가장 심플하게 공간을 만들었어요.
각종 잡동사니를 가장 효율적으로 정리할 수 있는 꼭 필요하고 아주 자주 쓰는 공간입니다. 종류 용도별로 작은 공간을 분리했어요. 세탁공간, 저장음식을 두는 공간, 그릇을 보관하는 공간, 각종 툴이나 약을 보관하는 공간, 청소도구를 보관하는 공간으로 작게 많이 분리했어요.

싱크대 수납장을 시공해서 그 안을 분류하여 수납을 했고 아이의 머리핀이나 문구용품 등 아주 작은 물건들을 종류별로 정리하기 위해 무인양품에서 모듈 서랍장을 구입해서 서랍마다 같은 부류의 그룹을 만들어 수납합니다.
7. 게스트룸

일층에 게스트룸이 있어요. 오각형의 방으로 북쪽에 창이 나 있어 어두운 편이지만 아늑한 느낌이 나는 곳입니다. 라운딩이 된 공간의 문을 열고 들어가면 방이 있습니다.

게스트룸을 들어가는 문 앞에 시어머니가 시집올 때 사셨다면 오래된 반닫이장이 있어요. 시댁에서 존재감 없이 있던 가구였는데 우리 집에 잘 어울릴 것 같아서 가져왔는데 제 예상이 맞아서 너무 기뻤던 기억이 납니다.

이제는 제 보물 중 하나가 된 반닫이 장이에요. 역시 아끼는 분청 시리즈들을 진영해 주어 고즈넉함을 더 했습니다. 게스트룸의 웰컴 공간 같은 곳인 셈이죠.

저는 창에도 개성을 주고 싶어서 모든 방의 창의 모양과 크기가 달라요. 게스트 룸은 크기가 작기 때문에 창이 길고 높았으면 해서 바닥이 시작하는 부분부터 창을 내어 방이 더 커 보이는 효과를 주었습니다.

창밖에는 그린라이트를 심어서 마치 정원에 있는 기분을 들게 합니다.
8. 2층 거실

이층 거실은 일층의 보이드 공간에서 보이기 때문에 목재를 적절하게 사용하여 수납장을 제작하고 곳곳에 톤 다운된 일층과 같은 톤의 목재로 마감을 했습니다.

일층 거실에서 이층으로 올라가는 구조가 재미있어요.

이층으로 올라가는 계단, 작은 공간도 평범한 구석 없이 구조가 특별합니다.

고즈넉한 한옥의 느낌이 나는 갤러리 하우스를 생각하고 집을 지었는데 그 느낌이 가장 많이 나는 공간 중 한 곳입니다. 밝은 톤의 면적이 넓다면 꼭 어두운 톤의 좀 더 작은 면적으로 비율을 맞춰야 좀 더 풍부한 공간이 만들어져요.
이층에서 내려다보면 일층의 거실에 들어오는 빛이 더 선명하게 보입니다. 제가 좋아하는 빛의 그림자가 만들어지는 시간 겨울의 오후 2시쯤이에요. 트라버틴의 패턴과 목재의 조합이 아름답습니다.

이곳은 어디일까요? 이층에서 바라본 아이의 방입니다. 아이방에는 비밀스러운 창이 하나 있어요. 저 창에서 일층 거실과 주방이 보입니다.

아이를 재우고 나면 저만의 시간이 생기는데 이층 거실에서 미루었던 영화, 드라마나 책을 읽습니다. 이 시간이 너무 고요하고 행복합니다. 모든 육아맘들이 공감하실 것 같아요.

조명을 활용하면 멋진 분위기를 연출할 수 있어요.

크대 수납장을 시공해서 그 안을 분류하여 수납을 했고 아이의 머리핀이나 문구용품 등 아주 작은 물건들을 종류별로 정리하기 위해 무인양품에서 모듈 서랍장을 구입해서 서랍마다 같은 부류의 그룹을 만들어 수납합니다.
제작한 수납공간은 오브제들을 진열하기 좋습니다. 할머니 댁에서 가져온 오래된 물건을 하나하나 모으고 있어요. 저는 세월의 이야기가 담긴 빈티지 제품을 사랑합니다. 공간도 새 공간보다는 오래된 공간이 좋아요.

오픈 수납장의 경우 잘못 수납하면 정돈이 안 되어 보일 수 있어요. 꼭 필요한 오브제나 물건만 진열합니다. 핀 조명을 설치하여 밤에는 갤러리의 느낌을 더 했습니다.

한국 전통 공예, 문화, 한옥을 좋아해서 그런지 정갈한 느낌의 수납장을 디자인했어요. 간접등을 매립하여 은은한 느낌이 들게 했습니다.
9. 침실

우리 집에서 반듯한 사각형의 방은 없습니다. 심지어 오각형인방, ㄴ자의 방도 있지요. 침실은 한 면이 기울어진 사각형의 방입니다. 베이 윈도우가 있으면 좋겠다고 생각했지만 면적이 안 나와서 베이구조의 창만 만들었어요. 서쪽 창은 해 질 무렵 해가 평온하고 따뜻하게 들어옵니다.
침대가 자리하는 벽면에 직사각형의 긴 창도 만들었어요. 답답한 게 싫어서 창이 많은 방이 되었습니다. 쉼과 독서나 간단한 업무를 볼 수 있는 작은 서재와 함께 하는 침실을 생각해 보았어요.
샤워를 하거나 잠들기 전 가장 창의적이거나 생각이 많은데 자려고 누워있다가 번뜩이는 아이디어를 적거나 서치 하려면 작은 서재가 필요하다고 느꼈어요. 저 혼자 앉아서 책 한 권 필 정도의 아주 작은 책상이면 충분하다고 생각했습니다.

색은 이층도 일층과 통일됩니다. 베이지 톤 바닥, 흰색 벽 그리고 어두운 톤의 우드, 벽면 한쪽은 차가운 페인트 대신 따뜻한 나무 재질이었으면 좋겠다 생각해서 벽 한 면을 어두운 나무로 마감했습니다. 아직은 미완성이라 침대와 아이의 책이 전부인 침실이지만 완성은 2024년 새해의 계획 중 하나입니다.
안방 침실은 아이가 어려서 우리 세 식구가 같이 취침하는 곳입니다.

침실의 벽 한 면은 우리 집 목재로 통일한 톤인 적삼목 어두운 톤으로 마감했어요. 단조로움을 피하고 1층과 통일감을 주기 위해 시공했어요. 갤러리 창은 액자의 역할을 해줍니다.

베이 윈도우를 하고 싶었지만 면적이 나오지 않아서 베이윈도우 느낌의 창을 남쪽과 서쪽으로 크게 냈습니다. 일조량이 풍부해서 따뜻하고 침구가 소독되는 느낌도 들어요.

주말에는 아이가 누워서 간단한 카툰을 보면서 잠들 수 있어요.

저녁에 깨끗한 옷을 입고 누우면 하루 중 가장 편안한 시간이 됩니다. 간접등을 설치해서 잠들기 전은 주로 간접등을 켜고 잠자리를 준비합니다.
10. 아이방

아이방은 ㄱ자 구조입니다. 현재는 미완성이에요. 갤러리 창과 천창으로 낭만을 더 했어요. 아이방의 벽 한채로 일층과 동일한 톤 다운된 나무로 마감하여 통일감을 더하고 무게감을 더해 색의 밸런스를 맞췄습니다.

서쪽 창에서 오후에 해가 따뜻하고 깊게 들어오면 평범하지만 아이에게 그 순간이 행복한 기억으로 남길 소망해 봅니다.

봄에는 키카 큰 왕벚나무가 이층 아이의 갤러리창에 보여요. 그림보다 더 더 멋진 그림을 자연에서 만들어 줍니다.

봄에는 이렇게 감사한 그림을 만들어 줘요. 한참을 보고 있으면 너무 감사하고 행복합니다.

아이방은 종종 제가 사용합니다. 재택을 주 3회 하기 때문에 집안 여기저기 옮겨 다니며 일을 해요. 집중력을 향상시키는 저만의 방법입니다. 일하는 공간을 바꾸면 며칠은 집중이 더 잘 되더라고요.
11. 욕실

건식의 가장 심플하고 청소하기 쉬우며 볕이 잘 들고 통풍이 되는 화장실이었으면 해서 일층과 이층 화장실에는 큰 창이 있습니다. 일층은 샤워를 간단히 할 수 있는 샤워부스와 변기만 있는 공간이고 파우더 룸을 밖으로 뺐어요.
이층은 욕조가 있는데 반신욕을 좋아하는 저를 위한 공간입니다. 큰창으로 반신욕을 하면서 밖의 풍경을 보는 것이 계획이었는데 우리 집을 지을 때만 해도 주변에 집이 없어서 멀리 공원이 보였었어요. 지금은 우리 집을 바라보게 지은 집의 창이 바로 이층 화장실 창으로 보여서 블라인드를 늘 쳐놓게 되어 아쉽습니다.
욕실 도구는 정말 간단하게 두도록 노력합니다. 초반에는 환경도 생각할 겸 비누 하나로 몸도 닦고 머리도 감았는데 살다 보니 샴푸와 비누 정도는 두게 되었어요.

반신욕을 즐길 수 있는 이층 욕실, 작은 타일이 아닌 큰 타일로 줄눈의 수를 줄여 심플한 느낌을 더 했습니다. 우드 톤도 조금 더 밝은 이층 욕실의 세면대와 하부장, 인조대리석 상판을 이음새 없이 하나의 판으로 했습니다.

이층 욕실에서 반신욕을 하면 오른쪽 큰 창으로 밖의 풍경을 감상할 수 있어요. 지금은 이웃집이 있어서 쉽진 않습니다. 목욕용품을 두기보다는 비누 하나로 깔끔하게 유지합니다. 좋은 비누 하나면 다비솝과 샴푸바 기능을 다 할 수 있어요. 환경과 인테리어 둘 다 만족할 수 있어서 좋습니다.

일층은 파우더룸과 샤워룸을 공간을 분리했어요. 파우더룸은 거실 뒤쪽의 공간에 자리합니다.

파우더룸에서 문을 열고 들어오면 변기와 샤워실이 있어요. 라운딩 된 벽이기 때문에 모노 타일을 사용해 멋을 냈습니다. 이층과 마찬가지로 욕실을 가장 깔끔하게 유지하는 방법 중 하나는 욕실용품을 간소화하는 거예요.
이곳도 비누만 있습니다. 물건은 많으면 정리해야 하지만 없으면 노력 없이 깔끔하게 유지되어 너무 좋아요. 미니멀의 가장 큰 미덕 중 하나인 것 같아요.
12. 현관

현관문을 열고 들어오면 라운딩 된 벽과 트라버틴 타일이 이어집니다. 오른쪽으로는 사람 키만큼 큰 통창이 동쪽을 향해 있어요. 아침에는 해가 깊게 현관으로 들어옵니다.
13. Bonus! 주택살이

주택으로 주거 공간이 달라지고 거주의 방식이 달라지면서 자연스럽게 야외에서 즐길 수 있는 활동들을 하게 되었어요. 주말만 되면 여행을 가고 싶었지만 이제는 집에서 할 일이 많아져서 주말이 더 짧게만 느껴집니다.

봄이 되면 아이와 무엇을 심어 기를까 대화를 합니다. 아직 6살이라 아는 채소가 몇 가지 없긴 하지만 작은 텃밭 가꿀 준비를 합니다. 마당에서 가장 많은 시간을 보내는 시기이지요.

여름이 되면 봄에 심었던 호박, 가지, 고추, 토마토 등 이 결실을 맺어요. 아이와 함께 기른 채소나 과일을 함께 수확합니다. 아이가 직접 기른 채소는 평소에 잘 안 먹어도 자연스럽게 잘 먹을 수 있게 됩니다.

마당에서 손쉽게 분갈이도 할 수 있어요.

여름에는 간이 수영장을 펼치고 아이와 물놀이를 즐깁니다.

남편의 취미인 캠핑은 마당에서 자주 할 수 있어서 너무 좋습니다.

친척, 친구들이 놀러 오면 불멍도 같이 하고 바비큐 파티나 군고구마도 구워 먹습니다. 아파트에 사시는 분들은 여행지의 펜션에 오신 것 같다 하며 좋아해 주세요.

동네 길고양이들의 집도 놀이터도 되어주는 마당의 나무들이에요. 새들도 많이 와서 기르고 있는 블루베리나 잔디의 벌레도 잡아먹습니다. 동물 친구들이 놀러 오면 마음이 몽글몽글해져요.

주택살이 전에는 길이나 공원에 있는 나무나 식물의 이름도 계절의 변화도 잘 알지 못했지만 이제는 사계절의 변화를 뚜렷하게 알고 즐길 수 있고 어떤 나무나 꽃들이 우리 주변에 있었는지 알 수 있어요. 3년 전 오늘의집 집들이를 할 때에도 같은 말을 하며 마무리했던 기억이 나네요.
마치며

집은 저에게 소우주 같은 공간입니다. 애정하는 기물들을 갤러리에 온 것처럼 진열하고 배치하면서 힘을 얻습니다. 공간이라는 것은 저에게 아주 많은 영감을 줍니다. 기분, 인생을 대하는 자세의 중심을 잡게 해주는 아주 중요한 공간이지요. 또한 꾸준히 정리하고 청소하고 나의 스타일대로 부지런히 꾸며야 하지만 그 행위 자체가 힐링입니다.
조금씩 다듬어서 내가 원하는 공간을 만드는 작은 소우주 같은 셈이지요. 정리 정돈 청소는 자존감을 높이는 방법 하나라고 어느 책에서 읽었는데 아주 맞는 말 같아요. 매일매일 힐링하고 자존감을 높이는 행위를 할 수 있게 해주는 공간이에요. 내가 노력하는 만큼 결과를 바로 볼 수 있는 점이 매력적입니다.
주택으로 이사 가거나 집을 지을 생각이 있는데 특히 아이가 있는 가정이라면 고민하지 말고 주택살이를 하시라고 권하고 싶습니다. 긴 글과 많은 사진 감상해 주셔서 감사해요. 모두 집이라는 공간을 가꾸고 그 안에서 힐링 받으시길 소망합니다.

