ARCHITECT CORNER

속도와 경쟁, 바이러스로 찌든 도시인이 머리를 식히며 힐링할 수 있는 곳은 어디일까. 바로 자연이다. 그래서 사람들은 바다와 산, 땅과 하늘이 맞닿은 곳을 찾아 나선다. 이런 자연이 선물하는 휴식 공간은 단순하면서 울림은 잔잔하고 깊어야 한다. 파란 하늘과 녹색 언덕이 반기는 이곳에 솟은 원형의 백색 건축물, 겉과 속이 같은 힐링 장소다.
정리 남두진 기자│글 자료 성종합건축사사무소│사진 성종합건축사사무소

대지는 동해 해안선을 따라 등대와 푸른 바다가 보이는 해안도로에 접한다. 소담한 마을을 배경으로 반경 500m 이내에는 부산광역시의 기념물인 ‘죽성리 왜성’과 ‘해송’이 보인다. 그리고 주말이면 관광객이 많이 찾는 드림 세트장인 ‘죽성성당’도 가까이에 있다.

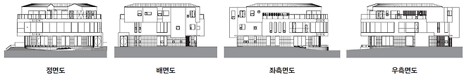
평면 프로그램은 1층과 2층을 근린시설(휴게음식점), 3층을 단독주택으로 구성했다. 건물을 최대한 바다에 가깝게 배치하고 대지 좌측에 차량 진출입구, 우측에 보행자 진입로를 계획했다. 주차장은 배면이며 주택은 별도의 전용 엘리베이터와 계단실을 마련했다.


내부지향형 공간과 외부지향형 공간
평면은 바다 전망이 한눈에 들어오고 강한 바람에 유연한 원형에, 단순 기능 영역은 사각형으로 결합했다. 중정으로 활용하고자 전체 매스의 중심을 도려냈는데 하늘로 열린 이 중정에는 수반에 담긴 물과 금목서 한 그루에 빛과 비 그리고 바람이 찾아들어 보는 이들의 마음을 편안하게 한다.



1층의 바다 전망은 일부 언덕으로 가려져 열림과 닫힘이 반씩 존재하는 반면 2층은 바다와 해안으로 완전하게 열려 뛰어난 조망을 자랑한다. 이런 지형과 조망 조건을 고려해 1층은 중정을 향한 내부지향형, 2층은 탁 트인 바다로 향한 외부지향형 성격을 가진다. 각 층은 순환하는 구조로 어느 층에서나 중정이나 바다를 바라보며 회유할 수 있다.


우리의 전통 건축에서는 자연을 앞마당으로 보고 큰 창호에 그 자연을 담아냈다. 3층 주택의 거실과 주방 그리고 게스트룸은 바다로 배치하고(동적 공간) 방들은 ‘해송’과 ‘죽성리 왜성’이 있는 뒷산으로 배치해(정적 공간) 큰 창호로 이들 자연을 집안으로 끌어들인다.


자연 닮은 형태에 편안한 인테리어
원형의 평면에서는 조망이 파노라마처럼 펼쳐진다. 비바람과 파도에 견딘 자연의 결과물이 곡선을 그리듯 바다에 접한 건축의 형태도 이와 같았으면 했다.
3개 층의 매스는 실린더처럼 층마다 볼륨이 다르다.




특히 1층 휴게음식점 주 출입구를 향해 사선으로 나열된 20개의 백색 열주는 물결의 흐름같이 자연스럽고 역동적이다. 3층 주택 중정 외곽선을 따라 순환하도록 설치한 베란다의 알루미늄 루버는 촘촘한 조형미로 리듬감을 형성한다.

외관 색상은 1층은 짙은 회색, 2층과 3층은 백색의 무채색으로 대비를 줬다. 여기에 자연, 사람, 소품이 색을 더한다. 유리 색상은 중정을 향한 곳은 밝은색이며 바다를 향한 곳은 강한 햇살을 고려한 파란색이다.거실과 주방은 일체화했기에 긴 공간에 막힘이 없다. 실내 마감 재료는 바다의 습한 기후를 고려해 벽과 천장은 도배지로, 일부 벽면은 자작나무 합판으로 마감했다. 색상은 벽과 천장 도배지, 방문을 백색으로 통일하고 바닥은 진한 회색의 마루판이다.



조명 설계는 침실과 화장실 전실에는 간접조명으로 눈의 피로도를 줄이고 거실, 주방, 게스트룸은 간접과 직부 조명을 혼용해 쾌적함이 느껴질 정도의 밝기로 설정했다.
김성곤 건축사는 ‘행복한 삶을 위한 건축’을 화두로 자연과 건축의 관계 맺기 그리고 전통건축의 정신을 현대건축에 접목하는 작업을 통해 아름다운 공간을 만들고자 한다. 단독주택 완공작으로 2016년부터 2023년까지 8년 연속 ‘경상남도 우수주택’에 선정됐으며 창원시건축상, 동래건축상 우수상, 사하건축상 금상, 부산건축대전 완공건축부문 동상 3회(9회, 10회, 13회) 등 다수의 건축상을 수상한 이력이 있다.