
안녕하세요. 저희는 결혼 5년 차 공예가 부부입니다. 그동안 서울에 거주하며 아내는 가구 공방, 저는 가죽 공방을 운영하다가 작년 초에 첫 우리 집을 마련하여 현재는 파주 운정에 있는 타운하우스에 거주하고 있습니다. 단독주택 투자성에 대한 주변의 우려도 있었지만 저희는 아파트의 획일적인 공간보다 독창적이고 특색 있는 공간을 선호했기에 기쁜 마음으로 매매를 결정하였고 2년째 행복한 단독주택 생활을 이어가고 있습니다.
저희 집은 3층 구조로 거실, 주방, 방 3개, 화장실 3개, 테라스, 마당 등으로 구성되어 있습니다.
* 1층 : 거실 + 주방 + 화장실
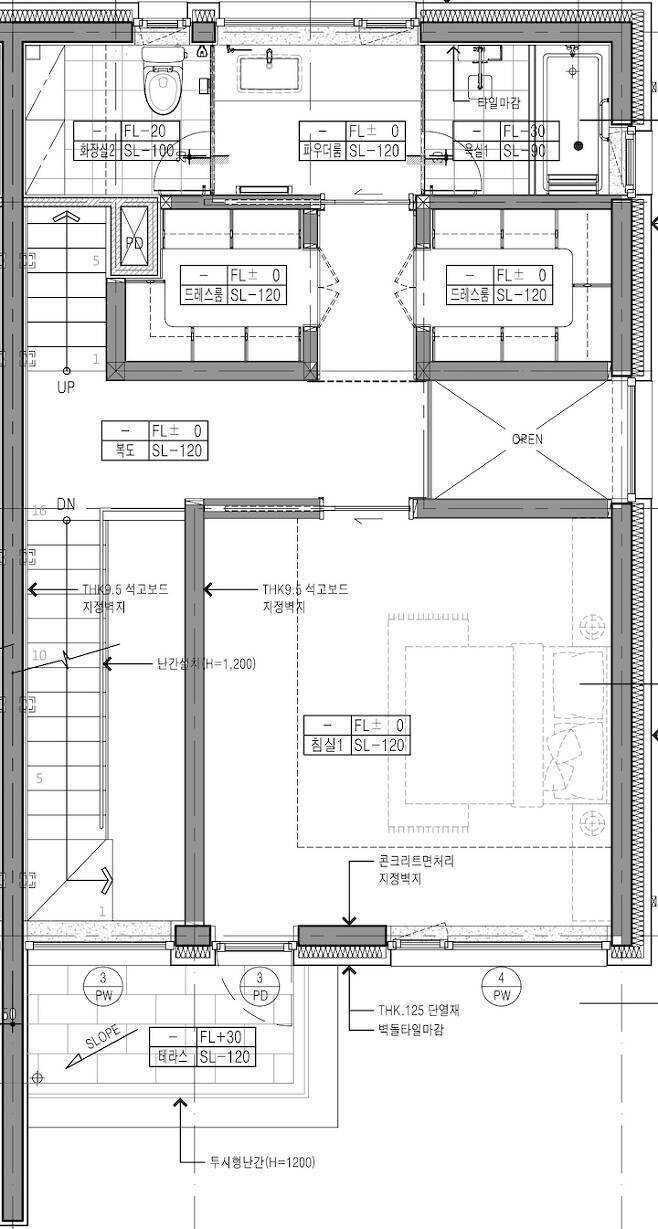
* 2층 : 방 1 + 드레스룸 + 화장실 + 테라스
* 3층 : 방 2, 3 + 가족실 + 화장실 + 테라스
2019년에 준공되어 처음 입주했기 때문에 인테리어 공사는 별도로 하지 않았습니다. 지금부터 층별로 올라가며 저희 집을 소개해 드리도록 하겠습니다.
✔1층, 가장 많은 시간을 보내는 생활공간
도면

저희 부부가 가장 많은 시간을 보내는 1층 공간은 별도의 방 없이 거실과 주방, 화장실로 이루어져 있습니다.
거실

이 집이 마음에 들었던 부분 중 하나가 바로 층별로 화장실이 있다는 점입니다. 화장실을 갈 때 층간 이동을 하지 않아도 되고, 손님의 방문에도 가족의 사적인 생활공간이 보호된다는 점이 좋았습니다.

저희가 첫 입주라 별도 마감공사는 하지 않았기 때문에 인테리어는 가구 스타일링 위주로 했습니다.

아내가 가구 공방을 운영하는 공예가라 집에 있는 거의 모든 목가구는 아내가 직접 디자인하고 제작했습니다. 아내만의 독특한 디자인과 솜씨가 묻어나는 작품이라 더욱 애착을 가지고 소장하고 있습니다.


밝은 조명보다는 은은한 빛을 좋아해서 곳곳에 램프를 배치해두고 활용하는 편입니다.


조명에 관심이 많고 좋아해서 기회가 될 때 하나씩 구매하여 소장하고 있습니다.

아내는 가구 외에도 틈틈이 나무 항아리를 만들기도 하는데 오브제로 아름다워 집안의 곳곳에 배치해 둡니다.

나무 외에도 둥근 형태의 항아리를 좋아해 세라믹 소재의 소품을 이용해 연출하기도 합니다.

가끔은 그림이나 소품의 위치를 바꿔 분위기에 작은 변화를 주는 것도 소소한 즐거움입니다. 결혼 전 아내와 구입한 스페인 화가 Agusil의 orange boy는 저희 부부가 가장 아끼는 소장품입니다. 새롭고 좋은 제품들로 채우는 공간도 좋겠지만 함께한 추억이 깃든 물건들로 우리의 보금자리를 채워가는 과정을 더 가치 있고 소중하게 생각합니다.

거실에는 2층까지 층고가 틔여있는 공간이 두 군데 있습니다. 이 집에서 가장 마음에 들었던 부분이기도 합니다.

첫 번째로는 계단인데요,


현관에서 바로 2층으로 진입할 수 있는 계단 주변 공간의 층고가 높아 거실 전체에 개방감을 줍니다.


다른 한 곳은 거실의 2층까지 길게 이어진 통창입니다. 1층에서 2층까지 뚫려있는 창 주변 공간이 거실의 개방감과 공간적 재미를 더해주는데 이 공간이 집에서 저희가 가장 좋아하는 부분이기도 합니다.
주방
거실과 이어진 주방은 규모는 크지 않지만 집안일에 많은 시간을 할애하기 어려운 맞벌이 부부인 저희에게는 매우 적합한 규모입니다.

거실과 이어진 주방은 규모는 크지 않지만 집안일에 많은 시간을 할애하기 어려운 맞벌이 부부인 저희에게는 매우 적합한 규모입니다.

최근에는 거실과 바로 이어지는 싱크대로의 시선 차단을 위해 싱크대 단부에 공간 분리를 위한 가벽 설치를 고려하고 있습니다.
✔2층, 가장 편안한 둘만의 휴식공간
도면

2층은 오롯이 부부만을 위한 공간으로 침실과 테라스, 드레스룸과 욕실이 있습니다.
침실

화이트 톤의 인테리어를 선호하진 않지만 편안한 분위기를 위해 크림, 베이지, 우드톤의 가구와 소품을 주로 두었습니다.


정남향의 창으로 하루 종일 포근한 햇살이 들어오는 부부의 따뜻한 휴식공간입니다.

아내가 제작한 체어와 달 항아리.

여행을 다니며 구매한 소품을 공간을 위한 오브제로 활용하고 있습니다.

2층에는 두 곳의 드레스룸이 별도로 마련되어 있어 침실에 붙박이장이나 넓은 수납공간을 두지 않아도 되는 부분이 장점입니다.

드레스룸과 이어지는 파우더룸은 샤워실 및 화장실과 분리되어 건식으로 사용할 수 있는 점도 매우 편리합니다.
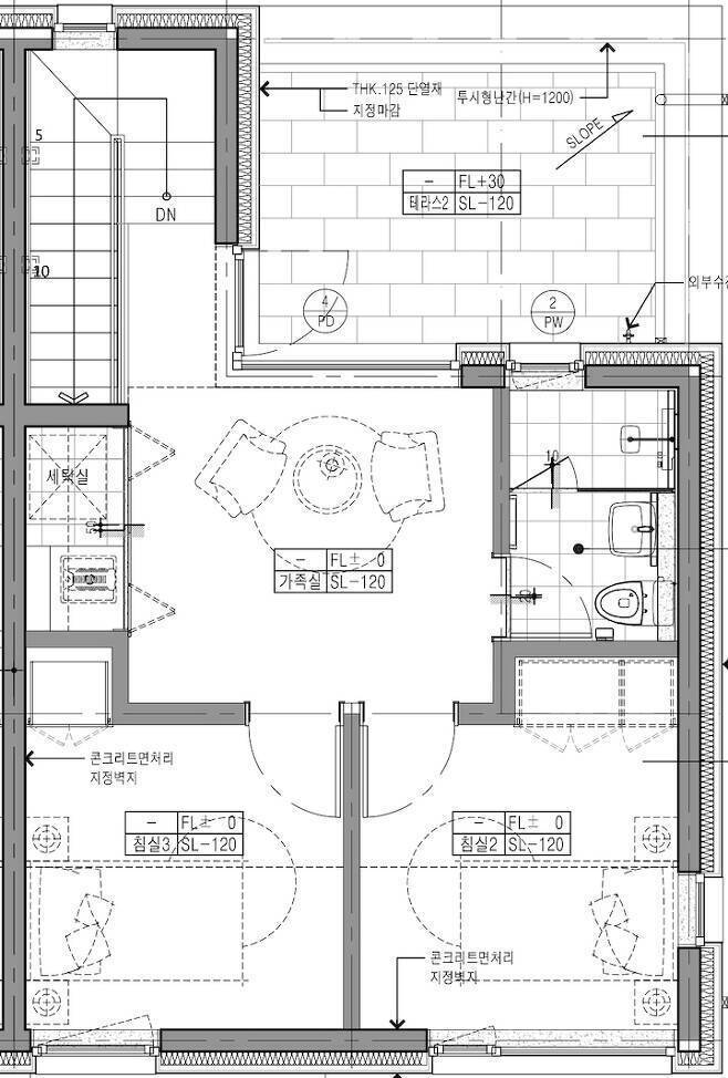
✔3층, 상상력으로 채워 갈 창의적 공간
도면

저희 집에서 3층은 비교적 여백이 많은 공간입니다.


서재와 게스트룸으로 사용하는 공간인데, 구체적인 모습에 대해서는 아직 고민 중입니다.

저와 아내는 물건을 들일 때 매우 신중한 편이고, 공간을 채우기 위한 인테리어는 지양하자는데 공감하기 때문에 사용성과 서로의 취향에 대해 지속적으로 논의하고 있습니다.
✔테라스와 마당

따뜻한 날엔 테라스에서 하늘 풍경을 보며 커피를 마시거나 간단한 식사를 하곤 합니다. 테라스 밖으로 보이는 하늘과 바람이 좋아 부부가 자주 시간을 보내는 곳이기도 합니다.

새로운 보금자리로 이사 온 첫 봄, 앞마당엔 에머랄드그린 아홉 그루와 뒷마당엔 산딸나무 한 그루를 심었습니다.

다행히 생착이 잘 되어 새로운 봄맞이를 기다리는 아이들은 짧은 한 해였지만 자라나는 과정을 지켜보는 일은 저희 부부에게 큰 기쁨이었습니다.

실내생활에 집중하는 아파트나 도심주거지과는 달리 나의 정원과 마당, 테라스, 하늘을 누릴 수 있다는 것이 타운하우스의 가장 큰 매력이라고 생각합니다.
마치며

이사온지 1년의 시간이 지났음에도 아직 정리되지 않은 곳이 많지만 저희 집에 구경하러 와 주셔서 감사합니다. 기대보다 더 여유롭고 특별한 타운하우스 생활 덕분에 더욱 행복한 날들을 보내고 있습니다. 앞으로도 이 공간에서 사랑하는 사람들과의 더 많은 추억과 이야기가 담겨지길 바라봅니다. 출퇴근길에 만나는 선물 같은 하늘을 공유하며 집들이를 마치도록 하겠습니다. 감사합니다.

