
안녕하세요. 거의 10년간 다닌 건설회사를 그만두고, 산 속에서 인생 2막을 시작한 토목과 출신 남편, 건축과 출신 아내입니다.아버님께서 운영하셨던 흑염소 목장을 남편이 이어 받아 목장지기가 되었구요.
산 속에 위치한 자연방목 목장의 관리와 그간 바쁜 회사 생활로 가족과 많은 시간을 보내지 못한 것에 대한 아쉬움으로, 동물 가족들 포함 함께 많은 시간을 보내고자 이곳에 집을 짓게 되었습니다.
그간 장거리 이사도 자주 하며 우리 부부 라이프 스타일에 맞는 집에 대한 갈망이 컸는데, 건축 시공업을 오래 하셨던 아빠 덕분에 잘 실현되어 너무 좋아요.
1. 공사 과정

저희는 조금 독특한 과정과 형태의 공사과정을 거쳤습니다. 오랜 시간동안 건축 시공사를 운영하셨던 아빠 덕분에 직영 스타일의 공사라고 해야할까요. 구조와 내구성은 아빠가 알아서 잘 계획해주셨구요. 저는 디자인 쪽을 직접 아버지 거래처 사장님들께 오더하는 방식으로 진행되었습니다.

그래서 수월하기도 했지만 실용적인 것을 주로 하는 아빠와 디자인을 주로 하는 저와의 의견 충돌도 많았고, 처음 해보는 디렉팅으로 생각했던 것과 다른 결과물이 나와서 아차 싶었던 적도 많았네요. 이래서 집 지으신 분들이 다시 지으면 정말 잘 지을 수 있다고 말씀하시나 봐요.
배치와 구조 (필로티 구조)

저희 대지는 동-서로 길고 폭이 좁은 편의 모양이라 정남향을 원하는 제게 큰 챌린지였어요. 다행히 서쪽의 산 경사를 이용해서 집을 띄우는 (필로티) 설계안이 나왔고, 여러모로 매우 만족하고 있어요. (경사를 이용한 1층은 지하가 되고, 메인 1층이 실제 2층 정도 높이가 됩니다.)
집을 필로티로 띄움으로 더 멋진 전망과 많은 일조량을 얻었구요, 산 속에서 만나는 각종 해충,벌레의 진입으로부터 조금 걱정을 덜었습니다. 마지막으로 제가 가장 걱정했던 부분인외부인의 자유로운(갑작스런) 집 내,외의 진출입이 제어가 가능해져서 너무 만족합니다. 저희가 고양이 가족들과 함께 하기에 외부인이 집으로 드나들 때 아이들이 혹시나 통제 밖으로 나가진 않을까 매우 예민한 편이거든요.
저희 집이 얼마 전 ebs 건축탐구 집 촬영을 하였는데요, 건축사님도 그렇고 피디님, 작가님 모두 시골 산속에 이렇게 필로티로 집을 띄운 집이라니 독특하다고 말씀해주시더라구요. 시골 살이가 처음은 젊은 사람들에게 괜찮은 접근 방법이라고 생각합니다 .

늦여름부터 시작된 골조 공사는 단풍이 가득 물들어 마무리가 되었습니다. 집 공사의 기록을 해두고 싶어 남편은 드론도 구입했다고 해요 ㅋㅋ 저희 집은 지리상으로 읍내보다 추운 편인데다 필로티로 띄웠고, 창도 매우 많은 추위엔 취약한 구조라 아버지께서 단열에 더욱 신경을 많이 쓰셨습니다.
단열재도 거래처 사장님께서 매우 놀라실 정도로 좋은 단열재를 오더하셨구요. 픽스창(알루미늄) 포함 모든 창을 이중창으로 계획하셨답니다.


철근 콘크리트 구조로 이 산속까지 레미콘 차가 들어오느라 고생 좀 했어요. 오랜 시간 동안 아버지 회사에서 계시던 베태랑 소장님과 비록 토목직이지만 건설 회사에서 현장 관리 감독으로 일해오던 남편 덕분에 현장에서 일어나는 모든 일에 대해선 맘을 놓고 있었지요.


2. 외관

외장재는 원래 벽돌로 생각했었는데요. 집을 짓기 시작하며 원자재값이 급 상승하면서 벽돌과 석재의 가격차가 좀 좁혀져 아버지께서 관리가 훨씬 쉬운 석재로 변경하자고 하셨어요.

화이트 계열의 석재를 원했으나, 높은 단가에 무릎 꿇고, 아버지께서 추천해주신 라임스톤 계열의 석재로 선택하였습니다. 시공하고 보니 아버지 말씀처럼 푸릇푸릇한 산 배경과도 제법 잘 어울리네요 ^^
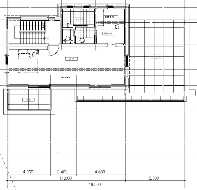
3. 도면
1층 평면

도면에서 조금 수정된 부분들이 있지만 전체적인 틀은 같아요. 저희 집 위 아래층 평면도를 보시면 다른 집들과는 조금 다른 점을 발견하실텐데요. 저희는 방이 많지 않고 거의 큰 원룸형의 평면입니다. 이건 저희 부부의 라이프 스타일에 완벽하게 맞춰진 설계인데요 ^^
아이가 없고 방에서 잠 이외에 별다른 생활을 하지 않는 터라 아파트의 방방방 구조가 맘에 들지 않았거든요. 철저하게 거실형 부부로 심지어 각자 서재를 원하지도 않았어요. 개인 컴퓨터 업무도 거실에서 합니다 ㅎㅎ
그래서 거실을 비교적 넓고 시야가 확 뚫리게 계획했구요. 주방 일을 좋아하기에 주방 일을 하면서도 고양이들이 한눈에 들어올 수 있도록 대면형 주방을 계획했습니다. 주방 옆으로는 한 7년간 베이킹을 하다 이젠 홈베이커가 된 저만의 작업실겸 다용도실을 조금 크게 계획하였습니다.
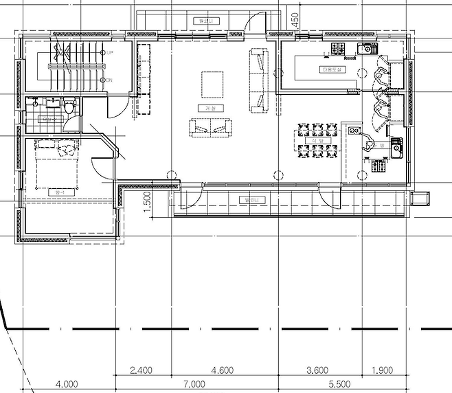
2층 평면

2층도 원룸형의 공간 (부부침실) 입니다.학생 때부터 수도 없이 보았던 주택의 평면에서 2층으로 올라가면 마주하는 가족실이 저에겐 별로 매력적이지 않았어요. 게다가 저희는 합사에 실패한 고양이 두(분?)이 있어 혹시라도 이사 후에도 합사에 실패한다면 층으로 아이들을 분리하려고 마음 먹었기에 계단을 계단실로 따로 분리해서 계획하였습니다.
계단실 덕분에 각층에 중문을 설치하고 2층도 제가 원하는 큰 원룸형의 침실이 탄생되었어요^^ 2층은 저희 부부의 좀더 프라이빗한 공간으로 드레스룸과 욕실도 조금 크게 계획했어요. 그럼 다소 독특한 평면의 저희 집 내부 공간을 자세히 보여드릴게요.
4. 거실


원래 그려진 도면과는 다르게 큰 테이블을 거실 쪽으로 옮겨 배치하곤 저 테이블 위에서 식사 포함 개인 업무와 전 창 밖의 목장 풍경을 보며 염소 멍까지 누리는 등 정말 많은 일들을 하고 있습니다.
테이블은 제가 아주 오래전부터 갖고 싶었던 에로사리넨 디자이너의 테이블로 집을 짓겠다 마음 먹었을 때 가장 먼저 픽한 제품이었어요. 그래서 집의 배치도 테이블이 중심이 되었다 해도 과언이 아니네요. 막상 배송이 왔을 땐 생각보다 더 큰 테이블에 조금 당황했지만 이 곳에서 보내는 시간이 날이 갈수록 늘어나 잘 선택했다 싶어요.

매일 아침 테이블에서 바라보는 풍경이 큰 힘을 준답니다. 산 속 주택으로 이사 후 매일의 하늘이 이렇게 다르고 멋지다는 걸 처음 알게 되었어요. 그리고 저희 집만의 뷰라 할 수 있죠, 산으로 산책 나가는 흑 염소뷰. 일명 흑염소 멍을 때릴 수 있는 공간이랍니다. ㅎㅎ



테이블 옆쪽으로 메인 거실 공간이 있어요. 제가 집을 지을때 제일 먼저 선택한 아이템이 테이블이었다면 남편이 제일 먼저 선택한 아이템은 바로 벽난로 였어요.

아무래도 산 속의 위치한 집이라 겨울이 춥기도 하고, 도시가스가 들어 오질 않아 기름 보일러를 선택한 터라 보조 난방으로 좋을 것 같다는 남편의 생각이었지요. 이사 오기 전과 그 다음 해 기름 값이 거의 두 배로 오른 데다 저희 고양이들이 난로 앞에 있는 걸 너무 좋아해서 잘 선택했다 싶어요.

저희 집 서열 1위 남집사를 제일 좋아하는 고양이는 종종 남편과 이렇게 불멍을 즐기곤 합니다 ㅋㅋ

얼마 전 촬영을 했던 [건축탐구집]에서 보내주셨던 스틸 컷도 난로 앞에서 저희 가족을 잘 표현해준 것 같아 맘에 드네요. 밑의 사진엔 저희 집 난로 앞 붙박이 원, 투 되시겠네요. ㅎㅎ


주택으로 이사를 오니 아무래도 친구들의 방문이 늘어나고 있어요. 이럴때 큰 테이블과 넓은 주방이 한몫을 한답니다.
5. 주방

여러 번의 이사를 통해 주방 일을 즐겨 하는 저에겐 대면형 주방이 잘 맞는다 싶었어요. 그래서 대면형이라는 큰 틀을 계획하고 그 안에 가구 제작이나 가전을 선택하였습니다.

주방 가구를 비롯한 집안의 모든 붙박이 가구는 제작을 하였구요. 주방 가구 중에선 특히 아일랜드 바의 가구를 무늬목 계열의 제가 원하는 디자인 시안을 찾아 가구 회사로 보내드려 원하는 대로 완성되었습니다. 완성하고 보니 제가 선택했던 후드와도 잘 어울려서 주방 쪽을 바라볼 때마다 기분이 좋아지네요 ^^

정남향으로 오전부터 깊게 들어오는 볕을 고양이들이 충분히 받고 즐겼으면 하는 마음에 캣 타워를 이쪽에 두었구요. 가끔 식사 준비할 때 캣타워에 올라간 고양이들이 절 바라보곤 합니다 ^^

대면형 주방에서 전 설거지는 밖을 바라보는 쪽으로 그리고 인덕션은 거실을 바라보는 쪽으로 계획하였는데요. 후드는 배관으로 직접 빠져나가는 걸 선호하다 보니 선택 폭이 많진 않았지만 사진 속 엘리카 후드를 발견하곤 이거다 싶어서 공사 시작과 동시에 독일 직구를 통해 구입해 두었답니다. 디자인도 디자인이지만 성능도 매우 만족하며 잘 사용하고 있어요.

인덕션을 선택할때 사실 성능보다는 고양이들이 밟아도 안전한 제품을 찾다 직관적인 디자인도 맘에 든 스메그 제품으로 선택하였어요. 예상했던 대로 저희 집 호기심 쟁이 고양이가 늘 저렇게 인덕션 위에서 앉아 있네요 ㅎㅎ


제가 좋아하는 일명 설거지 뷰 입니다. 저 뷰를 포기할 수 없어서 상부장을 없애고 창으로 계획했어요. 계절의 변화도 가장 먼저 느끼게 해주는 뷰랍니다. 이곳에서 밥 하면서 기다리는 시간에 바닥에 앉아 밖을 바라보고 있으면 시간 가는 줄 몰라요 ^^



6. 보조주방 & 작업실

보조주방 겸 다용도실인 이곳엔 메인 주방에 부족한 수납공간을 최대한 설계하였고, 싱크대와 작업대를 설치하여 문을 닫고 베이킹을 하는 제 작은 작업실이 되곤 합니다. 물건들이 밖에 나와있는 걸 좋아하지 않는 터라 메인 주방의 비움을 가려진 넓직한 보조주방에서 채워주는 역할을 해서 너무 맘에 들어요.

한켠에는 워시타워와 음식물 처리기가 있어요. 워시타워에도 위, 옆으로 틈새 공간에도 장을 짜두어 세탁에 필요한 세재나 물건들을 수납해서 큰 동선 없이 일 처리할 수 있어요 좋아요. 그리고 제가 이사 후 잘 선택한 제품 중의 하나인 음식물 처리기는 정말 정말 만족하며 사용하고 있어요. 특히 주택 거주자시라면 큰 사이즈로 더 강추합니다.
7. 침실 1

이제 1층에 하나뿐인 방을 소개해드릴게요. 방으로 가기 전 전실의 입구는 이렇게 매일 가볍게 들고 나가는 액세서리를 걸어두기 위해 행잇올을 설치했구요. 계단실 문을 열면 바로 마주하는 벽에는 기분이나 분위기에 따라 그림이나 사진을 바꿔 걸으려고 조명을 미리 계획해 두었습니다. 이사온 지 얼마 되지 않았는데 벌써 두 번째 액자가 걸려져 있네요 ^^

방은 정말 잠만 자는 공간이다 보니 특별히 디테일을 계획한 것은 없구요. 간접 조명과 이불을 수납할 붙박이 장을 계획하였어요.

이 곳은 저희 고양이들이 해가 들 때 낮잠을 자는 공간으로 더 많이 이용되고 있는 것 같네요 ㅎㅎ
8. 1층 테라스

1층에서 마지막으로 소개해드릴 공간은 바로 테라스 입니다. 전원주택을 짓고 살지만 아직은 마당 생활보단 집안 생활이 더 익숙하고 편한 저에게 테라스라는 공간은 정말 힐링제에요. 날 좋은 날 이렇게 나와서 가만히 서 있기만 해도 가슴이 뻥 뚫기고, 요즘엔 볕 좋은 날 아이들 화장실 세척 후 말리기도 하고 빨래도 말리며 애용하고 있습니다.

1층에서 2층으로 올라가 볼게요. 계단실은 페인트 마감을 하였구요. 계단과 바닥 마감은 목공 사장님 추천으로 멀바우 나무로 선택하였어요.
9. 2층 부부침실 & 드레스룸

2층도 방이라고 하기엔 조금 큰 하나의 공간으로 계획하였어요. 보통의 단독주택에서 많이 보아오던 계단이 맞닿은 매개공간이 저에게는 매력적이지 않았거든요.
마침 저희 집은 계단실이 따로 분리되어 있기에 제가 원하는 원룸형의 공간으로 계획이 가능해졌어요. 메인 침실 공간에 포근한 느낌을 주고 싶어서 2층은 1층과는 조금 다른 분위기인 우드 계열을 많이 사용했구요. (광폭 마루 바닥, 우드 포인트 창틀, 우드 실링팬) 가구의 선택에서도 우드톤과 패브릭의 가구들을 선택했어요.

한쪽 면은 포인트로 해주고 싶어서 요리조리 찾아보고 몇 번의 실패에 거쳐 드디어 원하는 대로 완성이 되었답니다. 제가 세세한 자재를 잘 모르다 보니 아무래도 목공 사장님과 커뮤니케이션에 실패했던 것 같아요.
디자인 업체를 끼지 않고 시공하실 땐 디테일한 자재까지 다 공부하시고 오더하셔야 저처럼 시간과 돈이 낭비되지 않으실꺼예요 ^^;;; 결론적으로 제 맘에 쏘옥 들었던 디테일은 벽에 무늬목을 붙여서 오일 스텐을 바른 것이었어요. 목공 사장님이 직접 얇은 무늬목을 다림질로 한 장 한 장 붙여주셨지요 ㅎㅎ

하나의 큰 공간이기에 제가 가구를 요리 조리 옮겨가며 (주특기) 공간의 변화를 주기에도 좋을 것 같아요. 저 포인트 벽이 또 스타일링에 한 몫을 하게 될 것 같구요 ^^
10. 드레스룸

2층은 프라이빗한 공간이기에 드레스룸에 따로 문을 달지 않았어요. 아치형의 통로만 계획했는데 공간의 이동도 용이하고 아치와 안의 조명을 볼 때 기분도 좋아지고 잘한 선택 같아요.

드레스룸 포함, 집안의 모든 붙박이 가구들은 제작하였어요. 2층 화장실의 가구도 제 스타일에 맞춰 수납장 넉넉히 제작했더니 세면대 위에 많이 올려두지 않아도 되고 화장 하며 물건 하나 찾으러 드나들지 않아도 되고 너무 좋아요.
11. 2층 마스터 욕실

2층 화장실은 건식과 습식으로 단차와 벽을 두어 구분하였구요. 반신욕을 즐기는 제가 3년간 코로나로 사우나도 못 가며 집을 지으면 꼭 프리 스탠딩 욕조를 놓을 테다 다짐했고, 설계사님도 우리 소장님도 놀라실 만한 크기의 욕실이 탄생했습니다. 시골로 이사 후 오히려 밖을 나갈 일이 많지 않다보니 집에서 일주일에 한, 두번은 꾸준히 반신욕을 하고 있어요.

욕실 선반에 항상 끼는 물떼와의 싸움에서 너무 질려서 욕조 옆으로는 턱을 만들어(젠다이) 따로 선반을 달지 않고 물건을 올려둘 수 있도록 했어요^^ 건식과 습식 구분을 처음 해보고 사용해보니 이곳에선 씻고 건식 파우더 세면대 앞에서 화장과 머리 손질을 마치고 바로 드레스룸으로 나가 옷을 입는 원웨이가 되니 너무 편리하네요 ^^

화장실 타일은 사진에는 없는 1층 화장실과 같은 타일의 컬러만 다르게 선택했습니다. 1층은 아무래도 공용 화장실에 좁은 편이라 밝은 타일로 선택했구요, 이 곳은 넓고 메인 욕실이기에 무게감 있는 컬러로 선택했어요. 주변에서 너무 어둡지 않냐 우려하셨는데 막상 붙이고 나니 전 오히려 1층보다 더 맘에 드네요 ^^
12. 2층 테라스

마지막으로 소개해드릴 공간은 2층 테라스에요. 앞에서 말씀드린 대로 전 마당 생활보단 테라스 생활을 더 선호하는 편이라 이곳은 차차 더 꾸며갈 계획을 가지고 있어요 ^^ 날 좋은 봄이나 가을에 테라스에 앉아 일광욕할 생각하니 벌써부터 설레네요 ^^

하지만 이사 후 처음 맞은 이번 겨울이 너무나 혹독해서 아직은 이 테라스에서 눈 치운 추억 뿐이라는거요 ㅋ

산 속의 집이라 눈이 많이 왔을 때 불편했지만, 또 저희 집만이 가질 수 있는 풍경과 한템포 쉬어 가는 여유도 가질 수 있어 행복했어요. 확실히 시골살이는 마음가짐이 참 중요한 것 같아요 .(아직 급하디 급한 저에겐 갈 길이 조금 멀지만요 ㅋ)

마치며

특별한 공간에 단순한 듯 ,특별한 구조의 저희 집의 이름은 공간, 呬在 입니다. 그간 너무 바쁘게 직장생활하며 부족하기만한 저희 가족들이 함께 누리는 시간들에 늘 목말라 있었거든요. 인생의 새로운 시작과 함께 저희 라이프 스타일에 맞춰 지어진 이 집에선 천천히 몸과 마음의 휴식을 찾고 싶어요 ^^
아직 정리해야 할 공간들도 많고, 시작도 못한 야외 공간처럼 미처 소개해드리지 못한 미완성의 공간들도 나중에 기회되면 소개해드릴게요. 긴 글 읽어주셔서 감사합니다. 앞으로 저희 공간, 희재의 변화되는 모습도 기대해주세요 ^^

