고덕 상가주택 JTOPIA II
건축환경은 어려워지고, 임대 경쟁은 더 치열해지는 요즘.
합리적인 건축에 효율적인 관리,
그리고 남들과 차별화되는 디자인으로 무장한 상가주택을 만나본다.


비슷한 건물 사이에서 차별화된 존재감을 내는 상가 다가구주택
거대한 반도체 공장이 지어지고 있어 수많은 사람이 모이는 평택 고덕지구. 하루가 다르게 들어서는 상가주택의 행렬 속에 한 주택이 눈에 띈다. ‘JTOPIA II’로 명명된 상가·다가구주택이다.
주택의 외장재로 적용된 단일한 붉은 컬러의 벽돌 타일은 다양한 소재로 어수선한 다른 건물과 비교해 심플하지만, 눈에 띈다. 박공과 테라스, 그리고 안으로 셋백(Set Back)된 1층은 건폐율 확보 때문에 단조롭기 쉬운 매스에 변화를 주고, 다양한 모양과 크기의 창호는 전면에 독특한 리듬감을 자아낸다. 도시에 녹아들면서도 시인성이 확보되어야 하는 상가주택의 미덕에 충실하다.
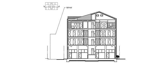
SECTION



중앙의 공동 현관을 통해 안으로 들어서면 계단실을 따라 다섯 세대를 만나게 된다. 2층과 3층에는 임대 4세대가, 4층에는 다락까지 한꺼번에 쓰는 메인 세대가 자리해 있다. 임대 세대는 방 3개의 아파트 스타일의 도면을 적용해 개인부터 가족 단위까지 다양한 구성원의 예비 세입자에게 다가갈 수 있도록 했고, 메인 세대는 자칫 부족할 수 있는 외부공간을 세 개의 테라스로 확보하는 등 수익과 단독주택 생활 모두를 누리고자 하는 수요에 부응했다.
PLAN



수익성과 가치를 떠받치는 정확한 시공과 자재
상가 다가구 주택의 수익성이라는 질문에 어떤 이는 많은 세대를 싸게 지어 임대하는 것이 답이라고 한다. 하지만, JTOPIA II를 기획·시공한 제이콘종합건설의 황소진 대표는 “아니”라고 단언한다. 그는 하자를 유발할 수 있는 무리한 비용 절감보다 ‘건축물의 성능과 품질 확보’와 ‘유지관리 소요 절감’ 두 가지를 강조했다.
시공 품질과 관련해서 프로젝트는 단열과 기밀, 방수에 초점이 맞춰졌다. 창호는 전부 독일식 시스템창호를 적용해 에너지 효율을 잡았고, 손은 더 많이 가도 창호는 반드시 원칙대로 마감 및 기밀 처리 완료 후 시공했다. 여기에 전 세대 열회수환기장치를 적용해 철근콘크리트 습기를 관리하고 쾌적도를 높였다.
HOUSE PLAN
대지면적 : 297.6㎡(90.02평)
건물규모 : 지상 4층 + 옥탑층
세대구성 : 상가 2, 주거 임대 4, 주인세대
건축면적 : 177.48㎡(53.68평)
연면적 : 534.13㎡(161.57평)
건폐율 : 59.64%
용적률 : 179.48%
주차대수 : 자주식 6대
최고높이 : 17.3m
구조 : 철근콘크리트 구조
단열재 : 외벽 – 심재 난연성 EPS 단열재(외부) + 열반사단열재 + T35 2종1호 비드법단열재 / 지붕 –T150 경질우레탄폼
외부마감재 : 외벽 – 롱브릭타일 / 지붕 – 컬러강판 돌출이음
창호재 : deceuninck T43 3중 유리, 149㎜(L/S), 80㎜(T/T)(에너지 등급 1등급, 열관류율 : 0.688㎡K/W)
열회수환기장치 : 힘펠 HDR EP150IBSN
에너지원 : 도시가스
전기·기계 : 태양전설
설비 : 동명설비
구조설계 : 금나구조사무소
감리 : 수정건축사사무소
설계 : 토토건축사사무소
시공 : ㈜제이콘종합건설 032-567-1610 www.jconhousing.com



유지 관리에서는 외부 테라스에 페데스탈 시스템 데크를 설치하는 방식으로 누수 가능성에 대응했다. 실내에서는 가격 대비 내구성이 우수하면서 시공과 관리가 편리한 SPC 마루를 적용했고, 고장이 빈번한 일반 가구 대신 드레스룸처럼 시스템 장을 넣었다. 계단실 탄성 미장 마감재도 크랙 발생으로 인한 관리 비용을 줄이는 방책이었다.
건축비는 주변 현장보다 다소 높아졌지만, 황 대표는 걱정하지 않는다. 그로 인해 하자와 분쟁 가능성을 줄이는 만큼 근래 건축물 품질에 대한 논란이 연일 뉴스가 되는 요즘, JTOPIA II의 메시지가 더 깊게 다가오는 이유다.
INTERIOR SOURCE
욕실 및 주방 타일 : 국산타일(코아스)
수전 등 욕실기기 : 국산 위생기구
주방 가구 : 한샘
조명 : 공간조명
계단재·난간 : 원형 철재계단
현관문 : 성우스타게이트(내화, 단열 인정서)
중문 : ALUM. 3연동 도어
방문 : 우딘도어
붙박이장 : 시스템장
데크재 : 페데스탈 시스템 위 T20 포세린 타일



기획_ 신기영 | 사진_ 변종석
ⓒ 월간 전원속의 내집 2023년 11월호 / Vol.297 www.uujj.co.kr