
기연가
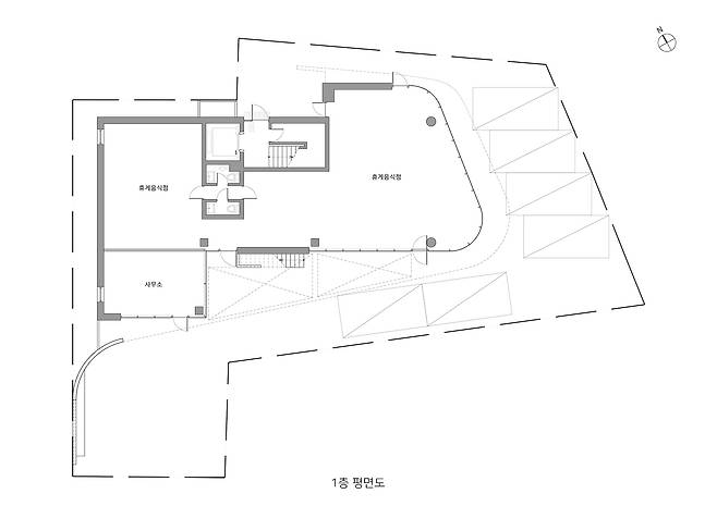
태생적으로 그 구성이 이율배반적인 상가주택. 집은 가족에게만 특별한 장소인 반면, 상가는 존재 가치를 증명하기 위해 낯선 이를 끌어들여야 한다. 건축가는 주택인지 상가인지 ‘긴가민가’한 모호성을 통해 방문자의 경계심을 풀어주고자 했다.
도로에 좁게 면하고, 깊어질수록 넓어지는 대지. 차량 접근이 많은 점을 이용해 양방향 입면을 다르게 계획했다. 또한 대지 안쪽까지 이어지는 유연한 곡면으로 건물의 볼륨이 기이한 인상을 만들고 호기심을 자극하길 기대했다.
4층 거주 공간은 중정으로 내밀한 침실과 거실, 주방 영역을 자연스럽게 나눈다. 침실과 이어진 뒷마당은 오롯이 안주인의 장소로, 텃밭과 좋아하는 꽃과 나무로 채워나갈 여지도 두었다. 하지만 이런 마당과 실의 분리는 밖으로 드러나지 않는다. ‘모호함’을 위해 주택도 전체 건물의 모습과 통일성을 유지한다.
집과 상가로 나뉜 기연가가 서로 관계없는 이들이 묶이는 장소가 되길 바란다.
도로에 좁게 면하고, 깊어질수록 넓어지는 대지. 차량 접근이 많은 점을 이용해 양방향 입면을 다르게 계획했다. 또한 대지 안쪽까지 이어지는 유연한 곡면으로 건물의 볼륨이 기이한 인상을 만들고 호기심을 자극하길 기대했다.
4층 거주 공간은 중정으로 내밀한 침실과 거실, 주방 영역을 자연스럽게 나눈다. 침실과 이어진 뒷마당은 오롯이 안주인의 장소로, 텃밭과 좋아하는 꽃과 나무로 채워나갈 여지도 두었다. 하지만 이런 마당과 실의 분리는 밖으로 드러나지 않는다. ‘모호함’을 위해 주택도 전체 건물의 모습과 통일성을 유지한다.
집과 상가로 나뉜 기연가가 서로 관계없는 이들이 묶이는 장소가 되길 바란다.

도로에 좁게 면하고, 깊어질수록 넓어지는 대지. 건축가는 차량 접근이 많은 점을 이용해 양방향 입면을 다르게 계획하면서, 대지 안쪽까지 이어지는 유연한 곡면으로 건물의 볼륨이 기이한 인상을 만들고 호기심을 자극하길 기대했다.







태생적으로 그 구성이 이율배반적 상가주택. 상가 면적이 더 크지만 건축주에게 이곳은 '집'이다. 집은 거주자에게만 장소로서 의미를 가지는 반면, 상가는 낯선 이들이 많이 찾아야 존재 가치가 증명된다. 그렇기에 건축가는 이곳을 찾는 이들이 ‘기연가미연가(긴가민가)’ 하길 바랐다. 모호함이 이 곳을 찾는 이의 경계심을 풀어주길 기대했다.















안주인의 바람대로 마당을 둔 주거 공간. 중정은 자연스럽게 내밀한 침실과 거실, 주방의 영역을 나눠 각각 안채와 사랑채로 기능한다. 하지만 이런 구획이 밖으로 드러나지 않고, 건물의 전체의 통일성을 해치치 않는다.
















건축개요
위치: 경기도 양평군 서종면 문호리 729-2
용도: 근린생활시설, 다가구주택(2가구)
규모: 지상 4층
대지면적: 561.00㎡ (211.14py)
건축면적: 223.89㎡ (41.71py)
연면적: 560.69㎡ (41.71py)
건폐율: 39.91%
용적률: 99.94%
구조: 철근콘크리트
사진: 최진보
시공: (주)에스아이디엔씨
설계: 투닷건축사사무소 주식회사 / 02-6959-1076
──
에이플래폼
대한민국 건축가가 전하는 건축이야기