못내 아쉬움을 남겼던 8년 전 가족의 첫 목조주택 짓기. 그간 못다한 아쉬움과 빛에 대한 갈증을 합리적인 증축으로 채웠다.



합리적인 비용으로 도전하는
새집 같은 리모델링 증축
네 식구의 소중한 보금자리는 8년 전에 지어졌다. 집을 짓는 게 처음이었던 건축주는 보통의 다른 이들처럼 정해진 몇 가지 모델을 바탕으로 시공사를 통해 집을 지었다. 하지만, 이미 정해진 모델에 맞춰 지은 집은 가족이 점점 주택에 익숙해지는 것과 비례해 아쉬움도 커졌다.
8년이 지난 지금은 상황이 많이 달라졌다. 두 아이도 제법 커 공간에 대한 수요가 달라졌고, 마당도 이제는 크게 매력적인 요소가 아니었다. 한때 아파트로의 이사도 생각했지만, 단독주택의 자유를 포기할 수 없었다. 그리고 무엇보다 가족은 ‘누군가의 생각으로 지어진 어두웠던 집’ 대신 ‘우리가 원했던 빛으로 가득 채우는 집’을 바랐다. 철거 후 신축도 옵션이었지만, 예산을 고려해 증축과 리모델링으로 가닥을 잡았다. 가족은 결정을 내리고 건축사사무소를 찾았다. 신축이 아닌 증축이지만, 첫 집짓기에서 한 후회를 두 번 반복하진 않을 생각이었다. 그렇게 시작한 리모델링은 무려 6개월이 걸렸다. 어지간한 신축 주택 공사에 걸릴 기간이었다. 그만큼 가족은 후회 없이 애정을 쏟았고, 동네의 흔하고 어두웠던 집은 이제 유니크하고 빛이 가득한 ‘빛담집’으로 다시 탄생했다.
SECTION



빛담집의 증축 리모델링을 이끈 나우랩 건축사사무소의 최준석, 차현호 소장은 리모델링 설계의 핵심을 ‘기존 집과 새로운 집을 어떻게 연결할 것인지’로 꼽았다. 지어지는 시기가 차이 나는 두 구조체의 물리적인 결합은 필연적으로 단열이나 방수, 마감 등에서 취약점을 드러낼 수밖에 없기 때문이다. 그래도 다행인 것은 기존 집의 구조가 당시 기준으로도 충실하게 지어진 편이어서, 철거 과정에서 발견되는 구조적 변수는 크지 않았다.
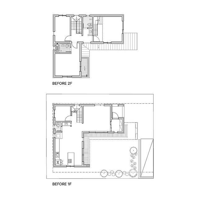
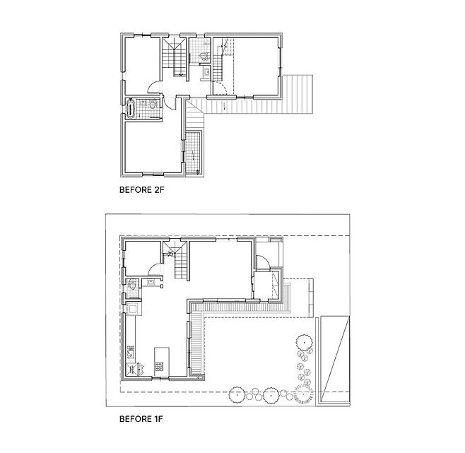
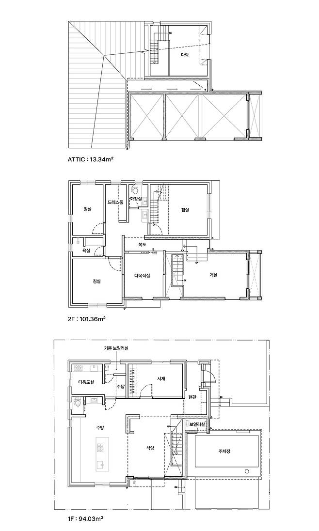
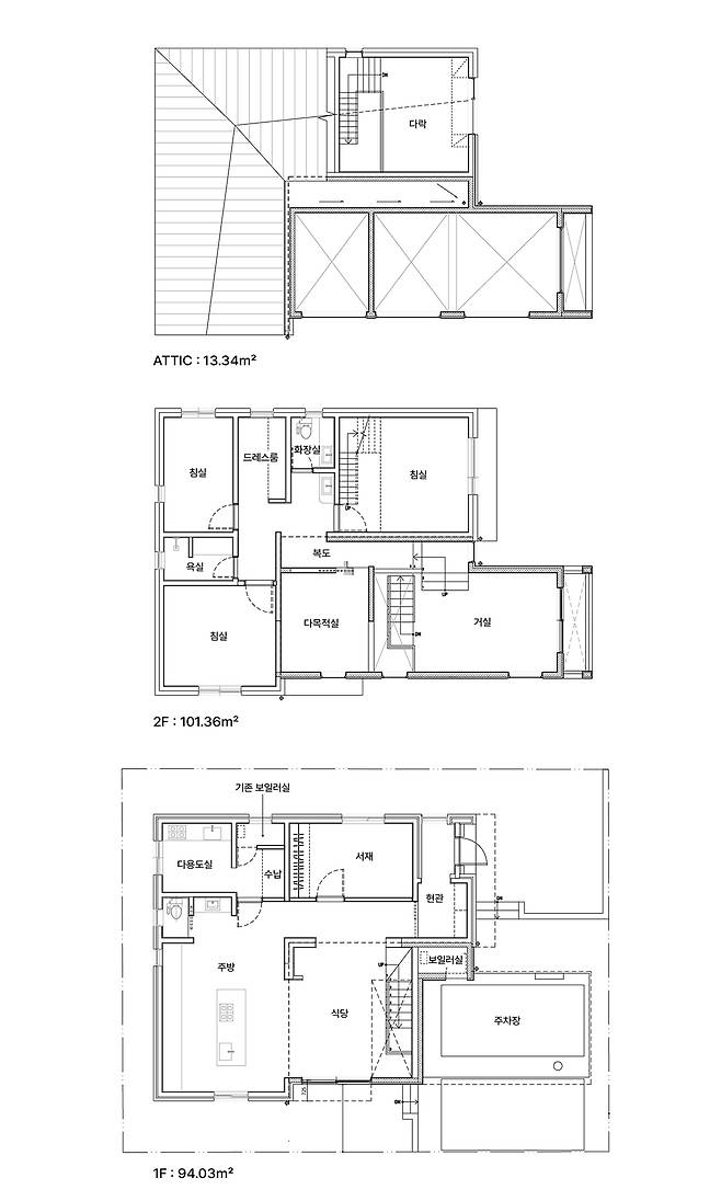
HOUSE PLAN
대지면적 : 229㎡(69.27평)
건물규모 : 지상 2층 거주인원 : 4명(부부 + 자녀2)
건축면적 : 112.10㎡(112.10평)(이전 76.91㎡)
연면적 : 195.39㎡(59.10평)(이전 136.97㎡)
건폐율 : 48.95%(이전 33.59%)
용적률 :85.32%(이전 59.55%)
주차대수 : 2대
최고높이 : 8.8m
구조 : 기초 - 철근콘크리트 매트기초, 철근콘크리트 줄기초 등 / 지상 - 벽.지붕 - 경량목구조 외벽 2×6 구조목+내벽 S.P.F 구조목 / 지붕 - 2×8 구조목
단열재 : 그라스울 24K, 준불연단열재 50~160㎜
외부마감재 : 롱브릭타일
창호재 : 이건창호 pvc 시스템창호
에너지원 : 도시가스
전기·기계·설비 : 정연엔지니어링
구조설계(내진) : 델타구조
시공 : 건축주 직영 + 코비즈종합건설
설계·감리 : 건축사사무소 나우랩 최준석, 차현호
PLAN



프로젝트는 기존 집의 구조를 가능한 살리면서 꼭 필요한 부분만 고치고 덧붙여 효율성을 높이고자 했다. 증축부를 포함해 거실과 식당은 공간이 연결되면서 기존 집의 남측, 동측 벽을 털어내는 등 큰 변화를 줬지만, 침실이나 주방 등에서는 마감재 교체 정도로 정리했다.
한편, 증축부는 마당 자리에 지어지는 만큼 외벽에서 실내공간까지의 거리, 즉 건축물의 뎁스가 깊고 남측이 이웃집에 면해 채광에 불리할 수 있었다. 이는 증축부 거실을 스킵플로어로 반층 올려 높은 천장을 확보하고 동측 전면에 유리블록과 큰 창, 남측의 고측창과 함께 거실과 식당을 공간적으로 연결해 해결했다. 덕분에 집 깊은 곳까지 빛이 들어오며 주택 리모델링의 큰 목표 중 하나였던 전체적으로 밝은 분위기를 끌어갈 수 있었다.
INTERIOR SOURCE
바닥 : 석준타일 수입 포세린 타일(현관 및 전체)
욕실 및 주방 타일 : 석준타일, 인터네셔날타임 포세린타일
수전 등 욕실기기 : 아메리칸스탠다드, 폰타나
주방 가구 : 한솔PET 시에라 월넛(아일랜드 확장) + 롯데로셀린 세라믹 상판 50T, 기존 가구 재사용 + 백조싱크, 팔맥 루멘후드
조명 : 필립스 LED, 인터넷 직구
계단재, 난간 : 오크집성목+노출콘크리트 / 강화유리난간
현관문 : 금샘도어
중문 : 이노핸즈 금속
중문 방문 : 재현하늘창 T유백색 민자도어
인테리어 시공 : 라베디자인



More abour 'bit-dam'




건축주가 제안하는 리모델링 팁
건축주는 리모델링에 대한 팁으로 예산, 자료, 그리고 임시거처 문제를 꼽았다. 첫 번째, 예산. 철거가 수반되는 리모델링 특성상 예상치 못한 변수가 종종 생긴다. 설계에 맞춰 너무 타이트하게 예산을 잡으면 변수에 취약해질 수 있다. 두 번째는 자료다. 처음부터 리모델링을 염두에 두고 신축하는 건축주는 많지 않아 도면 등 자료를 간과하기 쉽다. 도면은 리모델링뿐만 아니라 하자 보수에서도 중요한 역할을 한다. 본인이 리모델링하지 않아도 추후 매도할 때에 도움이 된다. 마지막은 임시거처. 일상이 주택 생활에 맞춰져 있는 상황에서 리모델링을 위해 길지도 짧지도 않은 수개월간 집을 비우는 일은 의외로 어려운 일이다. 가능한 가까운 지역의 1층 주거에 임시거처를 마련해 잦은 이사에 대비하고, 기존 집에 리모델링을 하지 않을(또는 나중에 할) 공간 한두 곳을 임시 보관소로 확보해 옮겨갈 짐을 최소화하는 것도 좋다.
현장 시공 과정

2 증축부 기초에 철근을 배근하고, 기존 기초에 캐미컬 앵커를 설치, 증축부와 기존 기초의 구조적 결합력을 높였다.
3 증축부 1층(1.5층)의 골조를 타설했다. 증축부 높이는 주차장으로서의 높이와 원활한 채광을 위한 높이를 가늠하는 것이 관건이었다.
4 기존 주택의 동측 벽(주방과 마당 사이 벽) 구조를 철거하면서 공학목재(패러램)로 거더(Girder, 큰보)를 시공해 구조를 보강했다.
5 기존 주택 철거 작업을 이어가면서 증축부와 기존 주택을 연결하는 부분의 보강 작업을 진행했다. 2층에서는 기존 캐노피 구조를 거실과 2층을 오가는 복도를 겸해 활용했다.
6 증축부 골조를 완료했다. 골조 일부는 미리 벽체 구조를 만들어서 크레인으로 양중해 설치했다.
7 기존 주택에서 거실로 향하는 계단은 노출콘크리트로 포인트를 주고자 했다. 난방의 경우 기존 난방 시스템과 혼선을 피하기 위해 별도 보일러를 통해 구축했다.
8 증축부에도 단열은 기본이다. 실내가 아닌 새롭게 외기에 닿는 부분인 만큼 단열과 기밀 시공도 그에 맞춰 진행했다.
9 증축부 지붕과 기존 주택의 지붕이 맞닿는 부분은 방수와 배수에 취약할 수 있어, 충분한 너비와 경사를 주어 배수가 원활하게끔 했다.
건축가 최준석, 차현호 : 나우랩 건축사사무소(NAAULAB ARCHITECTS)

room713@naver.com | www.naau.kr
기획 신기영 | 사진 변종석
ⓒ 월간 전원속의 내집 2024년 4월호 / Vol.302 www.uujj.co.kr