집은 가장 나다운 모습으로 최선의 휴식을 취할 수 있는 공간이어야 한다. 끈임없는 고찰로 선택한 ‘집의 사물들’은 고유의 편안하고 개성있는 장면들을 만들어 낸다.


인테리어에서 가장 중요하게 생각한 부분을 묻는 말에 건축주는 쉬이 답하지 못했다. 매 순간 함께 호흡하며 삶을 일구어갈 공간이라는 점에서 우열을 가리기 어려울 만큼 모든 것에 심혈을 기울였기 때문이다. 집을 관통하는 하나의 밑그림은 온전한 휴식이다. 호텔이나 리조트에서 아무것도 하지 않고 쉬는 것이 건축주의 휴식 방법인데, 그 이미지를 집에 구현하고 싶었다. 그리고 건축주의 손과 피부가 직접 닿고 밀착되는 것들, 특히 가구들이 공간에 조화롭게 안착할 수 있도록 세심하게 선택하고 연출했다. 플랫투톡 안지혜 대표는 이를 ‘파니엔테(far niente)’라는 단어로 설명했다. “무위의 행복이라는 이탈리아어로, 이 집을 통해 그 무엇보다 달콤한 게으름에 대해 이야기하고 싶었다”며 이를 ‘집의 사물들’이라는 단어와 연결하여 전개했다고 덧붙였다.



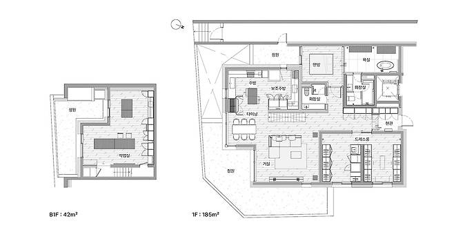
집은 편리한 생활을 위하여 구조 변경이 진행되었다. 우선 정원을 가지고 있다는 장점을 극대화하고자 했다. 기존 안방의 드레스룸을 욕실로 변경하여 ‘야외 뜰-침실-욕실’로 이어지는 쉼의 공간으로 탈바꿈시켰다. 침실보다 더 넓은 욕조 공간에서는 시시각각 변화하는 정원의 풍경을 바라보며 여유로운 반신욕을 즐길 수 있게 되었다.드레스룸은 현관과 가장 가까운 곳으로 이동했다. 패션에 관심이 많은 건축주를 위해 큰 규모의 드레스룸을 계획하게 되었다. 두 개의 방을 통합하여 세면대, 세탁실, 다림질 공간까지 옷과 관련된 모든 과정을 한 번에 해결할 수 있는 만능 공간을 만들었다. 구조 변경에 따라 안방의 욕조 공간과 드레스룸의 급배수 라인 연장이 시공상 하나의 이슈였다.
INTERIOR SOURCE
인테리어 면적 : 지상 1층 - 185㎡(55.96평), 지하 1층 - 42㎡(12.71평)
거주인원 : 부부, 반려견
내부마감재 : 벽·천장 –도장 / 바닥 – 원목마루
욕실 및 주방 타일 : 욕실 – 윤현상재 Moonstone white / 주방 –NUOVO CORSO Travertino white 세라믹 타일
수전 등 욕실기기 : 그로헤 레인샤워 샤워기, 그로헤 세면대 수전, KOHLER 휴지걸이, 아메리칸스탠다드 변기, 로얄앤코 욕조, 더존테크 욕조 수전
주방 가구 :노이키친, 백조싱크
거실 가구 : 제작 TV장, 챕터원 스틸라이프 웻지 라운드 다이닝 테이블, 잭슨카멜레온 4 seater Tartan 소파
조명 : Verpan Fun10DM
중문 : 이노핸즈
붙박이장 : 리브젠, 동남가구 제작가구
인테리어 시공 : 시공사무소
인테리어 설계 : 플랫투톡






디자인 가구 포인트

차(tea) 컬렉션 캐비닛
곡면의 블랙 무늬목 양개문을 열면 내부의 가려한 패턴과 함께 차와 관련된 도구들을 담을 수 있는 비밀스러운 수납공간이 펼쳐진다.

거실의 SCENE
건축주가 오랜 기간 사용해 추억이 담겨 있는 이사무 노구치 커피 테이블과 B&W 스피커는 TV 앞 늘어지는 휴식의 장면을 완성한다.

지하 작업 공간의 포인트
독특한 질감과 동글동글한 형태를 가진 비앤비이탈리아의 카멜레온다 소파. 비비드한 색상이 포인트여서 지하 공간의 포인트 색상과 어울리는 컬러를 선택했다.
지하는 동양화 작업 활동을 하는 건축주의 작업실로 조성되었다. 중앙의 커다란 작업 테이블이 공간의 중심을 잡아주고, 도구들을 닦고 관리할 수 있는 싱크 공간이 한쪽에 마련되어 있다. 1층 주거 공간과 톤이 이어지면서도 동양적 이미지가 어우러지는 공간을 위해 벽면의 제작 가구와 작업 테이블은 동양의 목가구에서 모티브를 가져왔다고 한다.“자기 자신에게 솔직해지세요” 건축주는 인테리어 리모델링을 고민하는 사람들에게 이같이 전했다. 남들에게 보여지는 것 말고, 내가 가장 자연의 모습으로 있을 때 머물고 싶은 공간, 그것을 위해 본인에게 가장 솔직해지는 것이 우선이라고. 이곳, ‘집의 사물들’이 그렇듯 많은 질문을 통해 자신에게 솔직해진 집에는 비교할 수 없는 색채와 스토리들이 가득하다.



PLAN

디자이너 안지혜 : 플랫투톡 스튜디오

플랫투톡이라는 이름은 뜻은 ‘plat : 구획된 작은 땅’과 ‘to talk : 대화, 주고 받는 관계’를 의미한다. 우리는 공간을 구성하는 다양한 요소들이 서로 주고 받는 대화에 집중하며, 빈 캔버스 위 공간 속 대화들을 조율해 최적의 공간 경험을 제공하고자 한다. 동양미래대학교에 출강하면서 실내건축과 설계 스튜디오 수업을 맡고 있다. 비욘드디자인 Beyond design, 스튜디오베이스 studiovase에서 다년간 실무 경험을 쌓았으며, 2023년 플랫투톡 스튜디오를 개소했다.
0507-1310-3162 | http://plattotalk.co.kr
기획 조재희 | 사진 홍기웅ⓒ 월간 전원속의 내집 2024년 11월호 / Vol.309 www.uujj.co.kr