
안녕하세요?! 온실 만들어준다고 남편 꼬셔서 집 지은 아앙입니다. 11년 연애하다 결혼한지 15년. 동갑내기 부부인 저희는 취미와 취향이 참 많이 닮았어요. 식물에 대한 관심은 제가 먼저였던 것 같은데 어느덧 남편이 더한 '식집사'가 되었답니다.
퇴근 후, 집에도 들어가지 않고 막바로 정원부터 가는 게 일상이에요. 식물과 함께일 때 비로소 깊은 숨을 쉬며 편안히 쉴 수 있어요. 온실이 있는, 식물과 함께 사는 집 구경해 보세요.
1. 건물 외관

철근 콘크리트 구조물에 벽돌 마감을 했습니다. 시공과 내부 인테리어를 분리해서 진행했고요. 다행히 정직한 시공소장님을 만났고, 주택에서 살고 계시고 주택 시공 경험이 풍부한 인테리어 실장님을 만나 스트레스 없이 완성할 수 있었습니다.
맘에 드는 땅을 만나기까지 6년. 어쩌면 나들이처럼 땅을 찾아다닌 것 같아요. 그러다 맘에 꼭 드는 땅을 사고 우리의 의견을 적극 반영해 주시는 좋은 건축 설계사님을 만나 8개월 동안 설계의 재미에 푹 빠졌었답니다.

남편은 스케치업 프로그램까지 익히고 둘이서 매일 머리를 맞대고 치열하게 설계했었네요. 설계를 마치고 "우리 참 진상이죠?" 했더니 모든 구조를 다 고민해 보셨으니 후회는 없으실 거라는 설계사님의 말씀. 오래 고민한 만큼 우리 맘에 쏙 드는 집입니다. 좋은 사람들을 만난 것도 집 짓기의 큰 수확 중에 하나였습니다.
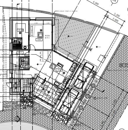
2. 도면
1층 도면

부채꼴 모양의 87평의 땅이라 건물을 앉힐 방향에 고민이 많았어요. 건축 한계선에 딱 맞게 집을 앉히고 마당을 한쪽으로 넓게 빼는 것으로 결정했습니다. 저희 집터는 산 전망이 아름답고, 집 앞과 집 뒤가 공원이라 막히는 곳 없이 탁 트인 것이 장점이라 외부 시선은 필요하면 가릴 생각으로 전망을 최대한 살리는 방향으로 설계했어요.
1층에는 현관과 온실, 주방과 손님용 화장실, 팬트리와 안방이 있어요. 보일러실은 외부에서 들어갈 수 있게 만들어 외부 짐들을 수납할 수 있게 설계했습니다.
2층 도면

2층에는 거실과 아이들방, 화장실과 세탁실, 서재 겸 가족실이 있고 위로 11평 정도의 다락이 있어요. 넓고 트인 공간을 좋아해서 방 욕심을 버리고 넓게 설계했답니다.
주택의 장점은 뭐니 뭐니 해도 우리 가족의 라이프 스타일대로 설계할 수 있다는 점인 듯 해요.
3. 현관

아파트의 빛 한 점 들어오지 않는 어두운 현관이 싫어 집을 지으면 현관을 무조건 밝게 하고 싶었어요. 그래서 현관의 위치를 남쪽으로 하고 현관문도 창이 있는 제품으로 골랐답니다. 조명도 많이 밝혀 늘 환해서 좋아요. 정남향인데다 보일러실 옆이라 보일러 배관이 지나가서 의도하지 않았지만 늘 따뜻하고 보송보송하기도 해요. ^^

연애할 때부터 취미였던 미니 벨로 자전거 두 대에 아이들이 크면서 6학년 생일 선물로 사줬더니 접이식 자전거만 4대인 현관이에요. 자전거를 수납하려고 계획해서 신발장을 많이 위로 띄웠어요.

집에 드나 들면서 온실을 볼 수 있는 재미를 갖고 싶었어요. 너무 마음에 들어 집을 짓기도 전부터 사두었던 펜던트 등도 센서등과 함께 켜져요.

남쪽이 좁은 형태라 현관도 좁은 편인데, 온실 쪽으로 창이 있어서 밝고 답답하지가 않아요. 신발장 맞은 편에도 수납장을 짜서 마스크와 장갑, 우산을 수납했어요. 크리스마스엔 요렇게 꾸며봤고요.

좁은 현관이라 개방감을 살린 중문을 설치했어요. 융 스위치 실버는 일괄 소등 스위치 표시랍니다.

부채꼴 모양 땅에 딱 맞게 두 개의 매스가 벌어져 붙어있는 형태라 모양이 특이합니다. 설계하다 보니 왜 네모난 땅이 좋은지 알겠더라구요. 그렇지만 개성 있고 재미있는 집이 된 것 같아 만족해요.
4. 주방

집에 들어오면 넓은 주방이 먼저 보입니다. 고민이 많았던 주방도 보조 주방 없이 그냥 넓고 시원하게 뺐어요. 주방에서 일하며 마당과 온실을 보고 싶어서 그 부분에 중점을 두었습니다.
상판과 주방 벽은 칸스톤으로 마감했고요. 보이는 대면형 싱크대의 왼쪽 수납장은 얕은 장으로 먹는 약들과 그릇을 수납했어요. 먹는 약을 주방에 보관하면 정수기가 가까워서 아주 편리합니다.
ㄷ자 싱크대 부분인 오른쪽 장은 반대편 수납이 불가능하기 때문에 깊은 장을 짜서 식재료를 넣었습니다.

수전의 위치를 마지막까지 고민하다 온실을 보며 설거지를 하기로 결정하고 배치했어요. 수전 바로 옆에 식기세척기를 설치해야 사용하기 편리하니까 주방이 이렇게 넓어졌네요. 동선이 길어져서 피로할까 걱정했는데 사용해보니 남편과 둘이서 함께 식사 준비하기 아주 좋습니다.

꼭 하고 싶던 한스그로헤 수전도 달았어요. 텃밭에서 키운 쌈 채소들 씻기에 좋아요.

보조 주방이 없기에 수납에 신경을 많이 쓸 수 밖에 없었어요. 인테리어 실장님께 제가 쓰는 모든 가전 모델을 알려드리고 수납 공간을 짰답니다. 대면형 싱크대에는 서랍을 많이 짜서 수납력을 높였어요.

자주 쓰는 주방 용품들은 편하게 꺼내 놓고 쓰고 있어요. 주방 도구들이 다글다글 놓인 풍경도 좋아합니다. 손 닿기 편한 상부장에는 사용 빈도가 높은 컵들과 접시들을 수납했어요.
더 높은 상부장에는 부피가 큰 김치통이나 자주 사용하지 않는 주방 용품들을 수납했고요. 키큰장 안에 콘센트도 달아 소형 가전들을 넣었어요.

오브제처럼 주방을 빛내줄 수 있는 물건을 고르려고 애쓰고 아끼며 오래 쓰려 합니다. 매일 아침이면 15년도 훌쩍 넘은 오래된 티볼리 라디오부터 켜고 커피를 내리고 가벼운 식사를 준비합니다.

꽃을 좋아해서 대면형 주방의 한쪽에 꽂아두고 오가며 들여다 봅니다. 실수로 이가 살짝 나간 커피 드리퍼도 화병으로 써요.

식탁이 있는 공간이에요. 집 짓는 동안 살던 임시 거처에서 식물들이 많이 죽어서 썰렁한 이사 초기 모습이네요. 벽에는 스티키 몬스터랩과 콜라보한 자수 액자를 걸었어요. 남아프리카 나미비아 여성들의 자수 제품을 판매하는 공정무역 제품이에요.
인테리어에 관심이 많은 대부분의 사람들이 그렇듯 저의 사진첩에도 맘에 드는 인테리어 자료 사진으로 가득하답니다. 집 짓기 첫 삽을 뜬 지 얼마 안 되었을 때 백화점에 가구 구경을 갔다가 제 인테리어 자료 사진 속 그 가구를 본 순간 다른 가구들은 눈에 들어오지 않더라구요. 사실 분에 넘치는 소비였으나 겨우 첫 삽을 떴기 때문에 저지를 수 있었던 것 같아요.^^

무토의 펜던트 등도 직구로 사 두었는데 전체적인 분위기를 볼 때 조명은 깔끔하게 가는 게 좋을 것 같다는 인테리어 실장님의 의견을 따라 심플한 조명을 했습니다.
하고 보니 저희 집은 구조도 복잡하고 온실 풍경도 산만한 편이라 심플한 조명이 맞았다는 생각이 들더라구요. 1층의 바닥은 600*1200 타일을 깔고 겨울 아침에 썰렁할까 냉난방 시스템 에어컨을 설치했어요.

점점 정글이 되어가는 식탁 주변이에요.^^ 식사하면서 마당의 식물과 온실의 식물을 모두 보고자 머리를 많이 쓴 식탁 자리예요.
5. 욕실

손님용 화장실 겸 집에 오자마자 손도 씻고 밥 먹기 전 손 씻는 곳입니다. 완벽한 건식 공간이라 벽까지 바닥과 같은 타일로 마감했어요. 대신 거울이 있는 곳은 거친 질감의 포인트 타일을 썼어요.

탑볼은 관리가 불편하다고 인테리어 실장님이 만류하셨지만 손만 씻는 곳이라 괜찮을 듯 싶어 우겨서 설치한 누오보 제품이에요. 역시 제 눈에 너무 예쁩니다.

수전은 윗부분에 물 얼룩 생기는 게 싫어 최대한 얄상한 제품으로 설치했어요. 저희 집은 화장실들이 작은 편이라 손님용 화장실에 수납 공간을 충분히 만들어 욕실 관련 모든 소모품들을 이 곳에 수납하고 있어요.
설계할 때는 상단의 유리 블럭으로 빛이 들어오길 기대했는데 시공하니 서쪽이라 빛이 거의 들어오지 않더라구요. 역시 설계와 현실엔 괴리가 있습니다.
6. 팬트리

1층 팬트리는 계단 아래 공간이라 협소합니다. 좁고 긴 공간이라 맞는 쓰레기통을 찾느라 오늘의집을 얼마나 열심히 팠나 몰라요. 주택은 아파트와 달리 쓰레기 내놓는 날이 정해져 있기 때문에 대용량 쓰레기통이 필수예요.
좁은 공간이라 선반도 많이 튀어나오지 않는 스트링 선반으로 달았어요. 안쪽으로는 꽤 깊은 공간이 있어서 그곳에 캠핑 장비들을 수납하고 있답니다.
7. 침실

나이 들어 계단 오르내리기 힘들까봐 안방을 1층에 배치했어요. 완성하고 나니 사춘기 아이들과 분리되어 생활하는 게 나쁘지 않습니다. 집 전체가 화이트톤인데 안방만은 분위기를 좀 차분하게 했어요.
헤드 레스트가 낮은 침대를 사고 매트리스와 커튼, 침구는 모두 이전에 사용하던 걸 그대로 쓰고 있어요. 협탁을 놓기엔 공간이 애매해서 헤드레스트가 넓어 협탁이 따로 필요하지 않은 침대를 선택했구요.

이 집에서 오래 살게 될텐데 지루해지면 가구 위치를 이리저리 바꿔보고 싶어 침대 자리나 화장대 자리를 정해 놓지 않고 붙박이 가구나 포인트 조명은 최소로 인테리어를 했어요.

구니 오만(Gunni Omann)의 로즈 우드로 만든 덴마크 오리지널 빈티지 사이드 보드를 화장대로 사용하고 있어요.

그동안 하나씩 모은 오브제들이 놓인 창가. 아침에 일어나면 제일 먼저 하는 일이 아름다운 메타세쿼이아 나무들이 보이는 이 북쪽 창의 블라인드를 여는 일이에요.

위쪽이 더 튀어나와 먼지가 쌓이지 않는 투톤으로 인테리어하고 싶었어요. 그런데 생각지도 못한, 가구 선택에서 높이 제약이 생기더라구요. 그래서 침대와 화장대를 고르기가 쉽지 않았어요.

없애버릴까 고민을 엄청나게 많이 했지만 결국 끌고 온 애증의 안마 의자입니다. 사실 퇴근해서 많은 시간을 보내는 곳은 바로 이곳이죠. ^^ 탑다운 허니콤 블라인드를 설치해서 외부 시선은 차단하면서도 뷰는 즐길 수 있도록 했어요.
8. 드레스룸

드레스룸과 욕실로 들어가는 문은 이래요. 빚을 좀 갚고 나면 예쁘고 편안한 라운지 체어나 2인용 소파를 하나 들이고 싶네요.

완전히 오픈된 드레스룸은 정신 없고 다 옷장인 드레스룸은 사용하기 번거로울 것 같아 한쪽은 붙박이장을 설치하고 나머지는 오픈형으로 했어요. 가벽 안쪽엔 스타일러가 있구요. 수납 스툴에 앉아서 양말을 신어요.

드레스룸 문을 열면 세면대는 화장실 앞에 설치해서 출근 준비로 바쁜 아침에 동선이 겹치지 않게 했어요.

샤워 부스와 변기만 있는 작은 욕실이에요. 안방의 차분한 분위기를 연장하고 싶어 어두운 자연석 느낌의 타일을 골랐어요. 서쪽 외벽이라 추울까 봐 휴젠뜨를 설치해서 씻을 때 썰렁하지 않게 하고요.

좁은 욕실이라 최소한의 필요한 것들만 있게 구성했어요. 수납은 세면대 쪽 장이 커서 충분합니다. 아쉬운 부분은 창문이 있어 환하긴 하지만 창을 열고 닫기가 어렵다는 점이에요. 그렇게 많이 다각도로 고민을 해도 이런 허점이 생기네요.
9. 온실

이제 온실을 보여드려요~ 남쪽에 해가 가장 좋은 곳에 온실이 위치해 있답니다. 주방 사이에 온실이라는 공간이 있어서 길 쪽에서 집안을 볼 때 절충 공간이 되어 외부시선 차단 효과가 있어요.
바닥 난방도 했는데 햇살로 워낙 따스해서 보일러가 돌아가는 것 같지가 않아요. 1층의 다른 공간보다 한 단을 낮춰서 만들었고 배수용 긴 트렌치도 달아서 바닥 물청소도 가능하게 설계했어요. 흙을 쓰는 공간인 만큼 오염에 대비해 바닥 타일은 조금 어두운 걸로 깔았습니다.

벽은 물과 오염에 강한 마이크로 시멘트로 마감하고 행잉플랜트와 에어플랜트들을 좋아해서 천정에는 식물을 걸 수 있는 봉을 단단하게 설치했어요. 천장을 비추는 간접등과 레일등으로 밤에도 참 예쁜 온실이에요.

식집사들의 로망 식물 샤워실도 만들었지요. 집이 지어질 때 동네 분들이 저긴 대체 뭐 하는 곳인가 하셨대요. 큰 창이 있는데 샤워실이 있으니 수영장인가 싶으셨다고요. ^^
아파트에서 살 땐 전체 확장형이라 식물 샤워를 시키려면 낑낑대며 욕실로 가져가야 했어요. 욕실은 늘 흙 얼룩으로 지저분했고요. 이젠 진짜 물 주기 너무 편해요.

손잡이도 온실에 어울리게~

햇살을 받으며 식물멍하기 좋아요.

우리 집 다섯번째 식구인 세줄머드터틀 '췌북이' 집도 온실에 있어요. 27도 정도의 수온을 맞춰줘야 해서 따뜻한 온실이 딱입니다.

하루 종일 햇살을 쬔다고 식물에게 좋은 건 아니라서 전동 블라인드를 설치해 정오가 되면 직광을 조절해주고 있어요.
식물에게 바람을 쐬어주면 환기의 효과가 있어 역시 IOT로 제어하기 편한 실링팬을 달아 아침부터 저녁까지는 실링팬이 돌아가게 해 주었고요. 깔끔하고 예쁜 공간이라기 보다는 편안한 취미 공간이자 작업 공간이에요. 식물을 키우는 곳에는 항상 벌레와 걸레가 함께 하거든요.
10. 계단

이제 2층으로 올라가실까요? 현관에 들어와 왼쪽으로는 계단이 있습니다. 창을 두어 채광에 신경을 쓰고요.

계단실을 만드는 건 싫어서 손님용 화장실을 끼고 돌게 만든 계단이에요. 요 유리 블럭이 손님용 화장실 위로 보이던 유리 블럭이에요.

계단이 세 군데로 꺾여있어서 쉬는 곳이 두 군데라 오르내리기 힘들지 않아요. 계단의 가장 윗부분인 이 아래쪽이 1층에서 보여드린 팬트리로 만들어 쓰고 있는 공간이에요.
계단에 설치한 매입 센서등은 정말 추천합니다. 천장에도 조명을 설치하긴 했지만 거의 안 켜게 되네요. 계단은 2층 바닥과 같은 소재로 마감해서 이어지는 느낌을 주었습니다.
11. 2층 거실

뷰가 좋은 2층을 거실로 했어요.

남편의 로망이 온실이라면 저의 로망은 ㄱ자 코너 창과 윈도우 시트였어요. 코너 창의 완성도가 창호 선택의 큰 부분이었답니다.

윈도우 시트로 거실의 주 생활 공간과는 거리가 생겨 외부 시선 신경 안 쓰고 부담 없이 편하게 생활할 수 있어요. 마침 공원에 큰 버드나무가 있어 좀 가려주기도 합니다. 낮에는 집안이 잘 안 보이기도 하고요.

눈이 내리면 이렇습니다. 공원이 내 정원처럼 보입니다. 거실 창에도 전동 블라인드를 설치해서 해가 지면 자동으로 내려오고 아침이면 자동으로 걷히게 설정해 두었어요.

TV는 빛 때문에 시청을 방해 받고 싶지 않아 거실 북쪽 벽에 달았어요. 전에 집에서 거실장 위에 올려두었던 TV인데 이사하고 설치비를 아끼려고 벽걸이 부품을 사서 남편과 함께 팔을 바들바들 떨며 설치했어요. 마음만은 100인치 TV라 100인치로 벽을 파고 설치했답니다. 언젠가 100인치 TV를 다는 날도 오겠지요. ^^

2층은 박공 지붕을 살려 층고가 높습니다. 열리는 창이 적은 대신 층 별로 청정 환기 시스템을 설치했어요.

동쪽의 뷰가 좋아 큰 창을 동쪽으로 내고 오후에 어두울까 걱정이 많았는데 건축사님이 설계해 주신 서쪽의 고창으로 빛이 잘 들어 하루 종일 환한 거실이에요. 소파에 누우면 밤에는 별과 달도 볼 수 있구요. 하자 우려로 천창을 하지 않았는데 그 아쉬움을 충분히 달래주고 있어요.
이사하면서 소파를 바꿀 지 쓰던 걸 그냥 쓸 지 고민이 컸는데 소파처럼 부피가 큰 가구는 아파트와는 달리 이사가 쉽지 않을 것 같아 새로 사게 되었어요.
소파를 보러 다니면서 수많은 소파에 앉아보았는데 이 소파는 저를 포옥 당기더라구요. 고개를 젖혔을 때 목까지 딱 받쳐주는 그 편안함에 반해서 샀네요.^^ 계단을 오르며 유리 난간 너머로 소파의 뒷모습이 보이는데 뒤태가 예뻐야 한다는 조건에도 부합했고요. 전체가 에닐린 가죽인 점도 맘에 들었어요.

고창으로 늦은 오후까지도 직광이 들어 지난 크리스마스엔 이런 홀리한 풍경도 연출 되었어요.

남편이 직접 설치한 시스템 선반에는 여행 자석과 제가 수집하는 예쁜 화병들을 장식해 두었어요.

벽에 선반 다는 걸 반대했었는데 소품을 좋아하는 저는 계절에 따라 이리저리 바꿔보는 재미가 있네요. 제가 뜬 뜨개 액자도 올려두고요.

두 개의 벌어진 매스가 만나는 부자연스런 공간은 팬트리를 만들었어요. 좁은 통로는 싫어 복도를 넓게 뺐습니다. 화장실을 좀 더 키울까 고민도 했지만 넓은 화장실은 청소하기가 힘들어서 딱 아파트 화장실 크기로 만들었어요.
12. 2층 욕실

외벽이 아닌 집 중앙에 있는 욕실이라 늘 따뜻하고 아늑해요. 인테리어를 하면서 인테리어 실장님과 윤현상재를 비롯한 수입 타일 전문업체 쇼룸들을 돌아보면서 제 취향을 확실히 파악하게 되었어요.
텍스처가 다른 비슷한 색의 두 가지 타일을 쓰는 욕실이 맘에 들더라고요. 비용 절감을 위해 포인트가 되는 거친 타일만 수입 타일로 했는데 어울리게 잘 고른 것 같아 볼 때마다 뿌듯합니다. 한정된 예산에서 꼼수를 부린 욕실이에요.

워킹맘으로 큰 집을 관리하려면 청소가 수월해야 해요. 크진 않지만 욕조도 있고 해바라기 수전도 있고 있어야 할 건 다 있어요. ^^

성별이 다른 두 아이가 주로 쓰는 욕실이라 욕실 문 위쪽으로는 유리를 넣어 안에 사람이 있는지 확인할 수 있게 만들었어요.
13. 아이방1

왼손잡이 딸 방과 오른손잡이 아들 방입니다. 완벽한 대칭 구조입니다. 아이들 방은 원래 한쪽 방향으로 경사가 급하고 아주 높은 천장이었는데 인테리어 소장님의 조언대로 층고를 좀 낮추고 박공 천장으로 만들었어요. 아늑하고 귀여워서 맘에 들어요.

왼손잡이 딸 방은 손잡이 위치, 창문 열리는 방향을 왼손잡이가 쓰기 편하게 구상했어요. 가구들은 모두 사용하던 가구들을 그대로 가져와 쓰고 있어요.

집을 지으면 달고 싶었던 커다란 펜던트 조명도 딸 방에 달아줬어요. 커튼도 아파트 딸 방에서 쓰던 걸 달았는데 짧은 길이를 보면 층고가 실감납니다.

박공 천장의 예쁜 모양을 시스템 에어컨으로 망치고 싶지 않아 고민하다 방문 쪽에 시스템 에어컨을 설치했어요. 붙박이장을 충분하게 짜서 이불들도 넣고 잘 쓰고 있습니다.
14. 아이방2

아들 방에는 저와 남편이 서재에서 쓰던 테이블을 두 개 붙여서 넣었습니다. 침대는 아들이 원래 쓰던 침대를 가져왔는데 일부러 고른 것처럼 어울리네요.

서재에서 쓰던 가구도 아들 방에 넣어주었는데 층고가 높아 큰 책장도 무리가 없네요. 집 짓기 마지막엔 자금 때문에 머리가 아픈데 나중에 바꿀 수 있는 건 최대한 소비를 줄이고 가지고 있는 것들의 용도를 바꾸는 등 고민을 많이 했어요.
어울릴까 걱정했는데 취향은 크게 바뀌는 게 아니라서 내가 고른 것들은 다 그럭저럭 어울리게 마련이더라구요.

아들 방 창밖으로 보이는 경치가 참 좋아요.
15. 가족실

아이들 방 앞쪽으로는 가족실을 만들었어요. 서재 겸 작업실이지만 실제 용도는 애들이 할 일 잘 하나 감시하는 자리입니다. ^^

여기서 우쿨렐레 연습도 하고 그림도 그리고 뜨개질도 합니다. 잔소리도 하고요. ^^

신혼 때부터 쓰던 가구들은 대부분 처분했지만 요 책장은 데려와 뜨개장으로 쓰고 있어요. 옆의 문을 열면...
16. 세탁실

세탁실이 나타납니다. 손빨래는 활동량이 많은 아이들 옷이 월등히 많고, TV 보며 빨래를 개고 싶어 세탁실을 2층에 두었어요. 아파트 다용도실이 춥고 을씨년스러웠기에 따뜻하고 아늑한 세탁실을 만들고 싶었어요.
전동 빨래 건조대도 설치하고 손빨래 할 수 있는 싱크볼도 설치했어요. 벽 마감은 온실, 현관과 마찬가지로 마이크로 시멘트로 마감하고 바닥 타일은 2층 화장실과 같은 걸로 했어요. 싱크대 타일은 다행히 아주 조금 들어가는 곳이라 수입 타일을 포인트로 사용했답니다.

세탁실 창은 루바셔터로 열리는 창과 마주해서 통풍을 돕고 환풍기도 설치했어요.
17. 다락방

이제 마지막 공간 다락으로 올라가요. 서쪽 고창은 거실과 다락을 모두 비출 수 있는데 그 앞에 앉을 수 있는 공간을 만들었어요. 여기에 앉아서 해지는 하늘을 멍하니 보기도 하고 다락에 있는 만화책도 읽어요. 집에 손님들이 오면 다락에 몰릴 때가 많은데 이런 여유 있는 공간이 유용하더라구요.

2층 화장실과 세탁실 윗 공간이 다락이에요. 마지막까지 정말 고민이 많았어요. 다락 반대파인 저와 찬성파인 다른 가족 간에 치열한 토론 끝에 만들기로 결정했답니다. 어두울 것을 염려해서 난간은 모두 유리로 해서 채광을 최대한 끌어올 수 있게 시공하였어요.

지붕 라인이 어마어마합니다. 징크 지붕 해주시는 분들도 너무 고생하셨고 라인 조명 때문에 목수 분들도 너무 고생하셨지요. 라인 조명은 시공은 까다로웠지만 천정이 가까운 다락에서는 눈부심이 덜해 좋은 선택이었다고 생각합니다.

다락에서 가족실을 보면 이렇게 보여요. 남쪽 창의 빛을 간접적으로라도 받으려고 유리로 막았어요.

층고가 낮아 보이지만 성인도 서서 충분히 다닐 수 있는 높이입니다. 그래서 지붕 라인이 복잡해졌지요. 계단을 올라오면서도 전혀 불편함이 없습니다.

다락은 놀이 공간으로 꾸몄어요. 어릴 때부터 모은 만화책도 잔뜩 쌓아두고 보드 게임이랑 게임기도 있고요. 지금은 더 큰 TV로 바꾸고 오래된 리듬 게임 세트까지 세팅해두고 주말마다 쿵짝쿵짝 난리입니다.

다락은 여름에 덥기 때문에 에어컨은 필수입니다. 천장이 낮아 에어컨 설치에 고민이 많았어요. 손님이 오면 게스트룸으로 내어줘요. 다락방에서 자 보는 재미는 흔한 경험은 아니기에 다들 좋아합니다. 저도 가끔 낮잠을 청해보는데 의외로 꿀잠이 잘 온답니다.
18. 정원

집 내부는 이제 다 보셨어요. 마지막으로 식물과 함께 사는 집의 정원을 소개합니다. 요즘 매일 아침마다 주방에서 보는 풍경이에요.

눈이 내리던 고요한 밤

정원에 돈 쓸 여력이 남지 않아 모든 시공을 셀프로 했어요. 퇴근 후부터 오밤중까지 힘든 줄 모르고 재미나게 했어요. 벽돌도 누가 공터에 버리고 가 수년 동안 방치된 걸 수레로 실어와서 뒤집어서 깔았답니다. 레이저로 수평도 맞추고 나름 배수도 신경 써서 깔았어요. 덕분에 처음 심었던 나무들은 몇 번을 옮겨 심었나 몰라요.

마당이 있으니 비가 내리는 날엔 온실에 있는 식물들 죄 꺼내 비 보약을 맞춥니다. 아파트에서는 하고 싶어도 할 수 없던 일이죠.

차로 잔디를 실어와 직접 깔았어요. 비닐을 깔았는데도 차가 흙투성이가 되어 카매트도 빨아 담장에 널어 놓은 이 사진을 보면 미소가 지어집니다.

마당에 멋진 돌을 두고 싶어서 사러 갔더니 파레트 단위로 밖에 안 판다고 하셔서 어쩔 수 없이 한 파레트 사고 마당에 쌓인 돌들을 보고 망연자실했던 기억도 웃기고요.

일본 아마존에서 조명도 사 남편이 직접 설치해서 해가 지면 자동으로 불이 들어옵니다.
나무를 샀더니 부산 꼬리풀을 한포트 서비스로 주셨는데 얼마나 퍼지는지... 땅의 힘으로 쑥쑥 자라는 식물들을 보며 마당의 재미에 푹 빠졌네요.

토분과 어울리는 황토벽돌길

밥티시아 그늘에 피터 래빗도 뉘어주고요.

역시나 작은 포트 하나 산 아스타국화는 저리 풍성하게 커서 꽃이 초겨울까지 화사했어요.

한여름 뙤약볕에서 힘든 줄도 모르고 가꾼 정원. 머리카락이 열기에 홀랑 타버릴 정도였지요. 하도 숙이고 일을 해서 얼굴은 하나도 안 탔습니다. 하하

실내에서 잠깐인 꽃이 땅에 심으면 피고 지고 피고 지고 2천원, 3천원에 어마어마한 즐거움을 줍니다.

벌레가 반은 뜯어먹었지만 배추도 키워 국도 끓여 먹었지요. 영롱으로 쌓은 벽돌담 구멍으로 비치는 햇살이 예뻐요.

얼마 전에는 용의 해를 맞아 눈용도 만들었어요.

마치며

"매일 행복하진 않지만 행복한 일은 매일 있어."
곰돌이 푸에 나오는 말처럼 매일 있는 행복을 찾아냅니다. 우리 집의 구석구석에서.

