
평범한 일상 속 마음 한구석에 남을 새로운 경험을 안겨줄 공간. 집을 짓기 전 가볼 만한 숙소, 이번에 소개할 주인공은 경상북도 경주시에 위치한 ‘깃티 경주’다.


모퉁이 땅에 피어난 고요의 쉼터
도로를 따라 횡으로 길게 이어지는 노출콘크리트 벽체가 정갈하고 온화한 분위기를 형성한다. 그 위로 얹힌 깊은 처마의 박공지붕은 시간마다 변화하는 그림자를 그리며 전통 건축에서 느낄 수 있는 여유와 쉼의 이미지를 더한다.
‘깃티’는 모퉁이를 뜻하는 경상남도 방언으로, 스테이가 지어진 대지는 산지에서부터 내려오는 농경지 끝의 모퉁이에 자리 잡고 있다. 네모반듯한 모양은 아니지만 주변의 한옥 마을과 드넓은 농경지, 그리고 진평왕릉이 바로 앞에 있어 평화로운 휴식을 위한 장소로는 제격인 곳이다.
“단순한 지역성에서 벗어나 대지의 형상과 분위기, 주변 건물들로 부터 콘셉트를 도출하고 공감대를 형성하도록 했습니다.”
건축 설계, 감리에서부터 브랜딩과 가구 디자인까지 진행한 ‘스테이 아키텍츠 건축사사무소’는 깃티라는 브랜드 안에서 일관된 언어를 유지하기 위해 경주라는 지역성 속에서도 이곳 모퉁이 대지의 고유한 특성에 더욱 집중했다.
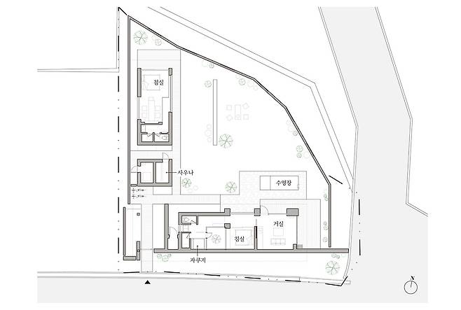
PLAN




SECTION

스테이는 대문 옆 문간채의 역할을 하는 본채와 그 옆의 별채, 두 동으로 구성되어 있다. 두 건물은 대지의 경계에 배치되어 중앙의 정원을 감싸는 모습이다. 건축주는 처음에 단층과 복층으로 구성된 별도의 객실 두 채를 구상했지만, 코로나와 국제 정세로 인해 시공비가 급격히 오르면서 현실적인 방안을 선택해야 했다. 결과적으로 최대 6인이 머물 수 있는 독채 숙소를 완성하게 되었다.
“전통성과 현대성이 조화를 이루는 복합적인 풍경을 만들기 위해 박공지붕과 평지붕, 그리고 철근콘크리트구조와 목구조를 혼합 사용했습니다.”
노출 콘크리트 몸체와 목구조 박공지붕이 조합된 본채에서는 전통적인 아름다움을 느낄 수 있다. 여기에 평지붕으로 완성된 별채가 어우러져 현대적인 건축 감각으로 확장되는 모습을 보여준다. 노출콘크리트는 송판 무늬로 마감해 깃티의 브랜드 이미지를 한 번 더 강조했다.
내부에는 자연의 편안함과 고급스러움을 느낄 수 있는 자재들이 적극적으로 적용되었다. 바닥, 벽, 천장이 모두 목재로 마감되어 깊이 있는 공간감을 형성한다. 나무 판재를 잘라 결 방향대로 붙이는 과정을 통해 목재의 존재감이 더욱 두드러지도록 했다. 습식공간에 사용된 철평석은 목재와 균형을 이루며 시각적 포인트가 되어 준다. 스테이의 정취에 맞게 제작된 가구와 조명 등 작은 요소들은 깃티 고유의 고요한 색깔을 더욱 진하게 물들인다.

House Plan
대지면적 : 521.9㎡(157.87평)
건물규모 : 지상 1층
건축면적 : 93.51㎡(28.29평)
연면적 : 87.3㎡(26.41평)
건폐율 : 17.92%
용적률 : 16.73%
주차대수 : 1대
외부마감재 : 송판거푸집 노출콘크리트, 골강판
내부마감재 : 목재, 철평석
욕실 및 주방 타일 : S&C세라믹
조명 : 제작, 유니오스
현관문·방문·붙박이장 : 제작
데크재 : 방킬라이
조경석 : 마사토
조경 : 건축주 직영
전기·기계 : 세원ENG
구조설계 : SM구조
시공 : ㈜SHnT
설계·감리 : 스테이 아키텍츠 건축사사무소 www.stayarchitects.com

공간의 분위기를 결정하는 조명에 심혈을 기울였다. 특히 거실의 한지 스탠드 조명과 침실의 애벌레 모양 벽등은 전통기법을 현대적으로 해석하는 고소미 작가가 직접 제작했다.

스테이 아키텍츠는 깃티의 감성을 오감으로 느낄 수 있도록 조향 작업도 진행했다.


Interview : 깃티 손기정 대표
경주에 스테이를 짓게 된 계기는
어느 순간, 바쁘게 돌아가는 일상 속에서 자연의 흐름에 맞춰 저만의 리듬을 찾고 싶었어요. 부부가 오롯이 아이를 케어해야 했기에 가족과 함께하면서도 일과 삶의 균형을 지킬 수 있는 구조를 고민하게 되었죠. 신랑의 고향이기도 한 경주에 마침 땅이 있었고, 시간의 유연함이 있는 펜션이라는 형태가 자연스럽게 떠올랐습니다. 경주는 높은 건물이 거의 없고, 자연과 가까운 조용한 도시예요. 아이를 키우기에도, 쉼을 위한 공간을 짓기에도 더없이 좋은 환경이었죠.
스테이의 전체적인 콘셉트는
자연의 흐름과 건축이 절제된 방식으로 어우러지고, 일상과는 다른 공간에 자연스럽게 스며들어 머무는 동안 감각이 섬세하게 깨어나는 공간이 되길 바랐어요. 그래서 블루투스 이외에 빔프로젝터나 TV 같은 영상기기를 비치하지 않았어요. 기능보다는 감정이 머무는 흐름을 먼저 상상했던 것 같아요. 화려하거나 특별한 것이 아닌, 조용하고 단정하지만 깊이 있는 감성. 그것이 깃티가 전하고 싶은 전체적인 분위기입니다.


깃티에서 가장 공들인 포인트 공간이 있다면
본채의 중정은 깃티에서 조용하게 마음을 흔드는 공간이에요. 침실과 자쿠지, 두 공간 사이에 자리한 이 작은 정원은 마음을 주고받는 듯한 인상을 줍니다. 계절의 변화와 시간의 흐름을 가장 섬세하게 담아내는 곳이기도 합니다. 이곳이 깃티가 담고자 한 감성을 가장 잘 보여주는 포인트 공간이라고 생각합니다.
숙소 주변에 가볼 만한 장소는
숙소 바로 앞 진평왕릉은 고목들이 능을 감싸고 있어 고즈넉한 자연을 느낄 수 있는 곳이에요. 벚꽃과 겹벚꽃 명소인 명활성 산책로에서는 여유로운 산책을 즐길 수 있습니다. 숲머리길에는 다양한 식당들이 있는데요, ‘금잔화국수’ 집은 국수와 김밥을 간편하게 드실 수 있고, ‘우마왕’의 경주 한우 물회와 갈비탕도 추천합니다. 마지막으로 ‘아리랑’ 식당은 닭 샤부, 백숙, 녹두죽 코스 요리로 담백하고 건강한 맛이라 부모님과 함께하는 여행이라면 방문해 보시길 추천해 드립니다.
취재_ 조재희 | 사진_ 홍기웅
취재협조_ 깃티 경주 / 인스타그램 gitti_gyeongju
ⓒ월간 전원속의 내집 2025년 5월호 / Vol. 315 www.uujj.co.kr