단독 주택 수요가 증가하면서 모듈러 주택에 대한 관심도 함께 높아지고 있다. 모듈러 주택 공법은 공기를 효과적으로 단축하고, 여러 가지 현장 변수들의 영향을 비교적 적게 받기 때문에 주택 건축에 대한 심리적·경제적 진입 장벽을 낮추어 준다.
GS 건설이 새롭게 설립한 단독 주택 브랜드 ‘자이가이스트(XiGEIST)’는 이러한 흐름 속에서 탄생했다. 시대정신을 뜻하는 독일어 Zeitgeist를 모티브로, 단독 주택에 대한 로망과 공동주택의 편리성을 함께 누릴 수 있도록 GS 건설이 그동안 쌓아온 공간 연출과 인테리어 디자인의 노하우를 단독 주택에 담아낸다. 올해 초 오픈한 충남 당진 공장 샘플하우스에서는 자이가이스트가 설계한 두 가지 타입의 모듈 주택을 둘러볼 수 있으며 현장에서 상담도 진행하고 있다.


“사람과 더불어 환경까지 생각한 선택,
목구조와 Prefab(프리패브) 공법의 만남”
자이가이스트에서 선보이는 주택은 프리패브(Prefab) 공법을 활용한 목조주택이다. 사람과 자연 모두에게 유익하고 지속 가능한 주거 환경을 만들기 위해 나무라는 소재를 선택했다. 목조주택의 장점과 더불어 25년의 사업 경력을 갖춘 폴란드의 ‘단우드’사를 인수해 완성된 프리패브 기술력을 더했다.
WHAT’S Prefab?
프리패브 공법은 프리컷과 패널라이징 공법까지 모두 포함된 방식으로, 주요 골조를 포함한 기본 마감재까지 공장에서 사전 제작하여 진행된다. 공사 기간을 30% 이상 단축하고 이에 따라 비용이 절감되는 특징이 있다. 또한 통제된 환경에서 자동화된 공정을 통해 생산되기 때문에 항상 정밀하고 균일한 품질의 제품을 만들어낸다는 것이 가장 큰 장점이다.
제작 방식에 따라 패널 타입과 볼륨 타입으로 나눌 수 있으며, 볼륨 타입은 모듈 공법이라고도 부른다. 볼륨 타입은 건축물의 구성 요소를 볼륨 단위, 즉 쉽게 말해 하나의 방 단위로 생산하는 방법이고 패널 타입은 벽체 단위로 구성 요소를 생산하는 방법이다. 현재 일반적인 단독주택 의뢰의 경우 모듈 설계가 편리하고 공사 기간 단축에 유리한 볼륨 타입을 중점으로 진행하고 있다.
모듈러주택이라고 하면 모두 비슷한 구조와 디자인으로 이루어진다고 생각하기 쉽다. 자이가이스트의 범용 모듈 설계 시스템은 모든 평형에 적용할 수 있는 범용 모듈을 기반으로 고객의 라이프 스타일과 취향에 맞게 다양한 공간 구성을 연출해낸다. 3×3, 3×6, 3×9로 개발된 50개의 모듈을 조합하는 방식에 따라 무궁무진한 경우의 수가 탄생할 수 있다. 자이가이스트는 이러한 범용 모듈 설계를 통해 탄생한 15개 프로토 타입을 먼저 선보이고, 이미지를 구현하는 3D 컨피규레이터(Configurator) 기술을 통해 고객들이 가상의 설계안을 쉽게 이해할 수 있도록 준비 중이다.
4인 가구를 위한 실용적인 공간 구성,
샘플하우스 Vol. 35


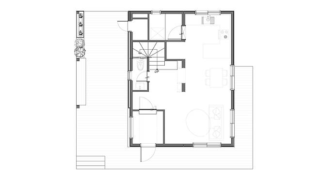
샘플하우스 Vol.35는 범용 모듈을 조합해 완성한 2층 규모의 30평대 모델로, 4인 가구의 라이프 스타일에 최적화된 구성을 제시한다. 크지 않은 규모 안에서 실용적인 공간 활용을 꾀한 Vol.35모델은 1층에 LDK를 일렬로 배치해 탁 트인 공간감을 형성했고, 2층은 개인 공간인 세 개의 방으로 구성했다. 1층의 필로티와 야외 데크, 2층의 야외 테라스 등 주택 생활의 로망을 누릴 수 있는 요소들이 적용되었다.
SECTION


‘북카페’를 콘셉트로 꾸며진 실내는 화이트톤과 따뜻한 원목의 분위기가 만나 전체적으로 안락함이 느껴진다. 현관에는 넉넉한 수납 공간과 편히 앉을 수 있는 벽부형 벤치를 설치해 편리성을 높였고, 투명한 중문을 두어 답답하지 않은 공간을 만들었다. 현관에서 바로 이어지는 거실과 다이닝 공간은 하나로 연계되어 있어 넉넉한 공용 공간을 형성한다.
주방의 조리 공간과 바 테이블 공간을 ㄷ자형으로 연결해 한정된 공간 속 효율적인 동선을 만들었다. 다이닝 공간 옆으로는 야외로 통하는 데크를 적용해 단독주택의 묘미인 야외와의 연결성을 놓치지 않았다. 선반 역할을 겸하는 가벽으로 다이닝 공간과 계단실을 자연스럽게 구분했는데, 계단실 쪽에서는 책장으로 변신한다.계단 옆의 작은 공간에는 단차를 활용한 좌식 공간이 있어 카페에 온 것처럼 아늑한 공간을 즐길 수 있다.


PLAN

1F - 53.44㎡

2F - 65.28㎡
2층은 가족실을 중심으로 안방과 두 개의 멀티룸이 펼쳐진다. 각각 침실로 사용하거나 서재 혹은 공부방으로 활용하기에 부족함이 없다. 계단실의 난간 앞으로는 책을 보관할 수 있는 선반을 만들어 단정한 북카페의 콘셉트가 2층에서도 이어지도록 계획했다. 가족실 앞으로 연결된 넉넉한 야외 테라스 덕분에 공간 전체적으로 개방감이 한층 살아난다. 가족실에서 연결되는 건식 세면대, 그리고 욕실과 별도로 안방에도 화장실이 있어 콤팩트하고 실용적인 공간 설계가 돋보인다.

HOUSE PLAN
건물규모 ≫ 지상 2층
구조 ≫ 경량목구조(S.P.F. 구조목 + 구조용 합판)
단열재 ≫ 그라스울
외부마감재 ≫ 벽 - 락보드패널 + 컬러강판 / 지붕 - 컬러강판
창호재 ≫ 살라만더 시스템창호, Low-E 코팅 3중유리
철물하드웨어 ≫ 심슨스트롱타이
내부마감재 ≫ 실크벽지, SPC 마루
욕실 및 주방 타일 ≫ 유럽산 포세린타일, 국산 타일
주방 가구 ≫ 한샘 유로 100
계단재, 난간 ≫ 화이트 오크 + 금속 난간
현관문 ≫ 성우스타게이트
중문 ≫ 금속 유리 도어
방문 ≫ 영림 여닫이 목도어 H:2200
설계 ≫ 자이가이스트 건축사사무소
샘플하우스 예약 ≫ 02-2154-4311




품격 있는 디자인과 재치 있는 설계,
샘플하우스 Vol. 54


SECTION


50평대 모델인 Vol.54는 조금 더 다채로운 공간 구성을 보여주며 고급스러운 분위기를 자아낸다. 1층은 중정을 중심으로 동선이 돌아가도록 구성되어 공용 공간 어디에서든 야외로 열린 시야를 갖는다. 아일랜드 조리대와 식탁이 일렬로 놓인 다이닝 공간은 양옆으로 큰 창이 열려 있어 시원스러운 분위기와 함께 이국적인 느낌이 물씬 풍긴다. 주방 안쪽으로는 큼지막한 팬트리 공간을 두어 수납 공간을 확보했다.




전체적으로 중후하고 톤다운된 컬러의 마감재를 적용해 차분하고 모던한 인테리어 디자인이 완성되었다. 거실 한쪽 벽에는석재의 질감이 느껴지는 자재를 사용해 인테리어에 포인트를 주었다. 곳곳에 설치된 히든 도어는 품격 있는 디자인의 완성도를 높인다.

1F - 104.77㎡

2F - 76.71㎡
2층은 메인 침실과 멀티룸, 그리고 욕실로 구성되어 있다. 크게 ㄷ자형으로 배치되어 있으며, 메인 침실과 멀티룸은 하나의 테라스로 연결된 구조다. 테라스로 나가면 1층의 중정까지 바라볼 수 있다는 점에서 야외 공간 간의 연계성이 돋보인다. 넓게 조성된 침실 안쪽에는 프라이빗한 드레스룸 공간도 마련되어 있다. 욕실 역시 넉넉한 면적을 할애하고 석재의 고급스러움이 느껴지는 마감재를 적용해 프리미엄 주택의 특성을 한껏 살렸다.



HOUSE PLAN
건물규모 ≫ 지상 2층
구조 ≫ 경량목구조(S.P.F. 구조목 + 구조용 합판)
단열재 ≫ 그라스울 단열재
외부마감재 ≫ 벽 - 락보드패널 / 지붕 - 아스팔트 슁글
창호재 ≫ LX하우시스 수퍼세이브5 이중창, Low-E 코팅 3중유리
철물하드웨어 ≫ 심슨스트롱타이
내부마감재 ≫ 시트판넬 + 실크벽지, SPC 마루
욕실 및 주방 타일 ≫ 유럽산 포세린타일, 락보드 패널
주방 가구 ≫ 한샘 유로 700
계단재, 난간 ≫ 화이트 오크 + 금속 난간
현관문 ≫ 성우스타게이트
중문 ≫ 금속 유리 도어
설계 ≫ 자이가이스트 건축사사무소
샘플하우스 예약 ≫ 02-2154-4311
WHAT’S NOW
단독주택 산업의 새로운 패러다임을 여는 자이가이스트는 본격적으로 상품 런칭하기 전, 단기간 프리마케팅 프로모션을 진행하고 있다. 자세한 내용과 상담 진행은 전화 문의를 통해 확인할 수 있다.
자이가이스트 XiGEIST
상담문의 : 02-2154-4311
웹사이트 : www.xigeist.com
취재_ 조재희 | 사진_ 변종석, 브랜드 제공
ⓒ 월간 전원속의 내집 www.uujj.co.kr