자연을 품은 집
건너편 산을 향해 열린 집은 넓은 마당과 정원으로 둘러싸여 있다.
집 안 어디에서든 마당을 감상할 수 있도록 동선과 창의 배치를 계획했다.
데크와 연결된 선룸, 그리고 쪽마루를 통해 시시각각 변하는 정원의 모습을 담는다.



마당을 따라 걷는 듯
자연스럽게 연결된 실내 동선과 창의 배치
전기공사업을 운영하는 건축주 부부는 사무실을 지을 땅을 보던 중 지금의 대지를 만났다. 사무실만 짓기에는 면적이 너무 넓어 고민 끝에 하나의 대지 위 가족이 함께 살 주택을 같이 건축하기로 했다. 원래 대지에 존재했던 높이 차이를 이용해 업무시설과 주거시설의 동선이 분리될 수 있도록 두 건물의 배치를 계획했다.


SECTION

설계를 진행한 웰하우스종합건축사사무소는 자연과 정원의 풍경을 내부와 외부에서 자연스럽게 보여주고, 자연이 주는 에너지를 충분히 만끽할 수 있는 것에 주안점을 두었다. 높은 대지에 위치해 유리한 조건을 지닌 주택은 건너편의 산세를 마음껏 감상할 수 있도록 방향을 잡고, 앞쪽에 넓은 마당을 조성했다. 양방향 중정형 구조의 집은 내부 공간 어디에서나 마당을 통해 드넓게 펼쳐진 자연을 조망하도록 정원의 형태를 구성했다. 특히 집의 중앙에 자리한 선룸은 외부와 내부의 연결을 한층 확장해 주는 역할을 한다. 선룸 중앙에 큰 테이블을 두고 손님이 오거나 가족끼리 특별한 식사 시간을 갖고 싶을 때 애용한다. 선룸 폴딩 도어를 모두 열면 부정형의 현무암 테라스로 공간이 이어져 새로운 분위기를 만든다.
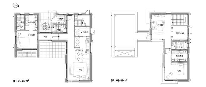
HOUSE PLAN
대지면적 : 1,101.00㎡(333.05평)
건물규모 : 지하 1층(주차장), 지상 2층
거주인원 : 3명(부부, 자녀 1)
건축면적 : 101.81㎡(30.80평)
연면적 : 169.78㎡(51.36평)
건폐율 : 10.07%
용적률 : 16.79%
주차대수 : 2대
최고높이 : 7.60m
구조 : 기초 – 철근콘크리트 매트기초 / 지상 –철근콘크리트 벽식구조
단열재 : 벽 – 비드법보온판 2종2호 190mm / 지붕 – 비드법보온판 2종2호 220mm
외부마감재 : 벽 – 디자인벽돌 / 지붕 –컬러강판
담장재 : 견출방식 노출콘크리트
창호재 : LX하우시스 TT–31mm 삼중 로이유리, LS–39mm 삼중 로이유리
에너지원 : 신재생에너지원 물-물 지열원 열펌프 유닛(530kW 이하)
시공 : 건축주 직영
설계·감리 : 웰하우스종합건축사사무소


안으로는 프라이버시를 지키고,
밖으로는 적극적으로 열린 공간
1층에는 공용 공간인 주방과 거실, 그리고 부부의 침실을 배치했다. 공용 공간과 침실은 선룸을 사이에 두고 높이차가 있는 복도를 통해 부부의 사적 영역을 보호했다. 침실에는 또 하나의 포인트가 숨어 있다. 바로 마당 쪽으로 설치한 쪽마루. 공용 공간으로 나가지 않아도 방에서 프라이빗하게 마당의 풍경을 바라볼 수 있다. 오후 해가 넘어갈 때 쪽마루에 앉아 노을을 감상하는 것은 건축주의 행복 중 하나이다.



PLAN

INTERIOR SOURCE
욕실 및 주방타일 : 신기타일 수입타일
수전 등 욕실기기 : 대림바스, 아메리칸스탠다드
주방가구 : 백조씽크
조명 : 예스전기조명
계단재 및 난간 : 멀바우, 평철 난간
현관문 : 스타게이트
중문 : 금속 슬림도어
방문 : 예림도어 합판 + 필름지 부착

2층에는 자녀의 침실과 서재, 작은 거실 그리고 테라스가 펼쳐진다. 자녀가 2층에서 독립적으로 생활할 수 있도록 필요한 시설을 모두 갖추고 있다. 크고 다양한 창을 활용해 2층이지만 야외와 가까이 연결된 이미지를 형성하고자 했다. 자녀 침실에는 코너에 가로로 긴 창을 통해 산의 풍경이 파노라마처럼 보이도록 연출했다. 집 안 어느 곳을 거닐든 정원을 따라 걷는 기분이 든 집. 자연이 자연스럽게 스며든 집에 가족은 200% 만족하며 살고 있다고 전했다.



건축가 명제근 : 웰하우스종합건축사사무소

취재_ 조재희 | 사진_ 민영기
ⓒ 월간 전원속의 내집 2023년 7월호 / Vol.293 www.uujj.co.kr