
본 주택은 완벽한 주거 형태의 규모가 아닌 불편하지 않을 정도의 최소한의 규모만 원했던 건축주의 의견에서부터 시작되었다. 마치 선비의 삶을 기록하듯 최소한의 삶, 최소한의 필요로 채워지는 집, 그것이 이 집 스타일의 시작이었다.
진행 이화정 기자 | 글 자료 예하파트너스 건축사사무소 | 사진 심성의 작가
HOUSE NOTE
DATA
위치 경기 가평군
지역/지구 계획관리지역/준보전산지
건축구조 기초 -철근콘크리트 매트기초
벽/지붕 - 철근콘크리트
대지면적 1,040㎡(314.6평)
건축면적 88.18㎡(26.67평)
연면적 88.14㎡(26.66평)
건폐율 8.48%
용적률 6.39%
설계기간 2021년 2월 ~ 8월
시공기간 2022년 9월 ~ 2023년 2월
설계 건축사사무소 예하파트너스
070-5138-2150
www.yehapartners.com
시공아르케 디자인빌드
MATERIAL
외부마감 지붕 - 원일 스틸 골강판(c-76)
외벽 - 적삼목 위 블랙페인트
적삼목 위 오일스테인
내부마감 천장 - 노출콘크리트
내벽 - 노출콘크리트
바닥 - 동화자연마루
욕실 타일 - 바스디포 수입타일
단열재 비드법보온판2종3호
(150㎜/200㎜, 220㎜)
압출법보온판특호 100㎜,
압출법보온판1호(100㎜/30㎜)
창호 레하우 86㎜ PVC 3중 시스템창호
이 동네의 옛 이름인 망동(보름골)은 마일리의 소지명으로 ‘바라는 동네(望洞)’라는 뜻이다. 지명처럼 동네는 산자락 사이 골짜기에 자연스레 형성된 촌락으로, 남측 경사를 따라 집들이 부드럽게 자리잡고 있다.
건물이 들어설 대지는 마을의 끝자락인 상단에 자리한다. 마을의 전경을 한눈에 내려다볼 수 있는 적당한 높이의 위치다. 대지 내에는 비교적 많은 수목이 심어져 있다. 소나무, 전나무 등 다양한 수목이 자생하고 있는데, 수목의 크기가 상당히 커서 특별히 인위적 조경이 필요하지 않아 보인다.

자연 환경이 이미 자연스럽게 갖춰져 있어 어떠한 형태의 집을 앉혀도 부담스럽지 않아 보이는 땅이다. 도심과 다르게 사계절의 변화를 또렷하게 체감할 수 있는 대지는 이 집만의 매력이다.
최소한의 필요로 채워진 세컨하우스
건축주는 세컨하우스 개념으로 접근했다. 완전한 이주가 아닌 평생의 사회적 관계가 남아 있는 서울의 집을 유지하면서 은퇴 후 자연생활의 시작을 위한 집을 이곳에 새로 짓고자 했다. 일종의 도농 주거 양다리 삶으로의 전환을 선택한 것이다. 평생 살아온 터전을 떠나는 두려움과 은퇴 후 인생 2막의 시작에 대한 기대가 동시에 있는 건축주로서는 생활의 축을 2개로 가져가면서 천천히 저울질하고 싶지 않았을까.



건축주는 우리가 생각하는 완벽한 주거 형태의 규모가 아닌 불편하지 않을 정도의 정말로 최소한의 규모만 원했다. 건축주는 집이 마을에서 눈에 띄지 않기를 원했고, 막히지 않는 순환하는 구조를 가진 집 구성을 희망했다. 최소한의 삶, 최소한의 필요로 채워지는 집, 그것이 이 집 스타일의 시작이었다.

마을 속에 자연스레 스며들어 순환하는 집
설계 컨셉은 크게 두 가지 방향으로 나뉜다. 건축주는 우선 이 집이 마을 속에 자연스럽게 스며들기를 원했다. 이에 따라 전체 외형은 박공지붕을 가진 단순 형태의 단층으로 쉽게 접근했다. 건물의 외벽은 검은색 페인트 목재와 전면 브라운 벽체를 가진 투톤으로 다르게 처리했다. 도로에서 보이는 집의 뒷모습은 검은 톤으로써 존재감을 없애고자 했고, 전면 마당을 향해 열린 남측 벽체는 밝은 색 원목 톤으로 처리해 열린 방향성을 마당에 담고자 했다.

외장에서 가장 신경을 쓴 부분은 지붕재이다. 보통 시골 마을에서 축사나 농막 창고 등의 재료로 많이 쓰이는 흔하디 흔한 양철지붕 및 골 슬레이트의 감성을 담고자 했다.



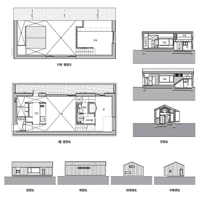
두 번째로 실내 구성과 관련해 순환하는 집의 개념을 구현하고자 했다. 박공 형태의 집안에서 모든 실과 공간은 자연스럽게 연결되어 있다. 우리가 흔히 이야기하는 안방, 거실, 주방의 기능적 구분이 아니라 자는 곳, 쉬는 곳, 먹는 곳, 씻는 곳, 싸는 곳의 영역으로만 최소한으로 구분될 뿐 모든 공간은 하나의 공간으로 연결된다. 즉, 작은 공간들이 모여 하나의 큰 방이 되는 구조이다.


집 자체가 큰 방이자 큰 마을
앞서 컨셉에서 언급했듯이 이 집의 내부 구성은 구획된 방의 개념이 아닌, 한 지붕 아래에서 여러 장소가 모여 있는 하나의 공간으로 구성된다. 방이 모여 집이 되는 것이 아닌, 집 자체가 큰 방, 큰 마을이다.




