언덕 위 고양이의 누울 자리처럼, 소묘所猫

집이란 응당 좋아하는 것을 편안하게 채워나가는 곳.
부부의 걸음과 시선으로 마당과 작업실에 쌓여갈 시간과
세 고양이의 누울 자리가 빛을 받는 구도심의 중정 주택.

무엇도 방해받지 않는 나만의 공간. 그 안에 사는 내가 가장 좋아하는 건 무엇일까? 조촌동이라는 절묘한 입지, 그러나 아슬하게 자리 잡은 오래된 대지에 지어진 황민택, 임진아 부부, 그리고 세 고양이가 사는 주택은 이런 고민으로 완성된 건축가의 작품이다.


건축가이자 건축주인 황민택 소장은, 언제고 서울을 ‘탈출’할 기회만 노리며 살아왔다. 주택에 대한 특별한 기억보다는, 밀집된 도심에 대한 염증이 더 큰 이유였다. ‘내집’은 그런 탈출의 노림수처럼 머릿속에 도사리고 있었고, 퇴직한 아내에게 생활의 활력을 주고자 함이 곧 계기가 되어줬다. 여행을 다니며 좋은 인상으로 점찍어뒀던 군산이 건축의 무대로 정해졌다. 가장 중요한 클라이언트인 진아 씨의 ‘군산살이’ 허가와 함께 시작된 건축은, 크고 작은 난항을 계속 맞닥뜨렸다. 오래된 만큼 사연도 많았던 대지는 여러 구옥과 폐건물의 흔적을 품고 있었고, 측량이나 현장 감리의 어려움 등 여러 난관이 과정 속에 존재했다. 그럼에도 그의 꼼꼼하고 디테일한 도면처럼, 집은 제 자리를 찾듯 계절을 지나며 올라섰다. 갓 완공된 집에 아직 남은 습기가 마를 만큼의 시간이 지나, 다섯 식구의 발길이 모두 자리 잡은 주택을 만났다.



주택은 ‘ㄷ’자 형태의 안마당을 품은 형태로 지어졌다. 동네로부터 프라이버시를 지키면서도 절묘하게 떨어지는 태양의 시간도 가지는 구조다. 덕분에 주변이 생활감 있는 건물들로 차있지만 집안은 답답하지 않다.
SECTION

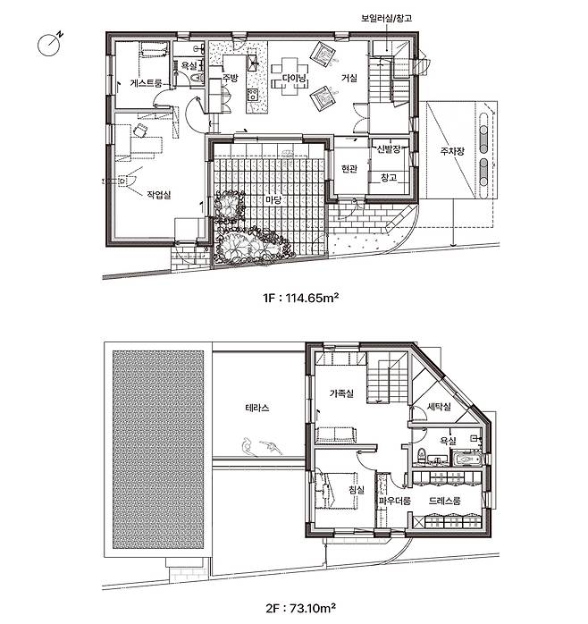
HOUSE PLAN
대지면적 : 295㎡(89.24평)
건물규모 : 지상 2층
거주인원 : 2명(부부), 고양이 3
건축면적 : 151.37㎡(45.78평)
연면적 : 187.75㎡(56.79평)
건폐율 : 51.31%
용적률 : 63.64%
최고높이 : 7.6m
주차대수 : 1대
구조 : 기초 - 철근콘크리트 매트기초 / 벽·지붕 - 철근콘크리트
단열재 : 기초 - 비드법단열재 2종1호 190㎜ / 외벽 - 비드법단열재 2종1호 135㎜ / 내벽 – 압출법 보온판 10㎜ / 지붕 - 비드법단열재 2종1호 220㎜ / 온돌바닥 - 비드법단열재 2종1호 40㎜
외부마감재 : 적벽돌 0.5B 치장쌓기(로만600 WS3410) / 지붕 – 컬러강판 돌출이음
담장재 : 적벽돌 1.0B 치장쌓기, 4인치 시멘트블럭
창호재 : LX지인 85㎜ PVC 시스템창호 / 43mm 로이 3중유리(㈜해든창호)
에너지원 : LPG, 벽난로, 태양광 패널 3kW | 조경석 : 화강석 판석 50mm, 현무암 괴석
조경 : studio DoS(설계), ㈜민건축인테리어(시공)
전기·기계·설비 : ㈜선진티이씨 변상호
측량 및 토목설계 : ㈜신흥기술단 조성호
구조설계(내진) : ㈜하이구조 김유리
시공 : ㈜민건축인테리어 신옥희, 신승민, 신현민, 박민서 https://blog.naver.com/oki7006
설계·감리 : studio DoS 황민택 www.dosspace.com


‘연’과 ‘바라간’, ‘막둥이’까지 세 묘공이 모두 적응할 만큼의 계절들이 흘렀지만, 집은 여전히 미완의 영역을 남겨뒀다. 그 대표적인 공간이 별채처럼 분리된 황 소장의 작업실이다. 노출콘크리트 등으로 생활 공간과는 분리되는 마감은, 단순한 작업실이 아닌 건축가로서 다양한 시도들을 펼쳐볼 도화지 같은 공간을 의미한다. 또 어떤 미래에는 다른 유틸리티 등을 더한 공간으로 활용될지도 모른다.


PLAN

INTERIOR SOURCE



황 소장은 건축주를 만나 의뢰를 받고 프로젝트를 전개할 때 먼저 질문부터 한다. ‘뭘 좋아하세요?’. 자신이 어떤 삶을 원하며 살아왔고, 또 앞으로는 어떻게 살길 원하는지 스스로를 잘 들여다보면 집의 설계가 나온다. 그러다 보면 자금의 한계에 부딪혀도 어떤 걸 마음 편히 포기하고, 동시에 다른 선택을 어떻게 굳건히 할지 해답이 나오게 된다. 햇빛 아래 누운 고양이처럼 편안히 자리잡은 이 주택은 그런 고민들을 건축가가 스스로 해내어 그린 소묘다. 그리고 이어 미래의 건축주들에게 건네보일, 보고 만지고 느끼며 걷는 포트폴리오가 될 것이다.

기획_ 손준우 | 사진_ 변종석
ⓒ월간 전원속의 내집 2023년 12월호 / Vol.298 www.uujj.co.kr
